-
Köpa
Köpa -
Sälja
Sälja - Hitta bostad
- Skapa bevakning
- Hitta mäklare
Villa i barnvänliga Vistaberg - närhet till lek, skola och natur!
Vistaberg, Huddinge
*Areauppgifter enligt taxeringsinformationen
Anmäl er gärna till visningen
På Förhand ligger bostäder som av olika anledningar inte är ute till försäljning just nu men som kan komma att säljas om förutsättningarna är rätt.
Välkommen till ett hem där hela familjen får plats att växa och trivas! Denna friliggande villa, byggd 2012, ligger i hjärtat av det omtyckta och barnvänliga området Vistaberg – ett område där lugnet, gemenskapen och närheten till allt ni behöver gör vardagen både enkel och härlig.
Här erbjuds modern komfort och socialt planerade ytor, kombinerat med en trygg och grönskande omgivning där barnen kan cykla, leka och springa fritt. Direkt utanför huset finns en carport med förråd – perfekt för barnvagnar, cyklar, pulkor och allt som hör familjelivet till.
På entréplanet möts ni av en hall med förvaring, ett fräscht badrum med dusch, ett rymligt vardagsrum med mysig braskamin och stora fönsterpartier som ger ett fint ljusflöde och suddar ut gränsen mellan inne och ute. Det stilrena köket erbjuder generösa arbetsytor och en naturlig matplats som skapar en trivsam samlingspunkt i hemmet. På det övre planet väntar den mer privata delen av huset, med tre bra sovrum, ett ljust allrum som passar lika bra som lekhörna eller myshörna, samt ytterligare ett badrum.
Utemiljön är något utöver det vanliga med sina dubbla uteplatser. På den övre uteplatsen kan du njuta av sol från morgon till kväll. Det finns gott om plats för så väl loungegrupp som solsängar och en tomt som redan är förberedd för plantering.
Den nedre uteplatsen förlänger hemmet under årets varmare månader. Här erbjuds en mer avskild och skyddad miljö som lämpar sig väl för middagar, grillkvällar och barnens lek. Ytterligare en uteplats finns på husets framsida.
Vistaberg är ett område där många barnfamiljer trivs och stannar kvar länge. Biltrafiken är begränsad, skolor och förskolor finns inom bekvämt avstånd och Huddinge centrum nås snabbt med cykel eller buss (som går var 15:e minut). För pendlaren finns smidiga kommunikationer mot stan – samtidigt som ni bor mitt i ett område där barn får vara barn och vardagen får vara enkel. I området erbjuds flera loppisar under året och Halloweenfirandet är något alldeles extra.
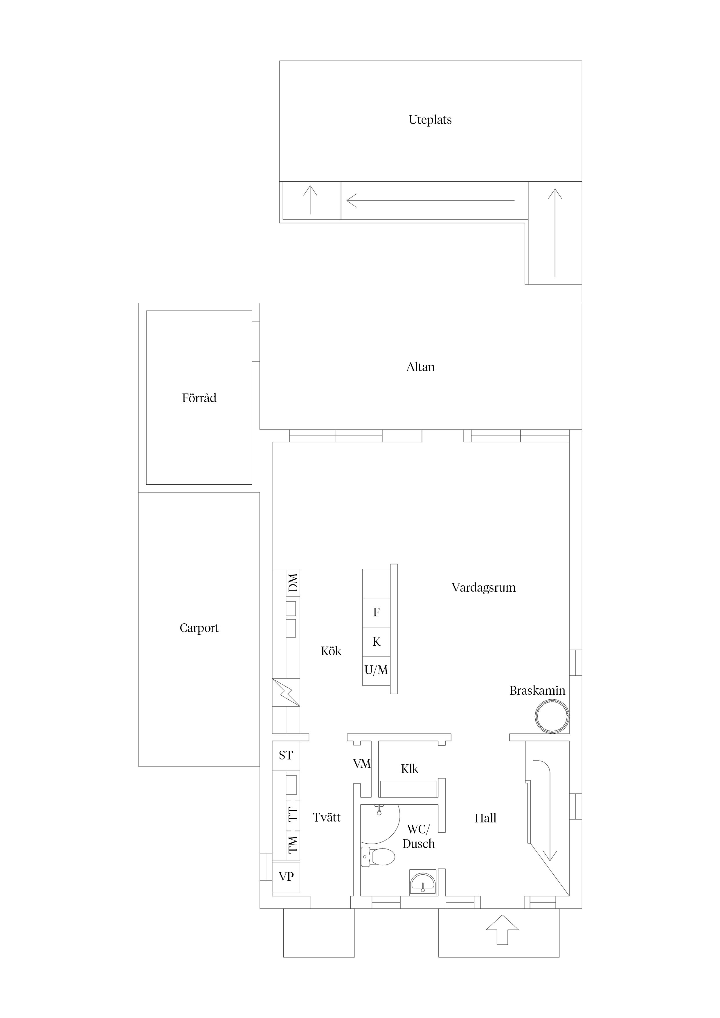
ENTRÈPLAN (Hela entréplanet värms upp med vattenburen golvvärme)
HALL
Klinkergolv och ljust målade väggar. Plats för ytterkläder och skor. Ytterligare förvaring i klädkammare.
BADRUM 1
Helkaklat badrum med klinkergolv och golvvärme. Dusch med glasdörrar, handfat med kommod samt badrumsfönster.
VARDAGSRUM
Vardagsrum med parkettgolv och ljust målade väggar. Stora fönsterpartier mot baksidan ger gott om ljusinläpp. Braskamin. Öppen planlösning mot matplats.
KÖK
Fint kök med mörka träluckor, ljust kakel ovan arbetsbänk samt mörk bänkskiva. Här finns kyl, frys, inbyggnadsugn, inbyggd mikrougn, induktionshäll samt köksfläkt.
TVÄTTSTUGA/GROVENTRÈ
Klinkergolv och ljust målade väggar. Tvättmaskin, torktumlare, tvättho samt frånluftsvärmepump. Förvaring i skåp.
ÖVRE PLAN
ALLRUM
Parkettgolv och ljust målade väggar. Rummet kan avdelas vid behov av ytterligare sovrum. Utgång till balkong mot gatan.
SOVRUM 1
Parkettgolv och ljust målade väggar.
BADRUM 2
Helkaklat badrum med klinkergolv. Spotlights i tak, badkar, badrumsfönster, högskåp och handdukstork.
SOVRUM 2
Större sovrum med parkettgolv, ljust målade väggar samt större garderob med skjutdörrar.
SOVRUM 3
Parkettgolv och ljust målade väggar.



Planlösning entréplan
Planlösning övre plan
Hortensian 4
*Areauppgifter enligt taxeringsinformationen
Rymligt isolerat förråd utomhus.
Insynsskyddad altan
Ytterligare en uteplats på berget ovanför altanen
Uteplats framsida, vänd mot söder
Kommunalt vatten, Kommunalt avlopp.
Tomt med altan, berg i dagen och uppgång till uteplats med utsikt över området.
Carport med plats för en bil.
Ytterligare plats för bil finns på uppfarten
Detaljplan (2005-11-07)
Gemensamhetsanläggning: Huddinge hortensian ga:1
Last: Officialservitut Dräneringsledning, 0126K-15498.2
Förmån: Officialservitut Dräneringsledning, 0126K-15498.1
Via Fiber
Via Fiber
I kostnaden för uppvärmning ingår även hushållsström. Det tillkommer en kostnad för villahemförsäkring.
BUDGIVNING
Vi använder oss av öppen budgivning, vilket innebär att mäklaren löpande redovisar det högsta budet till budgivarna som då har möjligheten att bjuda över varandra.
Mäklaren noterar samtliga bud med namn på budgivaren, tidpunkt och bud, samt eventuella villkor med budet.
Alla som deltar i budgivningen accepterar att fastighetsmäklaren lämnar ut budgivningslistan med budgivarnas namn och telefonnummer samt information om de bud som inkommer till säljare och köpare.
AVGIFTER/STÄMPELSKATT - 2026 tas en fastighetsavgift ut om 10 425 kr/år. Den ersätter tidigare fastighetsskatt och regleras, enligt upplupen tid, mellan köpare och säljare på tillträdesdagen. Nybyggda hus med värdeår 2007-2011 är skattebefriade i fem år och därefter betalar man halv fastighetsavgift i fem år. Nybyggda bostäder med värdeår 2012 och senare är befriade från fastighetsavgift i 15 år. För obebyggda tomter gäller fortfarande 1% av taxeringsvärdet i fastighetsskatt. Lagfartskostnad: 1.5 % av köpeskillingen för privatperson och 4.25 % för företag samt en avgift om f.n. 825 kr. Pantbrevskostnad: på nya pantbrev 2 % av pantbrevs beloppet samt en avgift om f.n. 375 kr.
Det finns 2 st pantbrev uttagna om sammanlagt 5 483 000 kr
I gammal kulturbygd ligger moderna Vistaberg - ett mycket populärt bostadsområde framförallt för barnfamiljer, men också andra - med närhet till service och kommunikationer i Huddinge Centrum.
Vistaberg ligger mellan Glömsta (västerut) och Fullersta/Huddinge C (österut). Söderut avgränsar Glömstavägen området och norrut ligger Vistaskogen i kuperat område, högsta berg är 75 meter högt.
Vistaberg är bebott sedan 2000 år tillbaka. Det finns talrika fornlämningar från den äldre järnåldern. Första gången Vistaberg nämns i skrift är 1331, då den kallas Viestum. Ordet antas komma från vide, dvs "videstället".
På 1500-talet bestod bebyggelsen av två gårdar, varav en ägdes av Svante Sture den yngre. Kvar finns fortfarande den stora ladugårdsgrunden. Under 1600-1800-talen bedrevs jordbruk. Oftast var Vista ägd av storjordbrukare med flera andra gårdar.
På 30- och 40-talen styckades Vistas markområden, i likhet med andra gårdar, upp. Här byggdes fritidshus och villor utan kommunalt avlopp.
I västra delen av Vistaberg finns Lövsta Gård kvar med jordbruk och djurhållning (får, hästar, grisar och höns).
På 1990- och 2000-talet uppfördes ny bebyggelse med radhus, kedjehus, flerfamiljshus och fristående villor. En ny detaljplan antogs i början av 2000-talet, vilket möjliggjorde många fler nya bostäder i Vistaberg.
Första etappen blev Vistabergs Trädgårdsstad längs Vistabergs Allé. Här finns hus som vänder sina entréer mot gatan på klassiskt trädgårdsstadsmanér. Bakom husen finns gott om grönytor för de privata trädgårdarna. Bland naturliga kullar och stigar har det byggts par- och radhus, villor och flerbostadshus. En del av husen har en härlig utsikt över området. Flerbostadshusen har gemensamma utemiljöer, inramat av plank, bersåer och ytor för samvaro.
Vista Skogshöjd blir den sista etappen av utbyggnaden. Med Vistaskogen runt knuten byggs 300-400 nya bostäder och en förskola. Det blir stadsvillor, radhus, parhus och flerbostadshus med blandad upplåtelseform.
Ytterligare förslag finns i kommunen om utveckling av Vistaberg, närmare bestämt området mot Rosenhill och Huddinge C. Förslaget är ute för samråd. Avsikten är att Fullersta, Vistaberg och Huddinge C ska byggas ihop när det glest bebyggda Rosenhill förtätas. Även här planeras en förskola.
Det finns nu fyra förskolor i Huddinge, varav den senaste, Utsikten i norra Vistaberg, öppnades 2016.
Vistaberg har två egna skolor. Vistaskolan (F9) ligger i Trädgårdsstaden och byggdes redan i mitten av 50-talet, ritad av arkitekten Karl W Ottesen. 2004 kompletterades den med ytterligare byggnader. Intill Vistaskolan ligger Rosenhillskolan, som är till för elever med behov av särskilt stöd. Det finns ytterligare grundskolor i Fullersta, Glömsta, Källbrink och Huddinge C.
I Vistaberg har man nära till Huddinges fyra kommunala och två fristående gymnasieskolor liksom Södertörns Högskola i Flemingsberg.
Närmaste handelscentrum är Huddinge Centrum, med många butiker, restauranger, caféer och allmän service. Det är också nära till IKEA, Heron City och ett flertal kända stormarknader i ett av Europas största handelscentra, Kungens Kurva. Via Glömstavägen tar man sig ut till E4:an och Kungens Kurva/Skärholmen.
Det tar 15-30 minuter att promenera till Huddinge C. Med cykel är man där på 5-10 minuter beroende på var man bor. I Huddinge C finns pendeltågsstation. På ca 15 min är man inne i Stockholm C.
Buss går förstås också bra att åka till Huddinge C. Buss 714 går genom området och har kvartstrafik i rusningstid. Det finns flera linjer som trafikerar Glömstavägen. Linjerna går till Huddinge C, Huddinge Sjukhus, Masmo, Kungens Kurva och Skärholmen (T-bana röda linjen).
Vissa turer går till Flottsbro Friluftsområde via Glömsta. Med bil når man området på ca 10 minuter. I Flottsbro finns sommartid badplats, kanotuthyrning och servering. På vintern finns tre skidbackar och spår för långfärdsskridsko.
I Vistaberg har man nära till naturen och friluftsliv för motion och rekreation. Gömmarens naturreservat med klarvattensjön Gömmaren ligger på cykelavstånd. En cykelled på 6 km genom naturreservatet går till Kungens Kurva. Här finns stigar, elljusspår, cykel- och vandringsleder. Vid Lövsta Gård finns en ridskola för den hästintresserade.
Källbrinks IP ligger strax norr om Vistaberg och har motionsspår med ca 1,9 km elljus, en friidrottsanläggning, fotbollsplaner, rugbyplan, tennishall, m.m.
Vistaberg har under 2017 fått en ny lekplats för barnen, Honungsparken. Det är en större park som är tänkt för lek, sport och vila. Det finns gräsyta och en öppen dagvattenbäck. Parken är belyst och det finns ett cykelställ vid den östra ingången samt en del bänkar och picknickbord. Lekplatsen passar för barn i olika åldrar. Den har bondgårdstema och mycket är gjort i trä. Det finns gungdjur, klätterställningar med rutschkanor och klätternät, gungor, lek-torn, sandlåda med bakbord samt träskulpturer i form av djur och traktorer.
Köpa, sälja eller värdera bostad i Vistaberg? Kontakta våra Bjurfors mäklare i Huddinge! Passa också på att anmäla dig till vår kostnadsfria söktjänst Boagenten som hjälper dig att hitta ditt drömboende.
Kontakta mäklaren om du behöver hjälp att ta fram en boendekalkyl.
När du köper din bostad genom Bjurfors kan du ansöka om bolån till en förmånlig ränta hos våra banksamarbetspartners Söderberg & Partners och SEB.
Anmäl er gärna till visningen
Ansvarig mäklare