-
Köpa
Köpa -
Sälja
Sälja - Hitta bostad
- Skapa bevakning
- Hitta mäklare
Charmig 1:a i bra läge nära kommunikationer!
Häggvik, Sollentuna
*Inkl värme, vatten och kabel-tv
**Föreningens information
På Förhand ligger bostäder som av olika anledningar inte är ute till försäljning just nu men som kan komma att säljas om förutsättningarna är rätt.
- Helkaklat badrum
- Balkong i fint läge
- Direkt närhet till kommunikationer
- Närhet till natur och vatten
- Stabil förening
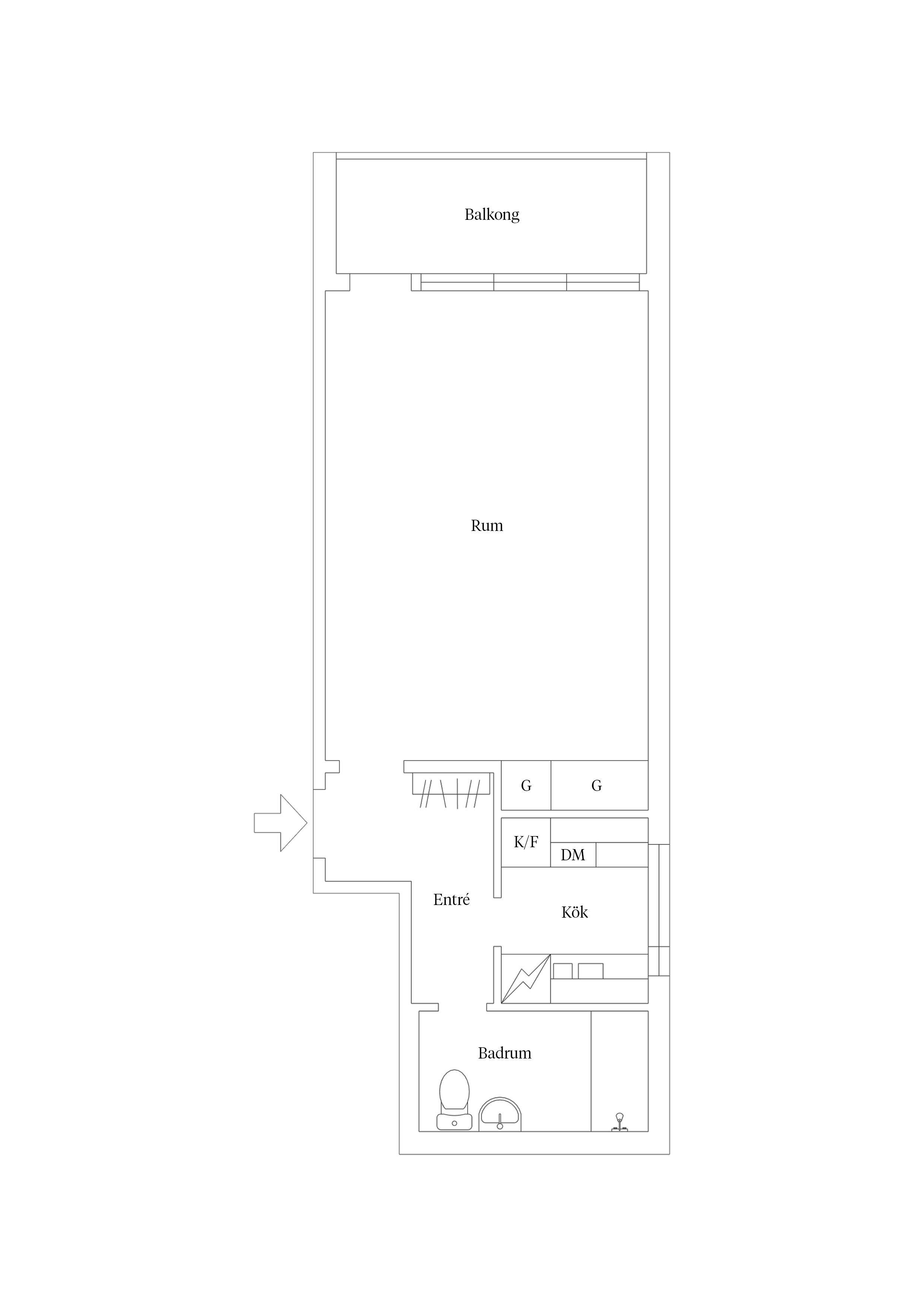
Nu erbjuds denna charmiga 1:a om 34,9 kvm i fint läge med balkong mot grönska. Lägenheten erbjuder sovrum och vardagsrum i ett med utgång till balkong. Vardagsrummet ger möjlighet att få plats med både soffgrupp och matgrupp. Vidare finns det plats även för en säng. I övrigt hittar vi ett charmigt kök och ett halkaklat badrum med golvvärme. Externt förråd tillhör lägenheten.
Stabil förening som är väl omhändertagen och har en god ekonomi i jämförelse med andra föreningar.
Pendeltåget ligger bara ett stenkast från bostaden och härifrån tar du dig till Stockholm City på ynka 19 minuter. I föreningen finns bland annat gym, pingisrum, snickeboa, tvättstugor, cykelrum och föreningslokal.
Här bor ni i ett av Sollentunas mest populära områden med närhet till det mesta. Häggvik är beläget centralt i Sollentuna och är ett lugnt och barnvänligt område. Till Skälbyskolan och Häggviksskolan samt Sollentuna musikklasser är det kort promenadavstånd till och det finns även förskolor i närområdet. Det är cykelavstånd till allt från förskolor, grundskolor och gymnasium.
Häggviks lilla centrum bjuder på Second hand-butiker med damkläder och inredning, veterinär, en närlivs med det nödvändigaste, restauranger med olika kök, fotograf, frisör, tandläkare och trafikskola. I Häggvik ligger även Häggviks handelsplats med flertalet stora butiker och varuhus så som Ica Maxi, Willys, City Gross, Jula, Jysk, Dollarstore och Sats.
Utöver det finner vi sjön Norrviken en kort promenad från bostaden (800 meter), med en fin badplats efter strandpromenaden, kajakpaddling på sommaren och en mycket populär och plogad skridskobana på vintern. Inte långt härifrån ligger även Järvafältet med fina strövområden för motion eller naturupplevelser. Visningsgården Bögs Gård som du kan promenera till genom skogen, är populär för både stora och små. Där finns både djur att titta på, ett mysigt café och ibland aktiviteter med ponnyridning eller häst och vagn samt möjligheter för barnkalas. Inom cykelavstånd ligger även Norrviken centrum med en välsorterad Ica nära butik, den välrenommerade Percys kött, bibliotek, vårdcentral med mera.



*Föreningens information
Inkl värme, vatten och kabel-tv
Bostadsrättens indirekta nettoskuldsättning baseras på föreningens skulder/lån minus föreningens räntebärande tillgångar och likvida medel. Beräkningen är gjord och baseras på senaste tillgängliga årsredovisningen. För mer information kontakta ansvarig fastighetsmäklare.
I angiven driftkostnad ingår hushållsel. I övrigt tillkommer kostnad för hemförsäkring, vilken är individuell.
Brf Folkungarna består av 180 st. lägenheter med adresser Folkungavägen 17-27, Folkungavägen 20-22, Minervavägen 5a-c, Studievägen 1-15 och Studievägen 17-19. I föreningen finns även 7 lokaler varav 1 hyreslokal.
Husen har genomgått stambyte 2008, byte av el, fått nya ytterglas i fönstren, nya ytterkarmar av aluminium och renoverat balkongerna.
Föreningen har två fina innergårdar med uppvuxen grönska och möblerade uteplatser som kan nyttjas av föreningens medlemmar.
Container för grovsopor finns på parkeringen. Hushållssopor sorteras och behållare för kompost finns. Elsopor slängs på Studievägen 9 och Folkungavägen 19. Cykelrum finns på Studiev. 3, Folkungav 17, Folkungav 25, Folkungav 22, Studiev 15 och Minervav 5C.
För mer information om föreningen titta gärna på hemsidan folkungarna.se
Utföra renoveringar:
2007-2008 - Stambyte
2007-2008 - Nydragen el
2010 - Tilläggsisolering vind
2013 - Målning/lagning av garage
70 p-platser med motorvärmaruttag (164 kr/mån)
30 kallgarage med motorvärmaruttag (381 kr/mån)
Föreningen har installerat 30 laddboxar till parkeringen.
Det är Riksbyggen som ansvarar för parkeringskö. Har du frågor, kontakta dem:
Telefon: 0771 860 860
Mejl: info@riksbyggen.se
När du blivit tilldelad en parkering eller ett garage ska du kontakta styrelsen för att få eventuell nyckel.
Observera att du tidigast kan ställa dig i kö när du har fått den första avgiftsfakturan från Riksbyggen.
Föreningens fastigheter är anslutna till Sollentuna Energis stadsnät genom fiberoptikkablar som medger en bredbandshastighet upp till 100 Megabit/sek.
Det finns ett antal operatörer att välja mellan. Gå in på Sollentuna Energis hemsida för att se vilka det finns att välja bland.
Kabel-tv (comhem basutbud) ingår i månadsavgiften.
Uteplatser med grillmöjligheter.
Husen är grupperade runt var sin innergård med mycket lummig och många träd samt buskar, en plan med möjlighet till t.ex.boulespel och en permanent grill samt bord och bänkar.
Gården på kv. Spiran är mer öppen med stora grönytor för lek och solande. Här finns äppelträd och bärbuskar.
På båda gårdarna finns en paviljong där man kan få skugga under heta sommardagar, träffas över en kopp kaffe eller kanske en grillafton en ljummen sommarkväll. Båda gårdarna har också en lekplats.
Föreningen har avtal med MK Trädgård för trädgårdsskötsel och snöröjning.
Tvättstuga (2 st), I Folkungavägen 17 och Folkungavägen 22 finns våra tvättstugor med tvättmaskiner och torktumlare installerade 2007 samt nya torkskåp 2010. Dessutom finns torkrum och mangelrum.
Barnvagns-/rullstolsrum, I varje hus finns ett cykelrum: Studiev. 3, Folkungav. 17, Folkungav. 25, Folkungav. 22, Studiev. 15 och minervav. 5C.
Bastu, Minervavägen 5C, en trappa ned. Där finns dusch, toalett och omklädningsrum med fåtöljer.
Träningslokal, på Folkungavägen 23, en trappa ned. Den är välrustad med löpband, motionscykel, trappmaskin, olika styrketräningsmaskiner, mattor, bänkar, skivstänger och hantlar.
Bordtennisrum (Studievägen 7), hobbylokal (snickeboa, Folkungavägen 23) och samlingslokal (Folkungavägen 27) med kök att hyra för medlemmar för en peng om 100-200 kr.
Här bor ni i ett av Sollentunas mest populära områden med närhet till det mesta. Häggvik är beläget centralt i Sollentuna och är ett lugnt och barnvänligt område. I Häggvik bor du med närhet till bl.a. Skälbyskolan, Häggviksskolan, Sollentuna musikklasser, Gärdesskolan samt Rudbecks gymnasium. Det finns även flera förskolor i området.
Häggviks lilla centrum bjuder på Second hand-butiker med damkläder och inredning, veterinär, en närlivs med det nödvändigaste, restauranger med olika kök, fotograf, frisör, tandläkare och trafikskola. Härifrån kan du även ta pendeltåget mot bl.a. Stockholm city, Odenplan, Arlanda och Uppsala. I Häggvik ligger dessutom nya Häggviks Handelsplats med många stora butiker och varuhus så som ICA Maxi, Willys, City Gross, Jula, Elgiganten, Jysk, Dollarstore och SATS.
Utöver det finner vi sjön Norrviken med en fin badplats efter strandpromenaden, kajakpaddling på sommaren och en mycket populär och plogad skridskobana på vintern. Inte långt härifrån ligger även Järvafältet med fina strövområden för motion eller naturupplevelser. Visningsgården Bögs Gård som du kan promenera till genom skogen, är populär för både stora och små. Där finns både djur att titta på, ett mysigt café och ibland aktiviteter med ponnyridning eller häst och vagn samt möjligheter för barnkalas. Inom cykelavstånd ligger även Norrviken centrum med en välsorterad Ica nära butik, den välrenommerade Percys kött, bibliotek, vårdcentral med mera.
Köpa, sälja eller värdera bostad i Häggvik? Kontakta våra mäklare i Sollentuna! Passa också på att anmäla dig till vår kostnadsfria söktjänst Boagenten som hjälper dig att hitta ditt drömboende.
Kontakta mäklaren om du behöver hjälp att ta fram en boendekalkyl.
När du köper din bostad genom Bjurfors kan du ansöka om bolån till en förmånlig ränta hos vår samarbetspartner SEB.