-
Köpa
Köpa -
Sälja
Sälja - Hitta bostad
- Skapa bevakning
- Hitta mäklare
Välbyggt hus i högt läge med allt ni kan önska er!
Viby, Sollentuna
*Areauppgifter enligt uppmätning
På Förhand ligger bostäder som av olika anledningar inte är ute till försäljning just nu men som kan komma att säljas om förutsättningarna är rätt.
Kontakta mäklaren för privatvisning!
* Välbyggt
* Genomgående bra skick
* Välplanerad
* Högt läge
* Poolrum
* Garage
Välkommen till Rävgärdsvägen 20B, ett gediget och välbyggt hem som uppfyller alla dina önskemål!
Här finns möjligheten att flytta in i ett inflyttningsklart hem i mycket gott skick. Huset, som är byggt i lösvirke, utstrålar kvalitet och omsorg redan vid första steget in genom dörren. Bostaden är fördelad på två plan med en genomtänkt planlösning som passar de flesta behov. Dessutom erbjuder huset låga driftkostnader tack vare sin genomtänkta konstruktion, effektiva energilösningar och ett flertal solceller som bidrar till hållbar och ekonomisk elförsörjning.
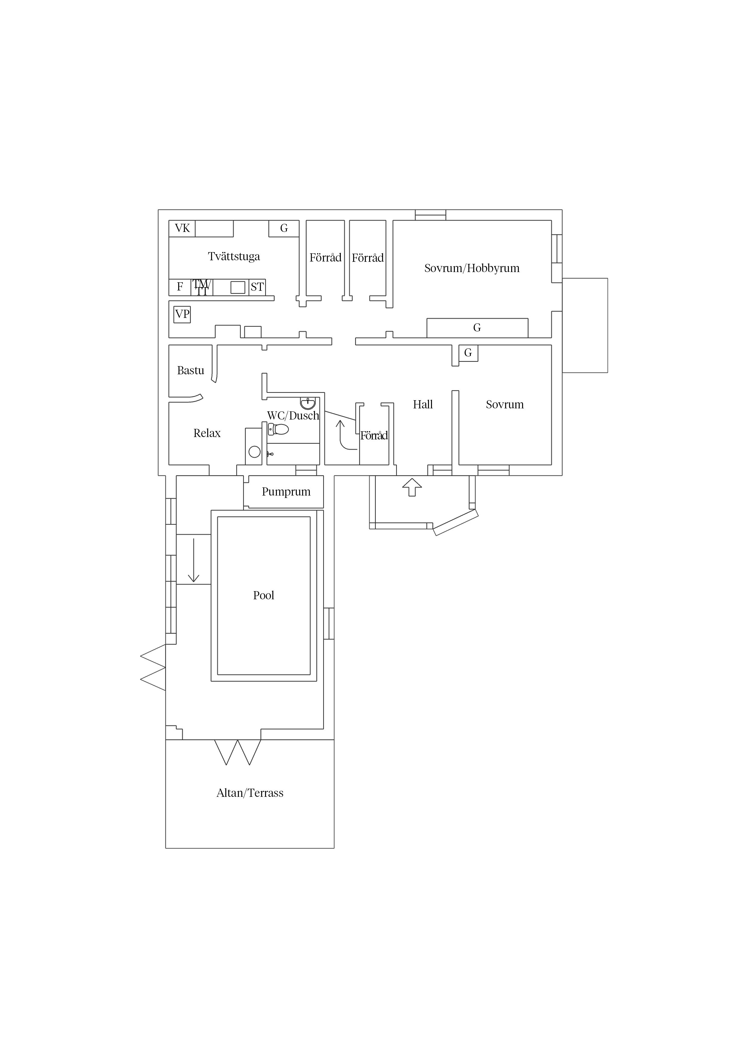
På suterrängplanet möts du av en entré med gott om förvaringsmöjligheter. Här finns också ett rymligt sovrum, ett hobbyrum eller sovrum med egen entré, pannrum, tvättstuga och två förråd. För den som söker avkoppling erbjuder planet en relaxavdelning med bastu och badrum, samt ett poolrum. Poolrummet används idag som en separat lägenhet med kök och sovdel, men kan enkelt återställas till sitt ursprungliga skick – det enda som behövs är att koppla in en värmepump och lägga i en ny liner. Utrymmet är byggt med högsta noggrannhet och är utrustat med ett klimat/avfuktnings system av exceptionell kvalitet som överträffar normala standarder.
Det övre planet präglas av stora, öppna ytor där kök och vardagsrum möts i en inbjudande planlösning. Här finns även två sovrum, varav ett är extra rymligt. Badrummet är modernt, helkaklat och i mycket gott skick. Köket är välutrustat och erbjuder alla bekvämligheter du kan önska dig.
Huset ligger på en högt belägen tomt som bjuder på vacker utsikt och sol under hela dagen. Flera uteplatser omger bostaden, vilket ger goda möjligheter att njuta av den omgivande miljön. På tomten finns också ett rejält garage med plats för bil, förvaring eller verkstad. Dessutom finns ett praktiskt förråd och ett cykelskjul under tak. Tomten kombinerar gräsytor med skogspartier, vilket skapar en härlig balans mellan öppenhet och natur.
Detta är ett hem där kvalitet, trivsel och låga driftkostnader möts, redo att välkomna dig som nästa ägare.
I familjevänliga Viby bor man med närhet till naturen. Järvafältet är ett stort friluftsområde med insjöar, bondgårdar, ridskola, café och motionsslingor. Är du golfintresserad har du flera fina golfbanor i närheten. För barnen finns många bra förskolor och skolor, både kommunala och privata. Våra små vänner har även fina lekparker och grönområden att leka och springa av sig i. Ravalen, Norrvikensjön och Edsviken lockar till bad sommartid. När isen lagt sig vintertid plogas både Ravalen och Norrvikensjön och förvandlas till härliga skridskobanor.
Närmaste centrum ligger i Norrviken där det finns matbutik, restauranger och vårdcentral. I Rotebro handelsplats hittar du ett Stort Coop och Willys, Systembolaget, apotek, frisör, restaurangkedjor och andra småbutiker. 10 minuter bort ligger även Häggviks Handelsplats med bland annat Ica Maxi, Coop, Systembolaget, Mc Donalds, Blomsterlandet, City Gross, SATS, Jysk med flera. Ytterligare 5 minuters körning tar dig till Sollentuna Centrum med över 110 butiker, biograf och flera restauranger.
Från Norrvikens pendeltågsstation tar det 6 minuter till Sollentuna där det går bussar dygnet runt. Restiden till Stockholm City är omkring 22 minuter och ungefär lika lång till Arlanda. Med pendeltåget går det också att åka till Uppsala utan tågbyte.
Ett hus som måste ses, välkommen att höra av dig vid intresse!



Entréplan
Övre plan
Vinkällaren 4
*Areauppgifter enligt uppmätning
2019 - Badrum övre plan
2017 - Tvättstuga
2016 - Bergvärme
2016 - Trappa
2013 - Badrum entréplan
2009 - Kök
2005 - Poolrum
Kommunalt vatten, Kommunalt avlopp.
Skogs och trädgårdstomt
Tomtindelning (1981-07-30) Stadsplan (1981-04-09)
Last: Officialservitut Väg, 0163-F4562-A4.1
Last: Officialservitut Väg, 0163-F4562-A4.2
I angiven driftkostnad ingår uppvärmning (el), vatten & avlopp, sophämtning och sotning. I övrigt tillkommer kostnad för hemförsäkring, vilken är individuell.
Det finns 3 st pantbrev uttagna om sammanlagt 509 200 kr
Att bo i Viby är att bo granne med stora, härliga grönområden. Viby är en lugn oas, i Sollentuna kommun men ändå med närhet till det mesta man behöver i vardagen, så som förskolor, skolor, matbutiker, vårdcentral och kommunikationer.
Med Järvafältet runt knuten är det inga problem att leva ett aktivt friluftsliv. Järvafältet är ett stort naturreservat med milslånga vandringsleder, grillplatser, gamla gårdsmiljöer, betande djur, sjöar osv. Naturskolan bjuder in elever från Sollentunas skolor för att prata djur, miljö och naturens olika kretslopp. Bögs gård, även det på Järvafältet, är en perfekt söndagsaktivitet för hela familjen. Här får man hälsa på grisar, getter, hästar och kaniner. Eller varför inte ta en värmande kopp choklad, en svalkande glass eller en mättande lunch på Lenas café.
I Viby vid sjön Ravalen samlas fågelskådare året runt och på Sollentuna golfklubb samlas golfspelare sommartid och längdåkare vintertid. Den årliga majbrasan i närheten av Ekbacken är en populär tradition hos Viby-borna, här minglas det kring den värmande brasan och barnen möter ofta upp sina klasskompisar för lite lek.
Viby har många förskolor att välja mellan. Av grundskolor finns tre, Runbacka skolor F-9, Vibyskolan F-9 och Rälsen F-5. Det finns fler förskolor, skolor och gymnasium i Sollentuna. Läs mer om dessa på www.sollentuna.se.
Matbutik, vårdcentral och restauranger finns i Norrviken centrum. 10 minuter från Viby ligger Häggviks Handelsplats där större livsmedelskedjor, apotek, blomsteraffärer och snabbmatsrestauranger ligger. Ytterligare 10 minuter bort ligger Sollentuna centrum som har det mesta man önskar av en galleria.
Från Viby går buss 525 ner till Norrviken där tåg mot Stockholm city går åt ett håll och mot Arlanda åt det andra.
Köpa, sälja eller värdera bostad i Viby? Kontakta våra mäklare i Sollentuna! Passa också på att anmäla dig till vår kostnadsfria söktjänst Boagenten som hjälper dig att hitta ditt drömboende.
Kontakta mäklaren om du behöver hjälp att ta fram en boendekalkyl.
När du köper din bostad genom Bjurfors kan du ansöka om bolån till en förmånlig ränta hos vår samarbetspartner SEB.