-
Köpa
Köpa -
Sälja
Sälja - Hitta bostad
- Skapa bevakning
- Hitta mäklare
Vacker och mycket väldisponerad 3:a i hjärtat av Gamla Stan.
Gamla Stan, Stockholm
*inkl. värme och vatten.
**Areauppgift enligt mätning.
På Förhand ligger bostäder som av olika anledningar inte är ute till försäljning just nu men som kan komma att säljas om förutsättningarna är rätt.
Nu ges möjlighet att förvärva en vacker och ytterst välbevarad 3:a i hjärtat av Gamla Stan – en bostad där historisk charm möter modern komfort i perfekt harmoni. Lägenheten om 80 kvadratmeter fördelas över tre rum och kök i en genomgående och väldisponerad planlösning. Fastigheten, med anor från 1780-talet och ombyggd 1929, bär på sekler av historia och har bevarat sin karaktär med varsam hand. Lägenheten är belägen i souterräng med högt läge (1 tr) mot Västerlånggatan och entréplan mot Prästgatan. Här möts du av spatiösa rum med generös takhöjd och ett härligt ljusinsläpp från vackra originalfönster i två väderstreck. Den stämningsfulla eldstaden utgör hemmets naturliga samlingspunkt och skapar en varm och inbjudande atmosfär – särskilt under årets kyligare månader. Köket, i charmig lantlig stil, erbjuder både trivsel och funktion och blir en självklar plats för såväl vardagsmiddagar som långa kvällar med vänner. Bostaden är i mycket fint skick och har under senare år genomgått omsorgsfulla renoveringar med respekt för byggårets själ och detaljer. Här samsas tidstypiska inslag med moderna bekvämligheter på ett smakfullt och genomtänkt sätt.
Föreningen är välskött med god gemenskap och hög trivselfaktor. Tack vare ett attraktivt kommersiellt läge finns goda lokalintäkter. Föreningen är klassad som oäkta men har mycket god ekonomi och låg belåning. Inga avgiftsjusteringar planeras och föreningen äger marken (ej tomträtt).
Läget på Prästgatan är svårslaget – med Tyska kyrkan som närmsta granne bor du mitt bland kullerstensgränder, historiska byggnader och ett levande utbud av caféer, restauranger, museer och butiker. Här samsas historiens vingslag med vardagens bekvämligheter såsom skolor, förskolor och goda kommunikationer via tunnelbanans gröna och röda linje, bussar samt båtlinjen mellan Skeppsbron och Djurgården.
Detta är ett hem för dig som söker något utöver det vanliga – ett boende med själ, karaktär och ett av Stockholms mest eftertraktade lägen.
.
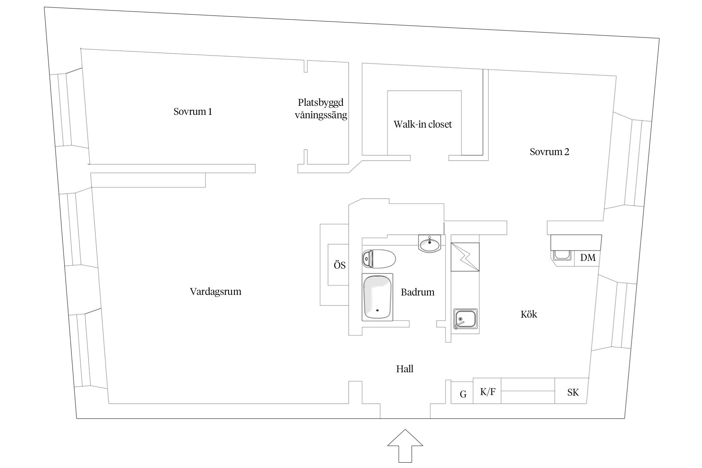
-Hall-
Hall med avhängning för ytterkläder. Klinker i klassiskt mönster med golvvärme.
- Vardagrum-
Ljust vardagsrum med enorm rymd och 3,3 meter i takhöjd. Mycket ljus via två originalfönster. Djupa fönsterbänkar och speglade fönsternischer.
Möblerbara ytor för soffmöblemang, fåtöljer samt platsbygd bokhylla. Öppen spis med kassett sprider värme under årets kalla månader. Breda plankgolv och vitmålade väggar ger ett rum att umgås och trivas i.
- Sovrum 1-
I fil med vardagrummet ligger sovrum 1, även det med fönster mot Västerlånggatan som skänker rummet mycket ljus. Speglade väggpaneler. Längs rummets kortsida finns en platsbyggd våningssäng (90 cm bred), perfekt för gäster eller barn. Även yta för skrivbord och soffa om så önskas.
- Pasasage-
Passage mellan vardagsrum och sovrum 2 inrymmer en rymlig walk-in-closet med öppna hyllplan och klädstänger.
- Sovrum 2-
Disponeras idag som master bedroom. Fönsterparti mot prästgatan ger rummer naturligt ljus. Här finns plats för dubbelsäng, byrå mm.
-Kök-
Platsbyggt lantkök som bjuder in till matlagning och umgänge. Ljus via fönsterparti mot Prästgatan. Klassiskt utförande med sandfärgade skåpsluckor med ram och bänkskivor i grön marmor med vitt kakel ovan. Del med städskåp, skafferi, serveringsskåp och integrerad kyl/frys. Maskinell utrustning är elspis, köksfläkt och diskmaskin från SMEG samt inbyggd kombinerad kyl/frys. Tillgång till två infällda hoar. Matplats för 4-6 personer.
-Badrum-
Helkakat badrum med sandfärgade kakel plattor och klinker med golvvärme. Platsbyggd ko,mmod med handfat med spegel ovan, wc och inkaklat badkar.



Planlösning
*Areauppgift enligt mätning.
inkl. värme och vatten.
Till lägenheten finns ett vindsförråd.
Bostadsrättens indirekta nettoskuldsättning baseras på föreningens skulder/lån minus föreningens räntebärande tillgångar och likvida medel. Beräkningen är gjord och baseras enbart på den senaste tillgängliga årsredovisningen. För mer information kontakta ansvarig fastighetsmäklare.
Föreningen äger fastigheten Morpheus 10 i Stockholms kommun, omfattande adressen Prästgatan 56 / Västerlånggatan 57. Morpheus 10 byggdes år 1929. Föreningen upplåter idag 9 bostadsrätter och 3 lokaler med hyresrätt. Föreningen klassas som oäkta då mindre än ca 60 % av intäkterna kommer från bostäder upplåtna till medlemmar. Föreningens lokaler inbringar cirka 1.150.000kr per år. Marken innehas med äganderätt dvs ej tomträtt. Föreningen har långfristiga skulder om 6.500.000kr.
Under 2024 amorterade man 1 miljon kronor på ett av föreningens rörliga lån. Man planerar dessutom att amortera ytterligare 500.000kr under våren 2026.
Inga planerade avgiftsjusteringar.
Tillträde enligt överenskommelse.
Alla stora investeringar är gjorda i närtid: tak, stammar, fasad, källare (tvättstuga), fönster.
Inga större renoveringar planeras de närmsta 10 åren.
Föreningen har en oexploaterad vind. Tillgång till nyligen renoverad takterrass med utemöbler och matplats sommartid.
Lägenheten är 78kvm enligt föreningens lägenhetsregister.
Gamla stan är Stockholms historiska centrum och uppbyggt på Stadsholmen. På 1600-talet revs de sista murresterna då Stora och Lilla Nygatan drogs linjerakt genom det tidigare myllret av smågator. Här bor du i bevarade hus klassade som riksintresse för kulturmiljövård av Riksantikvarieämbetet. Gamla Stan karaktäriseras av pittoreska små torg, kullerstensgator och vackra fasader. I Gamla Stan finns två matbutiker, den ena är välsorterade Munkbrohallen invid tunnelbanestationen samt Coop Nära vid Järntorget. Gamla Stan bjuder på ett mycket stort utbud av restauranger och mysiga caféer och det finns dessutom apotek och flera banker i området.
Som boende i Gamla Stan har ni mycket goda kommunikationer. Vid Munkbroleden ligger tunnelbanestationen, som trafikeras av både röd och grön linje, samt busslinje 3. Med 3:an är du på Slussen inom några minuter och kan där byta till flertalet busslinjer och Saltsjöbanan.
Köpa, sälja eller värdera bostad i Gamla Stan? Kontakta våra mäklare på Södermalm! Passa också på att anmäla dig till vår kostnadsfria söktjänst Boagenten som hjälper dig att hitta ditt drömboende.
Kontakta mäklaren om du behöver hjälp att ta fram en boendekalkyl.
När du köper din bostad genom Bjurfors kan du ansöka om bolån till en förmånlig ränta hos våra banksamarbetspartners Söderberg & Partners och SEB.
Ansvarig mäklare