-
Köpa
Köpa -
Sälja
Sälja - Hitta bostad
- Skapa bevakning
- Hitta mäklare
Attraktiv adress med låg avgift och garage i huset – Inflyttningsklart i toppskick!
Södermalm Sofia, Stockholm
*Inkl. värme och vatten. En obligatorisk avgift för bredband om 179 kr/mån tillkommer.
**Areauppgifter enligt uppmätning . Areauppgifter enligt lägenhetsförteckning: 33 kvm.
På Förhand ligger bostäder som av olika anledningar inte är ute till försäljning just nu men som kan komma att säljas om förutsättningarna är rätt.
Välkommen till en stilren och smart planerad bostad om 32 kvm, belägen på första våningen i ett hus uppfört 2019 av Urban Couture. Här möts du av modern design och genomgående kvalitativa materialval i en fastighet där både entré och gemensamma utrymmen håller hög klass.
Lägenheten är effektivt disponerad och erbjuder en tydlig känsla av en 1,5:a tack vare den avskilda sovdelen. Köket, från italienska Colombini, präglas av elegant design och är utrustat med moderna vitvaror som gör matlagningen både smidig och inspirerande. Det smakfullt helkaklade badrummet har en stilren och tidlös utformning med behaglig golvvärme samt egen tvättmaskin – en komfort som förenklar vardagen och skapar en lyxig hotellkänsla.
Föreningen är stabil och erbjuder sina medlemmar en generös takterrass – en perfekt plats för avkoppling eller sociala stunder. Avgiften är dessutom mycket låg, vilket ger ett ekonomiskt fördelaktigt boende. I huset finns garage med lediga platser och tillgång till laddstolpar. Andrahandsuthyrning kan beviljas under längre tid vid giltiga skäl.
Läget är fantastiskt, området har med sitt sjönära läge en unik kombination av vatten och stadsliv. Närheten till Nytorget är även påtaglig, promenera Katarina Bangata upp så når du hela SoFos utbud av restauranger, caféer, barer och folkliv! På kajen intill huset kan du ta gratisbåten till Hammarby sjöstad, eller färja till Djurgården och Nybrokajen och i närområdet finns flertalet parker att njuta av. Här kan du promenera längs med Hammarby sjös glittrande vatten hela vägen till Skanstull, ta en glass på vägen, njuta en picknick intill kajen och lyssna på det somriga ljudet av vågskvalp och båtliv. Under sommarhalvåret hålls populära Bondens marknad i närheten, med ett brett utbud av lokala delikatesser. Kommande tunnelbanestation kommer ligga en kort promenad bort vid Vintertullstorget. Station Sofia kommer ge dig endast en tunnelbanestation till Kungsträdgården.



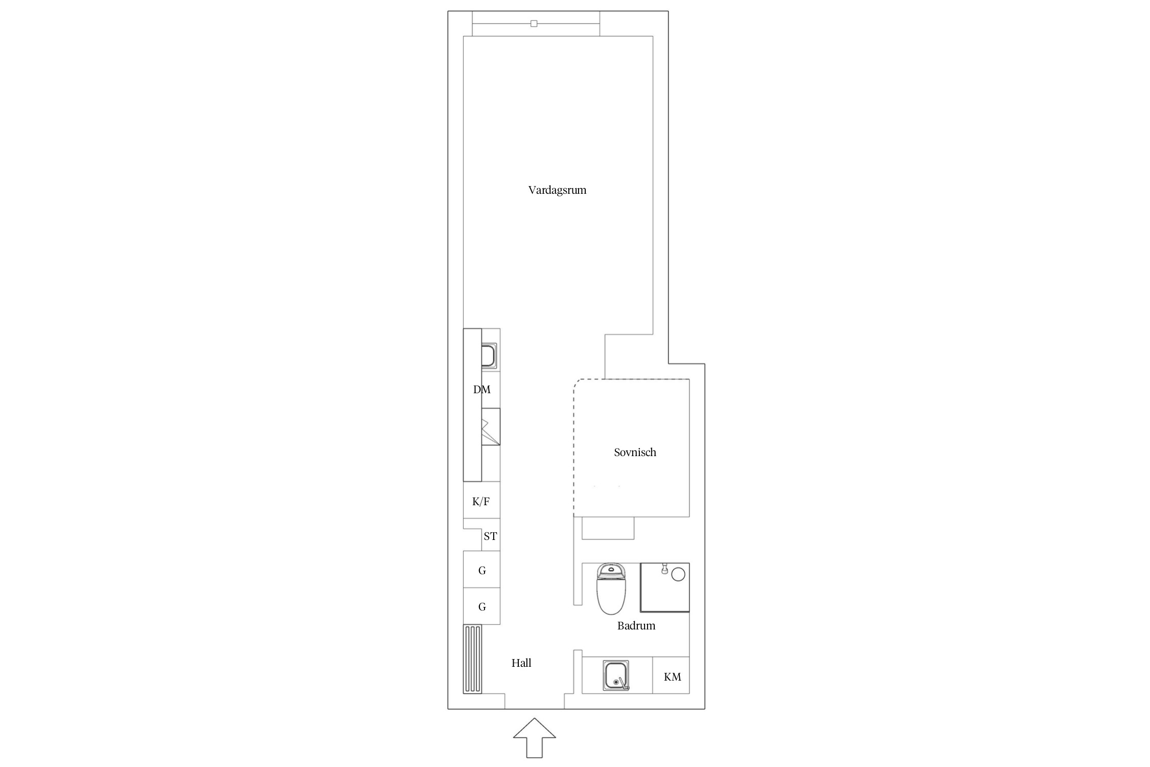
Planritning
*Areauppgifter enligt uppmätning . Areauppgifter enligt lägenhetsförteckning: 33 kvm.
Inkl. värme och vatten. En obligatorisk avgift för bredband om 179 kr/mån tillkommer.
Garage om 27 st garageplatser som nås med hiss.
Bostadsrättens indirekta nettoskuldsättning baseras på föreningens skulder/lån minus föreningens räntebärande tillgångar och likvida medel. Beräkningen är gjord och baseras på senaste tillgängliga årsredovisningen. För mer information kontakta ansvarig fastighetsmäklare.
*Betalas av köpare
Brf Vintertullstorget 1 är ett privatbostadsföretag enligt inkomstskattelagen och utgör därmed en äkta bostadsrättsförening. Föreningen har 77 bostadsrätter om totalt 4 388 kvm, 1 lokal om 911 kvm och ett garage om 697 kvm. Byggnadernas totalyta är 5996 kvm.
Vintertullstorget 1 är ett ombyggnadsprojekt beläget på Södermalm i Stockholm. En befintlig kontorsbyggnad från 1990-talet har omvandlats till ett samtida flerbostadshus. Genom att bevara kontorsbyggnadens robusta betongstomme, bygga om och addera tre våningar har 77 nya lägenheter skapats, liksom en livsmedelsbutik i bottenplan samt ett garage för cykel- och bilparkering.
I en tid präglad av massproduktion och prefabricering visar projektet potentialen i återbruk i kombination med högkvalitativa, skräddarsydda lösningar för att skapa arkitektur som förhåller sig nära till staden och sätter användaren i första rummet.
Det stilrena huset är arkitektritat av Urban Couture och byggdes år 2019 med noggrant utvalda och påkostade materialval. https://www.ucarkitekter.se/vintertull1
Ett av föreningens lån har lagts om från 1-årigt till rörligt med väsentligt lägre ränta vilket kommer påverka föreningens ekonomi positivt.
Garage om 27 st garageplatser som nås med hiss.
Föreningen har en takterrass som föreningens medlemmar kan nyttja. Härifrån erbjuds en oslagbar vy över Stockholms innerstad. Det finns även en trevlig innergård. Förråd finns på samma våningsplan som lägenheten.
Södermalm är ett av Stockholms mest populära områden med flera olika centrum, här finns något för alla. Söder erbjuder Stockholms första moské, Mosebacke, Münchenbryggeriet, Nytorget och den hänförande utsikten från Fjällgatan och Monteliusvägen.
Sofia präglas av vackra parker såsom Vitabergsparken, Blecktornsparken samt Lilla Blecktornsparken blandat med kulturhus, sekelskiftesfastigheter och nyproducerade bostäder. Området har senaste året blomstrat i form av nya och trendiga restauranger och butiker. Sofia ska få en egen tunnelbanelinje inom några år.
På Söder finns all tänkbar service, vårdcentral och läkarmottagning samt nära till Rosenlunds sjukhus, Ersta sjukhus och Södersjukhuset. Flera förskolor, skolor och gymnasium med olika inriktningar, både friskolor och kommunala.
Kommunikationerna är goda med tunnelbana, flera busslinjer och pendeltåg från Södra station. Slussen utgör en knutpunkt för kollektivtrafiken med Saltsjöbanan och i närheten går även färjorna till Djurgården.
Köpa, sälja eller värdera bostad på Södermalm Sofia? Kontakta våra mäklare på Södermalm! Passa också på att anmäla dig till vår kostnadsfria söktjänst Boagenten som hjälper dig att hitta ditt drömboende.
Kontakta mäklaren om du behöver hjälp att ta fram en boendekalkyl.
När du köper din bostad genom Bjurfors kan du ansöka om bolån till en förmånlig ränta hos våra banksamarbetspartners Söderberg & Partners och SEB.
Ansvarig mäklare