-
Köpa
Köpa -
Sälja
Sälja - Hitta bostad
- Skapa bevakning
- Hitta mäklare
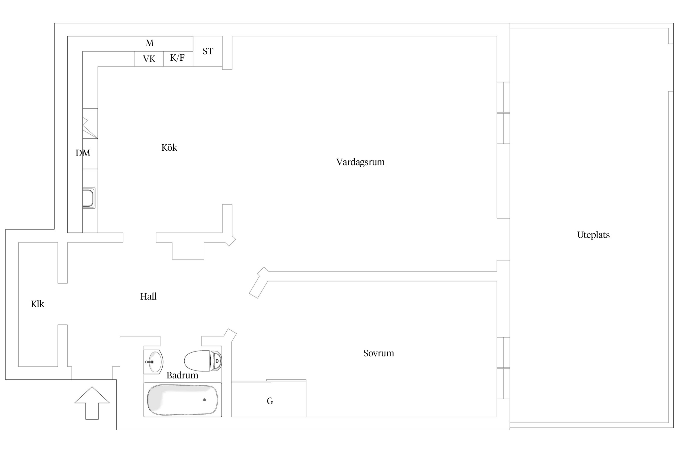
Elegant tvåa med öppen planlösning och generös uteplats.
Vasastan, Stockholm
*Inkl VA och värme
**Lägenhetsregistret
Fyll i formuläret nedan så hjälper vi dig!



I vidsträckta Vasastan ryms Birkastan, områdena Röda bergen, Atlas, Sabbatsberg och Sibirien, ett öknamn från 1800-talet när området låg i stadens ytterkant. Nu växer området ytterligare i och med byggnationen av Norra stationsområdet som beräknas vara färdigt år 2025.
Stadsdelen började växa fram under senare delen av 1800-talet, innan dess präglades området av landsbygd. Kvarteren låg i Vasagatans förlängning och fick därför namnet Vasastan 1926. Stockholms Stadsbibliotek invigdes i mars 1928. Vasaparken är stadsdelens finaste och mest populära grönområde. August Strindberg tillbringade sina första år i livet i Vasastan och Astrid Lindgren bodde i Vasastan under 70 år, främst i lägenheten på Dalagatan med utsikt över Vasaparken.
En populär del av Vasastan är Birkastan med sina gemytliga kvarter mellan S:t Eriksgatan, Karlbergsvägen, Norrbackagatan, Norra station och Rörstrandsgatan.
I Vasastan finns förutom de stora butikskedjorna också många trevliga småbutiker med olika karaktär och specialiteter. Här finns också gott om kaféer, kvarterskrogar och restauranger. I övrigt finns här all tänkbar service med vårdcentraler, Odenplans läkarhus, bvc, närakut och specialistvård. Här finns också många förskolor, skolor och gymnasium med olika inriktning i både kommunal och privat regi.
Inom stadsdelen finns flera busslinjer och nyöppnade Citybanan som är en gemensam station för både tunnelbana och pendeltåg vid Odenplan. Flygbussarna stannar vid S:t Eriksplan.
Köpa, sälja eller värdera bostad i Vasastan? Kontakta våra mäklare i Vasastan! Passa också på att anmäla dig till vår kostnadsfria söktjänst Boagenten som hjälper dig att hitta ditt drömboende.