-
Köpa
Köpa -
Sälja
Sälja - Hitta bostad
- Skapa bevakning
- Hitta mäklare
Rymlig villa med högt, fritt och soligt läge
Näsbypark, Täby
*Mätprotokoll
Areauppgifter enligt taxeringsinformationen, boarea 164 kvm samt biarea 51 kvm
På Förhand ligger bostäder som av olika anledningar inte är ute till försäljning just nu men som kan komma att säljas om förutsättningarna är rätt.
Välkommen till en rymlig 2-plansvilla med högt, fritt läge och sol hela dagen på en trivsam återvändsgata i Näsbypark. Husets dryga 200 kvm boyta ger ett generöst boende med 7 rum, varav 5-6 sovrum. Tomten om 2 100 kvm är en av få riktigt stora tomter som finns kvar i Näsbypark. Huset har gott om förvaring med hel vind, garage och tillhörande bod.
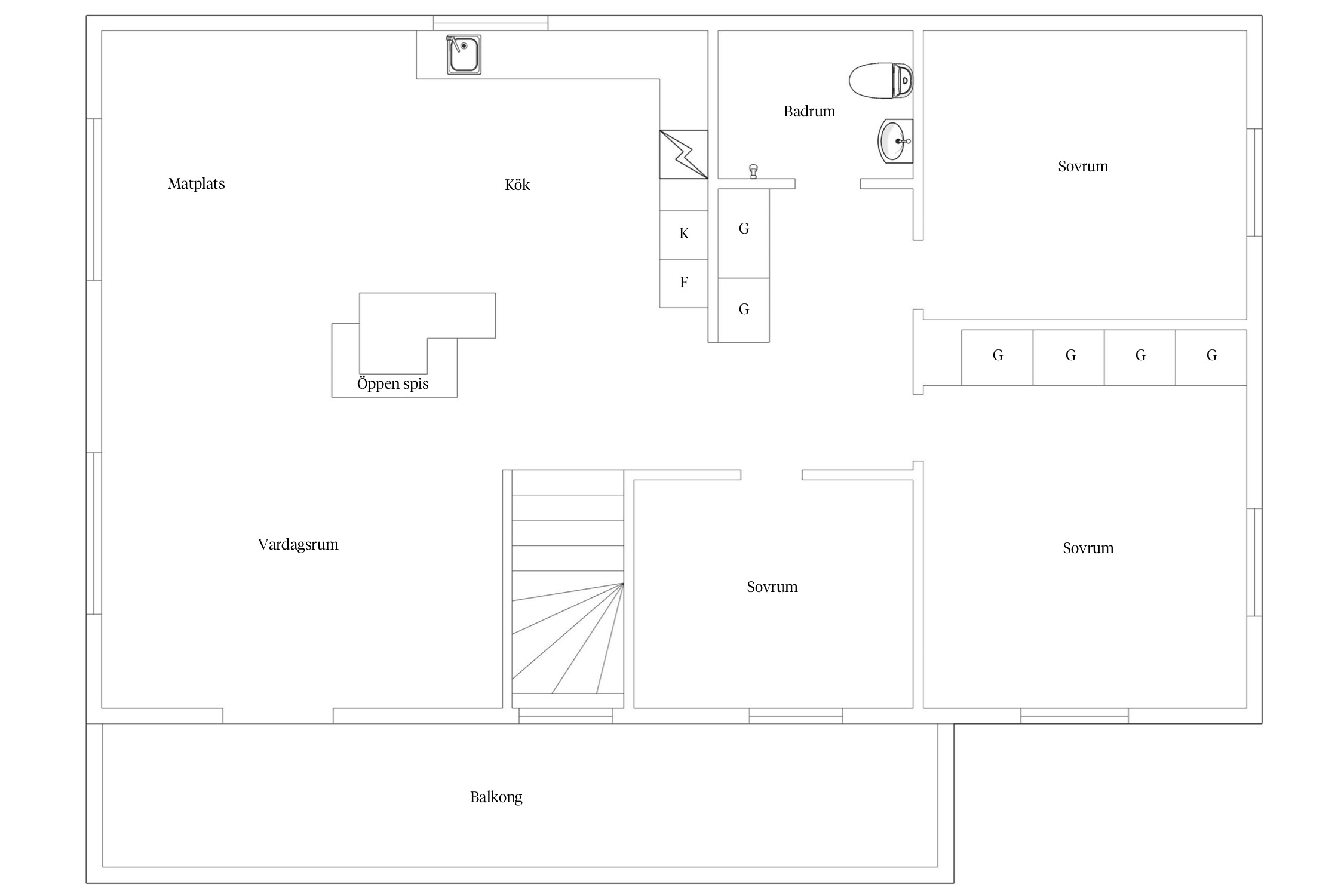
Husets planlösning
På entréplan möts du av en stor välkomnande hall med kapprum som har originaldetaljer från 50-talet. Där finns gott om förvaring. På detta plan finns två-tre sovrum, en praktisk gäst-wc samt ett stort helkaklat badrum med tvättstuga.
En vackert rundad trappa leder upp till övervåningen där du möts av en öppen social planlösning med kök, matplats och vardagsrum med öppen spis. Stora fönster ger vackra ljussläpp under hela dagen. Från vardagsrummet leder franska dörrar ut till den stora balkongen under tak som sommartid fungerar som ett extra vardagsrum. Tre sovrum och ett kaklat badrum ligger grupperade i den andra delen av övervåningen.
Fakta om hus och tomt
Villan är från 1951 med putsad fasad. Den har bergvärme, energiglas på samtliga vackra originalfönster samt nya avloppsrör hela vägen ut till kommunens rör på gatan. Allt är ett stort plus för framtida trygghet.
Den generösa tomten angränsar mot ett fint skogsområde på baksidan och har på framsidan en lummig grönskande trädgård med äppelträd och många perenner såsom syrén och syrénhortensior. Här finns gott om plats för lek, odling och avkoppling i en insynsskyddad miljö. På tomten finns även ett separat garage, en tillhörande bod, en stor cykelparkering under tak samt en rymlig uppfart med plats för flera bilar. Det finns även gott om plats för uppställning av båten. Här bor du i ett hem som kombinerar generösa ytor, naturnära omgivningar och ett av Täbys mest attraktiva lägen – ett boende att trivas i under lång tid framöver.
Härligt läge på Högomsvägen
Högomsvägen är en lugn och trivsam återvändsgata med få bilar. Huset ligger nästan på toppen av kullen, med högt fritt läge. Bakom huset vetter tomten mot ett litet skogsparti, som sedan möter Centralparken. I början av sista backen upp mot huset ligger ett kulturminnesmärkt område med vikingagravar. Detta är en väg och ett läge som är skyddat mot tomtavstyckningar.
Från huset är det promenadavstånd till flera skolor, allt mellan förskolor till högstadieskolor. Det tar 7 min att gå till Roslagsbanan, station Näsby allé, som tar dig in till Tekniska högskolan på 20 minuter. Två mataffärer, Näsbypark Centrum med bibliotek och restauranger ligger inom samma promenadavstånd. På 10 minuter är du nere vid vattnet, badbryggan, båthamnen, Näsby slott och det lilla lokala stenugnsbageriet med tillhörande café.
Sammanfattning
- Välplanerad villa med massor av utrymme för familjeliv. 5-6 sovrum och mycket förvaring
- Högt fritt läge, vackra ljusinsläpp och sol hela dagen
- Vackra originalfönster med nya energiglas, bergvärme, nya avloppsrör
- Fina sociala ytor med vardagsrum, kök, matplats i öppen planlösning samt ett extra rum på sommaren i form av stor balkong i anslutning till vardagsrum
- Stor lummig insynsskyddad tomt med flera uteplatser, trädgård på framsidan med fruktträd och perenner, ett vildare skogsparti på baksidan och massor av plats för lek och t ex lekstuga, trädhus och studsmatta
- Generösa förrådsutrymmen med bod, garage, hel vind samt cykelgarage
- Granne med naturen och samtidigt promenadavstånd till tåget, skolor/dagis, vattnet och mataffärer
Om Näsbypark
Näsbypark är ett eftertraktat område tack vare sin kombination av närhet till stan, bad och vatten, golfbana, naturområden samt en lugn och grönskande villamiljö. Området präglas även av Näsby Slott och Centralparken, som bidrar till en unik och trivsam atmosfär.
Det finns härliga promenad- och löparstråk i Altorpskogen eller längs med vattnet bort mot Djursholm och Stocksund, eller norrut mot Viggbyholm. Djursholms golfbana ligger på promenadavstånd, som sommartid erbjuder golf och vintertid uppskattas av längdskidåkare. Goda bussförbindelser finns till Täby centrum, stan samt norrut mot Vaxholm, Norrtälje och skärgården.



Näsbypark 67:6
*Mätprotokoll
Areauppgifter enligt taxeringsinformationen, boarea 164 kvm samt biarea 51 kvm
2026
- Relining av gamla avloppsrör i huset och ut till gatan, utfört av entreprenör
2023
- Installation av nya 4 mm isolerglas (s k energiglas) på fönstren, utfört av entreprenör
2020
- Ny papp läggs på garagetaket
2013
- Badrum samt wc på entréplanet renoveras, utfört av entreprenör.
- Balkongen renoveras med nytt tätskikt och ny gjutning ovanpå tätskiktet, utfört av entreprenör
- Altanen byggs, utfört av entreprenör
2010
- Nytt kök och nytt golv med vattenburen golvvärme installeras. I samband med renovering rivs vägg mot vardagsrum och matplats, allt arbete utfört av entreprenör.
- Nytt fönster med 3-glas isolerfönster i köket, utfört av entreprenör
- Ny elcentral med jordfelsbrytare samt elen gicks igenom, utfört av elektriker
2009
- Installation av bergvärme. Pumpen servades senast 2024
2004
-Yttertaket renoveras med ny papp, läkt och tegelpannor. Arbetet utfört av entreprenör på beställning av tidigare ägare
2001
- Badrum på övervåningen renoveras. Arbetet utfört av entreprenör på beställning av tidigare ägare
Övrigt
- Eldstaden på övre plan är sotad. Eldstaden på entréplan är inte sotad och heller inte använd på flera år
- Huset är löpande ytskiktsrenoverat
Garage
Kommunalt vatten, Kommunalt avlopp.
Byggnadsplan (1937-12-03)
Driftkostnader och elförbrukning är inhämtade från säljaren och bör endast ses som en uppskattning. Kostnaden kan variera och baseras på förbrukning och avtal.
Det finns 7 st pantbrev uttagna om sammanlagt 4 100 000 kr
Näsbypark är en eftertraktad del av Täby med blandad bebyggelse, här bjuds på allt från sekelskifte till toppmodernt med en extra betoning på 40- till 60-talsbebyggelse. Speciellt för Näsbypark är vattenkontakten - här börjar skärgården. Med båt från någon av småbåtshamnarna tar du dig lätt till såväl stan som det yttersta kustbandet. Med denna härliga kustlinje följer promenadstråk utmed vattnet, sandstrand och badbryggor samt vintertid oändliga skridskostråk när temperaturen tillåter.
Näsby Slott är vackert beläget vid Näsbyviken. Slottet byggdes 1665 och arkitekten var Nicodemus Tessin d.ä, som även ritade Drottningholms Slott. Det tillhörande stallet har anor från 1400-talet. Tidigare låg här Sjökrigsskolan men i dag används slottet som konferens- och festlokal, och är öppet för AW och middagar. Här finns även ett litet stenugnsbageri, precis vid vattnet med en stor nybyggd lekplats. Här finns även Sats.
Roslagsbanan har en av sina ändhållplatser i Näsbypark och med tåget nås stan på 20 minuter. Även bra bussförbindelser till tunnelbana i Danderyd, även nattetid. Näsbypark erbjuder sina boende ett trevligt modernt centrum med affärer, apotek, husläkare, m.m. Vid Näsby allé finns ICA med manuell fiskdisk till helgen, samt en lokal pizzeria.
Köpa, sälja eller värdera bostad i Näsbypark? Kontakta våra mäklare i Täby. Passa också på att anmäla dig till vår kostnadsfria söktjänst Boagenten som hjälper dig att hitta ditt drömboende.
Kontakta mäklaren om du behöver hjälp att ta fram en boendekalkyl.
När du köper din bostad genom Bjurfors kan du ansöka om bolån till en förmånlig ränta hos våra banksamarbetspartners Söderberg & Partners och SEB.
Ansvarig mäklare