-
Köpa
Köpa -
Sälja
Sälja - Hitta bostad
- Skapa bevakning
- Hitta mäklare
Ljus hörnlägenhet högt upp i huset – med inglasad balkong i sydostläge!
Tyresö Centrum, Tyresö
*Värme ingår i årsavgiften, bergvärme installerades 2013. VA-kostnaden ingår i årsavgiften. Samtliga lägenheter har en individuell elmätare och förbrukningen betalas av medlemmen. En preliminär avgift om 450 kr debiteras varje månad, och avräknas var 6:e månad mot verklig förbrukning.
**Area enligt bostadsrättsföreningen.
På Förhand ligger bostäder som av olika anledningar inte är ute till försäljning just nu men som kan komma att säljas om förutsättningarna är rätt.
Välskött förening - Garage - Inglasad balkong - Stilrena ytskikt
Välkommen till Axel Wennergrens väg 2 – en modern och välplanerad trea om 75 kvm, belägen högt upp i huset på våning 3. Bostaden är en hörnlägenhet med fönster i två väderstreck, vilket ger ett fantastiskt ljusinsläpp och en luftig känsla.
Här möts du av en stilfull interiör med parkettgolv och moderna, stilfulla ytskikt. Planlösningen är både social och funktionell med två bra sovrum, ett trivsamt kök i öppen planlösning mot vardagsrummet samt utgång till en inglasad balkong i soligt sydostläge – en perfekt plats för morgonkaffet i solen eller en avkopplande stund på kvällen.
Bostaden tillhör en välskött förening med en trevlig innergård och garage i föreningen. Här bor du i ett lugnt och omtyckt område i Tyresö, med närhet till både natur, service, kommunikationer och skolor.
Det här är ett hem att trivas i – smakfullt renoverat, smart planerat och med ett fantastiskt läge högt upp i huset.
Välplanerad och ljus lägenhet med öppna ytor, rymliga sovrum och väldigt bra förvaringsmöjligheter i klädkammare och i garderober. Stilfulla ytskikt med ett enhetligt parkettgolv som löper genom hela bostaden. Nya innerdörrar samt nymålade ytskikt i hall, vardagsrum och kök. Dimmerbelysning är installerad på de flesta brytarna – perfekt för att skapa rätt stämning beroende på tid och tillfälle.
Entré
Välkomnande entré med
- –
Idealisk osv….
Välkomnande entré med generös förvaring i en extra djup garderob bakom skjutbara spegeldörrar i full takhöjd– idealisk för smart förvaring av ytterkläder och skor. Dessutom ingår ett separat förråd som löser övriga förvaringsbehov.
Kök
Det smakfulla köket bjuder på öppen planlösning mot vardagsrummet och skapar en härlig, social atmosfär. Den centralt placerade köksön har sittplatser för två och är perfekt för såväl vardagliga måltider som mingel – dessutom utrustad med vinkyl som ger det lilla extra.
Köket har genomgått en uppgradering med nya köksluckor och fronter samt ett vitrinskåp med belysning – en fin detalj som lyfter helhetsintrycket.
Den rostfria kyl och frysen (Siemens, 2025) smälter elegant in i helheten, och den moderna induktionshällen, tillsammans med nyinstallerad belysning under skåpen och spotlights i taket, gör köket både stilfullt och funktionellt.
Vardagsrum
Det öppna vardagsrummet bjuder in till umgänge och avslappning med generösa ytor och fint ljusinsläpp från stora fönsterpartier. Den öppna planlösningen skapar en naturlig koppling till både kök och balkong, vilket gör det enkelt att leva socialt. Från rummet kliver du direkt ut till den inglasade balkongen – en härlig plats att njuta av morgonkaffet, eftermiddagssolen eller sena kvällar, oavsett årstid. Stilsäkra materialval och ett enhetligt golv förstärker det moderna intrycket.
Master bedroom
Rofyllt och elegant master bedroom med generösa förvaringsmöjligheter
Sovrummet erbjuder en harmonisk atmosfär med plats för stor dubbelsäng och tillhörande möbler. Den mörka fondväggen skapar en snygg kontrast mot de ljusa textilierna och det naturliga ljusinsläppet från det stora fönsterpartiet. Här finns en rymlig garderob som rymmer allt du behöver – både snyggt och praktiskt.
Sovrum
Sovrum 2 har ingång från hallen. Idag används rummet som tv-rum och här ryms säng och skrivbord.
Badrum
Stilrent helkaklat duschrum med ljust beige klinkergolv och vita väggar som skapar en fräsch och tidlös känsla. Utrustat med vägghängd wc, dusch med glasdörrar samt handfat med kommod som ger både stil och förvaring. Praktisk tvätthörna med kombinerad tvättmaskin och torktumlare samt överskåp som rymmer det mesta



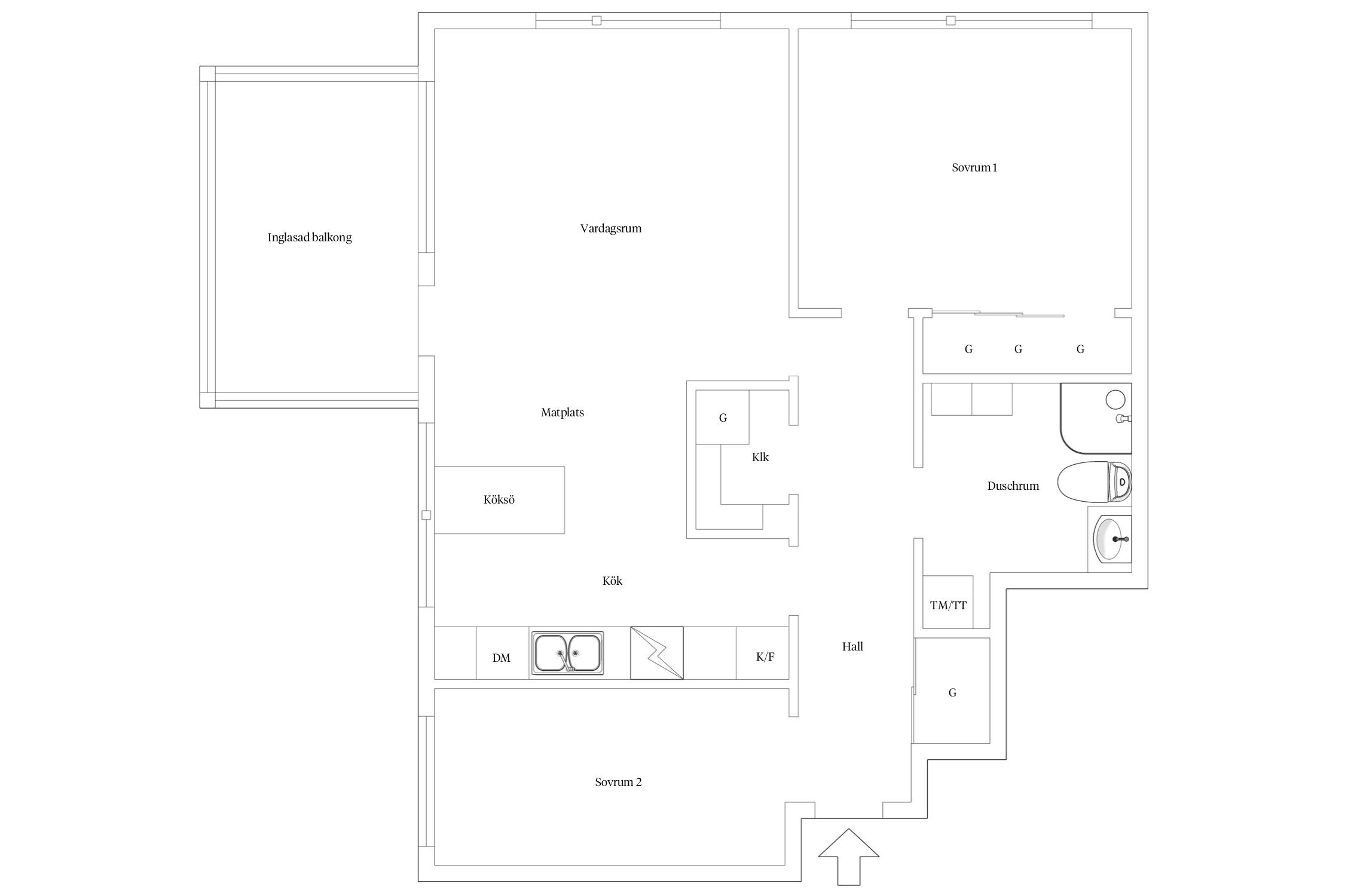
Planritning
Järnet 9
*Area enligt bostadsrättsföreningen.
Värme ingår i årsavgiften, bergvärme installerades 2013. VA-kostnaden ingår i årsavgiften. Samtliga lägenheter har en individuell elmätare och förbrukningen betalas av medlemmen. En preliminär avgift om 450 kr debiteras varje månad, och avräknas var 6:e månad mot verklig förbrukning.
Badrum- Ny kommod 2024 samt handfat och kran.
Kök: Nya köksluckor, fronter och 1 st köksskåp med vitrin och belysning.
Induktion spishäll 2021. Kyl/frys 2025 Siemens. Ny belysning under köksskåpen samt spotlight i taket. Köksö med plats för 2 pers, vin-kyl,
två stora lådor och ett 40 cm skåp. Ny kökskran med ”duschenhet”.
Lägenheten: Nya innerdörrar 2022. Ommålning i hall, vardagsrum samt kök.
Dimmerbelysning på de flesta brytarna. Garderobsinredning ”Boaxel” från IKEA 2022 i sovrummet.
Skjutdörrar med bronsfärgat spegelglas 2024, bakom skjutdörrarna finns 5 st hyllor för förvaring.
Markis elmanövrerad: vardagsrum, sovrum och kök 2022.
Taklister i vardagsrum, hall och TV-rum.
Inglasad balkong mot sydost
Föreningen har 66 garageplatser som medlemmar kan hyra. Platserna har ingen anknytning till lägenheterna, utan medlemmen får ställa sig i kö för en plats. För närvarande är avgiften för en garageplats 650kr/månad. Parkeringsplats utomhus kan hyras av någon av föreningens två grannföreningar. Utanför husen finns sex stycken besöksparkeringar. Dessa besöksparkeringar är begränsade till 4 timmar med P-skiva.
Bostadsrättens indirekta nettoskuldsättning baseras på föreningens skulder/lån minus föreningens räntebärande tillgångar och likvida medel. Beräkningen är gjord via Bopedia. För mer information kontakta ansvarig fastighetsmäklare.
*Betalas av köpare
Föreningen ingår i en gemensamhetsanläggning avseende
gemensamhetslokal, grönytor, gångvägar, ledningar och gästparkeringar.
Ekonomisk förvaltning och lägenhetsregister sköts av Fastum. Styrelsen är ansvarig för teknisk förvaltning.
Det finns ett förråd tillhörande varje lägenhet i föreningen. Förrådet finns på bottenplanet i respektive hus.
Föreningens medlemmar tecknar själva bostadsrättstillägg i sina hemförsäkringar.
2013- bergvärme
Föreningen har 66 garageplatser som medlemmar kan hyra. Platserna har ingen anknytning till lägenheterna, utan medlemmen får ställa sig i kö för en plats. För
närvarande är avgiften för en garageplats 850 kr/månad. I garaget finns ett antal laddboxar för elbil/laddhybrid. Parkeringsplats utomhus kan hyras av någon av
föreningens två grannföreningar.
Föreningen har ett gruppavtal med Tele2 för grundutbud av TV-kanaler som ingår i den fasta månadsavgiften.
Bredband med fiberanslutning hos Bredband2 ingår i årsavgiften. Hastigheten på bredbandet är 1000/1000Mbit (hastighet ned/upp). Föreningen ansvarar endast för anslutningen in till lägenheten. Boende är själv ansvarig för att anordna en lämplig router samt eventuell kabeldragning inne i lägenheten.
Föreningen ingår i en gemensamhetsanläggning avseende gemensamhetslokal, grönytor, gångvägar, ledningar och gästparkeringar.
Föreningen har en tvättstuga lokaliserad i entréplanet i port 4. Tvättstugan är utrustad med tvättmaskiner, torktumlare, mangel och torkskåp med torkfläkt.
De tre bostadsrättsföreningarna på Axel Wennegrens Väg delar på en gemensamhetslokal i området. Lokalen kan även hyras av medlemmar för kortare stunder eller fulla dagar. I anslutning till entrén finns ett separat rullstols- samt barnvagnsrum. På bottenplanet i respektive hus finns även ett cykelrum.
Samtliga av lägenheters ytterdörrar är säkerhetsdörrar och samtliga entréer är utrustade med kodlås för ökad säkerhet. Elmätaren för din lägenhet sitter på samma våningsplan som din lägenhet, ute i skåpet till vänster bredvid hissen.
Tyresö Centrum har ett 60-tal butiker med både mataffärer och flera av de stora klädkedjorna samt restauranger och all annan tänkbar service. Här träffas man gärna, fikar och shoppar. Området består främst av bebyggelse från 1960-talet med flerfamiljshus och radhus. Både förskolor och grundskolor finns i närheten.
Härifrån är det också goda bussförbindelser till bland annat Stockholm city. Samtidigt är det nära till naturen. Golfbanan som är mycket omtyckt har nyligen utökats till 18-hålsbana. Här finns även simhall, rackethall, ridskola, ishall och flera gym.
Köpa, sälja eller värdera bostad i Tyresö? Kontakta våra mäklare i Haninge och Tyresö! Passa också på att anmäla dig till vår kostnadsfria söktjänst Boagenten som hjälper dig att hitta ditt drömboende.
Kontakta mäklaren om du behöver hjälp att ta fram en boendekalkyl.
När du köper din bostad genom Bjurfors kan du ansöka om bolån till en förmånlig ränta hos vår samarbetspartner SEB.
Ansvarig mäklare
Extra kontaktperson