-
Köpa
Köpa -
Sälja
Sälja - Hitta bostad
- Skapa bevakning
- Hitta mäklare
Minivilla 38 kvm totalarea, stor tomt, altan, jacuzzi samt plats för bilen på uppfarten!
Ingarö - Brunn, Värmdö
*I avgiften ingår uppvärmning, vatten och avlopp samt sophämtning
**Enligt bostadsrättsföreningen
På Förhand ligger bostäder som av olika anledningar inte är ute till försäljning just nu men som kan komma att säljas om förutsättningarna är rätt.
Mycket soligt belägen minivilla på 38 kvm totalarea med stor tomt, altan, jacuzzi samt parkeringsplats. Funktionellt och välplanerat. Njut av att lätt kunna vistas utomhus, ha sin bil vid boendet samt bo nära både natur, hav och service. Gångavstånd till Brunn med buss, affärer, skola och träningsmöjligheter. Ta ett dopp i Fladenviken eller varma Återvallssjön . Gott om bär och svamp i de vackra skogarna som ligger precis intill.
Nära till både badstränder och insjöar. Gångavstånd till Ingarö kyrka, Kulturstigen vid Pilhamn och den mysiga Trollskogen längs Kolströms kanal.
Ingarö har många fördelar förutom närheten till Stockholm så finns här ett av Storstockholms bästa havsbad, Björkviks havsbad. Trevlig restaurang både i Björkvik och Ingarö Golfklubb. Härliga strövområden finns över hela Ingarö. Björnö naturreservat är något utöver det vanliga.
Stor idrottsförening Ingarö IF, som är stora inom fotboll, innebandy, bordtennis och friidrott. Ingarö Golfklubb erbjuder två 18-håls golfbanor.
På promenadavstånd ligger flera förskolor samt Brunns skola f-9 och Fågelviks skola f-3. I Brunn finns bland annat även en välsorterad mataffär med stort ekologisk och närodlat utbud, bensinmack, café och frisör.
Bra kommunikationer med buss till Slussen som tar ca 25 minuter.
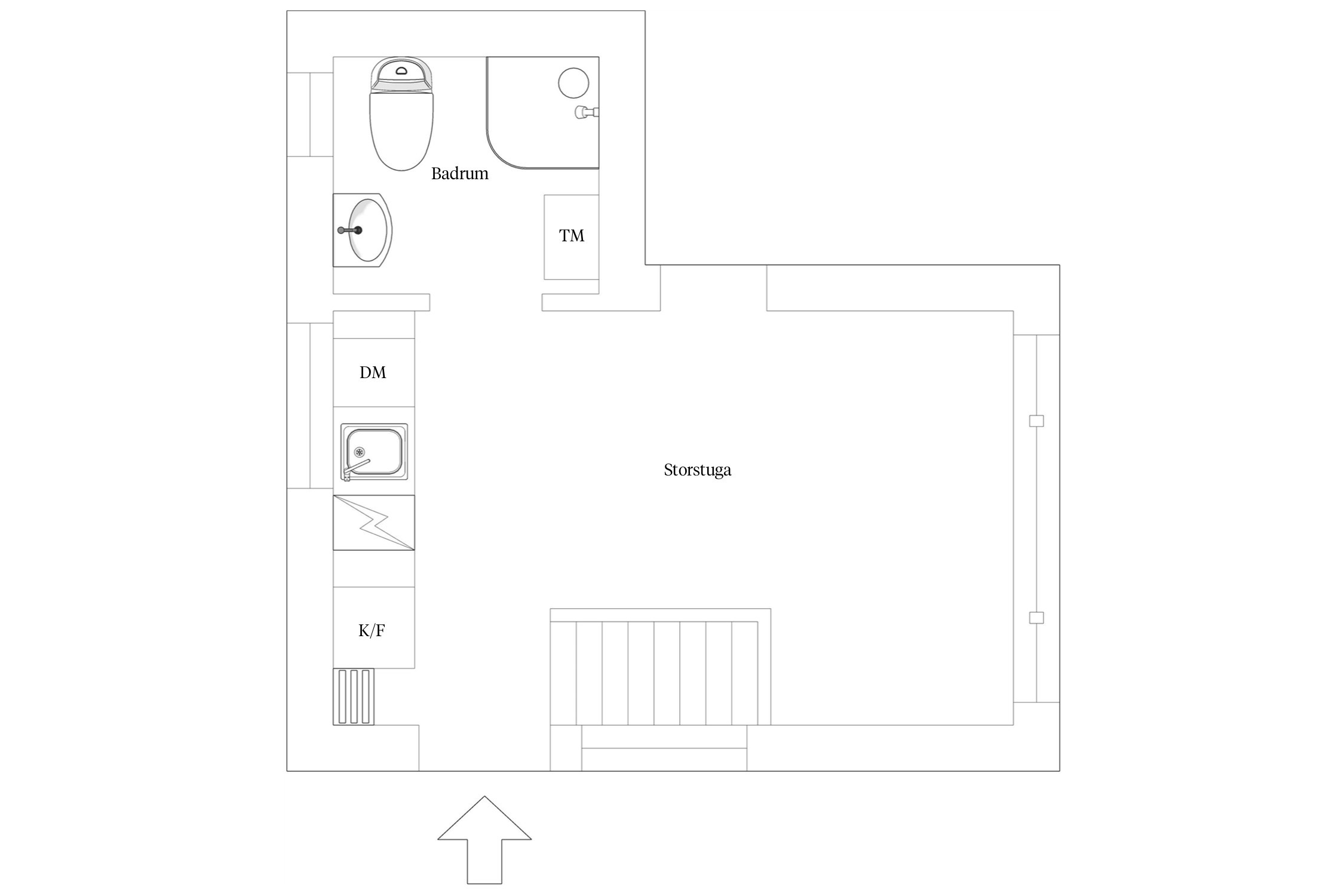
Entréplan i öppen planlösning. Kök med kyl/frys, fläkt, diskmaskin, häll och ugn. Ekparkett och ljust målade väggar. Helkaklat badrum. Spotlights i tak. Här finns även tvättmaskin. En trappa ner stort sovrum om drygt 18 kvm, även här ekparkett och ljust målade väggar. Här finns även förråd/klädkammare, ljust målade väggar och klinker på golv.
Välkommen till denna väldigt trevliga bostad på Gamla Brunnsvägen.



Entréplan
Nedre plan
*Enligt bostadsrättsföreningen
I avgiften ingår uppvärmning, vatten och avlopp samt sophämtning
2023 ny tvättmaskin
2023 ny diskmaskin
Magisk uteplats som sträcker sig runt bostaden med sol från morgon till kväll!
Parkering finns till respektive lägenhet, gästplats finns
Open infra via föreningen
Relevant andelstal gällande andel av årsavgift har ej gått att få fram från föreningen eller förvaltaren ännu.
Övrigt avser fiber
Parkering finns till respektive lägenhet, gästplats finns
Ingarö räknas som Sveriges 16:e största ö. Ingaröbron över Kolström utgör numera förbindelse till fastlandet vilket markant ökat antalet åretruntboende. Det fanns dock bofast befolkning på Ingarö redan på bronsåldern. Några av de nuvarande bostadsområdena är Lövhamra, Brunn, Fågelvik, Ingaröstrand, Återvall, Långvik, Björkvik, Fagerholm, Enkärret, Johannesdal, Mörtviken och Lillängsdal.
På Ingarö finns både skolor och förskolor i bland annat Brunn och Fågelvik. I Brunn finns också Ingarö idrottsförening med fotboll och friidrott.
Ingarö erbjuder härlig natur med många strövområden och ett stort utbud av fritidsaktiviteter. Överallt är det nära till vatten med möjlighet till båtliv och sköna bad. Kolströms kanal som delar Ingarö mot Värmdösidan är en populär farled. På den södra delen av Ingarö finns fantastiska fjärdar som Ägnöfjärden, Nämdöfjärden och Ingaröfjärden.
Björviksbrygga och Björviks havsbad ligger längst ut på Ingarö och är populärt bland sportdykare. Här spelade man in delar av Sunes sommar 1993. I närheten ligger också Björnö naturreservat.
Köpa, sälja eller värdera bostad på Brunn, Ingarö? Kontakta våra Bjurfors mäklare i Värmdö! Passa också på att anmäla dig till vår kostnadsfria söktjänst Boagenten som hjälper dig att hitta ditt drömboende.
Kontakta mäklaren om du behöver hjälp att ta fram en boendekalkyl.
När du köper din bostad genom Bjurfors kan du ansöka om bolån till en förmånlig ränta hos vår samarbetspartner SEB.