-
Köpa
Köpa -
Sälja
Sälja - Hitta bostad
- Skapa bevakning
- Hitta mäklare
Drömboende på Ingarö/Långvik – Exklusivt och smakfullt renoverat hem
Ingarö - Långvik, Värmdö
*Areauppgifter enligt taxeringsinformationen
Obligatorisk föranmälan via webben
Obligatorisk föranmälan via webben
På Förhand ligger bostäder som av olika anledningar inte är ute till försäljning just nu men som kan komma att säljas om förutsättningarna är rätt.
Arkitektritad drömvilla i Långvik med garage
Välkommen till detta fantastiska hem på Gubbdalsvägen 8 – ett exklusivt och smakfullt renoverat hem i hjärtat av vackra Långvik på Ingarö. Här får du uppleva ett boende utöver det vanliga, där stilren arkitektur möter funktionalitet och naturskön omgivning i perfekt harmoni. Med en total boyta på 247 kvm och en generös tomt på 2 480 kvm, erbjuder detta hem både rymd och komfort, samt närhet till skärgårdens bästa kvaliteter. Huset är väldigt energieffektivt och har energiklass B som ger grönt bo lån.
Villan är genomgående modern med noggrant utvalda material och en öppen planlösning som präglas av ljus och rymd. Stora fönsterpartier suddar ut gränsen mellan ute och inne och släpper in det naturliga ljuset året om.
Interiören bjuder på ett exklusivt och tidlöst uttryck, där varje detalj är noggrant avvägd – från de ljusa ytskikten, de stora fönsterpartierna till den vackra murade öppna spisen med insats, installerad 2022. Husets planlösning är både social och funktionell. Köket är rymligt och välutrustat, perfekt för dig som älskar att laga mat och umgås, med en stor matplats och loungeyta. Vardagsrummet är en självklar samlingsplats med utsikt mot trädgården och direkt access via stora skjutpartier till altan och uteplatser i soligt och insynsskyddat läge. Här finns gott om plats för både vardagsliv och festligheter.
Fastigheten har närhet till Långviks egna båthamn och badplats med sandstrand, vilket gör detta hem till en perfekt plats för både avkoppling och fritidsaktiviteter. Huset erbjuder även 4-5 sovrum, ett biorum och ett lekrum/gym, vilket gör det idealiskt för både stora familjer och sociala tillställningar.
Ett stort plus är det friliggande, nybyggda garaget på 40 kvm som uppfördes 2024. Det är isolerat och ger gott om utrymme för både bil, förvaring och hobbyverksamhet. Garaget nås via den nyanlagda vägen upp på berget.
Fastigheten har genomgått omfattande renoveringar och tillbyggnader mellan 2012 och 2025, inklusive helrenovering av den äldre husdelen, nybyggnation av en stor arkitektritad tillbyggnad samt uppdateringar av värme- och ventilationssystem. Idag värms huset upp med en effektiv luft/vattenvärmepump från Nibe, och ventilationssystemet är ett FTX-system – allt för att skapa ett energieffektivt och behagligt inomhusklimat. Energiklass B vittnar om låg energiförbrukning och modern standard.
Husets belysning styrs av Plejd och dubbla fiberuttag i alla rum.
OMRÅDET
Långvik är ett mycket lugnt och omtyckt område med stor del permanentboende. Populär förskola finns alldeles i närheten. Gångavstånd är det även till härligt bad med brygga och sandstrand i Säbyviken. Som fastighetsägare har du rätt till båtplats genom samfällighetsföreningen Ingarö-Långviks hamn. Naturreservatet Långviksträsk bjuder på vildmark inpå knuten. Här häckar fiskgjusen varje år på orörd mark. Vill man byta lugn mot storstad finns busshållplatsen endast ett par minuter bort. Med direktbuss tar man sig till Slussen på ca 40 minuter.
Ingarö har många fördelar. Vid Björkvik finns ett av Storstockholms bästa havsbad, samt många fina badstränder och insjöar. Skog och natur dominerar, bland annat i Björnö naturreservat, med härliga strövområden. Idrottsföreningen Ingarö IF är stor inom fotboll, innebandy och friidrott. Närhet till stad och närhet till grönska är en av Ingarös många fördelar. Ingarö Golfklubb erbjuder två 18-hålsbanor. Ingarö är Sveriges 16:e största ö. Besök gärna Ingarö Hembygdsförening för mer information om Ingarö. www.ingarofakta.se
Välkomna till denna villa med unika detaljer och arkitektritad tillbyggnad.
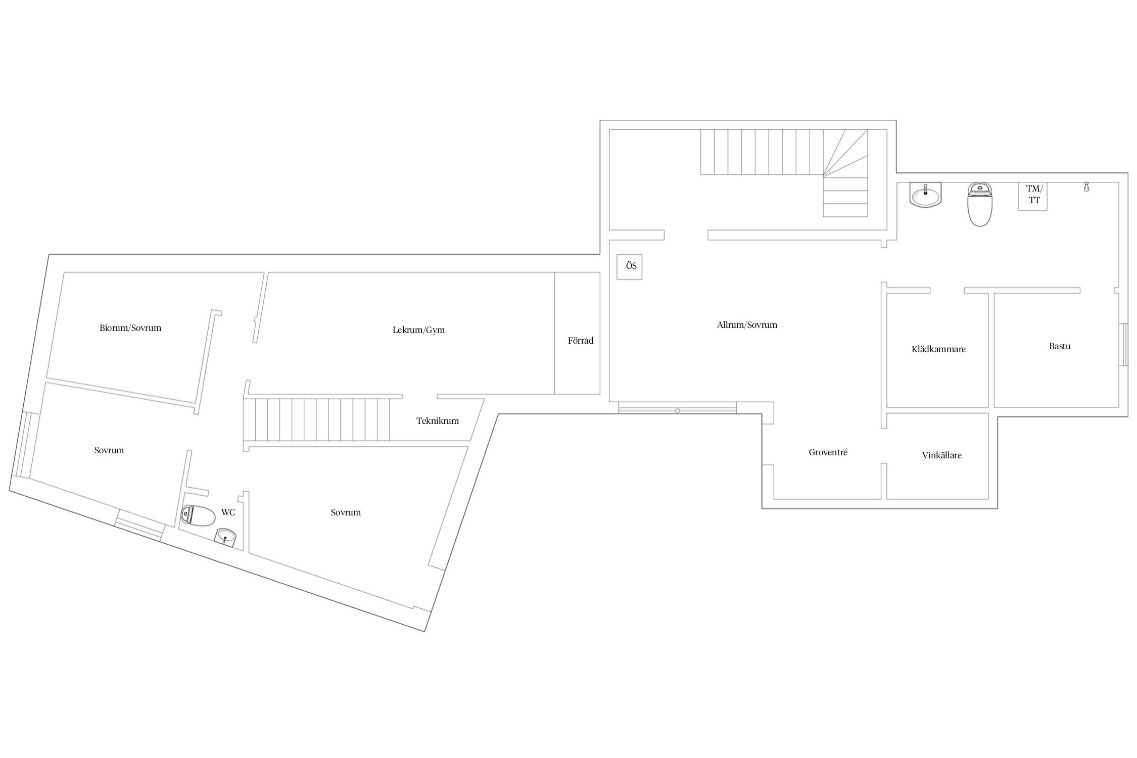
Hallen välkomnar med stort glastak, helglasade fönster och ytterdörr vilket ger ett magiskt ljusinsläpp. Hallen knyter samman den nya huskroppen med den gamla och bjuder in till stora sällskapsytor åt båda håll.
Till höger om hallen ligger den rymliga matplatsen och loungedelen som har en utgång till balkongen. Här ligger även köket i öppen planlösning. Köket går i stilrent vitt och är fullt utrustat med ugn, spishäll, kyl, fys och diskmaskin. Bakom köket finns två sovrum. Det ena sovrummet används idag som ett stort skafferi med utgång till altan.
Från matsalen leder trappan ner till en nedervåning som idag utgör bar och spelrum med separat vinkällare. Här finns en murad öppen spis med insats samt en groventré med stora garderober för förvaring. Nedervåningen har även ett större helkaklat badrum med dusch i grått och vitt med tvättmaskin och torktumlare, klädkammare och bastu.
Till vänster om hallen finner du ett stort vardagsrum med ett 9m långt glasparti som kan öppnas 4,5m där gränsen mellan ute och inne lätt suddas ut. Här finns också en stor öppen spis med helglasad insats som både skapar mys och värme. Ett stor modernt badrum med en duschvägg från golv till tak finns även här.
Trappa i valnöt leder ner till den privata delen som består av föräldrasovrum med akustikpanel i valnöt som skapar en tyst och sval miljö där en helglasad altandörr ger ljus. Ett barnrum med fönster i två väderstreck, ett biorum, ett lekrum/gym med inbyggt förråd samt en toalett med handfat. Under trappan ligger teknikrummet.



Alternativ planlösning
Ingarö-långvik 1:297
*Areauppgifter enligt taxeringsinformationen
2012-2013: Helrenovering av nedervåning. Plåtutlägg i väggar. Platon matta och uppreglat golv med luftspalt. Nya parkettgolv, panel på väggar. Nytt badrum, bastu och klädkammare.
2013: Murning av öppenspis med spiskassett Keddy.
2015: Nytt kök inklusive vitvaror. Nytt parkettgolv kök. Luftvärmepump installeras (används idag bara som AC på riktigt varma dagar). Ny el samt nytt elskåp med automatsäkringar. Bygger igen utvändigt förråd nedervåning och öppnar upp för ny trappa. Tvätt av tak.
2016: Nya golv övervåning (parkettgolv). Målning alla rum övervåning. Ny tvättmaskin och torktumlare Siemens.
2017: Ny altan på baksidan och mot granne inklusive altantrappa. Målning av fasad. Nya helglasade altandörrar samt byte av fönster vid kök. Avledning dagvatten samt dränering.
2018-2019: Anlägger ny väg upp på berget med el och V/A. Dränering från berg och anlägger stenkista på framsidan. Anlägger tomt framsida (gräsmattor, Thujor). Bygger om invändigt förråd till vinkällare.
2020: Bygger stenmur framsida. Anlägger rabatt ovan mur. Ny spishäll Bosch.
2022-2022: Arkitektritad tillbyggnad (Metropolis arkitekter) om 140kvm uppförs med altan som kopplas samman med befintliga altaner. Gjuten platta förberedd med radonslang. Vattenburen golvvärme i båda plan (Nibe Luft-/vatten pump). FTX med värmeåtervinning. Murad öppenspis med insats Spartherm A-3RL, 11,4kW med rökgasfläkt (fjärrstyrd). Ytterpanel ThermoWood, värmebehandlad furu. Glasparti 9m Schüco, öppning 4,5m. Takglaspati hall Schüco. Fönster, dörrar och altandörr Velfac. Belysning, ytterbelysning med solur Plejd. Nätverksuttag i alla rum.
2023: Stenmur vid altan. Nytt bastuaggregat.
2023-2024: Byggnation av isolerat Garage 40kvm. Såpaskurning av altaner. Anlägger trädgårdsland. Installerar vattenburna radiatorer i äldre delen.
2025: Målning av nedervåning (gamla delen). Målning gästrum.
Isolerat garage om 40kvm
Samfällt vatten samt BLAAB avlopp.
Ändring av detaljplan (2003-03-26) Byggnadsplan (1970-11-05)
Gemensamhetsanläggning: Värmdö ingarö-långvik ga:1 ändamål: Bad och/eller båtanläggning
Gemensamhetsanläggning: Värmdö ingarö-långvik ga:2 ändamål: Vägar, Grönområden, Bad och/eller båtanläggning
Gemensamhetsanläggning: Värmdö ingarö-långvik ga:3 ändamål: Vattenförsörjning
Last: Avtalsservitut Villa mm, 01-IM4-73/4223.1
Fiber
Avtalsservitut Villa mm
Det finns 6 st pantbrev uttagna om sammanlagt 4 391 100 kr
Ingarö räknas som Sveriges 16:e största ö. Ingaröbron över Kolström utgör numera förbindelse till fastlandet vilket markant ökat antalet åretruntboende. Det fanns dock bofast befolkning på Ingarö redan på bronsåldern. Några av de nuvarande bostadsområdena är Lövhamra, Brunn, Fågelvik, Ingaröstrand, Återvall, Långvik, Björkvik, Fagerholm, Enkärret, Johannesdal, Mörtviken och Lillängsdal.
På Ingarö finns både skolor och förskolor i bland annat Brunn och Fågelvik. I Brunn finns också Ingarö idrottsförening med fotboll och friidrott.
Ingarö erbjuder härlig natur med många strövområden och ett stort utbud av fritidsaktiviteter. Överallt är det nära till vatten med möjlighet till båtliv och sköna bad. Kolströms kanal som delar Ingarö mot Värmdösidan är en populär farled. På den södra delen av Ingarö finns fantastiska fjärdar som Ägnöfjärden, Nämdöfjärden och Ingaröfjärden.
Björviksbrygga och Björviks havsbad ligger längst ut på Ingarö och är populärt bland sportdykare. Här spelade man in delar av Sunes sommar 1993. I närheten ligger också Björnö naturreservat.
Köpa, sälja eller värdera bostad på Långvik, Ingarö? Kontakta våra Bjurfors mäklare i Värmdö! Passa också på att anmäla dig till vår kostnadsfria söktjänst Boagenten som hjälper dig att hitta ditt drömboende.
Kontakta mäklaren om du behöver hjälp att ta fram en boendekalkyl.
När du köper din bostad genom Bjurfors kan du ansöka om bolån till en förmånlig ränta hos våra banksamarbetspartners Söderberg & Partners och SEB.
Obligatorisk föranmälan via webben
Obligatorisk föranmälan via webben