-
Köpa
Köpa -
Sälja
Sälja - Hitta bostad
- Skapa bevakning
- Hitta mäklare
Charmig en-plansvilla med bergvärme och stor maskinhall!
Njurunda - Myre, Sundsvall
*Areauppgifter enligt taxeringsinformationen
På Förhand ligger bostäder som av olika anledningar inte är ute till försäljning just nu men som kan komma att säljas om förutsättningarna är rätt.
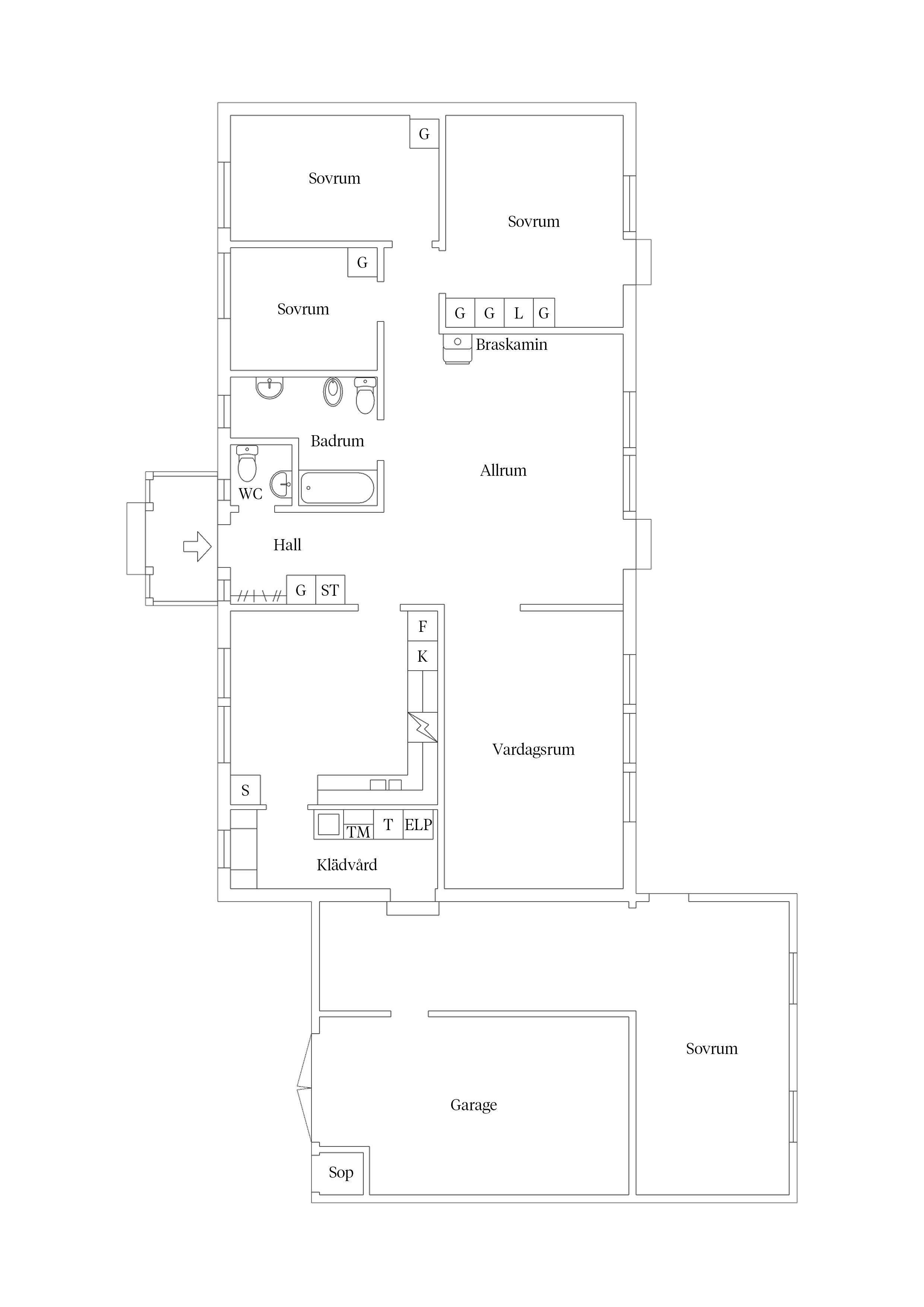
Välkommen till denna charmiga en-plansvilla belägen i det naturnära området Njurunda - Myre. Med sina 120 kvadratmeter erbjuder bostaden ett välplanerat utrymme för hela familjen. Här finner du ett rymligt allrum med kamin, ett funktionellt kök och ett inbjudande vardagsrum. De fyra sovrummen ger gott om plats för både familj och gäster. Badrummet har en dusch och det finns även ett separat toalettrum.
Villan värms upp med effektiv bergvärme, vilket bidrar till låga driftskostnader. Utanför väntar en stor och lummig tomt på 7571 kvadratmeter med en barnvänlig trädgård där körsbärsträd blommar, svartvinbärsbuskar, uthus och en friggebod står redo för lek och äventyr. Den trevliga uteplatsen ger många soltimmar och är perfekt för avkoppling eller umgänge.
På tomten finns dessutom en större industribyggnad med hög takhöjd som kan användas för verksamhet eller eget bruk , samt ett mindre garage med ingång direkt till huset för extra bekvämlighet.
Detta hem erbjuder ett harmoniskt boende i en lugn och grönskande miljö, idealiskt för den som söker närhet till naturen och en trygg plats för familjen.
Välkommen att upptäcka ditt nya hem i Myre!



Stångom 2:26
*Areauppgifter enligt taxeringsinformationen
Industrifastighet som idag används som garage/verkstad på ca 250 kvm där det finns två stora portar på vardera sida verkstan, där det går att driva egen verksamhet för den som önskar.
Area enligt säljaren.
Garage med ingång till huset.
Kommunalt vatten, Enskilt avlopp.
Fiber
Driftkostnader och elförbrukning är inhämtade från säljaren och bör endast ses som en uppskattning. Kostnaden kan variera och baseras på förbrukning och avtal.
Det finns 4 st pantbrev uttagna om sammanlagt 2 150 000 kr
Vill du köpa, sälja eller värdera bostad i Västernorrland? Kontakta våra mäklare i Sundsvall! Passa också på att anmäla dig till vår kostnadsfria söktjänst Boagenten som hjälper dig att hitta ditt drömboende.
Här hittar du alla våra lediga bostäder till salu i Västernorrlands län just nu!
Kontakta mäklaren om du behöver hjälp att ta fram en boendekalkyl.
När du köper din bostad genom Bjurfors kan du ansöka om bolån till en förmånlig ränta hos vår samarbetspartner SEB.
| Bud | Budgivare | Datum | Tid |
|---|---|---|---|
| 2 495 000 kr | Budgivare 2 | 2025-11-23 | 15:30 |
Ansvarig mäklare