-
Köpa
Köpa -
Sälja
Sälja - Hitta bostad
- Skapa bevakning
- Hitta mäklare
Praktiskt och rymligt radhus!
Sundsbruk, Sundsvall
*Areauppgifter enligt taxeringsinformationen
Föranmälan krävs.
På Förhand ligger bostäder som av olika anledningar inte är ute till försäljning just nu men som kan komma att säljas om förutsättningarna är rätt.
Välkommen till Ekebovägen 6C.
Här möts du av ett renoverat och rymligt radhus med inredd källare, där fina toner, generösa ytor och ett genomgående välskött skick skapar ett hem att verkligen trivas i.
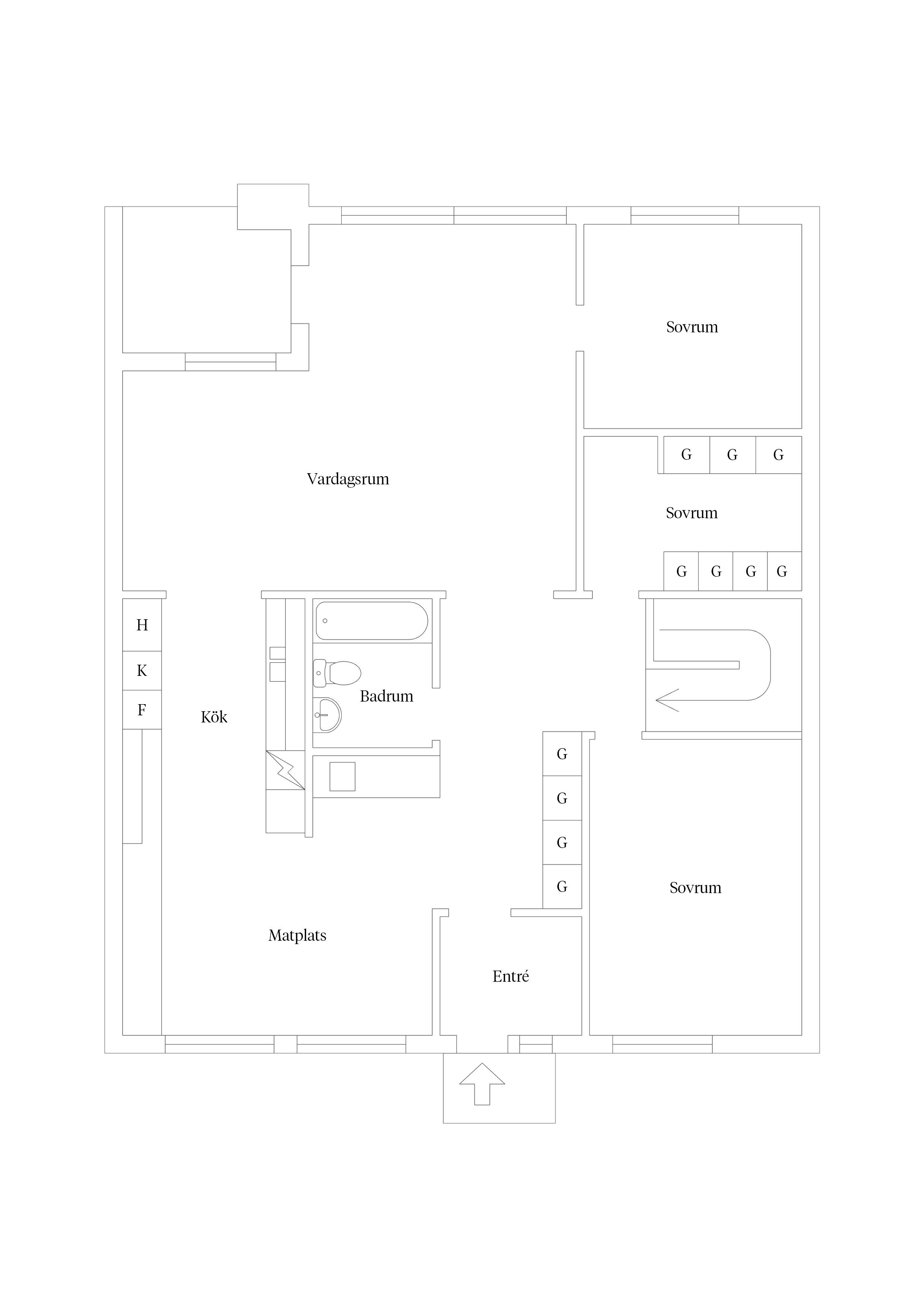
Entréplanet erbjuder en ljus och genomtänkt planlösning med smakfulla materialval och harmoniska färgtoner. Här finns ett trevligt kök med köksö och gott om förvaring, en stor hall med garderobsförvaring och extra dressing room. Et stort vardagsrummet har ett härligt ljusinsläpp som rymmer både soffgrupp och matsalsmöbel, här finns verkligen plats för hela familjen att umgås. På detta plan finns 2-3 sovrum.
En trappa ner möts du av ett renoverat källarplan med många användbara och flexibla ytor. Här finns flera extra sovrum, rymliga sociala sällskapsytor, klädkammare samt en rymlig tvättstuga med torkrum.
Baksidansträdgård är en lugn och trivsam plats för både vila och lek, medan framsidan erbjuder en välkomnande entré som ger ett mycket gott första intryck.
Här bor du i ett attraktivt läge med närhet till natur, skolor, goda kommunikationer och shopping i Birsta.
Varmt välkommen med din intresseanmälan!



Planritning entréplan
Planritning källare.
Näs 7:37
*Areauppgifter enligt taxeringsinformationen
Trädgårdsförråd
Kommunalt vatten, Kommunalt avlopp.
Plan och lättskött tomt.
Parkering och garage.
Stadsplan (1976-06-21)
Gemensamhetsanläggning: Sundsvall näs ga:1 ändamål: Vägar, Vattenförsörjning, Avloppsanläggning, Elledning och/eller belysning, Grönområden, Garage och/eller parkering
Fiber via servanet.
Fiber
I sammfällighetsavgiften ingår vatten, sopor, carport, motorvärmare, sparande till gemensam fond, snöröjning osv.
Vattenmätern avläsas 1 gång per år så då kan kostnaden öka eller minska beroende på hur mycket som förbrukats.
Det finns 10 st pantbrev uttagna om sammanlagt 1 827 750 kr
Vill du köpa, sälja eller värdera bostad i Västernorrland? Kontakta våra mäklare i Sundsvall! Passa också på att anmäla dig till vår kostnadsfria söktjänst Boagenten som hjälper dig att hitta ditt drömboende.
Här hittar du alla våra lediga bostäder till salu i Västernorrlands län just nu!
Kontakta mäklaren om du behöver hjälp att ta fram en boendekalkyl.
När du köper din bostad genom Bjurfors kan du ansöka om bolån till en förmånlig ränta hos våra banksamarbetspartners Söderberg & Partners och SEB.
Föranmälan krävs.
Ansvarig mäklare