-
Köpa
Köpa -
Sälja
Sälja - Hitta bostad
- Skapa bevakning
- Hitta mäklare
Välvårdat och Barnvänligt i omtyckta Barkarö
Barkarö, Västerås
*Areauppgifter enligt taxeringsinformationen
Boarea 138 kvm enligt uppmätning av besiktningsmannen.
Bokad visning.
Tomt mot allmänning- Populärt område - Bra planlösning - Bra skick - Bara att flytta in- Förskola och Skola runt hörnet - Ica to go
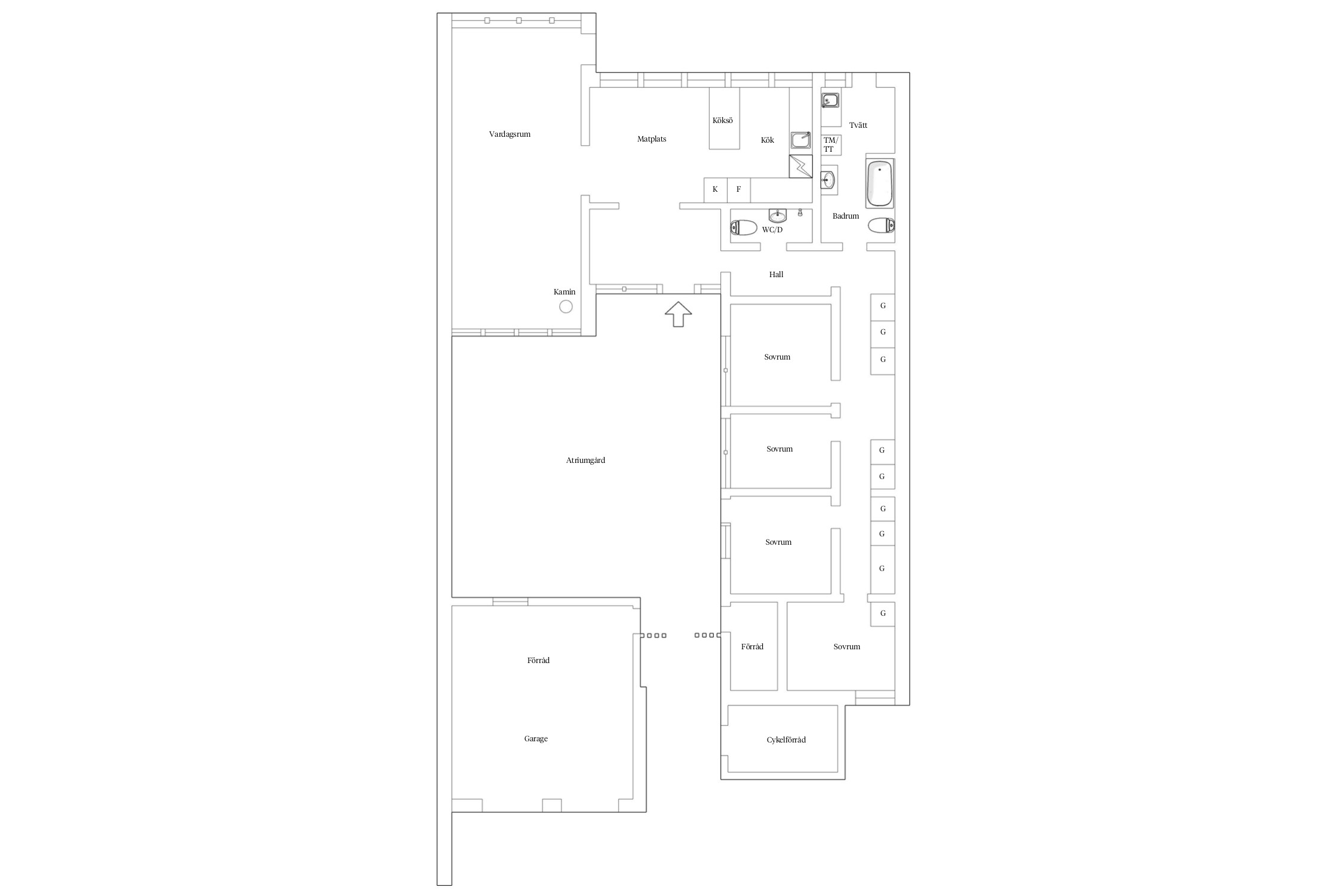
Ta chansen att förvärva ett välvårdat kedjehus i populära Barkarö. Fastigheten har ett suveränt läge med tomt mot allmänning. Fastigheten rymmer mycket mer än boytan skvallrar om med sin genomtänkta och socialt trevliga planlösning. Stort rymligt kök med matplats, vardagsrum med gott om yta, rejält grovkök/tvättstuga och tre -fyra bra sovrum. Två badrum med badkar/dusch. Entrésidan med dess atriumgård är perfekt för den som älskar sol och har ett mycket insynsskyddat läge. Baksidan har uteplats delvis under tak och trädgårdstomt i söderläge. Stora möjligheter för odling. Gott om förvaringsmöjligheter. Bo på en lugn gata med möjlighet till några av Västerås bästa för-/grundskolor samt med närhet till Fullerö golfbana, buss till Västerås City, cykelavstånd till badplats, fina lekparker och vackert naturskönt område. Ett barntätt och trevligt område. Här trivs man, länge!
Välkommen på visning!
Välkommen till detta trivsamma enplanskedjehus med en genomtänkt planlösning som passar perfekt för både familjeliv och sociala tillställningar. Här erbjuds generösa ytor, fint ljusinsläpp och en genomgående ljus och harmonisk interiör med fina golv och ljust målade väggar i nästan hela huset. Flera uppskattade detaljer som skapar en varm och inbjudande känsla .
Redan i den rymliga hallen möts du av goda avhängningsmöjlighteter och plats för möblering av behov. Vidare in i huset finner du ett stort ljust kök med matplats , där de generösa fönsterpartierna släpper in rikligt med dagsljus. Köket är fullt utrustat och stilrent med vita skåpluckor.
Från kök och matplats nås det fantastiska vardagsrummet, hemmets naturliga samlingspunkt. Här finns en vacker tegelvägg bevarad från husets byggår som ger karaktär och charm, samt en braskamin som skapar extra mysfaktor under årets kallare månader. Härifrån når du även altanen och den lättskötta trädgården i rakt söderläge. Perfekt för soliga dagar och långa sommarkvällar.
Bostaden erbjuder två badrum , båda utrustade med dusch eller badmöjligheter. Från det större badrummet nås en praktisk tvättstuga med grovkök, tvättmaskin och torktumlare samt egen utgång till baksidan- idealistiskt för att enkelt kunna hänga tvätt utomhus.
I den mer privata delen av huset ligger sovrummen samlade, vilket skapar lugn och avskild sovdel. Här finns fyra sovrum i rad, med möjlighet att anpassa efter behov, exempelvis som allrum eller hemmakontor. I anslutning finns även ett mycket funktionellt garderobssystem samt en mindre arbetsplats.
Ett hem som kombinerar funktion , charm och ett härligt solläge.



Barkaröby 15:5
*Areauppgifter enligt taxeringsinformationen
Boarea 138 kvm enligt uppmätning av besiktningsmannen.
Radonmätning utförd 2019-02-06 - 2019-04-07 med ett årsmedel: 60 Bq/m3
Garage / Förråd
Nya markiser 2015
Atriumgård på entrésidan, sol hela dagen
Altan delvis under tak, trädgårdstomt i rakt söderläge.,
Kommunalt vatten, Kommunalt avlopp.
Trädgårdstomt
Garageuppfart med plats för 2-3 bilar. Installerad laddbox.
Dubbelgarage.
Byggnadsplan (1979-11-26)
Fiber
Det finns 7 st pantbrev uttagna om sammanlagt 2 647 600 kr
Vill du köpa, sälja eller värdera bostad i Västmanland? Kontakta våra mäklare i Västerås! Passa också på att anmäla dig till vår kostnadsfria söktjänst Boagenten som hjälper dig att hitta ditt drömboende.
Här hittar du alla våra lediga bostäder till salu i Västmanlands län just nu!
Kontakta mäklaren om du behöver hjälp att ta fram en boendekalkyl.
När du köper din bostad genom Bjurfors kan du ansöka om bolån till en förmånlig ränta hos våra banksamarbetspartners Söderberg & Partners och SEB.
Bokad visning.
Ansvarig mäklare