-
Köpa
Köpa -
Sälja
Sälja - Hitta bostad
- Skapa bevakning
- Hitta mäklare
Idealiskt för den stora familjen
Bjurhovda, Västerås
*Areauppgifter enligt taxeringsinformationen
Bokad visning.
Generösa ytor - i naturnära miljö - med sju möjliga sovrum - och stort garage - Guldkullen
Gedigen och välbyggd enplansvilla om sex rum och kök med inredd källarvåning samt vidbyggt dubbelgarage. Här erbjuds ett mycket personligt hem med generösa ytor och stor flexibilitet – perfekt anpassat för både familjeliv och sociala tillställningar. Med en välplanerad boyta om 140 kvm, kompletterad av en rymlig biyta om hela 193 kvm, finns gott om plats att skapa många sovrum, arbetsrum eller hobbyutrymmen efter behov. Ett idealiskt boende för den större familjen eller för dig som önskar extra utrymme i vardagen.
Fastigheten är belägen på en friköpt hörntomt med naturtomtskaraktär om hela 1 338 kvm med ett insynsskyddat läge. Den lummiga trädgården gränsar till ett mindre skogsparti, vilket skapar en rofylld och privat miljö att njuta av.
samtidigt nära bekvämligheter. Med gångavstånd till förskolor och skolor är barnvänligheten ett stort plus. Här kan du verkligen skapa minnen och trivas länge.
Anmäl ditt intresse redan idag för att få veta mer om denna unika bostad på Guldkullen !
Planlösning
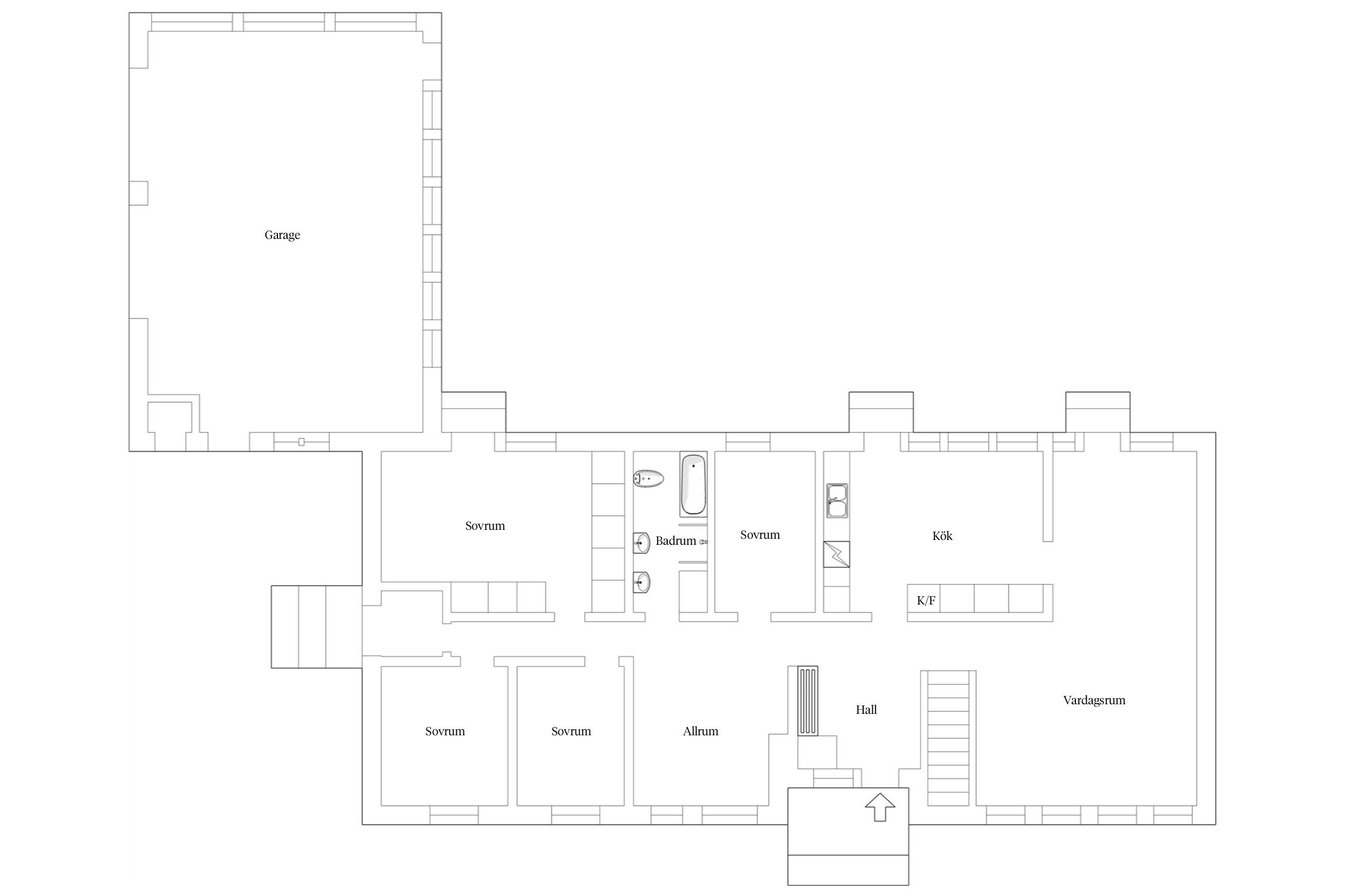
Entréplan:
Välkomnande hall med goda avhängningsmöjligheter via hatthylla. Här möts du av ljusa, tapetserade väggar och ett stilrent parkettgolv som skapar ett inbjudande första intryck. I anslutning finns ett praktiskt gäst-WC med fönster, utrustat med handfat, spegel och WC.
Till höger om hallen ligger det lättmöblerade vardagsrummet i vinkel. Rummet präglas av ett härligt ljusinsläpp från stora fönsterpartier i öst och väst. Här finns gott om plats för både soffgrupp och matsalsmöbel. Från vardagsrummet når man via balkongdörr en trivsam uteplats samt en insynsskyddad och lummig trädgård – perfekt för både avkoppling och sociala tillställningar.
Rakt fram från hallen öppnar det trivsamma köket upp sig, med ljusa ytskikt och en funktionell planlösning. Här finns grå kökssnickerier i kombination med bänkskivor i trä, rostfri diskbänk, samt kakel ovan arbetsytorna. Också köket har man balkongdörr mot trädgården.
Den maskinella utrustningen består av spis med häll/ugn, spisfläkt, diskmaskin, samt kyl och frys. Intill fönstret finns en trevlig matplats med utrymme för 6–8 personer.
Vidare i hallen till höger finns ett flexibelt rum som passar utmärkt som arbetsrum eller sovrum. Ytskikt i form av trägolv och ljus tapet.
Här finns i en garderob bakom dörren en lucka för nedkast för smutstvätt till tvättstugan i källaren.
Badrummet är utrustat med badkar, dusch-hörna, bidé, och dubbla handfat. Utrustat med plastmatta och kaklade väggar.
Mitt emot detta ett allrum med parkettgolv och ljus tapet som idag används som kontorsyta. Även användbart som tv/datahörna eller med mindre ombyggnad entrévåningens femte sovrum.
Längre in i bostaden mot baksidan av huset finner du ett rogivande master bedroom med plats för dubbelsäng och tillhörande möblemang. Förvaringsmöjligheterna är utmärkta tack vare flera garderober. Golv i form av plastmatta och väggar tapetserade med väv.
På vänster sida i hallen finns ytterligare två sovrum med plats för säng och sängbord. Båda sovrummen har målade tapeter i olika färger och praktiska golvytor.
Längst ned i hallen finns i gaveln av huset en grovingång.
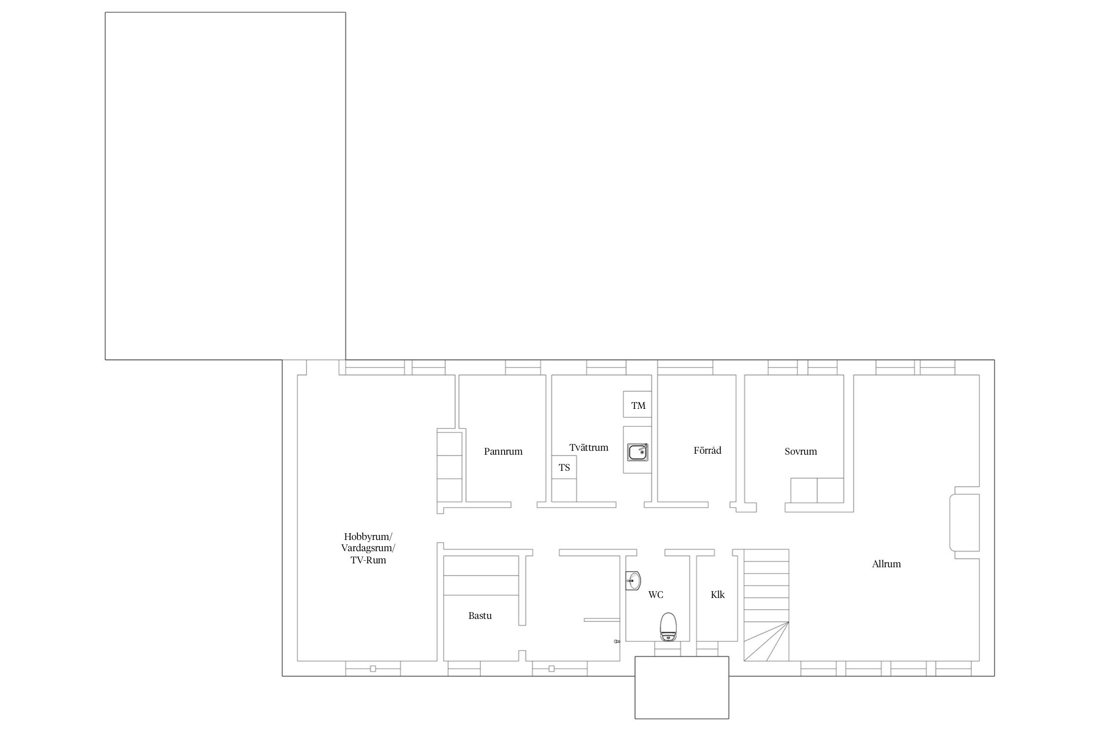
Källarplan:
En trappa i ek från övre hall leder ner till källarplanet där du möts av en rymlig gillestuga med öppen spis – en perfekt plats för mysiga kvällar och umgänge. Ytskikt i form av ett vackert svart skiffergolv med golvvärme, ljusa väggar, panel i tak och fondvägg i rött tegel.
I samma del som gillestugan finns ett extra sovrum/gästrum.
Vidare finns i källarkorridoren flera praktiska utrymmen såsom, matkällare separat wc, förråd, pannrum, samt dusch och bastu.
Tvättstugan är väl tilltagen och funktionell, med målat betonggolv och målade väggar. Här finns tvättmaskin, torkskåp, skåpsförvaring, samt arbetsyta med ho. Garderoben bakom dörren är förbundet via ett schakt för smutsig tvätt med garderoben på entréplanet.
Längst bort i slutet av hallen finns även ett hobbyrum. Här erbjuds gott om plats för både förvaring och aktiviteter – ett perfekt extra vardagsrum
för exempelvis tonåringarna i familjen. Egen ingång via garagedörr och invändig källartrappa som ansluter till detta rum.



Entréplan
Källarvåning
Dösen 5
*Areauppgifter enligt taxeringsinformationen
Radonmätning utfördes 2001 med ett medelvärde på 96 Bq/m3.
Husets källarytterväggar har erhållit ny dränering och fuktisolering på slutet 1990-talet och dränkpump är installerad som säkerhetslösning.
Stort vidbyggt dubbelgarage som man når direkt via husets källatrappa.
Skyddad uteplats med västerläge på trädgårdssidan.
Kommunalt vatten, Kommunalt avlopp.
Stor insynsskyddad hörntomt med naturtomtskaraktär.
Stor biluppställningsplats framför det rymliga dubbelgaraget.
Garaget når man via invändig trappa från källarplanet.
Tomtindelning (1967-08-08) Stadsplan (1967-06-05)
Den äldre personen som bott ensam under senare år har haft onormalt hög temperatur i huset. Därav den något högre värmekostnaden.
Det finns 1 st pantbrev uttaget om sammanlagt 450 000 kr
Vill du köpa, sälja eller värdera bostad i Västmanland? Kontakta våra mäklare i Västerås! Passa också på att anmäla dig till vår kostnadsfria söktjänst Boagenten som hjälper dig att hitta ditt drömboende.
Här hittar du alla våra lediga bostäder till salu i Västmanlands län just nu!
Kontakta mäklaren om du behöver hjälp att ta fram en boendekalkyl.
När du köper din bostad genom Bjurfors kan du ansöka om bolån till en förmånlig ränta hos våra banksamarbetspartners Söderberg & Partners och SEB.
Bokad visning.
| Bud | Budgivare | Datum | Tid |
|---|---|---|---|
| 3 750 000 kr | Budgivare 1 | 2026-05-10 | 17:20 |
| 3 705 000 kr | Budgivare 2 | 2026-05-04 | 14:49 |
| 3 700 000 kr | Budgivare 1 | 2026-05-04 | 14:08 |
Ansvarig mäklare