-
Köpa
Köpa -
Sälja
Sälja - Hitta bostad
- Skapa bevakning
- Hitta mäklare
Central 1:a med mycket låg avgift!
Centrum, Västerås
*I avgiften ingår värme, vatten samt grundutbud TV.
**Areauppgifter enligt bostadsrättsföreningen
Mitt i City - Låg boendekostnad - Generöst ljus - Välplanerat - Stilren kokvrå - Fräscha ytskikt - Stabil Brf - Attraktivt läge - Närhet till allt!
Kontakta ansvarig mäklare för privatvisning!
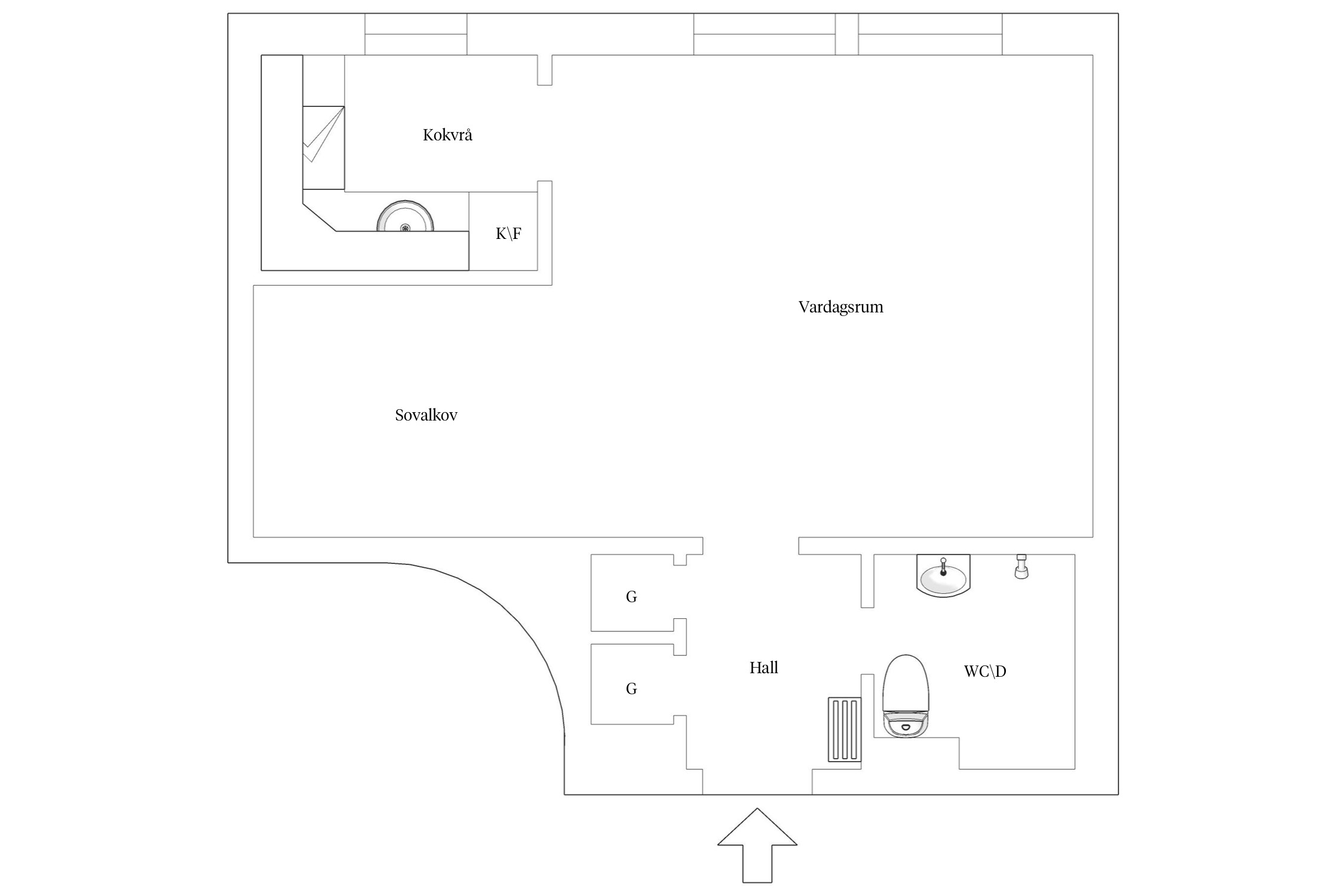
Hjärtligt välkomna till denna fräscha lägenhet om 1 rum och kök belägen mitt i City på attraktiva Domkyrkoesplanaden! Boendet karaktäriseras av generöst ljusinsläpp via stora fönster, väldisponerade ytor samt stilren kokvrå. Utöver detta dessutom praktisk sovalkov, badrum samt fina ytskikt. Här bor du med mycket låg boendekostnad samt med Västerås Citys mångfacetterade utbud utanför porten.
Varmt välkommen på visning!
Välkomnande hall med plats för avhängning samt god förvaring via dubbla garderober. Ytskikt i form av laminatgolv samt ljusa väggar.
I anslutning till hall nås badrummet med våtrumsmatta samt vita helkaklade väggar. Utrustat med handfat, spegelskåp med belysning, vägghängd WC, handdukstork samt dusch.
Stilren kokvrå med god förvaring bakom vita luckor. Mörkt kakel ovan arbetsytor. Fint ljusinsläpp via köksfönster. Den maskinella utrustningen består av spis med häll, spisfläkt samt kyl/frys. I övrigt laminatgolv samt vita väggar.
Väl tilltaget vardagsrum med generöst ljusinsläpp via dubbla fönster. Här ryms med enkelhet sedvanligt vardagsrumsmöblemang. Ytskikt i form av laminatgolv samt ljusa väggar. Markis fungerar ej.
Dessutom praktisk sovalkov med plats för säng.



Inge 9
*Areauppgifter enligt bostadsrättsföreningen
I avgiften ingår värme, vatten samt grundutbud TV.
FÖRRÅD:
Lägenhetsinnehavaren disponerar över ett vindsförråd om ca 5-6 kvm.
Bostadsrättens indirekta nettoskuldsättning baseras på föreningens skulder/lån minus föreningens räntebärande tillgångar och likvida medel. Beräkningen är gjord och baseras enbart på den senaste tillgängliga årsredovisningen. För mer information kontakta ansvarig fastighetsmäklare.
*Betalas av köpare
Bostadsrättsföreningen Kontorshuset som har sitt säte i Västerås, äger fastigheten Inge 9 i Västerås Kommun vilken bebyggdes 1959.
På fastigheten finns 1 flerbostadshus med tillsammans 3 trapphus samt 47 lägenheter med adresserna Vasagatan 26 A och B samt Domkyrkoesplanaden 9. Total lägenhetsyta är 3301,5 kvm. Ekonomisk förvaltare är HSB MälarDalarna.
Föreningen har inga beslutade avgiftsförändringar.
I samtal med föreningen 1/7-2025.
Fastigheten är fullvärdesförsäkrad hos Folksam.
Utförda:
- 04: Stamrenovering. Soprum.
- 05: Fasad.
- 08: Fönsterbyte.
- 13: Passagesystem.
- 18: Grind innergård.
- 19: Relining.
- 21: Installerat flera övervaknings kameror. Uppdaterat belysning ute vid grind och garage.
- 22: Uppdatering av gemensamma utrymmet i källare med nytt golv, nya möbler, målning.
- 24: Byte av värmecentralen.
Föreningen följer underhållsplan.
23 st garageplatser: 468-572 kr/mån beroende på storlek. F.n. kö.
12 st p-platser: 260 kr/mån. F.n. kö.
2 st MC-platser: 130 kr/mån. F.n. finns ledig plats.
TV via bredband via Tele2.
Trevlig innergård med möblemang.
Det finns cykelförråd, tvättstuga, bastu, dusch och mindre samlingslokal/relax i källaren.
Vill du köpa, sälja eller värdera bostad i Västmanland? Kontakta våra mäklare i Västerås! Passa också på att anmäla dig till vår kostnadsfria söktjänst Boagenten som hjälper dig att hitta ditt drömboende.
Här hittar du alla våra lediga bostäder till salu i Västmanlands län just nu!
Kontakta mäklaren om du behöver hjälp att ta fram en boendekalkyl.
När du köper din bostad genom Bjurfors kan du ansöka om bolån till en förmånlig ränta hos våra banksamarbetspartners Söderberg & Partners och SEB.
Ansvarig mäklare