-
Köpa
Köpa -
Sälja
Sälja - Hitta bostad
- Skapa bevakning
- Hitta mäklare
Perfekt planerad 2:a med balkong och mälarvy!
Lillåudden, Västerås
*I avgiften ingår värme, kall och varmvatten samt TV/bredband och bostadstillägg.
**Areauppgifter enligt bostadsrättsföreningen
Mälarvy - Stor inglasad balkong - Mycket väldisponerade ytor - Insynsskyddat läge - Hög fräschör - Attraktivt och lugnt läge!
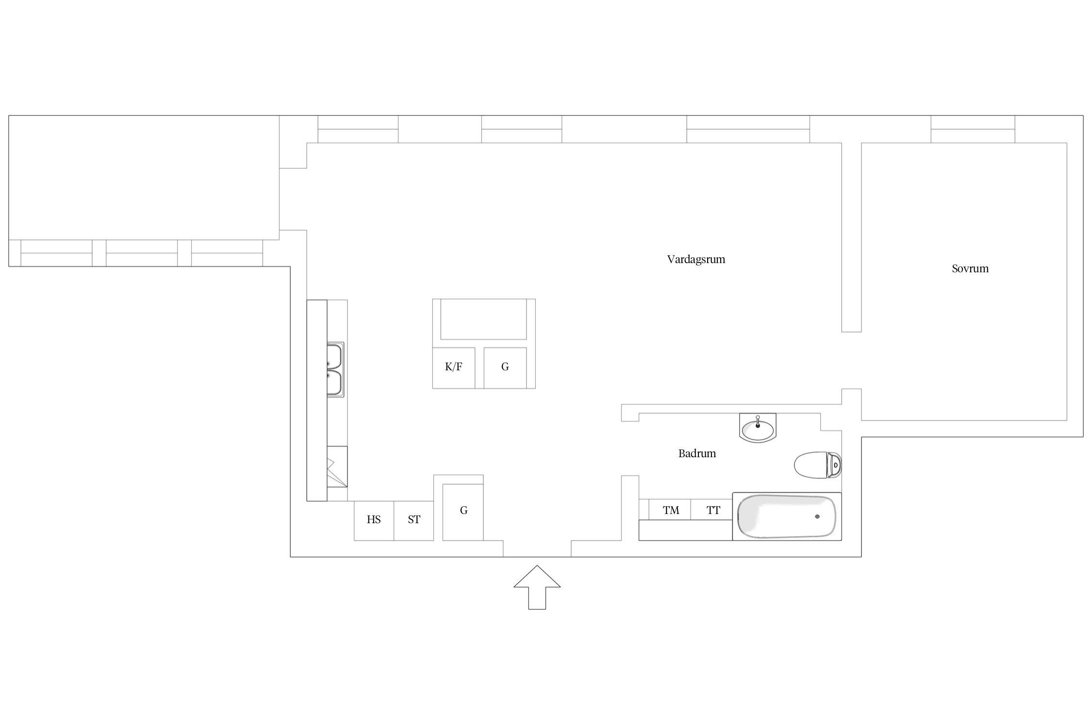
Hjärtligt välkommen till denna utsökta 2:a om 59 mycket väldisponerade kvm! Lägenheten karaktäriseras av en underbar och inglasad balkong med vy över mälarens inlopp, socialt öppen planlösning mellan det stilrena köket och det luftiga vardagsrummet, härligt ljusinsläpp samt genomgående stilrena materialval. Utöver påträffas även ett rogivande sovrum med exemplariskt förvaring, estetiskt tilltalande badrum med tvättmöjligheter samt en välkomnande hall med bra förvaring..
Toppmodern fastighet. Attraktivt och lugnt läge med närhet till Mälaren, centralstationen samt citys mångfacetterade utbud!
Varmt välkommen på visning!
Välkomnande hall med gott om plats för avhängning samt bra förvaring via garderob. Ytskikt bestående av ljusa väggar samt praktiskt klinkergolv/ekparkett.
I direkt anslutning till hallen påträffas även ett estetiskt tilltalande badrum med helkaklade väggar samt klinkergolv. I övrigt utrustat med dusch med fällbara glasväggar, handfat med tillhörande kommod, spegelskåp, wc samt handduksvärmare. I badrummet påträffas även en tvättavdelning med tvättmaskin, torktumlare, praktisk arbetsbänk samt skåpsförvaring.
Stort och lättmöblerat vardagsrum i öppen social planlösning gentemot köket. Gott om plats för såväl sedvanligt vardagsrumsmöblemang samt matsalsdel. Ytskikt bestående av ljusa väggar samt ekparkett.
Stilrent och fullutrustat kök med gott om förvaring bakom skåpluckor av trä. Rejäla arbets- samt avlastningsytor i laminat med ovansittande kakel. Den maskinella utrustningen består av induktionshäll, spisfläkt, inbyggd ugn och micro, diskmaskin samt kyl/frys. Från köket finner ni även utgång till den ljuvliga balkongen med hänförande utsikt över innergården samt mälarens inlopp.
Stort och rogivande sovrum med gott om plats för större säng samt tillhörande möblemang. Förvaring via garderober. Ytskikten består av ljusa väggar samt ekparkett.



Planlösning
*Areauppgifter enligt bostadsrättsföreningen
I avgiften ingår värme, kall och varmvatten samt TV/bredband och bostadstillägg.
Förråd: Lägenhetsinnehavaren disponerar över ett förråd i bottenplan.
Bostadsrättens indirekta nettoskuldsättning baseras på föreningens skulder/lån minus föreningens räntebärande tillgångar och likvida medel. Beräkningen är gjord och baseras på senaste tillgängliga årsredovisningen. För mer information kontakta ansvarig fastighetsmäklare.
*Betalas av köpare
Föreningen äger fastigheten Slätpricken 1 i Västerås kommun. På fastigheten finns 4 byggnader med totalt 90 lägenheter. Byggnaderna är uppförda under åren 2016-2018. Fastigheternas adress är Verksgatan 12 A-C, 14 A-D, Sjömärkesgatan 2 A-C, 4 A-D, Lillåkajen 7-11 och Fyrtornsgatan 1 A-C, 3 A-C i Västerås. Total bostadsarea är 7658 kvm.
Ekonomisk förvaltare är Riksbyggen.
Föreningen höjde avgiften med 2% 1/1-2025.
I samtal med styrelsen 31/7-2025.
Fastigheterna är fullvärdesförsäkrade i Folksam. Bostadsrättstillägget ingår i föreningens fastighetsförsäkring.
Utförda:
- 20: Installerat 10 st laddboxar för elbilar. Monterat grindar till innergården. Satt upp övervakningskameror i garagen.
42st garageplatser: 1306 kr/mån. Alla har laddstolpar (elförbrukning tillkommer). F.n. kö.
9st p-platser med el: ca 1004 kr/mån. Laddbox installeras vid behov. F.n. kö.
- Elbilsladdare är framdraget till samtliga garageplatser och installeras vid behov
på p-platserna. Elförbrukning debiteras separat via ChargeNode.
- Riksbyggen sköter köhanteringen till parkeringsplatserna. För tillfället är det 34
stycken i kö.
TV via Tele2 (grundutbud ingår i månadsavgiften).
Bredband via Tele2, 250/250 (ingår i månadsavgiften).
Vackert grönskande innergård intill Mälaren.
I föreningen finns cykelrum i båda garagen. Cykelställ finns även utvändigt i anslutning till entréer. Soprum med goda sorteringsmöjligheter. Gemensamhetslokal med WC/dusch och pentry belägen i änden av garaget i etapp 1, ut mot vattnet om ca 60 kvm. Övernattningslägenhet om ca 30 kvm finns i etapp 2 (400kr/natt). Lokalerna har egna ingångar och kan hyras ut till föreningens medlemmar för 550kr/dygn.
Vill du köpa, sälja eller värdera bostad i Västmanland? Kontakta våra mäklare i Västerås! Passa också på att anmäla dig till vår kostnadsfria söktjänst Boagenten som hjälper dig att hitta ditt drömboende.
Här hittar du alla våra lediga bostäder till salu i Västmanlands län just nu!
Kontakta mäklaren om du behöver hjälp att ta fram en boendekalkyl.
När du köper din bostad genom Bjurfors kan du ansöka om bolån till en förmånlig ränta hos vår samarbetspartner SEB.
Ansvarig mäklare