-
Köpa
Köpa -
Sälja
Sälja - Hitta bostad
- Skapa bevakning
- Hitta mäklare
Familjeidyll med attraktivt och barnvänligt läge!
Önsta Gryta, Västerås
*Areauppgifter enligt taxeringsinformationen
Bokad visning.
1-plansvilla - Familjeidyll - Garage - Solceller - Fjärrvärme - Fiber - Friköpt tomt - Attraktivt och lugnt läge!
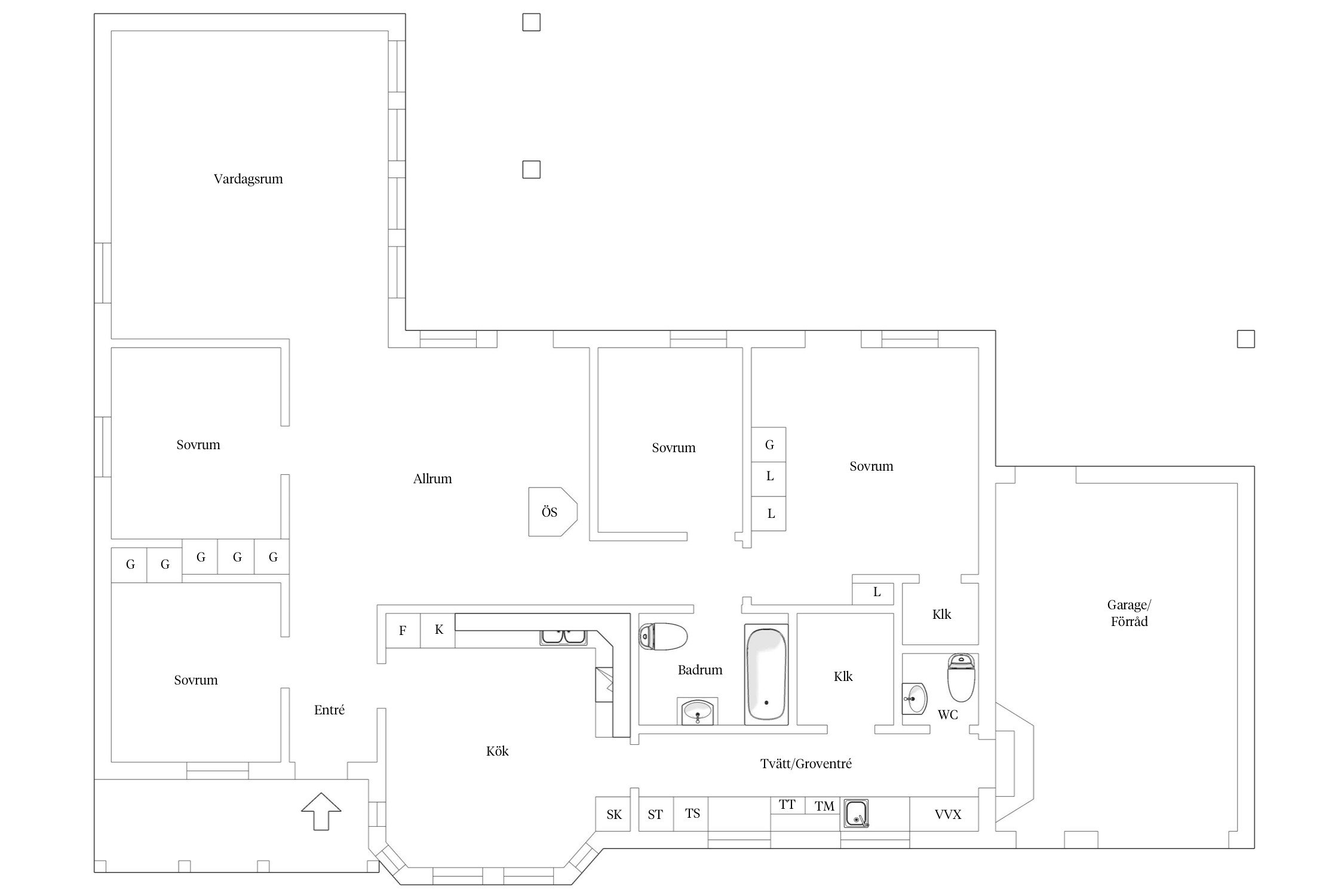
Hjärtligt välkommen till denna utsökta 1-plansvilla om 147+27 kvm! Optimalt planerat boende med smart planlösning vilket karaktäriseras av vardagsrum med generöst ljusinsläpp samt allrum/matrum med öppen spis samt utgång till altan. Rymligt och tidlöst kök med matplats intill charmigt burspråk. Utöver detta rogivande master bedroom med walk-in-closet och ytterligare tre väldisponerade sovrum. Stilrent badrum samt separat gäst-WC. Tvättstuga/groventré med klädkammare och access till garage.
Uppvärmning via fjärrvärme. Solceller. Indraget fiber. Garage, nås inifrån, samt uppfart med plats för flertalet bilar. Elbilsladdare. Stor vind med utmärkta förvaringsmöjligheter.
Friköpt, grönskande och barnvänlig tomt med lekstuga och äppelträd. Insynsskyddad och bästa solläge. Väl tilltagen och trädäckad altan längs hela baksidan, delvis under tak. Markis finns.
Attraktivt och barnvänligt läge på Gryta med skolor, förskolor, grönområden, närservice samt allmänna kommunikationer inom bekvämt avstånd. Lugn gata utan genomfartstrafik med lekpark i kvarteret!
Till denna optimalt planerade 1-plansvilla välkomnas Ni av en hall med ljusa ytskikt och avhängningsmöjligheter.
Rymligt och tidlöst kök med matplats intill charmigt burspråk. Mycket god förvaring bakom ljusa luckor. Vitt kakel ovan arbets- samt avlastningsytor. Maskinell utrustning i form av spis/ugn, spisfläkt, diskmaskin samt fullstor kyl och frys. I anslutning groventré/tvättstuga. Naturligt ljusinsläpp samt goda arbetsytor. Utrustning i form av tvättmaskin, torktumlare samt ho. Förvaring via klädkammare. Separat gäst-WC. Access till garage.
Härligt allrum/matrum med ljusa omgivande ytskikt. Öppen spis samt utgång till altan/baksida. Perfekt avvägd öppen planlösning mot vardagsrum.
Väl tilltaget vardagsrum med generöst ljusinsläpp via flertalet fönster i två väderstreck. Ljusa ytskikt.
Rogivande master bedroom med utgång till baksida. Exemplarisk förvaring via garderober samt walk-in-closet. Utöver detta tre väldisponerade sovrum, två med inbyggda garderober.
Stilrent badrum med klinkerbelagt golv samt kaklade väggar. Utrustningen utgörs av tak- samt handdusch, duschvägg i transparent glas, avkopplande badkar, spegelskåp med inbyggd belysning, handfat med kommod samt WC.



Halland 9
*Areauppgifter enligt taxeringsinformationen
Radonmätning utfördes 1998 med ett medelvärde på 50 Bq/m3.
För renoveringar se bifogad renoveringslista.
Lekstuga.
Kommunalt vatten, Kommunalt avlopp.
Garage, vilket nås inifrån, samt uppfart med plats för två bilar. Elbilsladdare.
Stadsplan (1987-08-11)
Gemensamhetsanläggning: Västerås bohus ga:1 ändamål: Grönområden, Garage och/eller parkering, Kvartersanläggning
Gemensamhetsanläggning: Västerås skåne ga:1 ändamål: Vägar, Avloppsanläggning, Elledning och/eller belysning, Grönområden
Fiber
Intäkt solelsproduktion 5780 kr/år, 8367 kWh, avräknad från kostnad för el.
Det finns 7 st pantbrev uttagna om sammanlagt 2 485 100 kr
Vill du köpa, sälja eller värdera bostad i Västmanland? Kontakta våra mäklare i Västerås! Passa också på att anmäla dig till vår kostnadsfria söktjänst Boagenten som hjälper dig att hitta ditt drömboende.
Här hittar du alla våra lediga bostäder till salu i Västmanlands län just nu!
Kontakta mäklaren om du behöver hjälp att ta fram en boendekalkyl.
När du köper din bostad genom Bjurfors kan du ansöka om bolån till en förmånlig ränta hos vår samarbetspartner SEB.
Bokad visning.
Ansvarig mäklare