-
Köpa
Köpa -
Sälja
Sälja - Hitta bostad
- Skapa bevakning
- Hitta mäklare
Familjeidyll på omtyckta Skälby!
Skälby, Västerås
*Areauppgifter enligt taxeringsinformationen
Attraktivt läge - Omtyckt område - Altan under tak samt soldäck - Rymlig planlösning - Många sovrum - För den stora familjen!
Hjärtligt välkomna till denna mycket rymliga villa från 2003 och Smålandsvillan i genomgående gott skick! Denna familjevilla erbjuder stora umgängesytor med en rymlig och social planlösning. Minst 5 sovrum och 2 badrum. Ljust kök med rejäl köksö. Utvändigt återfinns en lagom stor samt lättskött tomt med avskild lekpark i direkt närhet. Stor altan för härliga sommarkvällar. Garage samt uppfart med plats för bil. Dessutom Erikslunds shoppingområde endast minuter bort med allt du kan tänkas behöva. Perfekt för den stora barnfamiljen!
Varmt välkommen på visning!
Entréplan
Välkomnande rymlig hall med mörkt golv samt ljusa ytskikt. Möjlighet till förvarings- samt avhängningsmöjligheter.
Ljust och väldisponerat kök med köksö intill fönster. Goda förvaringsmöjligheter. Snyggt kakel samt praktiska arbets- samt avlastningsytor. Utrustningen utgörs av spis, spisfläkt, inbyggd ugn/micro, diskmaskin samt fullstor kyl och frys. I anslutning till köket påträffas även tvättstuga. Utrustad med tvättmaskin samt torkskåp och tvättho. Groventré finns.
Underbart vardagsrum i vinkel och uppdelat i två rum, nuvarande ägare nyttjar rummen idag som tv-rum samt matsal. Utgång till altan under tak och utsikt mot trädgård. Parkett belagt golv samt mälade ytskikt.
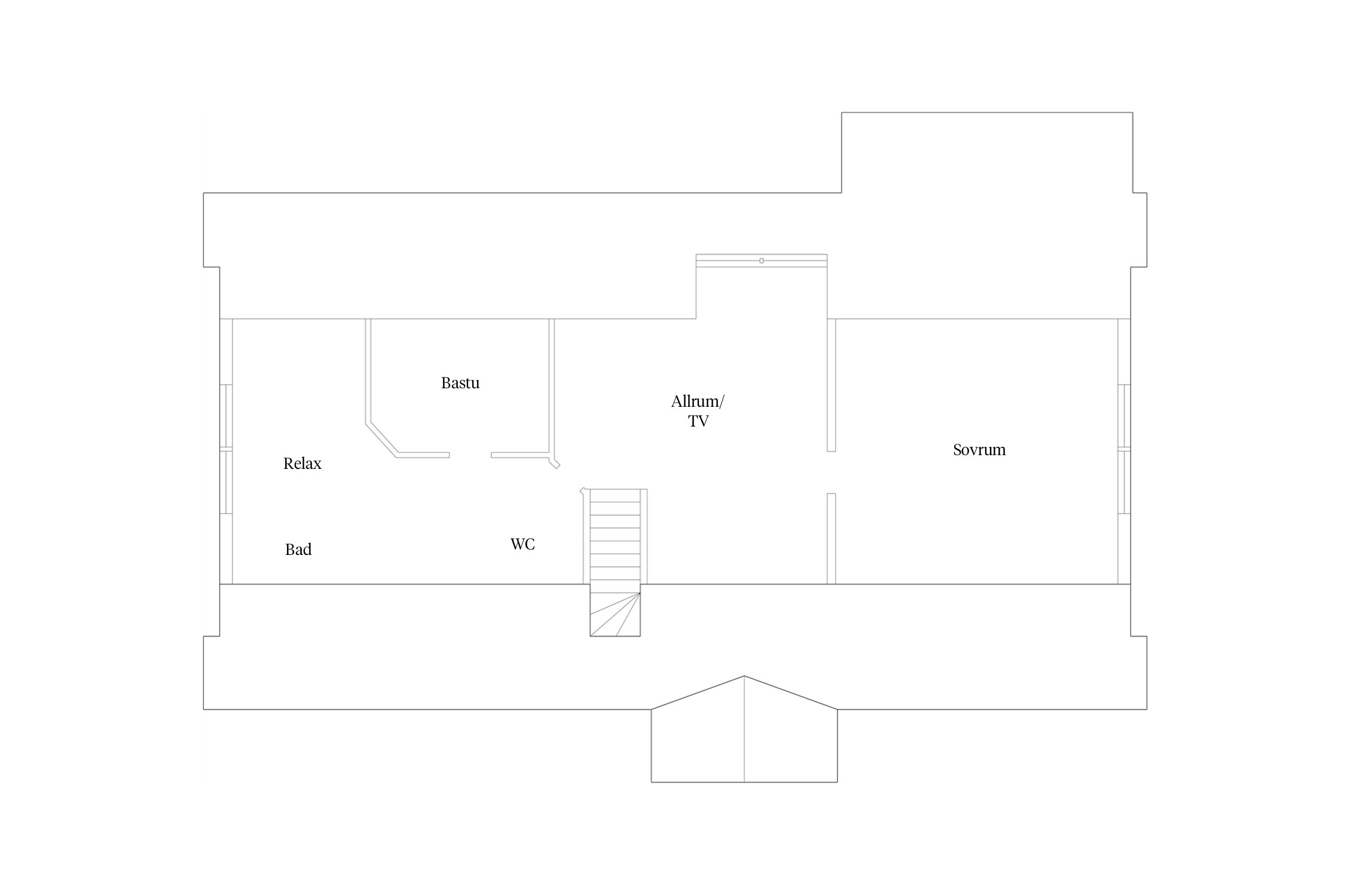
Nedre plan rymmer 4 rogivandesovrum. På det nedre planet finns ett badrum med våtrumsmatta och våtrumstapet. Utrustat med duschdörrar, spegelskåp med inbyggd belysning, handfat samt WC.
Övre plan:
Trappa från hall leder till övre planet. Allrum med dubbla fönster samt ljusa ytskikt. I övrigt erbjuder det övre planet ett stort sovrum och ytterligare ett badrum. Klinkerbelagt golv samt kaklade väggar. Utrustat med väggfast förvaring samt handfat med kommod, hörnbadkar, wc samt rymlig bastu.



Brödkorgen 34
*Areauppgifter enligt taxeringsinformationen
2005
Fristående garage
Rrejäl trädäck beläget i sydväst, delvis under tak.
Kommunalt vatten, Kommunalt avlopp.
Friköpt tomt med gräsmatta omgiven av buskar.
Garage samt asfalterad uppfart med plats för flertalet fordon.
Detaljplan (2004-08-24)
Gemensamhetsanläggning: Västerås Brödkorgen GA:1 ändamål: Vägar, Avloppsanläggning, Radio- TV och/eller tele, Elledning och/eller belysning, Grönområden, Gemensamhetsanläggning: Västerås Brödkorgen GA:2 ändamål: Radio- TV och/eller tele
Fiber
Posten el avser uppvärmning + hushållsel
Det finns 7 st pantbrev uttagna om sammanlagt 2 797 000 kr
Vill du köpa, sälja eller värdera bostad i Västmanland? Kontakta våra mäklare i Västerås! Passa också på att anmäla dig till vår kostnadsfria söktjänst Boagenten som hjälper dig att hitta ditt drömboende.
Här hittar du alla våra lediga bostäder till salu i Västmanlands län just nu!
Kontakta mäklaren om du behöver hjälp att ta fram en boendekalkyl.
När du köper din bostad genom Bjurfors kan du ansöka om bolån till en förmånlig ränta hos vår samarbetspartner SEB.
Ansvarig mäklare