-
Köpa
Köpa -
Sälja
Sälja - Hitta bostad
- Skapa bevakning
- Hitta mäklare
Stilren och fräsch tvåa i bästa skick med stora härliga uteplatser och sjöutsikt.
Stadsskogen, Alingsås
*I månadsavgiften ingår uppvärmning, avfallshantering, internet och TV.
Obligatorisk föranmälan via webben
Välkommen till en inflyttningsklar bostad i bästa skick med två stora härliga uteplatser och utsikt över sjön Mjörn. Denna trivsamma lägenhet väntar på nya ägare och med modern standard och välhållna ytskikt är det bara att flytta rakt in och njuta! Området är lugnt och trivsamt och här bor du mitt emellan strövområden och sjön. Med smidiga tågförbindelser från Alingsås station är förutsättningarna för pendling till hela regionen goda och lättillgängliga.
Stadsskogen är en omtyckt stadsdel i Alingsås grönskande utkant med en gemytlig känsla som en egen liten "stad i staden" och närhet till bland annat matbutik, pizzeria, gym och vårdcentral. Här är bebyggelsen blandad, med såväl villor, radhus och bostadsrätter vilket ger ett charmfullt intryck. Här byggdes detta flerfamiljshus 2018. På markplanet ligger denna fina lägenhet om två rum och 54 kvadratmeter. Ljusa ytskikt understryker det naturliga ljuset som genomsyrar bostaden. Sommartid utökas levnadsytan rejält med de två uteplatserna, en med morgonsol och en med kvällssol.
Missa inte chansen att se denna bostad, mysig om vintern och med mycket egen utemiljö om sommaren. Den fina badplatsen vid Lövekulle når du på ett par minuter med cykel och till centrum rullar du på en kvart. Även en typisk cykelstad som Alingsås har såklart kollektivtrafik och närmaste busshållplats finner du ett stenkast från huset.
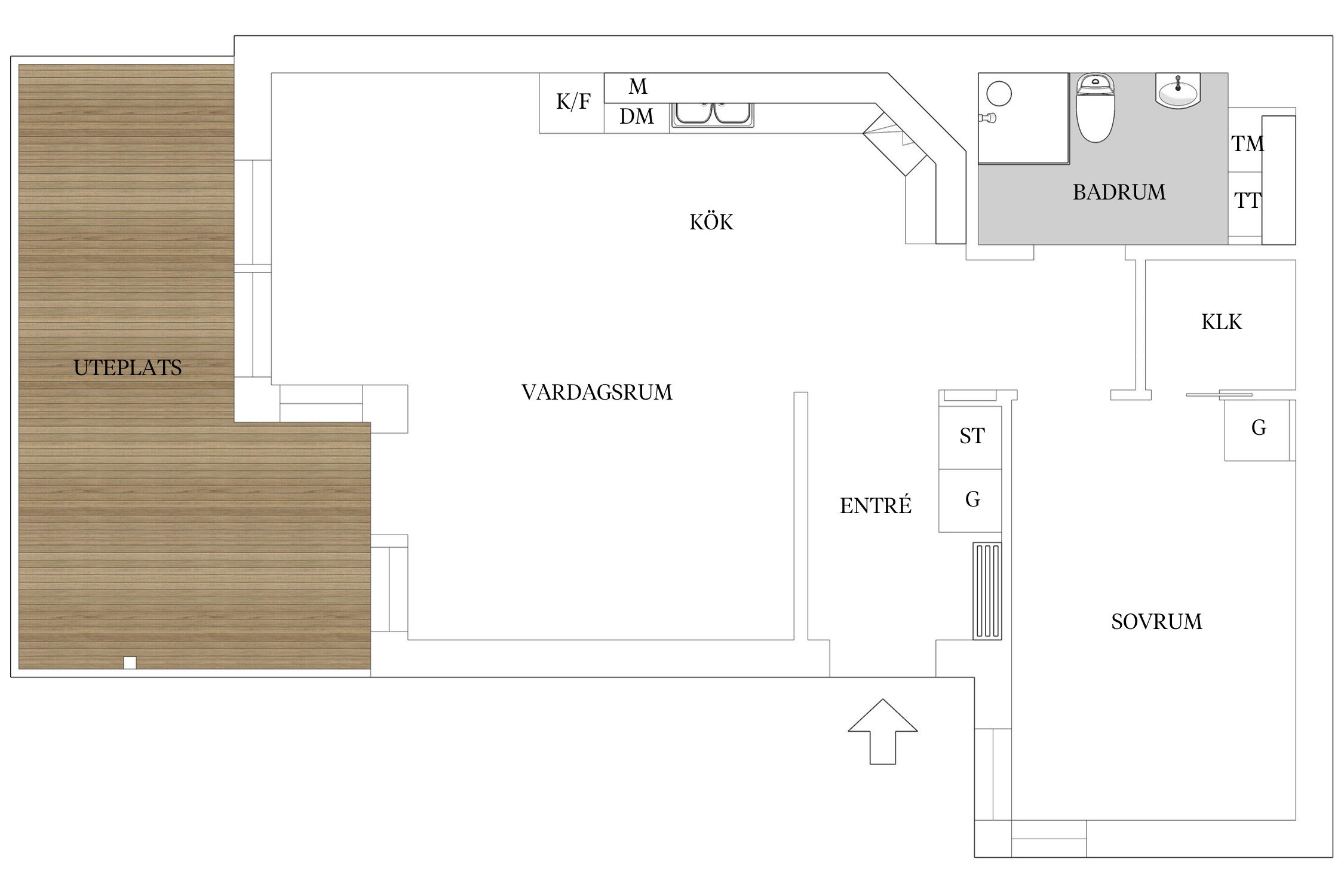
Planlösning
Här påbörjas dagen på bästa sätt, i morgonsol på den stora stenbelagda uteplatsen vid entrén. Innanför är hallen effektivt planerad med ordentlig förvaring och hemmet öppnar sig med sällskapsytan åt vänster och sovrum och badrum åt höger vilket ger en uppdelning i social och privat del. Kök och vardagsrum går i ett i en öppen sällskapsvänlig planlösning som maximerar ljusinsläpp och lockar till social samvaro. Husets form ger ytan en naturlig rumsuppdelning trots sin öppenhet och matplatsen får ett eget burspråk med sjöutsikt. Från vardagsrumsdelen nås altan nummer två som med västlig utsikt över Mjörn är som gjord för att njuta av stillsamma sommarkvällar i gott sällskap.
Även sovrummet har utsikt över sjön tack vare smart placerade fönster. Dubbelsäng ryms med enkelhet i rummet och med både garderob och klädkammare finns gott om förvaring för kläder och skor. I det helkaklade badrummet underlättar den egna tvätthörnan vardagsbestyren.



I månadsavgiften ingår uppvärmning, avfallshantering, internet och TV.
Uteplats i sydväst med utsikt över ön samt en stenlagd uteplats med morgonsol.
Parkering med laddmöjligheter. P-plats ingår och kostar 350 kr/månaden
Ingår i avgiften
Avgiften är fördelad enligt en grundavgift om ca 5 088 kr samt en särskild avgift om ca 406 kr.
När föreningen skapades kunde de boende välja att ha en lägre avgift mot att de gick in med en större insats. De som inte valde att göra det betalar en extra månadsavgift, den vi kallar en särskild avgift.
Kostnad för kall- och varmvatten samt hushållsel och el till laddbox för bil debiteras av föreningen utifrån uppmätt faktiskt förbrukning för respektive lägenhet. Debiteringen sker i efterhand och blir på så vis något fördröjd.
Posten övrigt avser hyra av p-plats.
*Betalas av säljare
Bostadsrättsföreningen äger fastigheterna Ulvakleven 29-38 och har på dessa låtit uppföra åtta hus med 26 lägenheter. De stod klara för inflyttning år 2018.
Totalentreprenadsavtal tecknades med Peab Sverige AB.
Slutbesiktning av totalentreprenaden avslutades 2018-11-29. Därefter gäller entreprenadgarantin i fem år. Löpande har ett antal efterbesiktningar skett (och pågår).
Inga planerade avgiftsförändringar.
Föreningen har försäkring hos Folksam. Försäkringen omfattar egendom, rättsskydd, ansvarsförsäkring, extrakostnads- och hyresförlustförsäkring, styrelseansvarsförsäkring, samt BRF-tilläggsförsäkring.
Närmsta renovering planeras till 2028, då ommålning av fasader. Detta ligger med i underhållsplanen och kommer inte påverka avgiften.
Till varje lägenhet finns en dedikerad parkeringsplats, obligatorisk att hyra. Om man har fler bilar finns fler platser att hyra för samma summa. I dagsläget har föreningen lediga parkeringsplatser. Till samtliga dedikerade platser finns laddmöjligheter för elbilar där man betalar för förbrukad el.
Fiberanslutning via Telia där ett grundutbud av TV, bredband och bredbandstelefoni ingår i avgiften.
Varmt välkommen till Stadsskogen, Alingsås nyaste stadsdel som fortsatt växer fram. Med sin nybyggaranda och varierande bebyggelse lockar Stadsskogen boende i alla åldrar och skeden i livet. Namnet beskriver på ett ypperligt sätt grundtanken och kärnan i stadsdelen; staden och skogen. Kommunikationerna till Alingsås centrum samt servicen i närområdet ger stadens utbud samtidigt som den omgivande naturen är påtaglig.
Området
Sjön Mjörn är i blickfånget från Stadsskogens sluttningar och flera av bostäderna i området kan njuta av vyn från egen uteplats. Nere vid sjön finner vi Alingsås segelsällskap, två fina badstränder inom promenadavstånd och en idrottsanläggning med minst sagt fint läge. Den som söker lugnet i skogen har stora och vackra områden att promenera på och likaså finns motionsspår.
Fritid
Som ovan nämnt finns skogar att ströva i, motionsspår och fina badmöjligheter vid strandkanten. Den fotbollsintresserade kan bland annat se Alingsås FC:s duktiga damlag på Mjörnvallen. I moderna Stadsskogshallen utövas bland annat innebandy, handboll och badminton. Här brukar det vara bra stämning på läktaren. Väl värt ett besök är Alingsås Parken som ligger inom promenadavstånd. I parken finns en klassisk dansbana som är aktiv och utöver dans anordnas även andra trevliga evenemang under året.
Utbildning
Kommunal och fristående förskola finns i området. Grundskolan Stadsskogenskolan hyser årskurserna från förskoleklass upp till årskurs 6. Här finns även fritidsverksamhet. Högstadium och gymnasium finns i centrala Alingsås.
Service
Då stadsdelen fortsätter att växa kommer vi säkerligen se flera etableringar under åren som kommer. Redan nu finner vi en modern och mysig kvarterskrog. Under mars månad 2020 kommer en efterlängtad livsmedelsaffär att öppna i helt nya lokaler. Sävelångens omtyckta vårdcentral finner vi också i området.
Kommunikationer
Alingsåssnabben är en expressbuss som tar resenärerna från Stadsskogen till Svingeln i Göteborg på bara 45 minuter. En mycket uppskattad pendlarlinje vilken breddar arbetsmöjligheterna för de boende markant. Stadsbussarna till centrala Alingsås går med täta mellanrum. Det går även bra att både cykla och promenera in till centrum.
Köpa, sälja eller värdera bostad i Stadsskogen, Alingsås? Kontakta våra mäklare i Alingsås! Passa också på att anmäla dig till vår kostnadsfria söktjänst Boagenten som hjälper dig att hitta ditt drömboende.
Kontakta mäklaren om du behöver hjälp att ta fram en boendekalkyl.
När du köper din bostad genom Bjurfors kan du ansöka om bolån till en förmånlig ränta hos vår samarbetspartner SEB.
Obligatorisk föranmälan via webben