-
Köpa
Köpa -
Sälja
Sälja - Hitta bostad
- Skapa bevakning
- Hitta mäklare
Högt belägen med balkong i söderläge!
Byttorp, Borås
*I månadsavgiften ingår värme. Kostnaden för hushållsel samt kall- och varmvatten ingår ej i månadsavgiften och preliminär debiteras av föreningen om 801 kr. Ett obligatoriskt tillägg tillkommer för bredband och tv om 173 kr. Förbrukar man mer eller mindre än preliminär debitering så regleras den i efterhand. Preliminärdebitering ovan redovisas exkl moms.
*** Areauppgifter enligt bostadsrättsföreningen
På Förhand ligger bostäder som av olika anledningar inte är ute till försäljning just nu men som kan komma att säljas om förutsättningarna är rätt.
Nu ges tillfälle att förvärva en nyproducerad bostad i Brf Port 17 - ett hem som andas kvalitet med genomgående smakfulla materialval.
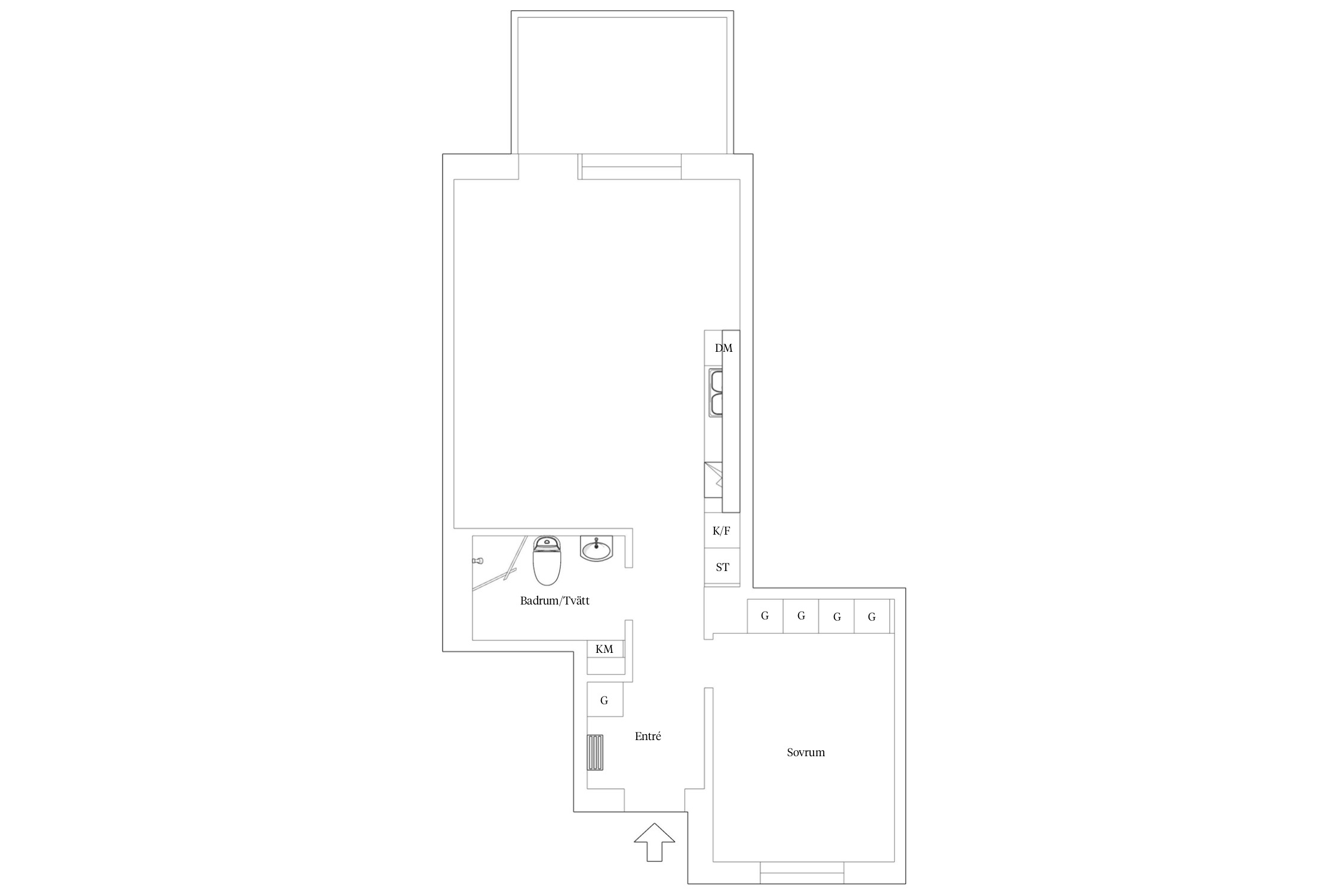
Nu ges möjlighet att förvärva denna välplanerade tvårummare på mycket populär adress. Här lockar en väl tilltagen bostad disponerad på ca 55 kvadratmeter, bostaden är ytterst väldisponerad och erbjuder stora sällskapsytor i kombination med härligt ljusinsläpp från generösa fönsterpartier i dubbla väderstreck som skapar ett luftigt och levande hem. Modernt kök och vardagsrum i en öppen planlösning med gott plats för soff- & matgrupp. Rofyllt sovrum utan insyn med en rejäl garderobslänga som ger gott om plats för klädförvaring. Helkaklat badrum med golvvärme och bekvämligheter som tvättmaskin och torktumlare. Lägg därtill den generösa uteplatsen där ni kan njuta av solen i uppskattat söderläge och ni förstår att detta är ett hem som erbjuder alla tänkbara bekvämligheter.
Här bor man i uppvuxna, idylliska och anrika villakvarter med närhet till natur, skolor och utmärkta kommunikationer men ändå med stadens puls endast 10 minuter bort. En unik och svårslagen kombination som har gjort området till ett av Borås mest omtyckta. Ett stenkast bort ligger Byttorpssjön och på kort avstånd når du flera olika matbutiker som välsorterade ICA Byttorp, Willys, ICA City, ICA Knalleland mm. I närheten finns både fristående och kommunala förskolor samt grundskolor. För den som pendlar med bil till Göteborg eller andra delar av Borås är läget utmärkt då man tar sig snabbt ut till RV40.
Välkommen att anmäla ert intresse!



** Areauppgifter enligt bostadsrättsföreningen
I månadsavgiften ingår värme.
Kostnaden för hushållsel samt kall- och varmvatten ingår ej i månadsavgiften och preliminär debiteras av föreningen om 801 kr. Ett obligatoriskt tillägg tillkommer för bredband och tv om 173 kr.
Förbrukar man mer eller mindre än preliminär debitering så regleras den i efterhand.
Preliminärdebitering ovan redovisas exkl moms.
Balkong i uppskattat väderstreck.
Till förfogande finns 38 garageplatser samt 3 utvändiga parkeringsplatser. Parkeringarna har fördelats ut vid inflyttning och för att ställa sig i kö för dessa hör ni av er till Lots Ekonomi.
Telias baspaket Lagom ingår med 28 TV-kanaler, telefoni via bredband och 100/100 Mbits bredbandsanslutning. Fler kanaler och snabbare bredband kan läggas till.
Bostadsrättens indirekta nettoskuldsättning baseras på föreningens skulder/lån minus föreningens räntebärande tillgångar och likvida medel. Beräkningen är gjord och baseras på senaste tillgängliga årsredovisningen. För mer information kontakta ansvarig fastighetsmäklare.
*Betalas av köpare
Brf Port 17 äger fastigheten BYTTORPSTÅ 2 med adress Ribbingsgatan 2A, 2B. Det är två huskroppar med totalt 48 st bostadsrätter. Byggnationen färdigställdes under slutet av 2022 och inflyttningen påbörjades i december 2022.
På grund av det kraftigt höjda ränteläget har föreningen sett över fördelning, amortering och bindningstid på föreningens lån. Projektören (Cernera AB) tillskjuter utöver startkassa om 65.000 kr , 885.000 kr som första amortering. Föreningen har också förhandlat med banken avseende de första 5 årens amortering vilket medför att avgiftshöjningen som det ökade ränteläget medför kan hållas på en rimlig nivå. Bostadsrättshavarens avgifter kommer framöver att höjas ca 2% varje år för att kompensera för föreningens ökade räntekostnader.
Byggnaden är fullvärdesförsäkrad via Länsförsäkringar Älvsborg.
P-platser finns tillgängliga som markparkeringar(ute) och garage i huset. Det finns ledigt att hyra i garaget, detta enligt Lots ekonomi, 2025-10-15.
En garageplats kostar 1000 kr/mån och en uteplats kostar 550 kr/mån. I mån av plats finns det möjlighet att hyra en extra garageplats för 750kr/mån.
Föreningen har 1 gästparkering.
Fastigheten är ansluten till Telias fibernät.
I grundabonnemanget ingår även 250/250 Mbits internetanslutning samt den fasta avgiften för ett telefonabonnemang (IP-telefoni).
Ett basutbud Telia Triple Play med TV-paket Lagom ingår i det grundabonnemang som är inkluderat i din månadsavgift.
- Cyklar kan placeras i husets väl tilltagna cykelrum alternativt på anvisade parkeringsplatser utomhus.
- Till alla lägenheter finns förråd antingen i lägenheten eller i källaren.
Föreningen har en egen hemsida: brfport17boras.se
MODERNA OCH VÄXANDE BORÅS
I Borås bor du i en vackert belägen stad som följer Viskans dalgång med ett vakande öga från Rya Åsars beskyddande kullar.Det är modern stad och del av en dynamisk tillväxtregion i en miljö där proportionerna är lagom och takten lite lugnare.
VÄVD AV HISTORIEN, FORMAD AV FRAMTIDEN
Borås är sen sekler tillbaka en starkt präglad textil- och handelsstad. Staden är vävd av historien och formad för framtiden. Borås Konstmuseum, Textilmuseet och Borås Museum erbjuder ett rikt utbud av konstnärliga höjdpunkter av olika slag och former om du vill uppleva historiens vingslag. Staden utvecklar sin framtid på arvet från textil och handel. Den är en del av en tillväxtregion och utmärker sig nationellt inom affärsområden som textil, e-handel och logistik. Här finns också Viared utmed riksväg 40, en företagspark under stark utveckling. En strategisk skandinavisk placering med ungefär samma avstånd till Stockholm, Köpenhamn och Oslo och närhet till Göteborg med Landvetter Airport. Floden Viskan var förr den livsnerv som industrin byggde sin framtid på. Nu ger Viskans flöde inspiration till rekreation och upplevelser.
PULS OCH PAUS
Det är kontrasterna som genomsyrar Borås. Å ena sidan puls, shopping och nöjesliv, å andra sidan mysiga parker, kullerstenar och svalkande bad. Här finns ett variationsrikt kulturutbud och upplevelser om du är aktiv. Djurparken är en av landets största. Borås är rikt på sjöar och vattendrag. Det finns flera badplatser med stor variation och kalla vintrar lockar stadsparksbadet. Sportintresset är stort i Borås kommun med lokala elitlag som IF Elfsborg, Norrby IF och Borås Basket.
Sträckan Göteborg-Borås är det tredje största pendlingsstråket i landet där pendling sker i båda riktningarna. Infrastrukturen inom regionen är en prioriterad fråga med Götalandsbanan i spetsen. Staden är navet i Sjuhärad med väl utbyggd kollektivtrafik inom Borås och till de fyra serviceorterna Dalsjöfors, Fristad, Sandared och Viskafors.
Köpa, sälja eller värdera bostad i Borås? Kontakta Bjurfors mäklare i Borås! Passa också på att anmäla dig till vår kostnadsfria söktjänst Boagenten som hjälper dig att hitta ditt drömboende.
Kontakta mäklaren om du behöver hjälp att ta fram en boendekalkyl.
När du köper din bostad genom Bjurfors kan du ansöka om bolån till en förmånlig ränta hos vår samarbetspartner SEB.
Ansvarig mäklare