-
Köpa
Köpa -
Sälja
Sälja - Hitta bostad
- Skapa bevakning
- Hitta mäklare
Solig gaveltrea med 20 kvm balkong i sydväst – centralt i Borås
Druvefors, Borås
*I månadsavgiften ingår värme och vatten. Utöver avgiften tillkommer ett obligatoriskt tillägg gällande kabel-tv och bredband om 189 kr/mån för tv. Totalt 6795 kr.
**Areauppgifter enligt bostadsrättsföreningen
Bokad visning.
På Förhand ligger bostäder som av olika anledningar inte är ute till försäljning just nu men som kan komma att säljas om förutsättningarna är rätt.
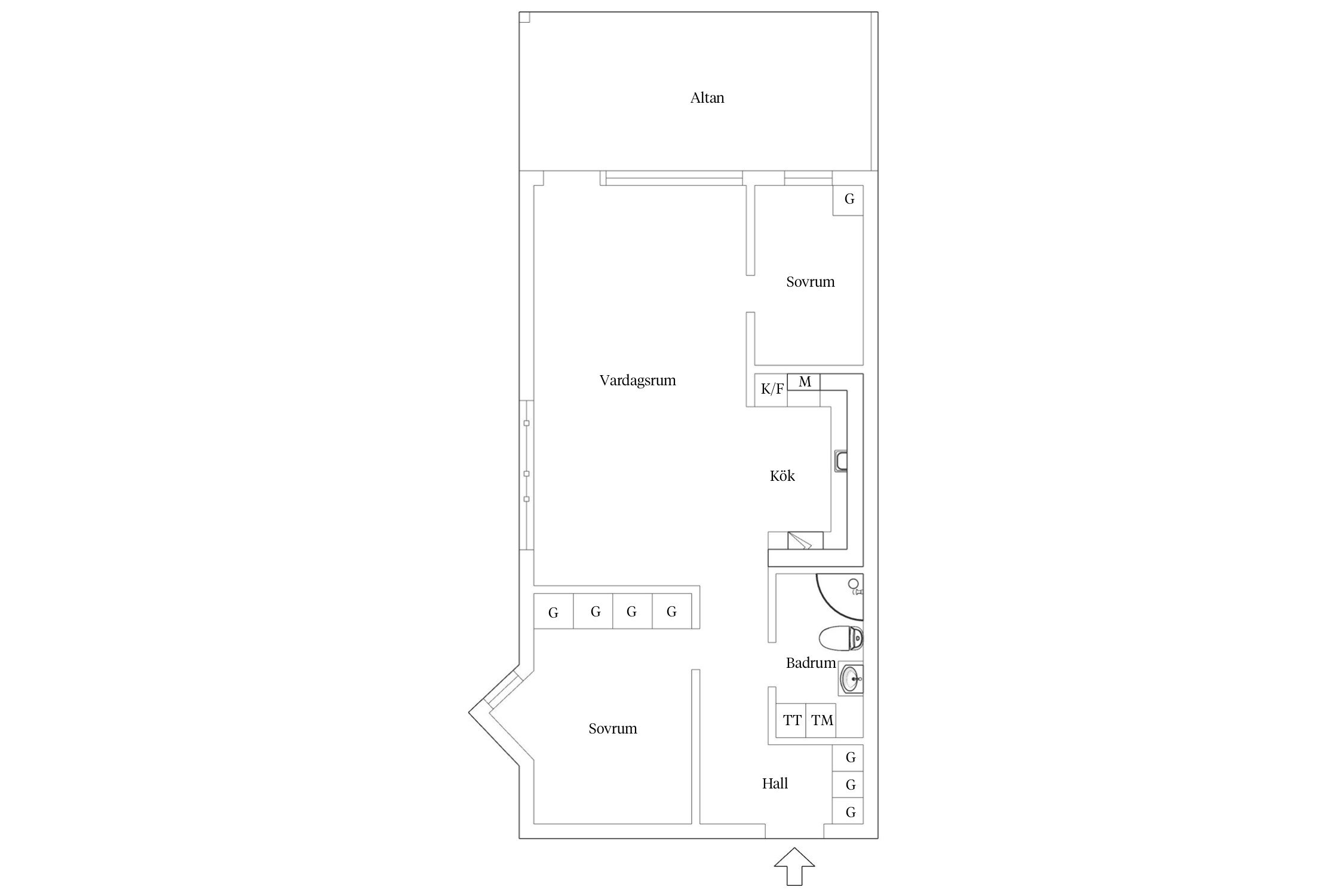
Solig trea med 20 kvm balkong i sydväst, hög takhöjd och centralt läge nära stadskärnan i Borås.
Välkommen till Kyrkogårdsgatan 13 – en ljus och välplanerad trerummare om 70 kvm med generös takhöjd, bevarade originaldetaljer och en fantastisk balkong om ca 20 kvm i soligt sydvästläge. Här bor du på entréplan med ett centralt läge i Borås, samtidigt som bostaden erbjuder ett lugnt och harmoniskt hem att landa i.
Redan när du kliver in möts du av en smart planerad hall som är diskret placerad runt hörnet från den öppna sällskapsytan – perfekt för att hålla hemmet prydligt och välkomnande. Vidare öppnar bostaden upp sig i en social och luftig planlösning där vardagsrum och kök samspelar på ett naturligt sätt. De vitmålade väggarna och parkettgolven förstärker känslan av rymd och ljus. Köket renoverades 2018 och är stilrent utformat med grå skåpsluckor (IKEA Veddinge), granitbänkskivor och vitt kakel. Här finns full maskinell utrustning, inklusive kyl/frys från 2024 samt diskmaskin, ugn, häll och mikro från 2017. Ett kök att trivas i – oavsett om du lagar vardagsmiddag eller bjuder in till middagar med vänner.
Den stora balkongen om ca 20 kvm är något alldeles extra. I sydvästläge kan du njuta av solen från morgonkaffet till kvällens sista strålar. Här finns gott om plats för loungemöbler, odling eller middagar under bar himmel – ett förlängt vardagsrum under årets varmare månader.
Bostaden erbjuder två rogivande sovrum. Det större sovrummet har gråmålade väggar som skapar en sval och ombonad atmosfär, medan det andra sovrummet passar lika bra som barnrum, gästrum eller hemmakontor. Badrummet är helkaklat med vitt kakel och grått klinkergolv, utrustat med både tvättmaskin (2025) och torktumlare, golvvärme samt handdukstork – en bekväm och modern lösning för vardagen.
Här bor du med ett centralt och bekvämt läge i Borås med närhet till stadskärnan. Inom kort promenadavstånd finns livsmedelsbutiker, restauranger, caféer, gym, förskola och goda bussförbindelser. Kombinationen av citypuls och vardagsnära service gör området attraktivt för såväl barnfamiljer som par och singelhushåll.



*Areauppgifter enligt bostadsrättsföreningen
I månadsavgiften ingår värme och vatten. Utöver avgiften tillkommer ett obligatoriskt tillägg gällande kabel-tv och bredband om 189 kr/mån för tv. Totalt 6795 kr.
Till bostaden hör ett förråd på entréplan.
Föreningen har även cykelrum, barnvagnsrum, övernattningsrum, bastu.
Som medlem i föreningen har du möjlighet att hyra övernattningsrum i hus 13 eller 15. Hyresavgiften är f.n. 150kr/övernattning.
Avgiften för att utnyttja enbart bastun är f.n. 20kr/gång. Ansvarig för städning av ytterrum, dusch och bastu är den medlem som hyr.
Det finns garage och p-platser som administreras via kösystem av Riksbyggen. Det finns även 12 laddstationer, både ute och i garage. P-plats kostar 200-300 kr och garage kostar 700 kr. Hyr man laddstation tillkommer 400 kr.
Bredband och TV via Sappa gruppavtal via brf, ingår i avgift. Bredband hastighet 1000/1000
Bostadsrättens indirekta nettoskuldsättning baseras på föreningens skulder/lån minus föreningens räntebärande tillgångar och likvida medel. Beräkningen är gjord och baseras på senaste tillgängliga årsredovisningen. För mer information kontakta ansvarig fastighetsmäklare.
Driftkostnader och elförbrukning är inhämtade från säljaren och bör endast ses som en uppskattning. Kostnaden kan variera och baseras på förbrukning och avtal.
Föreningen äger fastigheten Kamelian 3 i Borås Stad. På fastigheterna finns 2 byggnader med 72 bostadsrättslägenheter. Byggnaderna är uppförda 2007–2008. Det skattemässiga värdeåret är 2008. Fastighetens adress är Kyrkogårdsgatan 13 & 15 i Borås.
Fastigheten är fullvärdeförsäkrad i Länsförsäkringar Älvsborg. Hemförsäkring bekostas individuellt av bostadsrättsinnehavarna och bostadsrättstillägget ingår i föreningens fastighetsförsäkring.
Styrelsen har beslutat att höja avgiften med 3 % från den 1 april 2026.
MODERNA OCH VÄXANDE BORÅS
I Borås bor du i en vackert belägen stad som följer Viskans dalgång med ett vakande öga från Rya Åsars beskyddande kullar.Det är modern stad och del av en dynamisk tillväxtregion i en miljö där proportionerna är lagom och takten lite lugnare.
VÄVD AV HISTORIEN, FORMAD AV FRAMTIDEN
Borås är sen sekler tillbaka en starkt präglad textil- och handelsstad. Staden är vävd av historien och formad för framtiden. Borås Konstmuseum, Textilmuseet och Borås Museum erbjuder ett rikt utbud av konstnärliga höjdpunkter av olika slag och former om du vill uppleva historiens vingslag. Staden utvecklar sin framtid på arvet från textil och handel. Den är en del av en tillväxtregion och utmärker sig nationellt inom affärsområden som textil, e-handel och logistik. Här finns också Viared utmed riksväg 40, en företagspark under stark utveckling. En strategisk skandinavisk placering med ungefär samma avstånd till Stockholm, Köpenhamn och Oslo och närhet till Göteborg med Landvetter Airport. Floden Viskan var förr den livsnerv som industrin byggde sin framtid på. Nu ger Viskans flöde inspiration till rekreation och upplevelser.
PULS OCH PAUS
Det är kontrasterna som genomsyrar Borås. Å ena sidan puls, shopping och nöjesliv, å andra sidan mysiga parker, kullerstenar och svalkande bad. Här finns ett variationsrikt kulturutbud och upplevelser om du är aktiv. Djurparken är en av landets största. Borås är rikt på sjöar och vattendrag. Det finns flera badplatser med stor variation och kalla vintrar lockar stadsparksbadet. Sportintresset är stort i Borås kommun med lokala elitlag som IF Elfsborg, Norrby IF och Borås Basket.
Sträckan Göteborg-Borås är det tredje största pendlingsstråket i landet där pendling sker i båda riktningarna. Infrastrukturen inom regionen är en prioriterad fråga med Götalandsbanan i spetsen. Staden är navet i Sjuhärad med väl utbyggd kollektivtrafik inom Borås och till de fyra serviceorterna Dalsjöfors, Fristad, Sandared och Viskafors.
Köpa, sälja eller värdera bostad i Borås? Kontakta Bjurfors mäklare i Borås! Passa också på att anmäla dig till vår kostnadsfria söktjänst Boagenten som hjälper dig att hitta ditt drömboende.
Kontakta mäklaren om du behöver hjälp att ta fram en boendekalkyl.
När du köper din bostad genom Bjurfors kan du ansöka om bolån till en förmånlig ränta hos våra banksamarbetspartners Söderberg & Partners och SEB.
Bokad visning.