-
Köpa
Köpa -
Sälja
Sälja - Hitta bostad
- Skapa bevakning
- Hitta mäklare
På friköpt tomt och med lugnt och bra läge ligger detta stora, fräscha och välplanerade radhus.
Ängås - Kannebäck, Göteborg
*Uppmätt i samband med energideklarationen
På Förhand ligger bostäder som av olika anledningar inte är ute till försäljning just nu men som kan komma att säljas om förutsättningarna är rätt.
Detta stora och välskötta radhus byggdes 2002 och har ett ljust vardagsrum, fint kök, 4-5 sovrum, helkaklat badrum mm. Fina altaner med soligt läge.
På friköpt tomt och med lugnt och bra läge i mysiga Ängås ligger detta stora, fräscha och välplanerade radhus om totalt hela 175 kvm.
Annonsen kompletteras med invändiga bilder fredag 17 april och visningar planeras till slutet av april. Anmäl gärna ert intresse till mäklaren för att inte missa eventuell förhandsvisning.
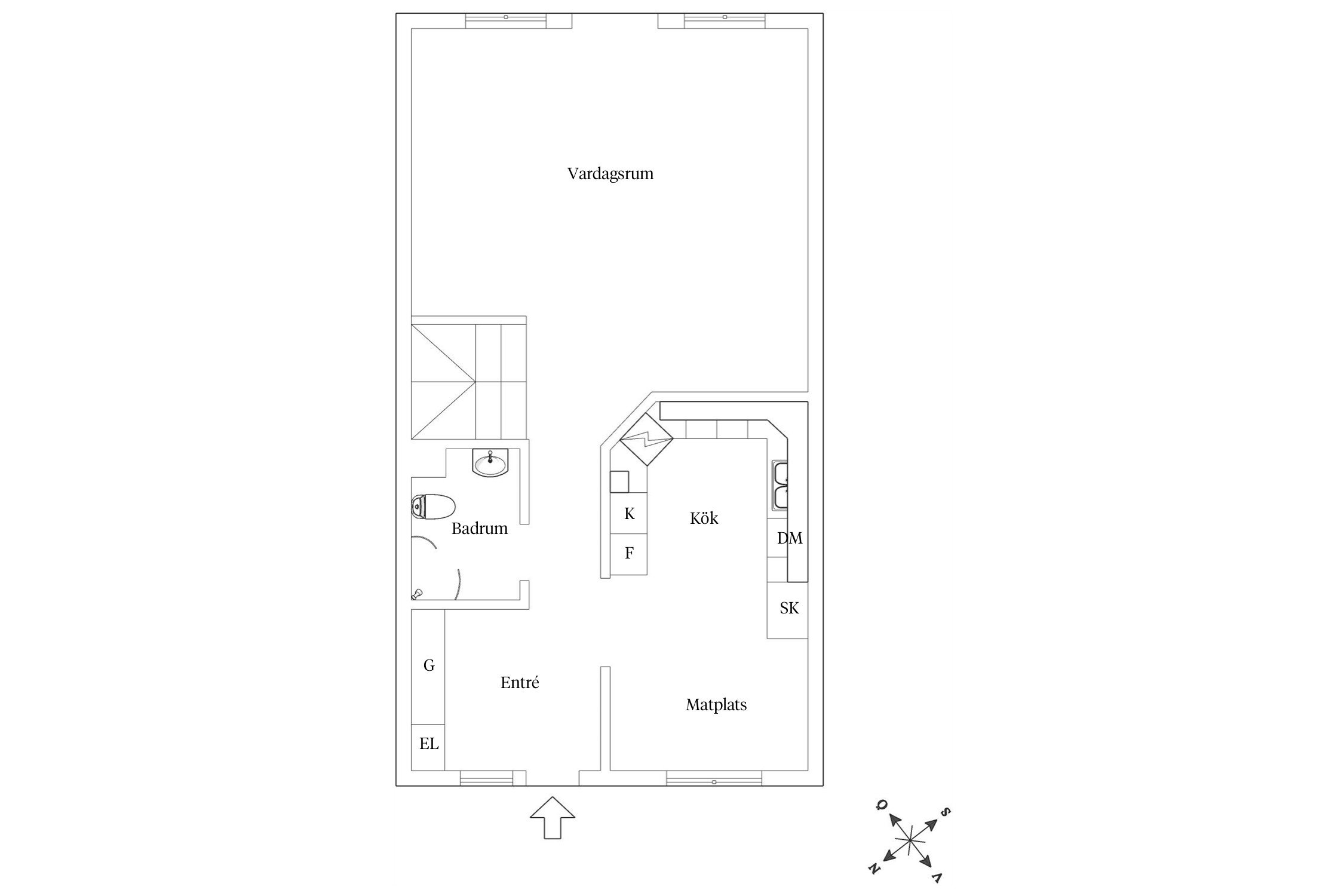
PLANLÖSNING ENTRÈPLAN: Hall med klinkergolv samt garderob med bra plats för avhängning av ytterkläder. Fint kök med bra matplats. Ljust och trevligt vardagsrum med stora fönsterpartier samt parkettgolv och ljusa väggar.
Badrummet på detta plan har klinkergolv, helkaklade väggar samt duschplats, handfat och wc.
PLANLÖSNING ÖVRE PLAN: På övre plan finns tre sovrum, samtliga med parkettgolv och det största sovrummet har bra förvaring i form av 4 garderober. Från ena sovrummet har man utgång till stor balkong med trevlig utsikt. Badrummet är smakfullt renoverat och har klinkergolv med golvvärme samt helkaklade väggar, badkar, duschplats, handfat och wc.
PLANLÖSNING SUTERRÄNGPLAN: Hall med klinkergolv och en stor, praktisk klädkammare. Rejält allrum med parkettgolv och utgång till altan och trädgård. Detta rum går enkelt att dela av till ytterligare sovrum om man så önskar. Bredvid detta rum finns ett sovrum med parkettgolv och ljusa väggar.
Tvättstugan har tvättmaskin, torktumlare och torkskåp samt bra förvaring i flera garderober. Här nere finns dessutom ett stort och praktiskt förråd.
Frånluftsvärmepump med värmeåtervinning samt solceller ger låga energikostnader.
I Ängås bor man barnvänligt med naturen och havet som grannar men med staden på bekvämt avstånd. Bebyggelsen består huvudsakligen av radhus och villor. I området finns flera grönområden varav ett är Välen och på cykelavstånd finns småbåtshamnar, fina badplatser så som Marholmen, Askimsviken, Näsetbadet mm. På promenadavstånd finns även skola, förskola, bra kommunikationer. I området finns även World of Golf för den golfintresserade samt Frölunda Torg med över 200 butiker.



Entréplan
Övre plan
Suterrängplan
Järnbrott 193:28
*Uppmätt i samband med energideklarationen
Mindre redskapsbod på baksidan. Cykelförråd några meter från huset.
Fina uteplatser på såväl fram som baksida av huset. Här har man möjlighet till sol från morgon till kväll. På övre plan finns dessutom en stor terrass med trevlig utsikt över gården och närområdet.
Kommunalt vatten, Kommunalt avlopp.
2 p-platser nära huset.
Detaljplan (2001-05-15) Fornlämning (1 st)
Gemensamhetsanläggning: Göteborg järnbrott ga:26 ändamål: Garage och/eller parkering, Kvartersanläggning, Vägar, Grönområden, Avloppsanläggning, Radio- TV och/eller tele, Elledning och/eller belysning
Samfällighet: Göteborg järnbrott s:107
Fiber är installerat.
Preliminärt september 2026
Det finns 3 st pantbrev uttagna om sammanlagt 4 200 000 kr
Göteborg är Sveriges näst största stad och den expanderar hela tiden. Staden har ett fint läge på västkusten vid Göta älvs mynning. Det salta västerhavet erbjuder många härliga badplatser. Här finns också en levande skärgård med åretruntboende. Göteborg är även känd som evenemangsstaden med stråket från Ullevi till Svenska Mässan och Liseberg, ett stenkast från paradgatan Avenyn.
Varvsindustrin är numera nedlagd i Göteborg, här byggs i stället attraktiva bostadsområden längs älvstranden. Göteborg är också en universitetsstad med välkända Chalmers tekniska högskola och Göteborgs Universitet samt ett blomstrande näringsliv.
Köpa, sälja eller värdera bostad i Göteborg? Kontakta våra mäklare i Göteborg! Passa också på att anmäla dig till vår kostnadsfria söktjänst Boagenten som hjälper dig att hitta ditt drömboende.
Kontakta mäklaren om du behöver hjälp att ta fram en boendekalkyl.
När du köper din bostad genom Bjurfors kan du ansöka om bolån till en förmånlig ränta hos våra banksamarbetspartners Söderberg & Partners och SEB.