-
Köpa
Köpa -
Sälja
Sälja - Hitta bostad
- Skapa bevakning
- Hitta mäklare
Rymligt hus i Askim med uthyrningsmöjligheter eller generationsboende
Askim - Hult, Göteborg
På Förhand ligger bostäder som av olika anledningar inte är ute till försäljning just nu men som kan komma att säljas om förutsättningarna är rätt.
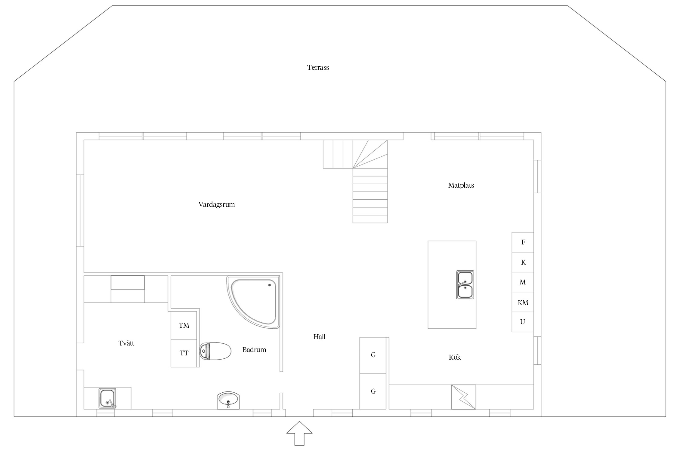
Hemmet på Hults gata 9 erbjuder en imponerande sällskapsdel med en takhöjd som når upp till 5,5 meter i vardagsrummet, vilket bidrar till en känsla av rymd och öppenhet och i de övriga delar är takhöjden väl tilltagen (2,70 m). De stora fönsterpartierna släpper i mycket ljus och skapar en harmonisk och vacker miljö. Hallen har ett naturstensgolv och bra förvaring, vilket ger en praktisk och stilren entré till hemmet.
Med ljus basfärg och rå natursten skapas en stilren och tidlös atmosfär. De bra arbetsytorna och förvaringslösningarna gör det praktiskt för både matlagning och samvaro. Den stora köksön är perfekt för sociala tillställningar, och maskiner i rostfritt stål ger en modern touch. Induktionshäll i specialstorlek från Bosch med snygg fläkt från Electrolux (120 cm). Lyxig kyl/frys (side-by-side) i svart från Samsung med extra djup och höjd. Matsalsdelen med plats för många gäster gör det till en idealisk plats för finsmakare och familjer som uppskattar gemenskap.
Från vardagsrummet och matplatsen finns utgång till den stora terrassen som omger huset och erbjuder en härlig utsikt över den grönskande nejden.
På entréplan finns ett generöst helkaklat badrum som erbjuder utrymme modern stil. Det inkluderar ett snyggt tvättställ i betong, en toalett, ett stort bubbelbadkar samt en duschhörna, vilket ger både funktionalitet och komfort. Golvet är klätt med svart natursten, vilket bidrar till en elegant och tidlös estetik. Dessutom är badrummet kopplat till en praktisk tvättstuga med en groventré som gör det enkelt att hantera tvätt och andra hushållssysslor.
Övervåning:
Övervåning som har fyra sovrum, inklusive ett master bedroom med fransk balkong och en rymlig garderob med spegelskjutdörrar. Badrummet är inrett med svart mosaik på väggarna och ett spegelblankt svart klinkergolv, vilket ger en murrig känsla. Hela huset har ljusa väggar och ekparkettgolv, förutom våtutrymmena där används natursten eller klinker. Värmesystemet består av vattenburen golvvärme på entréplanet och radiatorer på övervåningen.
Lägenheten/ Souterrängplan:
På souterrängplan finns en inredd lägenheten om ca 94 kvm. Lägenheten har tre rum, två sovrum, ett badrum och kök för uthyrning, generationsboende eller egen verksamhet. Idag har lägenheten en egen ingång och en egen parkeringsplats.
Lägenheten kan integreras i bostadsdelen genom att man förberett plats i golvet för att ta upp trappan ner om behov finns. Lägenheten ger goda möjligheter till finansiering av boendet om man väljer att hyra ut eller använda den för egen verksamhet.
Bostadsytan är inte uppmätt, är det av väsentlig betydelse bör uppmätning göras. VA samt uppvärmningskostnaden är totalt för 8 personer.
Trädgård:
Sluttningstomt med gräsmatta. Stor stenlagd uppfart framför huset med plats för fyra bilar samt en separat parkeringsplats för lägenheten. Uteförråd om ca: 12 kvm.
Huset har flera terrasser, på husets fram och baksida.
I populära Hult i Askim bor ni i ett barnvänligt område med direkt närhet till flera bra förskolor och den nybyggda Hultskolan. Inom kort gångavstånd når du fina badvikar vid havet och vacker natur. Du är samtidigt nära kommunikationer och all tänkbar service och handel finns på bekvämt avstånd.



Entréplan
Övreplan
Souterrängplan
Hult 41:10
2024- Ytbehandling av tak.
Målning av staket och tvätt av fasad. Ny trall av altan vid husets kortsida. Ny toalett i övervåningen.
2023- Ny bergvärmepump. Installation av fiber. Ny vask, blandare, espressomaskin, i köket. Spolning av avloppsrör.
2022- Ny espressomaskin, ny ugn samt ny tvättmaskin installerades. Nytt staket.
2021-En glasvägg sattes upp på övervåningen. Utbyggnad av altan vid jacuzzin och ny jacuzzi.
2020- Ny torktumlare. Ny parkett på entréplan och nya lister. Ny trall på baksidan.
2019- Målning av huset på in och utsida. Ny häll och diskmaskin.
2018- Ny trall vid entrén.
2017- Utbyggnad av altan mot väst.
Balkong och flera altaner
Stenlagd parkeringsplats för fyra bilar
Fiber
I uppvärmningskostnaden ingår elkostnaden om ca 15 000 kr.
Det finns 7 st pantbrev uttagna om sammanlagt 6 569 000 kr
Bekvämt, naturskönt och stadsnära är för många ord som beskriver livskvalitet.
Att se havets skiftningar över året, andas in den friska, salta luften och känna den där sköna tryggheten i sitt eget gemytliga hemmakvarter – det är också livskvalitet. Det sammanfattar livet i Askim ganska bra.
OMRÅDET
Med sköna, gröna naturområden i ryggen och blicken mot havet är det lätt att njuta året om. Av såväl vinande höstvindar och klara, kalla vinterdagar med rimfrost och hög luft som ljumma, ljuva sommarkvällar, eller en promenad efter ett uppfriskande vårregn. Genom århundraden har familjer förstått att detta är platsen för att hitta harmonin och trivas. Det har skapat ett område med en skön blandning av villor i alla storlekar och stilar. Från pittoreska sekelskifteshus och sommarstugetorp till ultramoderna objekt, där Bel-Air möter nyfunkis. Trots det havsnära läget och lugnet, känns Askim som en självklar del av staden och det är aldrig långt till närmsta butik, eller centrala delarna av Göteborg. Endast 20 minuter med expressbussarna som går var 10:e minut eller varför inte ta cykeln längs Säröbanan? En nedlagd tågbana som förr transporterade badgäster till Askim och Särö
– ett minne av svunna tiders exklusiva sommartillhåll.
NATUR OCH FRITID
Som boende i Askim är man nästan oförskämt bortskämd med badmöjligheter. Förutom havet finns inte bara en, utan två vackra badsjöar inom räckhåll: Sisjön med fina motionsspår och naturstigar och så Oxsjön, vid kanten av Sandsjöbacka naturreservat med härliga strövområden och öppna ljunghedar. Längs Askimsviken finns flera olika badplatser att välja på och som askimsbo skapar man gärna sina egna smultronställen bland sandstränder och härliga klippor, eller Askimsbadet med sin härliga badpir. Varma sommardagar myllrar badet av soltörstande göteborgare. Desto mer rofyllt och härligt är det att slå sig ner med en bok och en kopp kaffe på piren en klar hösteftermiddag. Askim är förstås mycket mer än så. Som om det inte vore nog med de naturliga grönområdena, finns en av de bästa golfbanorna att välja på: anrika Göteborgs golfklubb, som är Sveriges äldsta golfbana. För den som har andra intressen än golf finns mycket att ägna sin tid åt, som tennis, simning, fotboll och löpning eller längdskidåkning i fantastisk natur. Kort sagt; det blir aldrig tråkigt i Askim. Tempot upplevs bara lite lugnare här.
Köpa, sälja eller värdera bostad i Hult, Askim? Kontakta våra mäklare i Västra Göteborg! Passa också på att anmäla dig till vår kostnadsfria söktjänst Boagenten som hjälper dig att hitta ditt drömboende.
Kontakta mäklaren om du behöver hjälp att ta fram en boendekalkyl.
När du köper din bostad genom Bjurfors kan du ansöka om bolån till en förmånlig ränta hos vår samarbetspartner SEB.
Ansvarig mäklare