-
Köpa
Köpa -
Sälja
Sälja - Hitta bostad
- Skapa bevakning
- Hitta mäklare
Klassiskt 40-talshus i tidlös folkhemsstil
Askim, Göteborg
*Areauppgifter enligt taxeringsinformationen
Välkommen till detta gedigna och välbyggda funkishus från 1940-talet – ett hem där tidstypisk arkitektur, generösa ytor och varm hemtrevnad möts.
Välkommen till detta gedigna och välbyggda funkishus från 1940-talet – ett hem där tidstypisk arkitektur, generösa ytor och varm hemtrevnad möts i perfekt harmoni. Den mjukare funkisstilen ger huset ett elegant och tidlöst uttryck som står sig lika vackert idag som när det en gång uppfördes.
Huset är uppfört i två plan om totalt ca 240 kvm inklusive källare och kompletteras av ett fristående garage. Stora fönsterpartier i alla väderstreck skapar ett fantastiskt ljusflöde, i samspel med generös takhöjd som förstärker känslan av rymd och kvalitet.
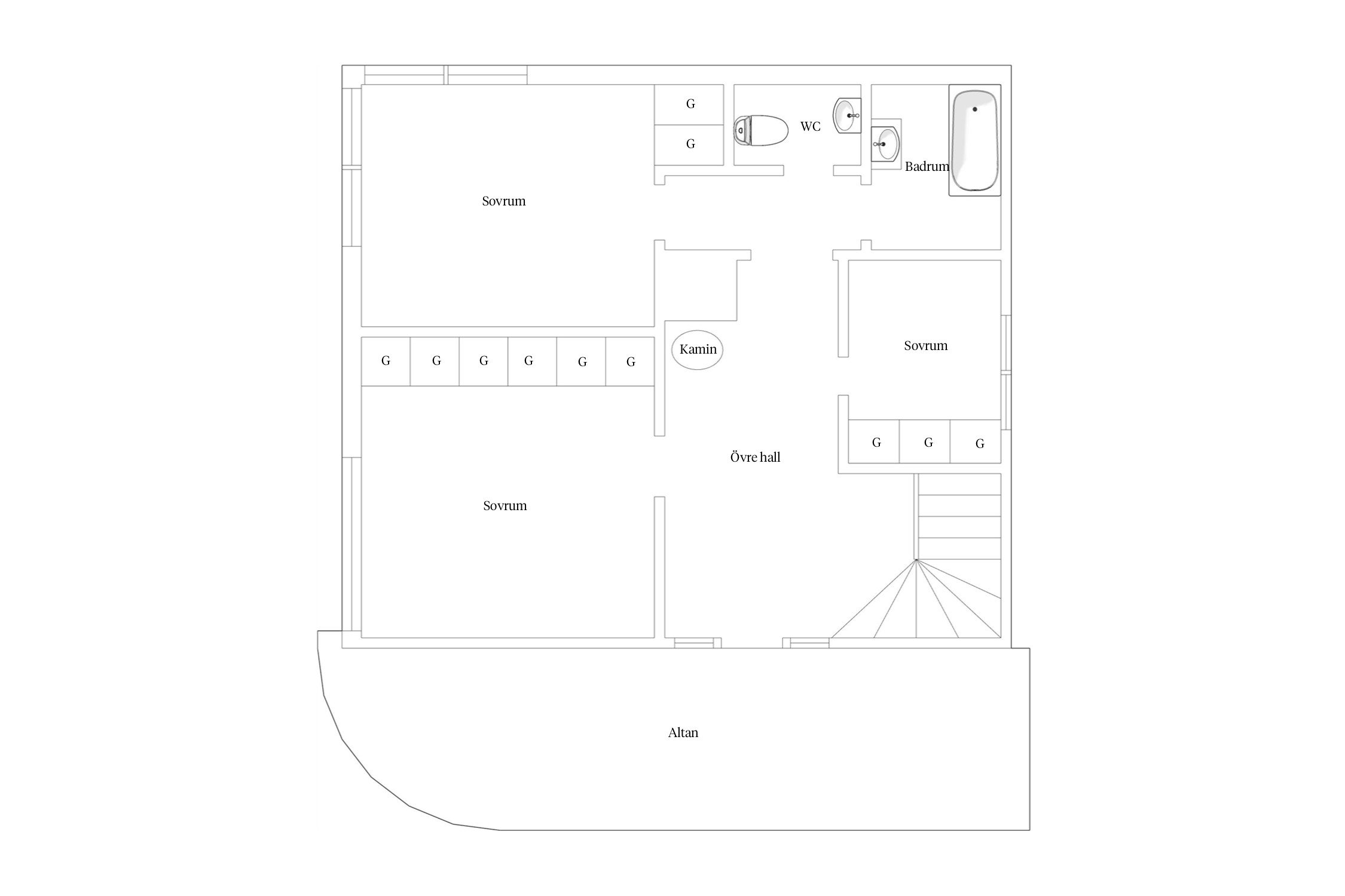
Planlösningen är genomtänkt och funktionell – skapad för ett trivsamt familjeliv. Entréplanet erbjuder inbjudande sällskapsytor med ett stort vardagsrum och en separat matsalsdel, perfekt för både vardag och fest. Det angränsande köket har plats för matbord och bjuder in till gemenskap. På detta plan finns även ett av husets fyra sovrum, idag använt som kontor.
Övre plan rymmer tre rymliga sovrum, ett badrum samt en generös hall med stämningsfull braskamin – perfekt under årets kallare månader. Härifrån nås den stora terrassen med vacker utsikt över omgivningarna med förmiddagssol och kvällssol.
Källarplanet erbjuder gott om praktiska biytor med tvättstuga, förvaring och pannrum. Här finns även ett extra badrum samt möjlighet att skapa ett större allrum eller hobbyutrymme efter behov.
Detta är ett vackert och karaktärsfullt 40-talshus med tydlig folkhemskänsla – ett hem där funktion, ljus och klassisk arkitektur samverkar på bästa sätt. Ett perfekt val för er som drömmer om att skapa ett personligt och långsiktigt drömhem i ett hus med själ och historia.
Här bor du i ett tryggt, grönt och barnvänligt område nära skolor, förskolor, natur och hav. På cykelavstånd väntar salta bad längs Gamla Säröbanan och Sandsjöbackas naturreservat erbjuder fantastiska strövområden vid sjöar som Sisjön och Oxsjön.
Bara några minuter bort ligger det populära bageriet Brödhuset – perfekt för helgens frukost. Goda kommunikationer med expressbussar och närhet till 158:an gör resan in till Göteborg smidig och snabb.



Askim 60:26
*Areauppgifter enligt taxeringsinformationen
2005 Installerades bergvärme. 2021-24 Byttes delar av fönstren ut. 2021 Dränerades delar av grunden. 1998 Renoverades köket. 1989 Tilläggsisolerades putsfasaden med cellplast.
Kommunalt vatten, Kommunalt avlopp.
Byggnadsplan (1968-09-05)
Gemensamhetsanläggning: Göteborg askim ga:25 ändamål: Vägar
Det finns 7 st pantbrev uttagna om sammanlagt 1 135 770 kr
BO I POPULÄRA ASKIM
Bekvämt, naturskönt och stadsnära är för många ord som beskriver livskvalitet. Att se havets skiftningar över året, andas in den friska, salta luften och känna den där sköna tryggheten i sitt eget gemytliga hemmakvarter – det är också livskvalitet. Det sammanfattar livet i Askim ganska bra.
LIVSKVALITÉ PÅ HEMMAPLAN
Med sköna och gröna naturområden i ryggen och blicken mot havet är det lätt att njuta av Askim året om. Av såväl vinande höstvindar och klara, kalla vinterdagar med rimfrost och hög luft som ljumma, ljuva sommarkvällar, eller en promenad efter ett uppfriskande vårregn. Genom århundraden har familjer förstått att detta är platsen för att hitta harmoni och trivas. Det har skapat ett område med en skön blandning av villor i olika storlekar och stilar. Från pittoreska sekelskifteshus och sommarstugetorp till ultramoderna objekt - Bel-Air möter nyfunkis. Trots det havsnära läget och lugnet, känns Askim som en självklar del av staden och det är aldrig långt till närmsta butik. Till de centrala delarna av Göteborg tar det bara 20 minuter med expressbussarna eller varför inte ta cykeln längs Säröbanan? En nedlagd tågbana som förr transporterade badgäster till Askim och Särö – ett minne av svunna tiders exklusiva sommartillhåll.
NATURRESERVAT OCH BADPLATSER
Som boende i Askim är du nästan oförskämt bortskämd med badmöjligheter. Förutom havet finns inte bara en, utan två vackra badsjöar inom räckhåll. Du har Sisjön med fina motionsspår och naturstigar och Oxsjön vid kanten av Sandsjöbacka naturreservat med härliga strövområden och öppna ljunghedar. Längs Askimsviken finns många olika badplatser att välja på och som askimsbo hittar du dina egna smultronställen bland sandstränder och härliga klippor. Askimsbadet bjuder på en härlig badpir och varma sommardagar myllrar badet av soltörstande göteborgare. Desto mer rofyllt är det att slå sig ner med en bok och en kopp kaffe på piren en klar hösteftermiddag.
Askim är förstås mycket mer än så. Som om det inte vore nog med de naturliga grönområdena finns anrika Göteborgs golfklubb vilken är Sveriges äldsta golfbana. Du har också möjligheter till andra sporter som tennis, simning, fotboll och löpning eller varför längdskidåkning i fantastisk natur? Kort sagt - det blir aldrig tråkigt i Askim, tempot upplevs bara lite lugnare här.
Köpa, sälja eller värdera bostad i Askim? Kontakta våra mäklare i Västra Göteborg! Passa också på att anmäla dig till vår kostnadsfria söktjänst Boagenten som hjälper dig att hitta ditt drömboende.
Kontakta mäklaren om du behöver hjälp att ta fram en boendekalkyl.
När du köper din bostad genom Bjurfors kan du ansöka om bolån till en förmånlig ränta hos våra banksamarbetspartners Söderberg & Partners och SEB.
| Bud | Budgivare | Datum | Tid |
|---|---|---|---|
| 8 050 000 kr | Budgivare 4 | 2026-03-20 | 21:47 |
| 7 950 000 kr | Budgivare 3 | 2026-03-20 | 09:39 |
| 7 900 000 kr | Budgivare 4 | 2026-03-20 | 09:33 |
| 7 850 000 kr | Budgivare 3 | 2026-03-19 | 22:19 |
| 7 800 000 kr | Budgivare 2 | 2026-03-19 | 21:43 |
| 7 750 000 kr | Budgivare 3 | 2026-03-19 | 19:10 |
| 7 700 000 kr | Budgivare 2 | 2026-03-19 | 19:09 |
| 7 650 000 kr | Budgivare 3 | 2026-03-19 | 15:29 |
| 7 600 000 kr | Budgivare 2 | 2026-03-18 | 15:56 |
| 7 500 000 kr | Budgivare 1 | 2026-03-18 | 10:11 |