-
Köpa
Köpa -
Sälja
Sälja - Hitta bostad
- Skapa bevakning
- Hitta mäklare
Två terrasser!
Centrala Hisingen, Göteborg
*I avgiften ingår värme, kallvatten, TV, bredband och IP-telefoni (ej samtalskostnad). Individuell mätning av varmvatten, förbrukningen debiteras på månadsavgiften var tredje månad.
**
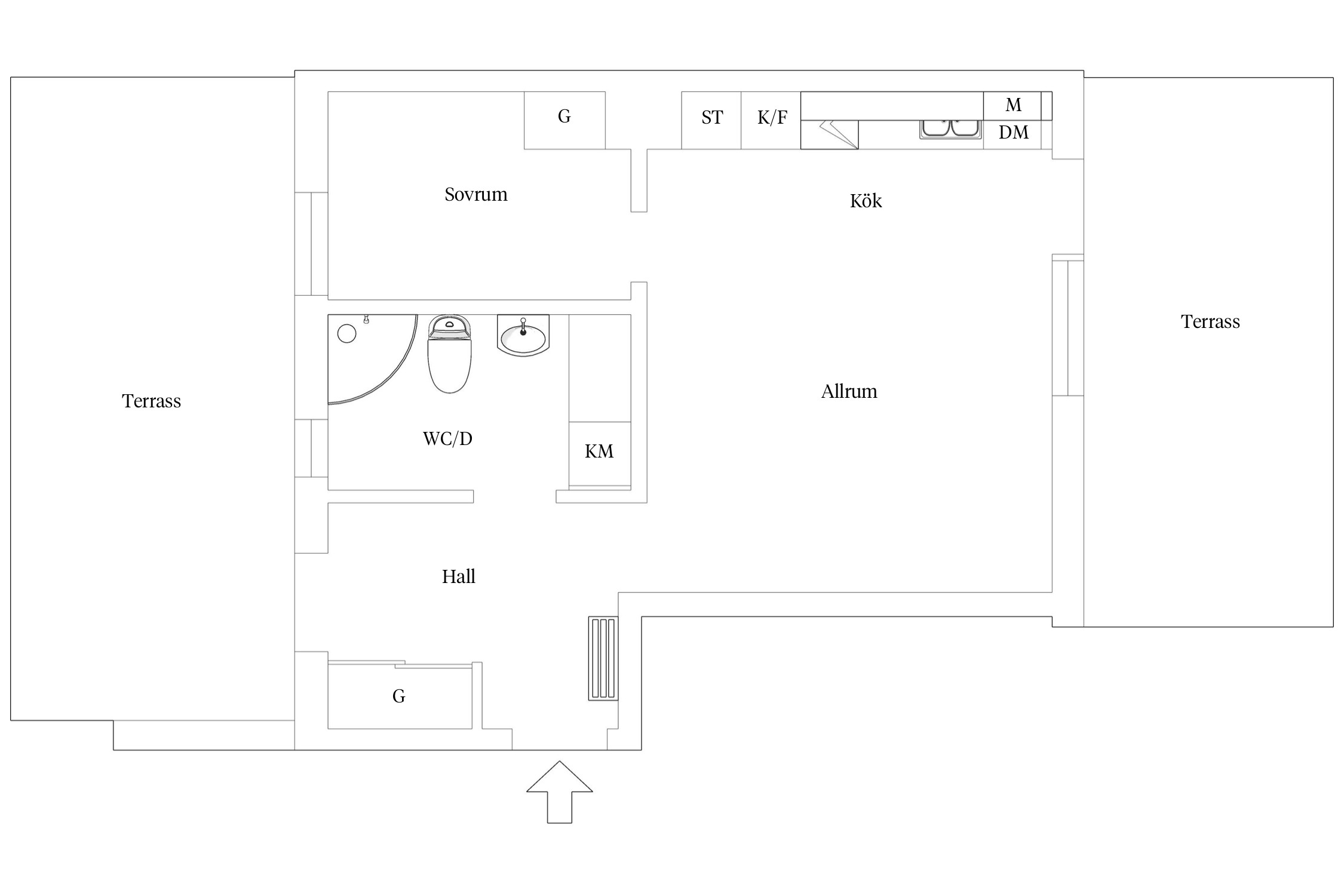
Disponeras som 2 rum och kök enligt planlösning. Registrerad som 1 rum och kök hos föreningen.
Välplanerad och modern genomgångstvåa från 2016 med låg avgift och med två stora terrasser och fantastisk utsikt över centrala Göteborg.
UNIK CHANS! Låt mig presentera den sällsynta möjligheten att förvärva en av de fantastiska tvåorna från 2016 med, inte bara en utan, två terrasser på Fruktträdsgatan 2! Här finner du en välplanerad bostad om 40 kvm som präglas av enhetligt parkettgolv, generöst ljusflöde och modern komfort. Du bjuds på ett elegant utformat boende med öppna och sociala ytor där ett stilrent kök som utrustat för vardagen vävs samman med ett rymligt vardagsrum. Vidare har du ett sovrum som rymmer in en dubbelsäng och arbetsplats om så behövs. Här finns även ett helkaklat badrum i tidlöst utförande med egen tvättavdelning och fönster som ger ett härligt ljusinsläpp. Det mest fantastiska med denna bostad är att du har två generösa terrasser i varsitt väderstreck (öst och väst) - detta gör att du följa solen hela dygnet. Eftersom du bor högst upp så kan du njuta helt insynsfritt av en enastående utsikt över takåsarna på intilliggande bostadsområde eller grönområdena beroende på vilken sida du väljer.
I attraktiva Hildedal Park bor man naturskönt samtidigt som stadskärnan ligger på nära avstånd, bara på några minuter med buss är man mitt i city. Via ett välutbyggt nät av gång- och cykelvägar är det snabbt och enkelt att ta sig mellan matbutiker, köpcentrum, service och skolor. I Kvillebäcken en bit bort finns stort serviceutbud och en välsorterad saluhall samt mysiga caféer. Trots att du bor nära stan kan du leva naturnära och ute i friska luften. Här bor man alldeles invid Hisingsparken som erbjuder vackra omgivningarna med vattendrag och djup skog. I anslutning till husen finns ett utomhusgym och inte långt härifrån ligger Sankt Jörgens Park Resort.
Kontakta mäklaren för mer information!
Högst upp på våning 4 av 4 finner du denna unika genomgångstvåa i modernt utförande med två terrasser. Trivselfaktorn är hög med gott ljusinsläpp och genomgående fint parkettgolv som nyligen slipades och ljusbehandlades.
Du har en öppen och social planlösning och bostaden disponeras enligt följande:
Kliv in och välkomnas av hallen som erbjuder avhängning samt goda förvaringsmöjligheter genom en skjutdörrsgarderob. Från hallen når du bostadens första terrass som ligger i östläge med morgon- och förmiddagssol samt en storslagen utsikt över staden. Här kan du njuta helt insynsfritt och terrassen är väldigt rymlig med om plats för soffgrupp, matbord samt övrigt möblemang.
Köket är i stilrent utförande med modern köksinredning, där vita släta luckor vävs samman med vitt kakel och en grå laminatbänksskiva. Maskinell utrustning består av diskmaskin, inbyggd micro, fläkt, ugn med spishäll samt kombinerad kyl och frys. Ett middagsbord för 4 personer får plats intill fönstret.
Vardagsrummet ligger i öppen planlösning till köket och är lätt att möblera efter personligt tycke med plats för soffgrupp med tillhörande möblemang. Stora fönsterpartier dränker rummet i solljus och som en förlängning av de sociala ytorna nås bostadens andra terrass. Även denna är väl tilltagen i storlek med plats loungemöbler och tillhörande möblemang. Här pekar det åt väster vilket innebär eftermiddags- och kvällssol med en rogivande utsikt mot de närliggande grönområdena.
Sovrummet ligger avskilt längst in i bostaden och rymmer med lätthet en dubbelsäng samt arbetshörna.
I direkt anslutning till hallen nås det helkaklade badrummet i tidlösa färgval, på golvet ligger mörkgrå klinker och väggarna är kaklade i vitt. Här finns en toalett, handfat med kommod, badrumsskåp med spegel, duschhörna med vikbara dörrar av glas samt en kombinerad tvättmaskin och torktumlare med arbetsbänk ovan för bekvämligheten i vardagen.
Välkommen på visning!



*
Disponeras som 2 rum och kök enligt planlösning. Registrerad som 1 rum och kök hos föreningen.
I avgiften ingår värme, kallvatten, TV, bredband och IP-telefoni (ej samtalskostnad). Individuell mätning av varmvatten, förbrukningen debiteras på månadsavgiften var tredje månad.
Relevant andelstal gällande andel i förening har ej gått att få fram från föreningen eller förvaltaren.
Bostadsrättens indirekta nettoskuldsättning baseras på föreningens skulder/lån minus föreningens räntebärande tillgångar och likvida medel. Beräkningen är gjord via Bopedia. För mer information kontakta ansvarig fastighetsmäklare.
Uppgifterna kan variera beroende på förbrukning och skall ses som ett riktvärde.
*Betalas av köpare
BRF Kärnhuset är en äkta bostadsrättsförening i Hisingen, Göteborg som äger 1 fastighet med 50 bostadsrättslägenheter på adresserna Fruktträdsgatan 2, Fruktträdsgatan 4, Fruktträdsgatan 6, och Fruktträdsgatan 8. Huset var färdigt 2016 och är byggt med total svanenmärkning vilket innebär en skön inomhusmiljö och låga uppvärmningskostnader.
Föreningen äger fastigheten GÖTEBORG TUVE 15:191.
Avgiften kommer att höjdes med 2% vid årsskiftet 2025/2026. Inga övriga planerade avgiftsförändringar.
Fastigheten är fullvärdesförsäkrad hos Trygg Hansa. I föreningens fastighetsförsäkring ingår bostadsrättstillägg för föreningens medlemmar och ansvarsförsäkring för styrelsen.
Utförda:
2018 - 2-års besiktning
2021 - Några laddningsstationer har byggts på parkeringsplatserna. 5-års besiktning genomförd - alla anmärkningar åtgärdade februari 2022.
2022 - OVK
2024 - Underhållsspolning och dammbindning. Tvätt och oljning av skärmväggar mellan uteplatserna.
2025 - OVK
Inga övriga planerade renoveringar.
En 30-årig underhållsplan upprättades 2018.
Det finns 35 parkeringsplatser att hyra för 515 kr/månad, för plats med laddstation är hyran 675 kr/mån (kostnad el tillkommer). Till dessa är det separat kö. Det finns några få besöksparkeringar i området.
Huset är anslutet till Telia Triple Play. TV, internet och IP-telefoni
Det finns utomhusgym, lekplats, mysig gård med gräsytor, samt miljöhus med källsortering.
I huset finns gemensamma utrymmen för lägenhetsförråd samt cykel- och barnvagnsrum. Dessutom finns gemensamt Telia Triple Play och postboxar i entrén.
Informationen är hämtad från styrelse och årsredovisning, vi ansvarar inte för att uppgifterna är korrekta utan råder dig att kontrollera det som är av betydelse.
BO MELLAN CITYPULS OCH NATUR
På Centrala Hisingen finner du allt du behöver kombinerat med vacker natur och närheten till havet. På älvsidan har du moderna och internationella Älvstranden, i väst fantastiska badvikar och på norra delen av ön möter skogen dig.
HÄR FINNS NÅGOT FÖR ALLA
Hisingen är Sveriges fjärde största ö omgärdad av Göta älv i syd och öster, Nordre älv i norr samt Kattegatt i väster. På Centrala Hisingen hittar du flera mindre områden som Brämaregården som främst består av vackra landshövdingehus. Kvilletorget är områdets nav med flera butiker och restauranger. Precis bredvid ligger Kvillebäcken som genomgår en stor förvandling som en del av expansionen och förnyelsen av Backaplansområdet. Nya Kvillebäck, som ligger granne med Backaplan, och har blivit en populär stadsdel och här hittar du populära Kville Saluhall. Norr om Kvillebäcken har gemytliga trädgårdsstaden Hildedal växt fram. Här finner du flerbostadshus och parhus med antingen balkonger eller egen liten trädgård. Grönytorna lika viktiga som byggnaderna och området liknar en småstad med parker och andra gemensamma gröna ytor. Populära Lundby bjuder på en bebyggelse som blandar flerfamiljshus, radhus och villor med företagsparker. Här finns ett rikt näringsliv med företag i alla storlekar. Intill kajkanten ligger Norra Älvstranden. Det är ett av Göteborgs mest expansiva områden och här finner du vackra promenadstråk och bostadskvarter precis vid vattnet. Varför inte ta dig en löptur längs den träbeklädda kajen som sträcker sig från bro till bro?
SALTA BAD OCH FÖRSTKLASSIG SHOPPING
Hisingsparken är Göteborgs största park och här hittar du vackra naturpartier, vandringsstigar och 4H-gården Kättilsröd, som är uppskattad av både stora och små. På Centrala Hisingen ligger Keillers Park med Ramberget. Med sina 87 meter är berget ett markant landmärke och utsikten från toppen är en av Göteborgs bästa. När du bor på Hisingen har du alltid nära till havet. Flera fina badplatser ligger på ön och lockar året om med salta bad. Många av dem hittar du i Torslanda dit du enkelt tar dig med buss.
När du blir sugen på shopping finns flera bra shoppingområden. Backaplan, som genomgår en omfattande utveckling, är det största och här finner du de flesta stora affärskedjor. Med buss eller spårvagn når du centralstationen och innerstaden på några få minuter. I området finns det gott om förskolor och grundskolor att välja på. Nära ligger också expansiva Lindholmen Science Park som erbjuder två universitet och åtta gymnasieskolor.
Köpa, sälja eller värdera bostad på Centrala Hisingen? Kontakta våra Bjurfors mäklare på Hisingen! Passa också på att anmäla dig till vår kostnadsfria söktjänst Boagenten som hjälper dig att hitta ditt drömboende.
Kontakta mäklaren om du behöver hjälp att ta fram en boendekalkyl.
När du köper din bostad genom Bjurfors kan du ansöka om bolån till en förmånlig ränta hos våra banksamarbetspartners Söderberg & Partners och SEB.
Ansvarig mäklare