-
Köpa
Köpa -
Sälja
Sälja - Hitta bostad
- Skapa bevakning
- Hitta mäklare
Rymlig och unik trea med två balkonger och flera renoveringar!
Centrala Hisingen, Göteborg
*I avgiften ingår värme, digital-TV, bredband, IP-telefoni via Telia Triple Play samt bostadsförsäkring. Av månadsavgiften 7 050 kr avser 1 190 kr årsavgift kapital. Avgift för varm- & kallvatten samt el tillkommer och debiteras efter faktisk förbrukning.
Bokad visning. Du kan även ringa Bjurfors Bokningscenter 031-761 79 50. Välkommen!
En rymlig och modern trea med två balkonger i två väderstreck. Här bor du i en uppdaterad bostad med mycket trevliga val.
Rymlig och modern trea som är renoverad med flera trevliga val och uppdateringar. Bostaden har genomgående parkettgolv och ljust målade väggar. Öppen planlösning mellan kök och vardagsrum, härifrån når man lägenhetens två balkonger i två olika väderstreck. Vidare är badrummet helkaklat i tidlösa toner med egen tvättavdelning och du finner två rymliga sovrum varav ena har en klädkammare i anslutning. Till bostaden hör ett förråd.
Här bor man omgivet av äldre landshövdingehus i ett boende med bekvämligheterna som följer med en nyproduktion i en välskött förening
Huset är en arkitektritad byggnad färdigställd så sent som 2018. Huset är genomgående jobbat med Svanenmärkt furu för att skapa en mjuk, varm och levande trävärld. Gårdsmiljön är inbjudande och socialt utformad med mycket växter, träd, avskilda sittgrupper, gemensamma balkonger och trädäck i olika nivåer. Direkt utanför dörren möts du av populära Brämaregårdens charm och lokala utbud av butiker och bagerier. På gångavstånd ligger Backaplan, ett av Sveriges största handelsområden, med ett brett utbud av shopping, träning, saluhall och spännande smakupplevelser med en bred ekologisk prägel. Även kommunikationerna till och från området är mycket bra genom både buss och spårvagn som tar dig enkelt in till centrala Göteborg på bara 5 minuter. Du når även på några minuter promenadstråken längs Lindholmen eller naturen vid Ramberget med utsikt över Göteborg.
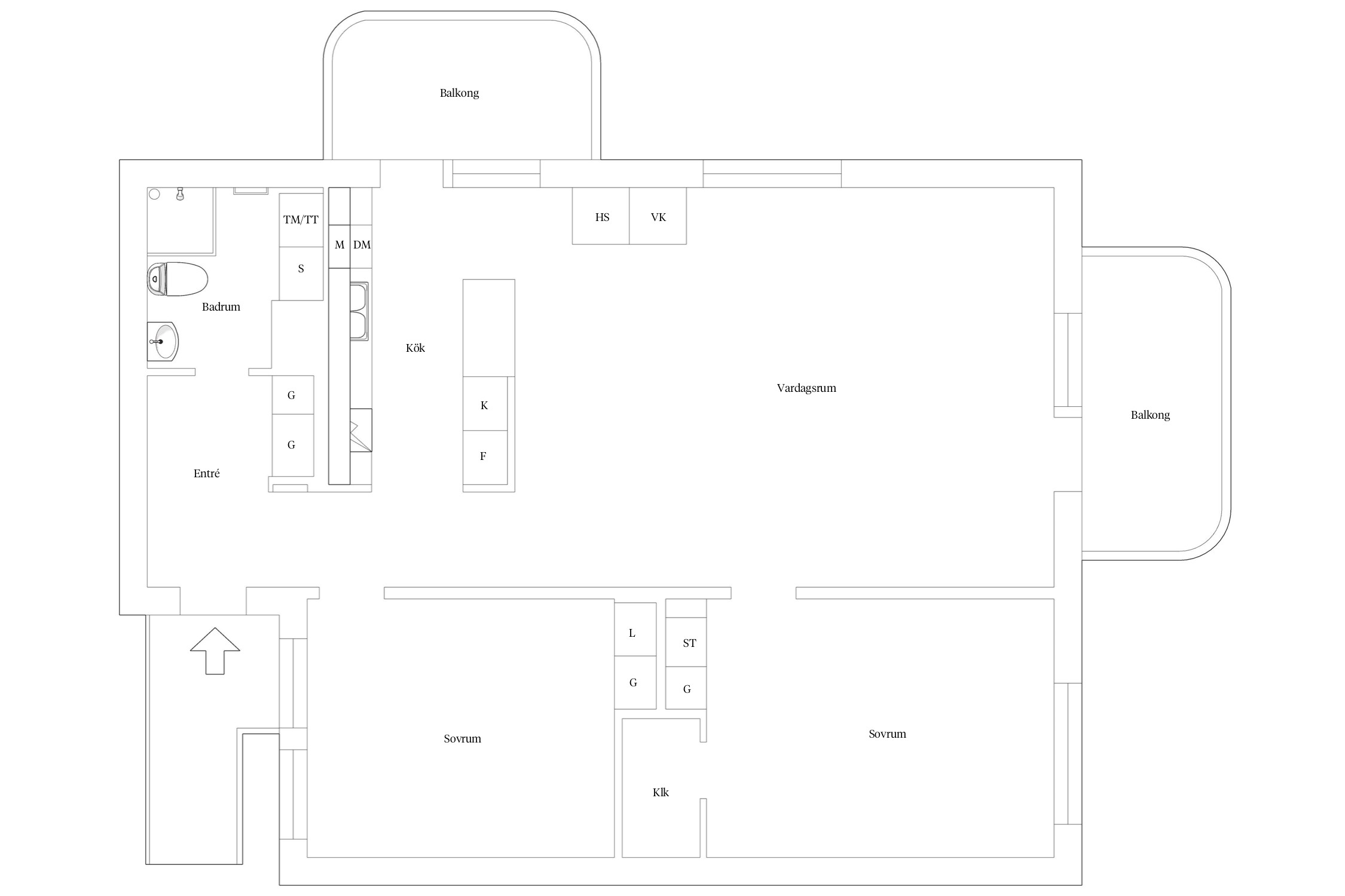
I ett arkitektritat hus finner du denna moderna trea om 78 kvm i nyskick där bostaden är förmånligt utrustad med två balkonger! Trivselfaktorn är hög med gott ljusinsläpp, ljusa väggar och genomgående fint parkettgolv. Du har en väldigt rymlig och öppen planlösning som bjuder in till sociala sammankomster. Bostaden disponeras enligt följande:
Hall:
Kliv in och välkomnas in till hallen som erbjuder goda förvarings- och avhängningsmöjligheter genom en garderobsvägg. Väggarna är ljusa och du möts av den vackra parketten som fortsätter genomgående i bostaden.
Kök:
Det välutrustade köket från Vedum är i stilrent utförande med kvalitetssäkrade vitvaror från Siemens. Släta vita luckor, vitt kakel och en ljus laminatbänkskiva sätter sin prägel. Maskinell utrustning består av diskmaskin, fläkt, ugn med häll, inbyggd micro samt fullstor kyl och frys. Köket ligger med halvöppen planlösning mot vardagsrummet med en köksö som avgränsar och från köket nås bostadens första balkong. Köket förlängs mot vardagsrummet med en inbyggd vinkyl och kaffemaskin i högskåp samt vitrinskåp.
Vardagsrum:
Vardagsrummet är lätt att möblera efter personligt tycke och smak med plats för soffgrupp med tillhörande möblemang och ett större middagsbord för flera gäster om så önskas. Stora fönsterpartier skänker härligt ljus in i rummet och den sociala planlösningen ger rummet en rymlig känsla. Som en förlängning av sällskapsytorna nås bostadens andra balkong härifrån och erbjuder ett härligt sydostligt läge med förmiddagssol.
Sovrum:
Bostaden har två rymliga sovrum likvärdig i storlek. Båda rummer rymmer med lätthet en dubbelsäng samt tillhörande möblemang och har inbyggda garderobslösningar. Det ena sovrummet har även en tillhörande klädkammare som underlättar förvaringen.
Badrum:
I anslutning till hallen nås det stilrena badrummet i tidlösa färgval. På golvet ligger grå klinker och väggarna är kaklade i vitt. Här finns en toalett, handfat med kommod, badrumsskåp med spegel, handdukstork samt duschhörna med vikbara dörrar av glas. I taket sitter spotlights och för bekvämlighet i vardagen finns en tvättavdelning med tvättmaskin och torktumlare. Här erbjuds även god förvaring bakom skjutdörrar med speglar.
Varmt välkommen på visning!



*Två trappor upp från gatan.
I avgiften ingår värme, digital-TV, bredband, IP-telefoni via Telia Triple Play samt bostadsförsäkring. Av månadsavgiften 7 050 kr avser 1 190 kr årsavgift kapital.
Avgift för varm- & kallvatten samt el tillkommer och debiteras efter faktisk förbrukning.
Bostadsrättens indirekta nettoskuldsättning baseras på föreningens skulder/lån minus föreningens räntebärande tillgångar och likvida medel. Beräkningen är gjord via Bopedia. För mer information kontakta ansvarig fastighetsmäklare.
Driftskostnader är en uppskattning och kan variera beroende på förbrukning och avtal.
*Betalas av köpare
Brf Qvillestaden är en nybildad förening med fastighetsbeteckning Brämaregården 18:5 vars bostadsrätter blev klara 2018. Adresserna är Hisingsgatan 10 och Madängsgatan 9. Föreningen består av 92 lägenheter om 1-4 rok, samtliga upplåtna med bostadsrätt. Föreningen har även två hyresrättslokaler som man hyr ut. Ekonomisk förvaltare: Gedda Förvaltning.
Avgiften har höjts med 9% 1/1-23 samt 7% 1/6-23. Den 1/1-24 höjdes avgiften med 23% och kapitalavgiften med 20%. Den 1/7-24 sänktes kapitalavgiften med 30% som kompensation eftersom räntan kopplat till detta lån blev lägre än förväntat.
Den 1/1-25 höjdes kapitalavgiften med 12% men grundavgiften lämnas oförändrad.
Ingen övrig förändring planerad och budgetmöten hålls i november.
2020-21 - Installation av larm och kameraövervakning i garaget.
2024 - 5 års besiktning.
Planerat:
Nyproducerade lägenheter och innergård så inga större planerade renoveringar.
Föreningen erhåller 36 garageplatser fördelat på 24 st garageplatser, 8 st garageplatser med laddstolpar, 4 st garageplatser hkp. 4 st uteplatser och 1 st uteplats hkp. Finns några MC-platser.
Garageplatser 1040:-/mån (sen tillkommer förbrukad el på elplatserna)
Uteplatser 714:- /mån
520 kr/mån för MC-plats
Föreningen är ansluten med Telia vilket innebär att det i månadsavgiften ingår abonnemangsavgift för bredbandstelefoni, digital-tv samt bredband 250 Mbit/s.
Sydväst Arkitektur och Landskap är landskapsarkitekterna som fick i uppdrag att skapa en attraktiv gårdsmiljö för Brf Qvillestaden. I nära samarbete med husets arkitekter, Bornstein Lyckefors, har de skapat en levande yta som möjliggör samvaro för de boende i huset. Innergården präglas av naturmaterial och är byggd i olika nivåer med olika platser för medlemmarna att njuta i lugn och ro eller med större sällskap.
Föreningen har köpt in utemöbler till innergården och har en aktiv grupp där medlemmar har varit med och tagit fram förslag för att medlemmarna ska kunna nyttja innergården och gemensamma balkonger på bästa sätt.
I entréplan finns cykelförvaring, barnvagn- och rullstolsförråd samt källsortering.
Till vissa bostäder hör ett förråd i källaren/vinden. Vissa har förråd i bostaden.
Informationen är tagen från styrelsen och årsredovisningen, vi ansvarar inte för att informationen är korrekt utan råder dig att kontrollera det som är av betydelse.
BO MELLAN CITYPULS OCH NATUR
På Centrala Hisingen finner du allt du behöver kombinerat med vacker natur och närheten till havet. På älvsidan har du moderna och internationella Älvstranden, i väst fantastiska badvikar och på norra delen av ön möter skogen dig.
HÄR FINNS NÅGOT FÖR ALLA
Hisingen är Sveriges fjärde största ö omgärdad av Göta älv i syd och öster, Nordre älv i norr samt Kattegatt i väster. På Centrala Hisingen hittar du flera mindre områden som Brämaregården som främst består av vackra landshövdingehus. Kvilletorget är områdets nav med flera butiker och restauranger. Precis bredvid ligger Kvillebäcken som genomgår en stor förvandling som en del av expansionen och förnyelsen av Backaplansområdet. Nya Kvillebäck, som ligger granne med Backaplan, och har blivit en populär stadsdel och här hittar du populära Kville Saluhall. Norr om Kvillebäcken har gemytliga trädgårdsstaden Hildedal växt fram. Här finner du flerbostadshus och parhus med antingen balkonger eller egen liten trädgård. Grönytorna lika viktiga som byggnaderna och området liknar en småstad med parker och andra gemensamma gröna ytor. Populära Lundby bjuder på en bebyggelse som blandar flerfamiljshus, radhus och villor med företagsparker. Här finns ett rikt näringsliv med företag i alla storlekar. Intill kajkanten ligger Norra Älvstranden. Det är ett av Göteborgs mest expansiva områden och här finner du vackra promenadstråk och bostadskvarter precis vid vattnet. Varför inte ta dig en löptur längs den träbeklädda kajen som sträcker sig från bro till bro?
SALTA BAD OCH FÖRSTKLASSIG SHOPPING
Hisingsparken är Göteborgs största park och här hittar du vackra naturpartier, vandringsstigar och 4H-gården Kättilsröd, som är uppskattad av både stora och små. På Centrala Hisingen ligger Keillers Park med Ramberget. Med sina 87 meter är berget ett markant landmärke och utsikten från toppen är en av Göteborgs bästa. När du bor på Hisingen har du alltid nära till havet. Flera fina badplatser ligger på ön och lockar året om med salta bad. Många av dem hittar du i Torslanda dit du enkelt tar dig med buss.
När du blir sugen på shopping finns flera bra shoppingområden. Backaplan, som genomgår en omfattande utveckling, är det största och här finner du de flesta stora affärskedjor. Med buss eller spårvagn når du centralstationen och innerstaden på några få minuter. I området finns det gott om förskolor och grundskolor att välja på. Nära ligger också expansiva Lindholmen Science Park som erbjuder två universitet och åtta gymnasieskolor.
Köpa, sälja eller värdera bostad på Centrala Hisingen? Kontakta våra Bjurfors mäklare på Hisingen! Passa också på att anmäla dig till vår kostnadsfria söktjänst Boagenten som hjälper dig att hitta ditt drömboende.
Kontakta mäklaren om du behöver hjälp att ta fram en boendekalkyl.
När du köper din bostad genom Bjurfors kan du ansöka om bolån till en förmånlig ränta hos vår samarbetspartner SEB.
Bokad visning. Du kan även ringa Bjurfors Bokningscenter 031-761 79 50. Välkommen!
Ansvarig mäklare