-
Köpa
Köpa -
Sälja
Sälja - Hitta bostad
- Skapa bevakning
- Hitta mäklare
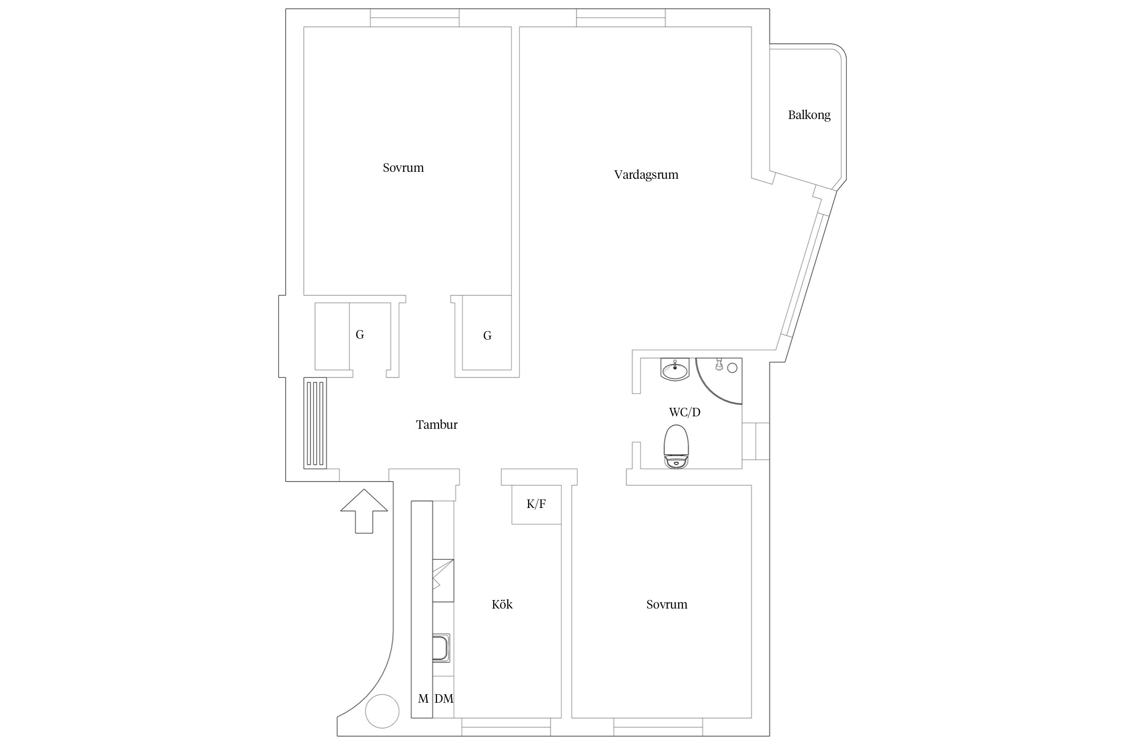
Välplanerad hörntrea med balkong. Juridisk person tillåts samt andrahandsuthyrning!
Centrala Hisingen, Göteborg
*I avgiften ingår värme. Utöver månadsavgiften så erläggs en avgift om 85kr/mån för TV-avgift samt individuell mätning av kall- och varmvatten efter förbrukning. Den totala kostnaden blir då 4 070 kr.
**Areauppgifter enligt bostadsrättsföreningen.
Bokad visning. Du kan även ringa Bjurfors Bokningscenter 031-761 79 50. Välkommen!
Hörntrea med balkong, omgiven av grönska. Här bor du i en välplanerad bostad med idylliskt läge nära service och kommunikationer.
Välkommen till denna välplanerade trea med härligt ljusinsläpp och insynsskyddad läge. Bostaden erbjuder en balkong i soligt läge med grönskan precis utanför. Lägenheten har genomgående fina ytskikt med många fönster och ett stilrent kök med generösa arbetsytor. Bra förvaringsmöjligheter finns i form av flertalet garderober, dessutom tillhör ett källarförråd. Juridisk person tillåts samt andrahandsuthyrning!
Här bor man med närhet till Wieselgrensplatsen som erbjuder goda kommunikationer med buss och spårvagn genom stan. Här finns förskolor, skolor och även flera matbutiker och restauranger att utforska. På gångavstånd når man Hisingsparken och Slätta damm såväl som Ramberget och Keillers park, perfekt för promenader och här har ni Göteborgs bästa utsikt. Bara några minuter bort ligger Backaplan som erbjuder ytterligare matbutiker, flera gym och shopping. Här bor ni med närhet till allt ni kan tänkas behöva.
Du välkomnas av en rymlig hall med plats för avhängning samt en mindre klädkammare för förvaring. Från hallen nås bostadens samtliga rum.
Vidare in i lägenheten når du det rymliga vardagsrummet. Här finns goda sociala ytor som möjliggör många typer av möblemang efter tycke och smak. Den stora ytan i vardagsrummet rymmer med enkelhet både matplats och soffgrupp med tillhörande möblemang. Flera fönster i gaveln ger rummet ett härligt ljusinsläpp.
Från vardagsrummet nås hörnbalkongen som vetter mot ett soligt söder- och västerläge. Här har du sol större delen av dagen som avslutas med härlig kvällssol.
Köket är stilfullt och modernt utformat med gott om förvaring bakom skåpsluckorna. Köket erbjuder generösa arbetsytor på den ljusa bänkskivan. Ovanför bänkskivan sitter vitt kakel. Den maskinella utrustningen består av varmluftsugn med ovan spishäll, inbyggd mikro, fläkt, diskmaskin samt kombinerad kyl och frys. Plats finns för matbord.
Sovrum ett ligger vägg i vägg med köket. Ett stort sovrum där det med enkelhet ryms en säng och tillhörande sängbord. Möblera med skrivbord eller förvaringsmöbel efter behov. Sovrummet ligger insynsskyddat i ett högt läge.
Sovrum två rymmer en stor dubbelsäng med tillhörande möblemang. Här finns förvaring i form av inbyggd garderob.
Badrummet är helkaklat i ljusa kulörer. Här finns wc, handfat med kommod, spegel och dusch. Ett fönster ger badrummet ett fint ljusinsläpp.



*En trappa upp.
**Areauppgifter enligt bostadsrättsföreningen.
I avgiften ingår värme. Utöver månadsavgiften så erläggs en avgift om 85kr/mån för TV-avgift samt individuell mätning av kall- och varmvatten efter förbrukning. Den totala kostnaden blir då 4 070 kr.
Indirekta nettoskuldsättningen är räknad på beräknad lånesumma vid tillträde 12 943 168 kr (från ekonomiska planen) * andelstal årsavgift.
Detta är enbart riktvärden och kan variera beroende på avtal och förbrukning.
*Betalas av köpare
Bostadsrättsföreningen har nyligen förvärvat fastigheten och i samband med detta genomförs diverse renoveringar/byggnationer. Samtliga projektåtgärder bekostas av Tapajos och belastar således inte föreningens ekonomi. Ekonomisk förvaltning sköts av SBC.
Inga planerade förändringar.
Fastigheten är fullvärdesförsäkrad via Länsförsäkringar.
Se boendeinformation.
Det finns 12 parkeringsplatser. Kontakta styrelsen vid intresse. Parkeringen kostar 515 kr.
Fastigheten är ansluten till Tele2. Föreningen har kollektivt avtal med Tele2 avseende grundutbud av tv-kanaler. Medlem tecknar själv bredband och övrigt tv-utbud efter önskemål.
Förråd finns till samtliga lägenheter i källaren. Tvättstuga finns i källaren.
brfkvillebacken@gmail.com
BO MELLAN CITYPULS OCH NATUR
På Centrala Hisingen finner du allt du behöver kombinerat med vacker natur och närheten till havet. På älvsidan har du moderna och internationella Älvstranden, i väst fantastiska badvikar och på norra delen av ön möter skogen dig.
HÄR FINNS NÅGOT FÖR ALLA
Hisingen är Sveriges fjärde största ö omgärdad av Göta älv i syd och öster, Nordre älv i norr samt Kattegatt i väster. På Centrala Hisingen hittar du flera mindre områden som Brämaregården som främst består av vackra landshövdingehus. Kvilletorget är områdets nav med flera butiker och restauranger. Precis bredvid ligger Kvillebäcken som genomgår en stor förvandling som en del av expansionen och förnyelsen av Backaplansområdet. Nya Kvillebäck, som ligger granne med Backaplan, och har blivit en populär stadsdel och här hittar du populära Kville Saluhall. Norr om Kvillebäcken har gemytliga trädgårdsstaden Hildedal växt fram. Här finner du flerbostadshus och parhus med antingen balkonger eller egen liten trädgård. Grönytorna lika viktiga som byggnaderna och området liknar en småstad med parker och andra gemensamma gröna ytor. Populära Lundby bjuder på en bebyggelse som blandar flerfamiljshus, radhus och villor med företagsparker. Här finns ett rikt näringsliv med företag i alla storlekar. Intill kajkanten ligger Norra Älvstranden. Det är ett av Göteborgs mest expansiva områden och här finner du vackra promenadstråk och bostadskvarter precis vid vattnet. Varför inte ta dig en löptur längs den träbeklädda kajen som sträcker sig från bro till bro?
SALTA BAD OCH FÖRSTKLASSIG SHOPPING
Hisingsparken är Göteborgs största park och här hittar du vackra naturpartier, vandringsstigar och 4H-gården Kättilsröd, som är uppskattad av både stora och små. På Centrala Hisingen ligger Keillers Park med Ramberget. Med sina 87 meter är berget ett markant landmärke och utsikten från toppen är en av Göteborgs bästa. När du bor på Hisingen har du alltid nära till havet. Flera fina badplatser ligger på ön och lockar året om med salta bad. Många av dem hittar du i Torslanda dit du enkelt tar dig med buss.
När du blir sugen på shopping finns flera bra shoppingområden. Backaplan, som genomgår en omfattande utveckling, är det största och här finner du de flesta stora affärskedjor. Med buss eller spårvagn når du centralstationen och innerstaden på några få minuter. I området finns det gott om förskolor och grundskolor att välja på. Nära ligger också expansiva Lindholmen Science Park som erbjuder två universitet och åtta gymnasieskolor.
Köpa, sälja eller värdera bostad på Centrala Hisingen? Kontakta våra Bjurfors mäklare på Hisingen! Passa också på att anmäla dig till vår kostnadsfria söktjänst Boagenten som hjälper dig att hitta ditt drömboende.
Kontakta mäklaren om du behöver hjälp att ta fram en boendekalkyl.
När du köper din bostad genom Bjurfors kan du ansöka om bolån till en förmånlig ränta hos vår samarbetspartner SEB.
Bokad visning. Du kan även ringa Bjurfors Bokningscenter 031-761 79 50. Välkommen!
Ansvarig mäklare
Extra kontaktperson