-
Köpa
Köpa -
Sälja
Sälja - Hitta bostad
- Skapa bevakning
- Hitta mäklare
Stor, fräsch och välskött villa med högt och fint läge i populära Hagen. Ett mycket sevärt hus!
Hagen, Göteborg
*Areauppgifter enligt taxeringsinformationen
FÖRHANDSVISNING! Vänligen boka in er på visning eller kontakta mäklaren för mer information.
På Förhand ligger bostäder som av olika anledningar inte är ute till försäljning just nu men som kan komma att säljas om förutsättningarna är rätt.
Med fin utsikt, pool och härligt läge ligger denna fina villa. Invändigt finns stort vardagsrum, fint kök, allrum, 4-5 sovrum, 2 fräscha badrum mm.
Från huset är det nära till mycket såsom skola, förskola, mataffär, kvarterskrog, fiskbil, Pizzeria, småbåtshamn och fina badplatser. Här finns dessutom Nya Varvets kulturhistoriska miljö på kort promenadavstånd. Till stan är det fina cykelvägar och busshållplatsen ligger bara 150 meter från huset.
TIDPLAN: Annonsen kompletteras preliminärt med invändiga bilder i början av januari och visningar planeras till slutet av januari.
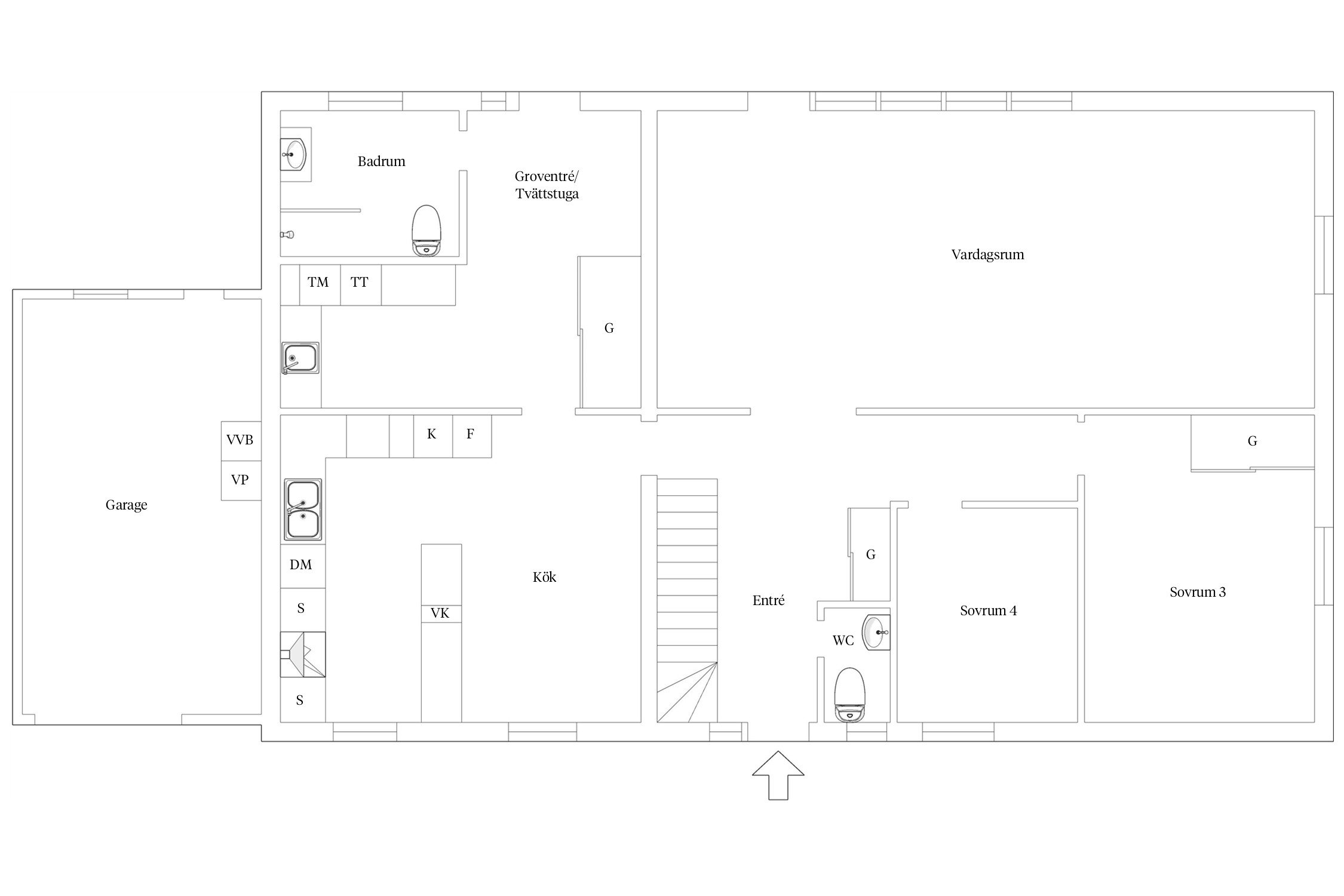
PLANLÖSNING ENTRÉPLAN: Entré med klinkergolv och behaglig golvvärme samt hall med snyggt parkettgolv, ljusa väggar och en rejäl garderob med skjutdörrar. Vid entrén ligger även gästtoaletten som har klinkergolv med golvvärme, kaklade väggar, handfat och wc.
Stort och ljust vardagsrum med fint parkettgolv, vitmålade väggar och utgång till den stora altanen. I vardagsrummet får man ledigt plats med såväl en rejäl sällskapsdel som stort matsalsbord med plats för många gäster. Även på altanen finns utrymme för sällskapsdel och matbord. Poolen (7 X 3,5 meter), och det väl tilltagna poolområdet, ger lika mycket möjlighet till avslappning och återhämtning som till fester och glädje. Härifrån kan man även njuta av den fina utsikten över närområdet.
Stort kök med bra matplats, klinkergolv med golvvärme samt gott om förvaring och fina arbetsytor för den matintresserade. Köket, som är från Ikea, installerades 2017 och alla vitvaror är också från det året.
Vid köket ligger den omgjorda vardagsentrén samt tvättstugan och det fina badrummet. I utrymmet ligger ett snyggt och praktiskt klinkergolv med golvvärme och vid entrén finns gott om förvaringsutrymmen i form av en stor garderob samt möjlighet till avhängning av ytterkläder. Vid tvättdelen finns tvättmaskin och torktumlare från 2015. Badrummet renoverades på ett smakfullt sätt 2017 med helkaklade väggar, klinkergolv med golvvärme, duschplats, handfat och wc.
På entréplan finns dessutom två bra sovrum. I bägge rummen ligger parkettgolv och väggarna är vitmålade. I det lite större rummet finns även en garderob med skjutdörrar.
PLANLÖSNING ÖVRE PLAN: Stort allrum med parkettgolv, vitmålade väggar och två bra klädkammare. I allrummet får ungarna ledigt plats med alla sina kompisar och här finns även plats för läxläsning och annat.
På detta plan finns två stora sovrum med parkettgolv. I ena rummet är väggarna vitmålade och här finns en rejäl garderob med skjutdörrar samt utgång till stor altan med fin utsikt över området.
I det andra rummet är väggarna målade i en behaglig ljusgrå kulör. Detta rum kan enkelt göras om till två mindre sovrum om man önskar, så som planlösningen var i original.
Badrummet renoverades 2014 med helkaklade väggar, klinkergolv med golvvärme, duschplats, dubbla handfat och wc.



Älvsborg 286:7
*Areauppgifter enligt taxeringsinformationen
Garage är integrerat med huset
Stor trälagd altan med pool och härlig utsikt över närområdet.
Poolen 7 x 3,5 meter och har egen luft/vatten värmepump. Poolen renas med UV, är gjuten i betong och har isolering + glastak.
Kommunalt vatten, Kommunalt avlopp.
Garage samt plats för 3 bilar utanför huset. Elbilsladdare är installerad.
Tomtindelning (1985-02-26) Stadsplan (1969-01-14)
Last: Avtalsservitut Område, 14-IM1-72/6197.1
Fiber är installerat
Avtalsservitut Område
Inklusive uppvärmning av pool samt laddning av 2 elbilar så gör säljarna av med ca 22 000 kwh.
Lite flexibelt men preliminärt maj 2026
Det finns 9 st pantbrev uttagna om sammanlagt 4 505 000 kr
Göteborg är Sveriges näst största stad och den expanderar hela tiden. Staden har ett fint läge på västkusten vid Göta älvs mynning. Det salta västerhavet erbjuder många härliga badplatser. Här finns också en levande skärgård med åretruntboende. Göteborg är även känd som evenemangsstaden med stråket från Ullevi till Svenska Mässan och Liseberg, ett stenkast från paradgatan Avenyn.
Varvsindustrin är numera nedlagd i Göteborg, här byggs i stället attraktiva bostadsområden längs älvstranden. Göteborg är också en universitetsstad med välkända Chalmers tekniska högskola och Göteborgs Universitet samt ett blomstrande näringsliv.
Köpa, sälja eller värdera bostad i Göteborg? Kontakta våra mäklare i Göteborg! Passa också på att anmäla dig till vår kostnadsfria söktjänst Boagenten som hjälper dig att hitta ditt drömboende.
Kontakta mäklaren om du behöver hjälp att ta fram en boendekalkyl.
När du köper din bostad genom Bjurfors kan du ansöka om bolån till en förmånlig ränta hos vår samarbetspartner SEB.
FÖRHANDSVISNING! Vänligen boka in er på visning eller kontakta mäklaren för mer information.