-
Köpa
Köpa -
Sälja
Sälja - Hitta bostad
- Skapa bevakning
- Hitta mäklare
Landshövdingetvåa i gavelläge högst upp i huset!
Kungsladugård, Göteborg
*Inkl värme, vatten, Kabel-TV. Utöver månadsavgiften tillkommer ett obligatoriskt tillägg om 285 kr/mån för bredband. Den totala kostnaden blir då 4742 kr.
**Areauppgifter enligt bostadsrättsföreningen.
På Förhand ligger bostäder som av olika anledningar inte är ute till försäljning just nu men som kan komma att säljas om förutsättningarna är rätt.
Ljus landshövdingetvåa som badar i naturligt ljus och erbjuder en härlig känsla av rymd!
Bjurfors Century presenterar denna ljusa och genomgående tvårumslägenhet med fönster i tre väderstreck – ett hem som badar i naturligt ljus och erbjuder en härlig känsla av rymd. De bevarade brädgolven och de ljusa, enhetliga väggarna skapar en tidlös och harmonisk bas att trivas i.
Köket är i originalutförande i klassiskt vitt, med god förvaring och ett charmigt inbyggt skafferi. Här finns även plats för ett mindre matbord. Vardagsrummet är luftigt och lättmöblerat, medan sovrummet ligger rofyllt och rymmer dubbelsäng med tillhörande sängbord. Badrummet är utrustat med både tvättmaskin och torktumlare, vilket förenklar vardagen.
Här bor ni i en charmig landshövdingefastighet med en grönskande och trivsam innergård som erbjuder både sittplatser och grillmöjligheter – en naturlig samlingspunkt under årets varmare månader.
Läget i populära Kungsladugård är svårslaget, med ett brett utbud av restauranger och caféer precis runt hörnet. Dessutom når ni både Slottsskogen och Botaniska trädgården inom bekvämt promenadavstånd – perfekta miljöer för rekreation året om.
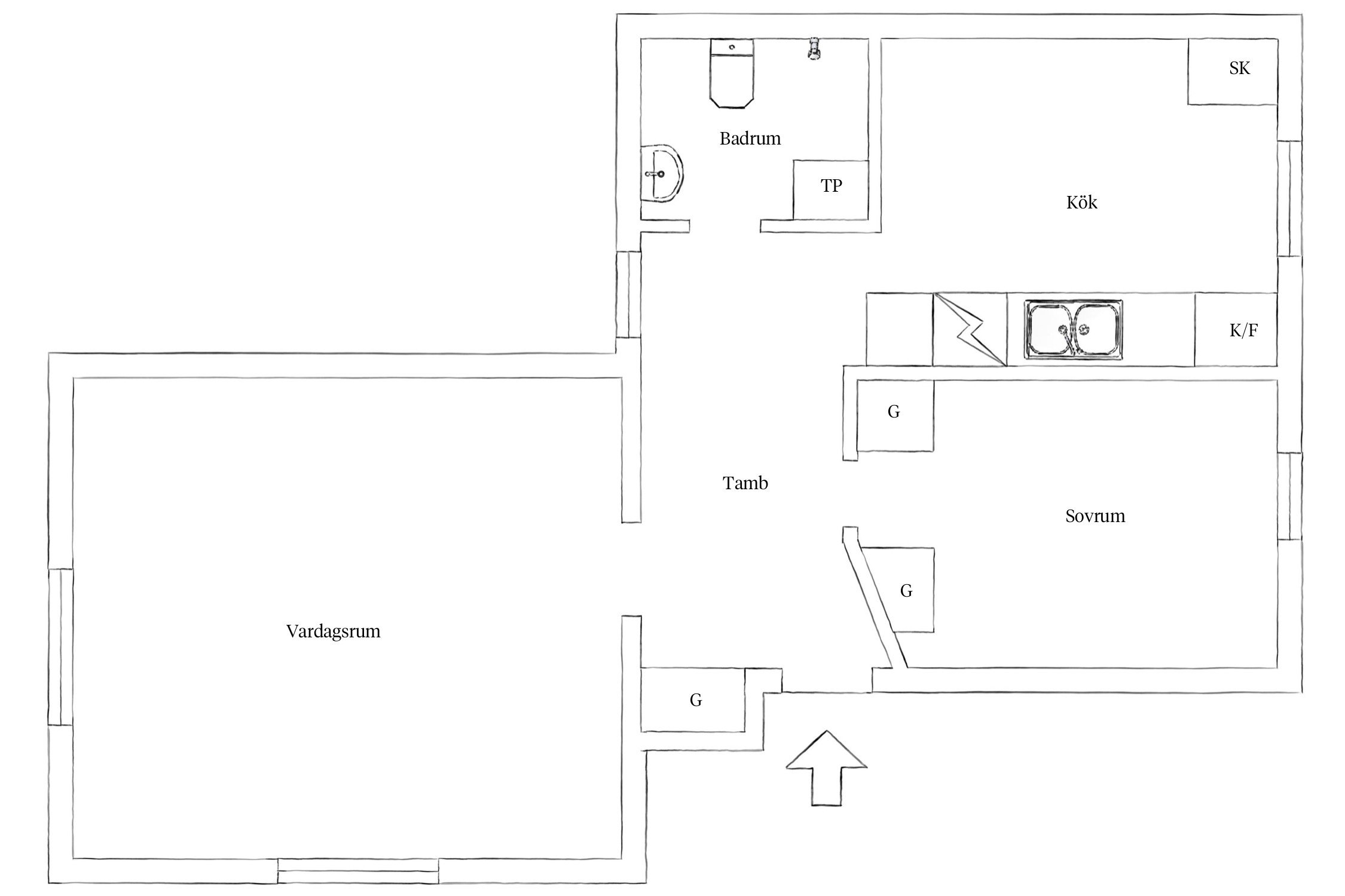
Välkomnande hall med ljusa väggar och slitstarkt golv som övergår i bostadens vackra brädgolv. Här finns plats för avhängning direkt innanför dörren samt ytterligare förvaring via inbyggd garderob. Hallen ger ett trevligt första intryck och leder vidare in i bostadens samtliga rum.
Ljust och trivsamt kök med vita luckor som samspelar fint med de bevarade brädgolven. Här erbjuds goda förvaringsmöjligheter, arbetsytor samt ett charmigt inbyggt skafferi. Plats för ett mindre matbord med utsikt mot grönska, vilket skapar en lugn och hemtrevlig atmosfär.
Luftigt och lättmöblerat vardagsrum i gavelläge med fint ljusinsläpp från två håll. Här finns gott om plats för en större soffgrupp samt möjlighet att inreda med exempelvis matplats eller arbetsyta för den som önskar. Ett ljust och socialt rum att verkligen trivas i.
Rofyllt sovrum med plats för dubbelsäng och tillhörande möblemang. Det stora fönstret släpper in ett behagligt ljus och bjuder på en grönskande vy, vilket skapar en harmonisk miljö för vila. Två garderober rymmer förvaring.
Funktionellt badrum utrustat med tvättmaskin och torktumlare som förenklar vardagen. Här finns allt som behövs för ett bekvämt boende såsom, wc, dusch, handfat och ovanhängande spegelskåp.



*Areauppgifter enligt bostadsrättsföreningen.
Inkl värme, vatten, Kabel-TV. Utöver månadsavgiften tillkommer ett obligatoriskt tillägg om 285 kr/mån för bredband. Den totala kostnaden blir då 4742 kr.
Till bostaden nyttjas idag ett vindsförråd.
Bostadsrättens indirekta nettoskuldsättning baseras på föreningens skulder/lån minus föreningens räntebärande tillgångar och likvida medel. Beräkningen är gjord via Bopedia. För mer information kontakta ansvarig fastighetsmäklare.
*Betalas av köpare
Brf Godhemsstjärnan är en liten förening belägen i hjärtat av Kungsladugård som består av 22 bostäder, varav 20 st upplåts med bostadsrätt samt 1 lokal. De 2 hyresrätterna är en dold intäkt som tillfaller föreningen den dagen de upplåts som bostadsrätt. Föreningen registrerades 2009 hos bolagsverket och ombildades till bostadsrättsförening under 2012. Fastigheterna består av ett flerbostadshus med fyra uppgångar som byggdes 1932.
I föreningen finns 12 st 1:or och 10 st 2:or.
Avgifterna höjdes med 5 % från 2025 och med ytterligare 5 % från 2026.
Ett urval ur utförda renoveringar presenteras nedan. För mer information, se årsredovisningen eller kontakta styrelsen.
2013 Underhåll och spolning av stammar.
2014 Grundförstärkning och renovering av torkrum.
2015 Renovering av fasad, tak och byte till nya tidstypiska fönster med treglasfönster.
2019 OVK.
2020 Planerad rutinkontroll av tidigare grundförstärkning.
2021 Renovering av trapphus samt ytterdörrar.
2023 Byte av vattenledning, avstick från huvudledning i gatan utanför 25:an.
2024 Ommålning av fasader mot gatan, portar och garageportar
2025 OVK med åtgärder
Planerade underhåll:
2026 bygges nytt soputrymme och cykelställ.
2027 kan det bli aktuellt med dränering på gården.
Elarbeten i källaren som ska genomföras inom 1-2 år.
Boendeparkering finns att tillgå. För prisinfo och områdessträckning, gå in på www.trafikkontoret.goteborg.se. Föreningen tillhandahåller också några egna parkeringsplatser, kösystem tillämpas till dessa.
Kabel-tv och bredband via Tele2, där basutbudet för kabel-tv ingår i månadsavgiften.
Gemensam tvättstuga och innergård med utemöbler och grill.
LÄTT ATT TRIVAS I KUNGSLADUGÅRD
Gemytliga Kungsladugård är som en stad i staden. Från Mariaplan som central punkt med sina mysiga butiker, caféer och restauranger, breder de olika kvarteren ut sig med sina särskiljande drag. Den levande stadskänslan bryts av med grönområden som Slottsskogen och Svalebo, härliga lekplatser och ytor för stora och små och inte minst närheten till både havet och city, dit du lätt tar dig med cykel eller spårvagn.
MED MARIAPLAN SOM MITTPUNKT
I Kungsladugård hittar du några av stans vackraste och bäst bevarade landshövdingehus, med prunkande gröna storgårdar. Här är det lätt att trivas och stadsdelen har blivit en av de mest eftertraktade i Göteborg. Den naturliga mittpunkten Mariaplan är en fantastisk plats att röra sig kring när du har en ledig dag. Kika in i de fina små butikerna, köp färskt bröd och avsluta med en god middag på någon av alla restauranger och kvarterskrogar som inte bara lockar stammisar. Hit vallfärdar mat- och kulturintresserade från alla stadsdelar.
Den breda boulevarden Älvsborgsgatan som går upp mot Mariaplan anlades som en aveny för arbetarklassen, med Kungsladugårdsskolan och plaskdammen som en pampig avslutning. Varma sommardagar är ”Plaskis” fullt med badsugna och lekfulla barn och på vintern är backen intill perfekt för pulkaåkning. Ett hopp nedanför Mariaplan ligger ett annat omtyckt område, Gröna Vallen med fotbollsplaner och lekplats som passar alla åldrar.
NÄRHET TILL BÅDE PULS OCH LUGN
Stadsdelen har fått sitt namn efter Älvsborgs Kungsladugård, som tillhörde Älvsborgs slott som låg i området fram till 1621 när Göteborg bildades. Området var sedan i stort sett obebyggt ända tills början av 1900-talet då stadsplaneraren Albert Lilienberg fick i uppdrag att dra upp riktlinjerna för en stadsdel där människor i alla samhällsklasser kunde bo. Målet var att skapa variation med människan och stadsrummet i centrum. Man får väl säga att det lyckades väl – Kungsladugård är en stadsdel där det är lätt för vem som helst att trivas.
Stadsdelens södra del präglas av egnahemsområdet med villor och radhus som började byggas på 1920-talet i nationalromantisk stil och på 40-talet tillkom fler en- och tvåfamiljsvillor. Än idag är det här området en fridfull trädgårdsstad, här kan du ta en ljuvlig promenad och lyssna på fåglarnas kvitter en stilla vårkväll. Eller varför inte ta vägen förbi koloniträdgårdarna som ligger strax intill, granne med Slottsskogen? Men var inte orolig att det blir för lugnt. På bara några steg är du tillbaka bland liv och rörelse, butiker, spårvagnar, restauranger och caféer igen.
Köpa, sälja eller värdera bostad i Kungsladugård? Kontakta våra mäklare i Göteborg! Passa också på att anmäla dig till vår kostnadsfria söktjänst Boagenten som hjälper dig att hitta ditt drömboende.
Kontakta mäklaren om du behöver hjälp att ta fram en boendekalkyl.
När du köper din bostad genom Bjurfors kan du ansöka om bolån till en förmånlig ränta hos våra banksamarbetspartners Söderberg & Partners och SEB.
Ansvarig mäklare