-
Köpa
Köpa -
Sälja
Sälja - Hitta bostad
- Skapa bevakning
- Hitta mäklare
Charmig och ljus studiolägenhet med vy över majestätiska Karlatornet
Lindholmen, Göteborg
*Månadsavgiften inkluderar värme, kabel-tv och bredband. El och vatten debiteras separat efter förbrukning via månadsavin.
På Förhand ligger bostäder som av olika anledningar inte är ute till försäljning just nu men som kan komma att säljas om förutsättningarna är rätt.
Snart erbjuds en ljus och mycket trevlig studioetta i nybyggda Brf Futura på heta Lindholmen. Runt hörnet har du älven och majestätiska Karlatornet.
Välkommen till denna charmiga studiolägenhet i nybyggda brf Futura på Lindholmen. Här bor du med utsikt över Karlastaden och det majestätiska Karlatornet. Ett av Göteborgs hetaste områden och bara några minuter ifrån citypulsen. Miljöklass B gör att du kan få fördelaktiga gröna bolån.
Bostaden är en kvadratsmart studiolägenhet, som maximerar varje kvadratmeter och skapar en ljus och rymlig känsla. De stora fönstren släpper in rikligt med naturligt ljus.
KOMMANDE FÖRSÄLJNING
Säljaren letar nytt boende och försäljning och visningar startar därefter. Det kan finnas möjlighet till förhandsköp. Kontakta mäklaren och gör intresseanmälan här till höger, så får du mer information när det närmar sig säljstart.
Denna studiolägenhet på Lindholmen är nybyggd i ett av Göteborgs häftigaste område. Här finns flertal bussar samt två spårvagnslinjer som på några minuter tar dig in till city. Dessutom två färjelinjer, varav den en gratis, som går till Stenpiren. Perfekt om du jobbar i city. Cyklar du till jobbet är det enkelt att ta cykeln på färjan.
För soldyrkaren och den som älskar att koppla av utomhus, finns ett härligt trädäck. Perfekt för avkoppling och umgänge. Här kan du tillbringa mysiga sommarkvällar med vänner och familj medan du njuter av det harmoniska livet vid vattnet. I området finns också ett flertal restauranger och kaféer som erbjuder något för alla smaker. Med närheten till vattnet har du även möjlighet till härliga promenader och utomhusaktiviteter året runt.
KOMMANDE FÖRSÄLJINNG - Fler bilder från insidan kommer senare.



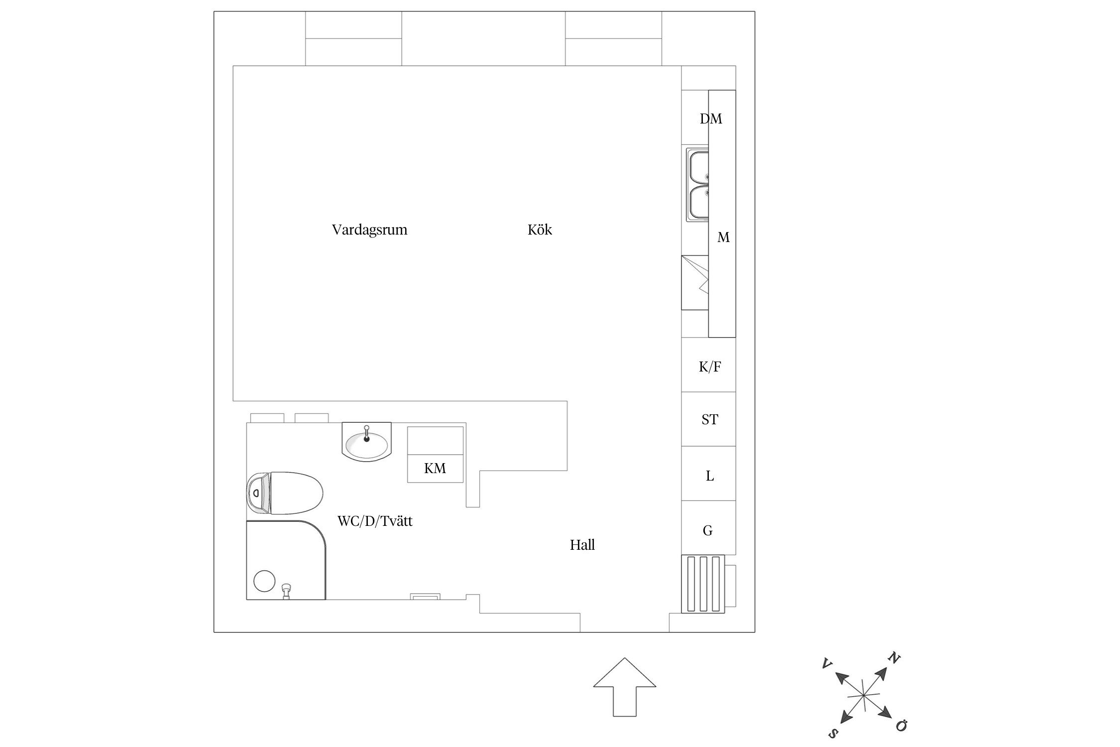
Planskiss
Månadsavgiften inkluderar värme, kabel-tv och bredband. El och vatten debiteras separat efter förbrukning via månadsavin.
Det finns lägenhetsförråd.
Garage finns under föreningens fastighet och är gemensamt med ytterligare två fastigheter. Uthyrning sker via samfällighetsföreningen. Det finns 63 platser varav 6 förses med laddstolpe. Fördelning av platser sker utifrån respektive förenings storlek. En plats är reserverad för framtida bilpool. Kostnad 1200 kr/månad alt 1925 kr/mån för plats med laddstolpe.
I närområdet har även Göteborgs parkeringsbolag två p-hus där man kan hyra plats. Plats finns tillgängliga.
Bostadsrättens indirekta nettoskuldsättning baseras på föreningens skulder/lån minus föreningens räntebärande tillgångar och likvida medel. Beräkningen är gjord och baseras enbart på den senaste tillgängliga årsredovisningen. För mer information kontakta ansvarig fastighetsmäklare.
Separat mätning av kall och varmvattenförbrukning samt el kommer på månadsavin. Uppgifterna är hämtade från nuvarande ägare och varierar utifrån behov och förbrukning.
*Betalas av köpare
Brf Futura består av 91 st lägenheter på adresserna Lindholmsallén 22 B, D och 24 B, C i hus om 4-8 våningar. Husen färdigställdes 2024 då inflytt skedde. Fastigheten urholkas av ett 3D-utrymme till förmån för två andra fastigheter. Bostadarea är 4344 kvm. Runt gården finns även en annan bostadsrättsförening och den gemensamma gården, garage, cykelrum, miljörum samt sophantering sköts och förvaltas av Futura samfällighetsförening, dit båda föreningarna betalar en samfällighetsavgift. På taken finns solcellsanläggning för att producera egen elförsörjningen till varje bostad går genom föreningen och debiteras efter förbrukning.
Teknisk och eknomisk förvaltning sköts av Riksbyggen.
Föreningens fastighetsförsäkring inkluderar kollektiv bostadsrättstillägg för samtliga lägenheter.
Garage finns under föreningens fastighet och är gemensamt med ytterligare två fastigheter. Uthyrning sker via samfällighetsföreningen. Det finns 63 platser varav 6 förses med laddstolpe. Fördelning av platser sker utifrån respektive förenings storlek. En plats är reserverad för framtida bilpool. Kostnad 1200 kr/månad alt 1925 kr/mån för plats med laddstolpe.
I närområdet har även Göteborgs parkeringsbolag två p-hus där man kan hyra plats. Plats finns tillgängliga.
Byggnaden är ansluten till Tele2 för TV, internet och telefoni.
I föreningen finns barnvagsrum, rullstodsförråd med laddning, cykelrum, miljörum, gemensamhetslokal samt en övernattningslägenhet. Det är även reserverats plats för framtida cykelpool.
Förråd i källarplan och till dessa har man särskild nyttjanderätt till. Det innebär att man på egen bekostnad skall sköta och hålla utrymmet i gott skick. Vissa lägenheter har istället förrådsutrymme inne i bostaden.
BO PÅ EXPANSIVA LINDHOLMEN
På Lindholmen bor du vattennära i ett område som är på väg att bli Göteborgs hetaste. Lindholmen är ett växande område där närheten till vattnet och naturen är viktiga ingredienser när innerstaden breder ut sig på andra sidan älven. Här växer nya stadsdelar upp i ett område med historiska anor.
EN HÅLLBAR BLANDSTAD
Här blandas nybyggt och modern design med fastigheter från den tidigare varvtiden. Hela området utvecklas nu till ett storstadsområde med nya kvarter som kommer att bli ett av Göteborgs hetaste och fräckaste bostadsområde. Inte minst med nya stadsdelen Karlastaden. På Lindholmen hittar du en skön mix av nöjen. För den matintresserade finns ett stort utbud av restauranger, barer och bagerier. Lockar kultur hittar du Aftonstjärnans biograf, konstnärsateljéer, evenemangshall och teater. Allt detta jämte Lindholmen Science Park, som är stadens mest kunskapsintensiva och expansiva område samt en viktig knutpunkt för det växande Göteborg. Här verkar forskare, universitet och gymnasieskolor sida vid sida med boende och företag. Med framtiden i fokus är en hållbar vardag och gröna värden viktiga faktorer, när Lindholmen växer fram.
Med Nordens högsta hus Karlatornet i centrum, växer här Karlastaden fram. En modern blandstad med Göteborgs första riktiga skyskrapa för boende. Här kommer finnas allt som en stad behöver. Förskolor, affärer och butiker i markplan blandas med restauranger och caféer samt saluhall och kulturhus. I Karlatornet byggs även en utsiktsplats, som är öppen för alla göteborgare och besökande turister. Ett helt nytt landmärke växer fram i dina kvarter.
NÄRA TILL BÅDE HAV OCH GRÖNSKA
Följ den träskodda kajen, som går från Älvsborgsbron längst Älvstranden och vattnet. Perfekt att ta vara på en solig dag med att slå dig ner på däcket. Koppla av och se på båtarna som glider förbi och verkligen njuta av harmonin, som infinner sig. Vill du njuta av utsikt över hela stan, ligger vackra och natursköna Ramberget alldeles i närheten.
För den idrottsintresserade finns ett stort utbud av träningsmöjligheter då många gymkedjor har etablerat sig här. Lundbys kulturskola har ett brett utbud för barn, här kan de bland annat spela musik och teater, dansa, sjunga, måla och jobba med keramik.
TA DIG ENKELT TILL CENTRALA GÖTEBORG
Cityfärjan Älvsnabben går från kajkanten och tar dig bekvämt och snabbt in till centrum utan bil och parkeringsbekymmer och är samtidigt ett mycket tilltalande sätt att få se staden och vattnet. Det går också en gratisfärja kontinuerligt från Lindholmen Science park direkt till Stenpiren. På färjorna tar du enkelt med dig cykeln, för fortsatt cykelfärd på andra sidan. Det finns också bra förbindelser med buss och spårvagn till centrala Göteborg. Föredrar du bil går det enkelt att ta sig ut på de stora lederna.
Köpa, sälja eller värdera bostad på Lindholmen? Kontakta våra Bjurfors mäklare på Hisingen! Passa också på att anmäla dig till vår kostnadsfria söktjänst Boagenten som hjälper dig att hitta ditt drömboende.
Kontakta mäklaren om du behöver hjälp att ta fram en boendekalkyl.
När du köper din bostad genom Bjurfors kan du ansöka om bolån till en förmånlig ränta hos våra banksamarbetspartners Söderberg & Partners och SEB.
Ansvarig mäklare