-
Köpa
Köpa -
Sälja
Sälja - Hitta bostad
- Skapa bevakning
- Hitta mäklare
Högst upp med fyra meter i takhöjd och vackra vyer!
Nya Gårda, Göteborg
*I avgiften ingår värme, vatten, bredband och basutbud TV.
**Areauppgifter enligt bostadsrättsföreningen.
På Förhand ligger bostäder som av olika anledningar inte är ute till försäljning just nu men som kan komma att säljas om förutsättningarna är rätt.
Högst upp i huset med dryga fyra meter i takhöjd, sydvästlig balkong och vidsträckt utsikt över Göteborg!
Högst upp i huset väntar ett hem som verkligen sticker ut med en imponerande takhöjd om cirka fyra meter, ljusinsläpp från tre väderstreck och en utsikt som sträcker sig långt över omgivningarna. Här möts rymd, ljus och arkitektur i en harmonisk helhet där varje rum präglas av vita väggar och enhetlig trestavsparkett som skapar ett lugnt och stilrent uttryck.
Den öppna planlösningen mellan kök och vardagsrum ger bostaden en social och självklar samlingspunkt, medan den generösa balkongen i sydvästläge bjuder på sol stora delar av dagen och kvällen. Planlösningen erbjuder två välproportionerade sovrum, goda förvaringsmöjligheter och ett hem som kombinerar funktionalitet med en påtaglig wow-känsla.
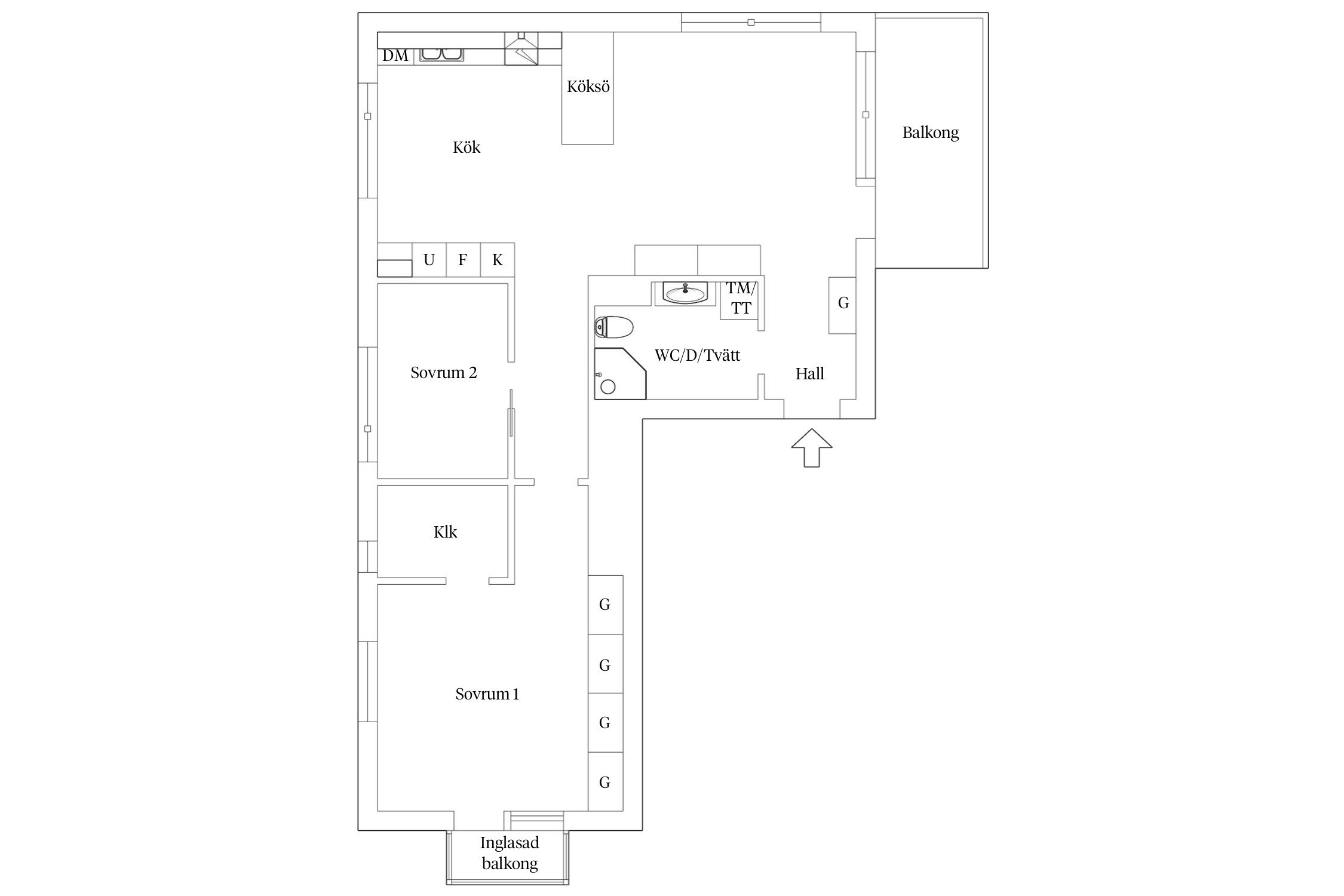
Hall
Välkomnande hall där bostadens imponerande takhöjd gör avtryck redan vid första steget in. Vid entrén ligger svart klinker som är både praktiskt och stilrent, och vidare finns plats för avhängning på hatthylla samt ytterligare förvaring i garderober med spegeldörrar – perfekt för en sista blick innan man går ut.
Kök & vardagsrum
Kök och vardagsrum samspelar i en öppen och social planlösning där rymden blir bostadens signum. Den generösa takhöjden skapar ett luftigt och nästan loftliknande intryck, samtidigt som stora fönster släpper in rikligt med ljus.
Köket delas naturligt av mot vardagsrummet via en stilren köksö som fungerar både som arbetsyta och barplats. Bakom vita luckor finns gott om förvaring och den mörka bänkskivan möter elegant ett kaklat stänkskydd. Köket är fullutrustat med kyl och frys, ugn, mikro samt tvättmaskin.
Här finns gott om plats för stora middagar, utan problem ryms 10–12 gäster kring matbordet.
Vardagsrumsdelen är bostadens självklara höjdpunkt med sin volym, lättmöblerade ytor och imponerande takhöjd. Här ryms en större soffgrupp med tillhörande möblemang, och från rummet nås den fantastiska balkongen med vidsträckt utsikt över Göteborg. I sydvästläge badar balkongen i solljus och blir en självklar plats för sommarens alla stunder.
Sovrum 1
Ett rymligt master bedroom med ljusinsläpp från två väderstreck som skapar en lugn och harmonisk atmosfär. Här finns gott om plats för dubbelsäng och ytterligare möblering. Generösa garderober kompletteras av en praktisk klädkammare som erbjuder utmärkta förvaringsmöjligheter. Från rummet nås även en inglasad balkong.
Sovrum 2
Flexibelt rum som passar lika bra som barnrum, gästrum eller hemmakontor. Rummet rymmer dubbelsäng, skrivbord och förvaring utan att kännas trångt.
Badrum
Stilrent badrum med svart klinkergolv i kontrast till vitt kakel på väggarna. Här finns en stor kommod, spegelskåp ovanför samt gott om förvaring. Utrustat med tvättmaskin och handdukstork för extra komfort i vardagen.



*Areauppgifter enligt bostadsrättsföreningen.
I avgiften ingår värme, vatten, bredband och basutbud TV.
Till bostaden disponeras ett källarförråd. Det finns ett övernattningsrum som går att hyra för 250kr/natt. I byggnaden finns cykelförråd. Föreningen har ingen gemensam tvättstuga.
Ok att grilla med elgrill.
Föreningen förfogar över 42 stycken parkeringsplatser varav 12 stycken av dessa platser har laddning för elbil i garaget som nås direkt med hissen och är beläget under den gemensamma gården. Garageplats kostar 1000kr/mån. Elplats kostar 1089kr/mån samt att man debiteras elavgift efter vad man förbrukar. Kösystem tillämpas.
Just nu kortare kö (2026-03-12)
Adressen är inte berättigad till boendeparkering men ytterligare garage alternativ finns i området för hyra av
Allente distribuerar ett grundutbud av TV kanaler. Bredband och grundutbud TV kanaler ingår i avgiften.
Föreningen har ett kollektivt avtal med Bahnhof gällande bredband.
Bostadsrättens indirekta nettoskuldsättning baseras på föreningens skulder/lån minus föreningens räntebärande tillgångar och likvida medel. Beräkningen är gjord via Bopedia. För mer information kontakta ansvarig fastighetsmäklare.
*Betalas av köpare
Brf Saturnus är en äkta bostadsrättsförening och registrerades år 2006 och byggnationen av föreningens fastighet var klar för inflyttning år 2009. AF Bygg AB var byggentreprenör. Föreningen äger och förvaltar fastigheten Gårda 71:4 på adressen Anders Personsgatan 7-11 i Göteborg. Föreningen har 71 bostadsrätter om totalt 4 610kvm och 2 lokaler om 115kvm.
Brf Saturnus är en av sex bostadsrättsföreningar som utgör Samfälligheten Venus. Samfälligheten har som uppgift att sköta fastighetens gemensam garage samt innergård med miljöhus.
Föreningen höjde avgifterna med 10% from 1 jan 2024. Det höga ränteläget motiverade höjningen. Inga planerade/beslutade avgiftsjusteringar i dagsläget. Enligt styrelsen (2026-02-12).
Nedan finns ett urval av utförda och planerade underhåll och renoveringar. För mer information se årsredovisning, föreningens hemsida eller kontakta styrelsen.
Urval av gjorda renoveringar/underhåll:
2013 Nytt brytskydd på ytter- och källardörrar.
2013 Energibesiktning upprättad.
2013 Underhållsplan upprättad.
2016 Utfördes reparationer efter en brand på en av balkongerna. Fasaden mot Anders Personsgatan tvättades och entrédörrarna målades om.
2017 Fasadtvätt
2017 Ventilationskontroll OVK
2017 Rengöring av frånluftskanaler
2018 Målning av entréer med tillhörande utrymmen, samt väggar i soprummet och ett golv i källaren på Anders Personsgatan 11. Även ytterdörrarna mot Anders Personsgatan fick ett nytt stråk. Ett vattenläckage inträffade i föreningens servicerum i källaren. Detta blev snabbt åtgärdat. Det är tredje gången på tre år som detta inträffar på samma vattensystem. Föreningen hoppas nu att den senaste reparationen håller.
2019 - OVK
2021 - Fasadtvätt mot innergården. OVK utfördes samma år.
2022 Ett flertal vattenläckage har uppstått i föreningens tekniska rum i källaren. Styrelsen har gett Riksbyggen uppdraget att reparera rör som var trasiga så att det inte skall uppstå igen.
2022 I garaget har 12 nya elladdplatser installerats.
2022 Föreningens hissar har besiktigats och det blev anmärkning på alla tre gällande larmsystemet. Detta åtgärdades snabbt av OTIS som sköter löpande underhåll av hissarna.
2023 Målning och renovering av entrépartierna mot Anders Personsgatan. Samma år renoverades garaget. Brf Saturnus del av kostnaden gällande garage projektet betalades med egna medel. OVK samt energideklaration utfördes samma år.
Planerade:
2026 OVK samt rensa alla rör
Föreningen följer en underhållsplan och löpande underhåll sker i föreningen.
Inga större reparationer planerade. Enligt styrelsen (2026-02-12).
Föreningen förfogar över 42 stycken parkeringsplatser varav 12 stycken av dessa platser har laddning för elbil i garaget som nås direkt med hissen och är beläget under den gemensamma gården. Garageplats kostar 1000kr/mån. Elplats kostar 1089kr/mån samt att man debiteras elavgift efter vad man förbrukar. Kösystem tillämpas.
Ingen i kö men inte heller några platser lediga (2026-02-12)
Adressen är inte berättigad till boendeparkering men ytterligare garage alternativ finns i området för hyra av parkeringsplats.
Föreningen har ett kollektivt avtal med Bahnhof gällande bredband. Allente distribuerar ett grundutbud av TV kanaler. Bredband och grundutbud TV kanaler ingår i avgiften.
Det finns ett övernattningsrum som går att hyra för 250kr/natt. I byggnaden finns cykelförråd. Föreningen har ingen gemensam tvättstuga.
Ok att grilla med elgrill.
Gårda är ett område med många nybyggda lägenheter och det har på senare tid blivit ett populärt ställe att bo på. Tidigare var Gårda mer känt som ett företagsområde. I de södra delarna av Gårda finns den gamla bebyggelsen kvar. Området har ett bra läge ett stenkast från innerstaden, med ypperliga kommunikationer för att ta sig runt till övriga stadsdelar.
Göteborgs centrum ligger på bekvämt avstånd med ett stort utbud av restauranger, nattklubbar, affärer, banker, bibliotek etc. I stadsdelen Centrum som Gårda tillhör finns ett stort utbud av dagis, förskolor, grundskolor och gymnasium. I centrala Göteborg finns också flera alternativa skolor som till exempel Franska förskolan och International School of the Gothenburg Region (ISGR). På ISGR sker undervisningen på grundskolan på svenska med engelsk profil, medan på gymnasiet undervisar man helt och hållet på engelska.
I Gårda ligger Vagnhallen som är uppställningsplats för Göteborgs spårvagnar. Göteborg har Sveriges största spårvagnsnät och den första hästspårvagnen började gå 1879. Brandstation i Gårda har sedan 1988 varit huvudstationen i Göteborg. Namnet Gårda kommer från ägorna Stora Gårda, på vars mark stadsdelen är byggd. Fabriksgatan som går genom södra delen av Gårda anlades 1891 har fått namn efter de många fabriker som tidigare låg här. Under 1980 och 1990-talet ändrades stadsdelens karaktär från industriområde till nya bostadsområden med moderna lägenheter.
Gårda ligger invid evenemangsstråket och från Ullevi passerar du Filmstaden Bergakungen, Valhallabadet, Scandinavium, Svenska Mässan. Vid Korsvägen ligger Världskulturmuseet, Universeum och Liseberg. I hörnan Parkgatan/Ullevigatan har Gamla Ullevi återuppstått i ny skepnad. Här utövas det fotboll av högsta klass då arenan är hemmaarena för tre stora Göteborgslag, IFK Göteborg, GAIS och ÖIS. Arenan är dessutom nationalarena för det svenska damlandslaget i fotboll.
Kommunikation är bra i området med både buss och spårvagn. Centralstationen når du med kollektivtrafik på några minuter.
Köpa, sälja eller värdera bostad i Gårda? Kontakta våra mäklare i Göteborg! Passa också på att anmäla dig till vår kostnadsfria söktjänst Boagenten som hjälper dig att hitta ditt drömboende.
Kontakta mäklaren om du behöver hjälp att ta fram en boendekalkyl.
När du köper din bostad genom Bjurfors kan du ansöka om bolån till en förmånlig ränta hos våra banksamarbetspartners Söderberg & Partners och SEB.
Ansvarig mäklare