-
Köpa
Köpa -
Sälja
Sälja - Hitta bostad
- Skapa bevakning
- Hitta mäklare
Familjärt parhus i Säves lantliga idyll
Säve, Göteborg
*Areauppgifter enligt taxeringsinformationen
På Förhand ligger bostäder som av olika anledningar inte är ute till försäljning just nu men som kan komma att säljas om förutsättningarna är rätt.
Nu finns det möjlighet att bli ägare till ett av de mysiga parhusen i Brunstorps Hage. Ett populärt och barnvänligt närområde med lantlig omgivning
Inom kort kommer vi kunna presentera detta familjära parhus med grönskande hörntomt i populära Säve. I närheten finns förskola samt hållplats Säve Station för smidig transport in till Göteborg. Huset har en altan på baksidan med gott om plats för utemöbler och grill och på framsidan finns ytterligare en stenlagd uteplats så man kan följa solen under hela dagen. Huset har ett lantligt kök med plats för hela familjen och utgång till altanen på framsidan. Vardagsrum i vinkel med utgång till altanen på baksidan. Tre bra sovrum, tvättstuga, två badrum varav ett med dusch och ett med badkar. Tack vare hörnläget finns det en stor gräsmatta på framsidan med plats för både lek och bus. Likaså på baksidan ryms det plats för utemöbler på altanen samt odlingar och planteringar på gräsmattan. I anslutning till entrén återfinns även ett förråd och på framsidan har du gott om plats för parkering av 1-2 bilar. Intill fastigheten finns en garagelänga med garageplats för en bil till hushållet. Välkommen med ert intresse!



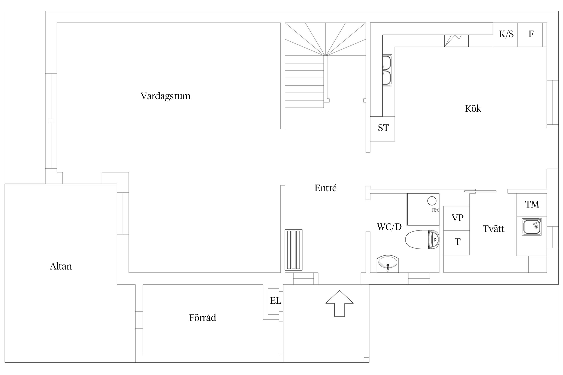
Planritning entré plan
Planritning övre plan
Brunstorp 29:14
*Areauppgifter enligt taxeringsinformationen
Stor härlig altan på husets baksida
Stor altan på husets framsida med kvällssol
Kommunalt vatten, Kommunalt avlopp.
Trädgårdstomt med gräsmatta och stenläggningar
Garage med plats för 1 bil samt 2 bilar på uppfart. Gästparkeringar finns i området
Detaljplan
Gemensamhetsanläggning: Göteborg Brunstorp GA:12 ändamål: Vägar, Vattenförsörjning, Avloppsanläggning, Radio- TV och/eller tele, Elledning och/eller belysning, Grönområden, Garage och/eller parkering, Kvartersanläggning, Gemensamhetsanläggning: Göteborg Brunstorp GA:9
Last: Ledningsrätt Starkström, 1480K-2004F104.2
Grundutbud via samfällighet
Det finns 9 st pantbrev uttagna om sammanlagt 2 649 000 kr
Området Tuve-Säve omfattar Bäckedalen i söder till Kornhalls färja i norr. Tuve-Säve är till stor del en levande jordbruksbygd men även industriföretag som t.ex. Volvo Lastvagnar finns i området. Här har du möjlighet att bo lantligt med storstadens utbud inom räckhåll.
SERVICE OCH SKOLOR
Tuve och Säve har gott om förskolor, familjedaghem och skolor. En av grundskolorna har en montessori-inriktning. Torget i Tuve är livaktigt och populärt trots närheten till Backaplan och Wieselgrensplatsen. Livsmedelsaffärer, blomsterhandel, apotek m.m. ger en bra service till de boende.
FRITID
S:t Jörgens golfbana, inte långt ifrån Tuve och Säve, är en populär 18-hålsbana. I närheten finns också bangolfbana och tennishall med bl.a. tre fina inomhusbanor. Tuvevallen är stadsdelens stora gräsfotbollsplan. Kring vallen har det vuxit upp en ”idrottsby” med bollplaner, motionscentral, klubbstugor, ishall och motionsspår. I området finns det gott om privata ridanläggningar, för dem som vill rida. Säve Depå är ett militärområde med ett stort antal anläggningar, bl.a. skjutbanor, fotbollsplan, sporthall och samlingslokaler. Aeroseum är ett populärt utflyktsmål. Nere i en tidigare militär berganläggning finns flygupplevelser för alla åldrar. Här finns flera utställningar och flera riktiga flygplan såsom jaktplanen Draken och Viggen samt segelflygplan och helikoptrar.
NATUR
Hisingsparken strax söder om Tuve är en tillgång, med vackra naturpartier, vandringsstigar och Kättilsröd 4H-gård. Djupedal är östra och norra Hisingens stora friluftsområde. Nordre Älv är ett betydelsefullt vattendrag för fisk. Genom älven vandrar lax och öring till lekplatser högre upp i vattensystemet.
HISTORIA
Jordbruket har varit dominerande i Säve sedan urminnes tider. Många av markerna har brukats oavbrutet sedan järnåldern och än idag är det en typisk jordbruksbygd om än med vissa förortsinslag. Det finns väldigt många fornlämningar i området, främst i samhällena runt Säve.
KOMMUNIKATIONER
Flera busslinjer trafikerar området, bland annat stombusslinje 17 som går från Tuve till City och vidare till Östra Sjukhuset. Det går även buss till Volvo Torslanda och till Hjalmar Brantingsplatsen. Kornhalls färja går från Kornhall på Kungälvssidan över Nordre Älv till Brunstorpsnäs i Säve. Två linfärjor används på leden.
Köpa, sälja eller värdera bostad i Säve? Kontakta våra Bjurfors mäklare på Hisingen! Passa också på att anmäla dig till vår kostnadsfria söktjänst Boagenten som hjälper dig att hitta ditt drömboende.
Kontakta mäklaren om du behöver hjälp att ta fram en boendekalkyl.
När du köper din bostad genom Bjurfors kan du ansöka om bolån till en förmånlig ränta hos våra banksamarbetspartners Söderberg & Partners och SEB.
Ansvarig mäklare
Extra kontaktperson