-
Köpa
Köpa -
Sälja
Sälja - Hitta bostad
- Skapa bevakning
- Hitta mäklare
Smakfull tvåa i charmig stil och ljuvlig balkong i söderläge!
Strömmensberg, Göteborg
*Inkl värme, VA och kabel-TV. Ett obligatoriskt tillägg om 85 kr/mån tillkommer för bredband.
**Areauppgifter enligt bostadsrättsföreningen och säljare.
Kontakta mäklaren för mer information gällande budgivningen.
Bjurfors Century presenterar denna mysiga tvåa i genomgående fint skick. Här erbjuds en bostad med väldisponerade ytor och solig balkong!
Varmt välkomna till denna välplanerade tvåa om 47 kvm, med solig söderbalkong och välbevarad 40-talscharm.
Via hissen eller trapphuset tar ni er till byggnadens andra våningsplan och vidare in i denna väldisponerade bostad om två rum och kök. Här erbjuds genomgående vackert brädgolv och charmiga fönsterskivor i sten. Vardagsrummet är lättmöblerat och ger enkelt plats åt en soffa med tillhörande tv-möblemang samt matplats för 4-6 personer. Det breda fönsterpartiet tillåter ljuset att flöda in och bidrar i kombination med en gedigen takhöjd till en luftig och levande bostad. Från vardagsrummet välkomnas ni även ut på den trevliga balkongen i soligt söderläge. Bostadens kök går i stilrena kulörer och är utrustat med både tvättmaskin och diskmaskin för att underlätta vardagen lite extra. Sovrummet är minst sagt rymligt, med plats för dubbelsäng och skrivbord.
Här bor ni på en lugn gata, i en stabil bostadsrättsförening med ytterst god ekonomi som förvaltas av Riksbyggen.
Området är beläget med närhet till både naturen kring Delsjön och stadens centrum. Inom det absolut närmsta finns bland annat mataffär, pizzeria mm. Inom gångavstånd når ni även all tänkbar service kring Munkebäckstorget, Bagaregården och Redbergsplatsen. Spårvagnen går från Härlanda och tar er till stadens kärna på bara några minuter. Ännu närmre, från Kransen, går buss 62 som fortsätter till Redbergsplatsen.
Varmt välkommen på visning!
Via trapphuset tar ni hissen upp till det andra våningsplanet för att nå denna mysiga bostad om två rum och kök. Ni möts av en rymlig hall med goda avhängningsmöjligheter. På golvet vilar det fina brädgolvet som återfinns i samtliga rum.
Vardagsrummets gedigna takhöjd i kombination med ett fint ljusinsläpp skapar här ett luftigt och levande hem. Här ligger vackra brädgolv som smakfullt går ihop med den fina blåa nyansen. De väldisponerade ytorna ger vardagsrummet plats för både en trevlig soffhörna med tillhörande TV-möblemang och en matplats för 4-6 personer. Härifrån välkomnas ni även ut på den soliga balkongen.
Balkongens underbara söderläge resulterar i många soltimmar under sommarhalvåret. Utanför vilar byggnadens gröna baksida. Här finns plats för bord med stolar och förslagsvis några fina växter.
Bostadens kök går i moderna färgkombinationer. Längs köksbänken sträcker sig ett vitt kakel som matchas smakfullt mot de gråa över- och underskåpen. Från köksfönstret tillåts ljuset att flöda in. Här erbjuds både gott om förvaring och rymliga arbetsytor. Köket är välutrustat med bland annat en diskmaskin och tvättmaskin för att underlätta vardagen lite extra. Även här ryms matplats för den som önskar.
Sovrummet ger plats åt en dubbelsäng med tillhörande möblemang samt skrivbord, perfekt för den som jobbar hemifrån. Längs ena väggen finns flertalet garderober för utmärkt klädesförvaring. Även här ligger samma vackra plankgolv. På andra våningen är det rofyllt och fönstret vetter mot lugna Strömmensberg.
Ni återvänder till hallen men innan ni lämnar bostaden så tittar ni in i badrummet. Här finns dusch, WC, handfat med kommod samt spegelskåp.



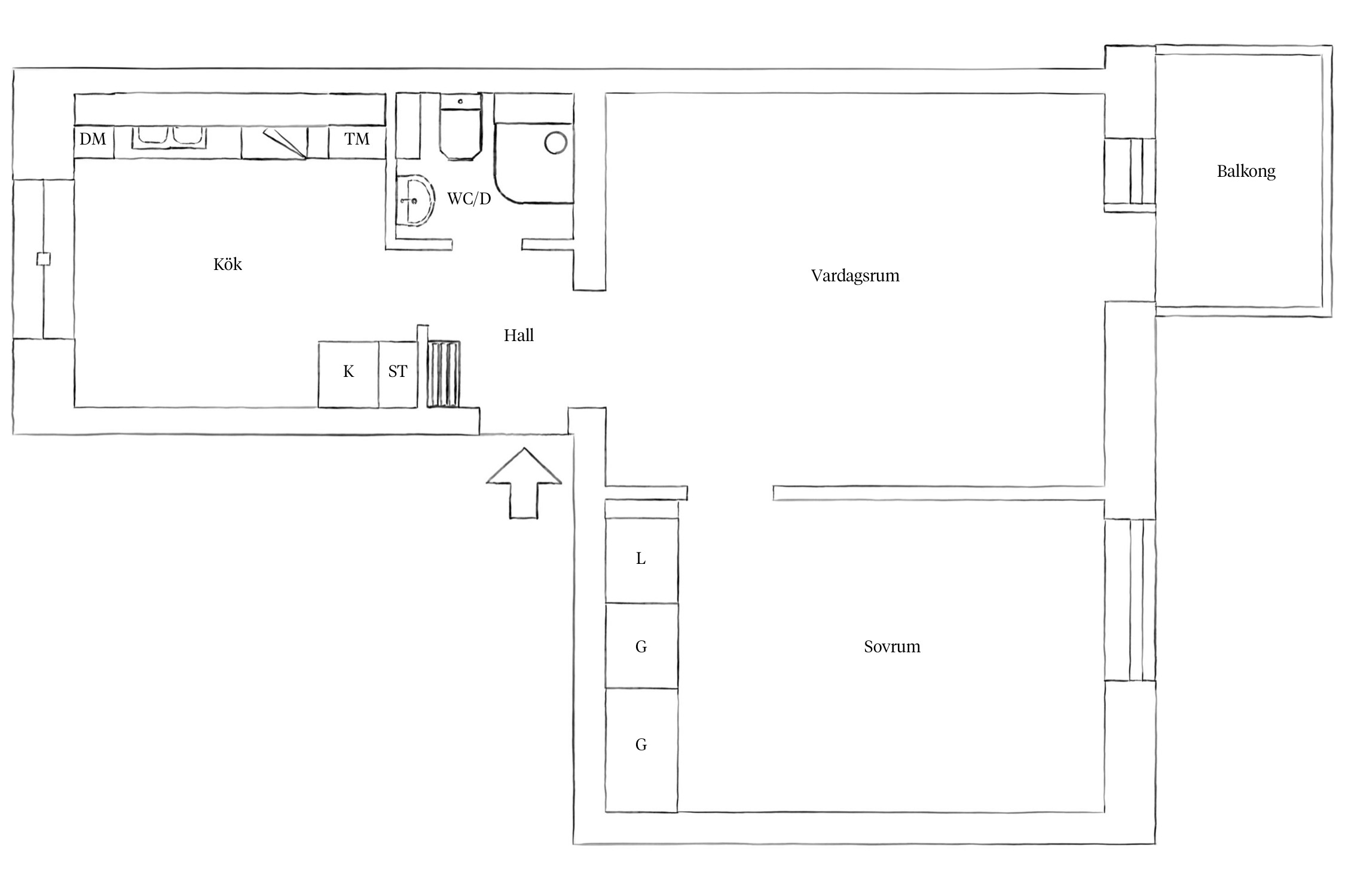
Planritningen är ej skalenlig, viss avvikelse kan förekomma
*Areauppgifter enligt bostadsrättsföreningen och säljare.
Inkl värme, VA och kabel-TV. Ett obligatoriskt tillägg om 85 kr/mån tillkommer för bredband.
I källaren finns ett förråd att nyttja.
Andelstal kapital: 0,691 %
Bostadsrättens indirekta nettoskuldsättning baseras på föreningens skulder/lån minus föreningens räntebärande tillgångar och likvida medel. Beräkningen är gjord via Bopedia. För mer information kontakta ansvarig fastighetsmäklare.
Observera att driftskostnaderna varierar beroende på familjestorlek och förbrukning. Uppgifterna utgör beräknade driftskostnader per månad för bostadsrätten.
*Betalas av köpare
Bostadsrättsföreningen Göteborgshus nr 1 äger fastigheten Bagaregården 36:13. Den omfattar 132 lägenheter med en sammanlagd boyta på 6780 kvm, fördelade på 16 uppgångar med adresserna Kobergsgatan 2:8, 12:14 och 18:30 samt Morängatan 8:12.
Lägenhetsfördelning:
32 st 1 rok.
74 st 2 rok.
13 st 3 rok.
13 st 4 rok.
Föreningen har beslutat att höja avgifterna med 3% 1 januari 2026 för att möta ökade löpande driftkostnader. (information från styrelsen 2025-12-17)
Fastigheten är fullvärdesförsäkrad i Trygg Hansa. Hemförsäkring och bostadsrättstillägg bekostas individuellt av bostadsrättsinnehavaren.
Utförda renoveringar och underhåll:
Huset byggdes 1942 och moderniserades 1985-86.
1985-1986 - Stambyte, fönsterbyte, balkonginstallation, takrenovering samt installation av hissar.
2004 - Ommålning av fasad.
2007 - Avspolning av avloppsstammar och byte av vissa ventiler.
2010 - Tele2 installerade fiberlan.
2013 - Ventilationen sågs över och ersattes med nya fläktar med modern styrning. Det är inte tillåtet att sätta in egen fläkt i lägenheten.
2014 - Renovering av hissar.
2014 - Fasadarbeten samt sett över värmesystemet.
2015 - Byte av radiatorventiler.
2016 - Relining av stammarna.
2018 - Trapphus målas om.
2019 - Energikartläggning
2019 - Målning av källare, tvättstuga
2021 - Renovering av tak och fasad.
2022: OVK
2022/2023 - Byte av värmepumpar.
2024: Målning av torkrum. Upprustning av lekplats.
Kommande renoveringar:
Föreningen har planerat att byta entréportar och yttre källardörrar under 2026. Samt nytt låssystem. Se över träden på gården.
Balkonger och balkongdörrspartier finns i underhållsplanen.
(information från föreningen 2025-12-17 samt årsredovisning 2024)
Föreningen disponerar över 23 parkeringsplatser längs Kobergsgatan. Dessa P-platser har el-uttag för motorvärmare. 5 stycken har laddplatser. Alla platser är uthyrda.
Föreningen är även andelsägare i Strömmensbergs P-platsförening, som disponerar en större parkeringsplats (95 platser, utan eluttag) med infart från Storhöjdsgatan. Även här är alla platser uthyrda, men omsättningen är större och väntetiden kortare. Kontakta Riksbyggen för mer information.
I området finns även platser med gratisparkering.
TV, anslutning till digital-tv, leverantör Tele2. Ingår i avgiften. Bredband från Bahnhof. Ingår i avgiften.
Gemensam innergård med grillmöjligheter och lekplats.
Föreningen har två tvättstugor i källaren, en på Kobergsgatan 6 och en på Kobergsgatan 12. Varje tvättstuga har fyra tvättmaskiner och två torktumlare. Till varje tvättstuga hör också två torkrum vilket innebär att två hushåll kan tvätta samtidigt. Det finns även ett mangelrum.
Cykelrum.
Bastu i källaren vid Kobergsgatan 26.
Hobbyrum i källaren vid Kobergsgatan 24.
Pingisrum i källaren vid Morängatan 8.
Motionsrum i källaren vid Kobergsgatan 2. Det innehåller en träningscykel, en roddmaskin, en cross-trainer och fria vikter samt ett "hemmagym" med diverse lyft-, drag-, böj- och sträckmöjligheter.
BO I ETT LUMMIGT FUNKISPARADIS
Som namnet antyder ligger Strömmensberg just på ett berg med härlig utsikt över staden. Berget bildar en ö mittemellan Bagaregården, Kålltorp och Munkebäck och är ett litet funkisparadis som var stilbildande för sin tid. Här bor du nära både centrala stan och naturen men ändå avskilt. Och på bara några minuter når du kommunikationer och all tänkbar service.
GAMMALDAGS CHARM OCH BANBRYTANDE FUNKIS
Strömmensberg kallades från början Bagaregårdshöjden och var egentligen tänkt som en fortsättning på den blandstad som påbörjats där, med villor, radhus och lägenheter i nationalromantisk stil. Vid foten av berget ligger charmiga kvarter av landshövdingehus och villor som bildar en gemytlig trädgårdsstad.
Fortsätter du uppför de slingrande backarna passerar du ett antal närbutiker och kvarterskrogar, lummiga grönområden och huslängor i tre till fyra våningar innan du når bergets topp. Här uppe sträcker sig ett antal punkthus i funkisstil mot himlen. När området började byggas på 1940-talet var de här punkthusen en helt ny typ av arkitektur för Göteborg och området fick stor uppmärksamhet för sin luftighet och grönska. Det var stadsarkitekten Uno Åhrén som drog upp planerna för Strömmensberg. Han var den som introducerade funktionalismen i Sverige och en av riktningens mest radikala förespråkare. Han gick så långt som att kalla funktionalismen för en livsstil. Idealet var just att skapa en bra livsmiljö där människor kunde trivas och skapa en fungerande vardag. Därför har många av bostäderna i Strömmensberg stora ljusinsläpp och gröna, lummiga gårdar. Så funktionalismens förespråkare visste nog vad de gjorde, att det är lätt att trivas i Strömmensberg är ingen underdrift – utan kanske rentav en livsstil.
EN LUGN OAS MED VY TILL VINGA
Strömmensberg har ett läge som du når från flera håll och vägar som sträcker sig genom hela området. Kommer du från Härlandavägen där spårvagnarna går, svänger du in på Sofiagatan, mitt emot Kulturhuset Kåken som har bibliotek, café, utställningar och aktiviteter för alla åldrar. Därifrån är det inte långt till det underbara Delsjöområdet med badsjöar, motionsslingor och enorma strövområden. På sommaren är Härlanda Tjärn en välbesökt och omtyckt plats, med sandstrand, kiosk och gröna gräsplättar att umgås på. Från Redbergsplatsen och Bagaregården passerar du Ånäsfältet på väg upp till berget. Men det är inte ofta folk bara har vägarna förbi bostadsområdet och det är därför en ovanligt lugn och stillsam atmosfär som råder. Den som saknar stadskänslan behöver bara titta ut genom fönstret för att och blicka ut över stan. Vid klart väder kan man se ända till Vinga.
Köpa, sälja eller värdera bostad i Strömmensberg? Kontakta våra mäklare i Göteborg! Passa också på att anmäla dig till vår kostnadsfria söktjänst Boagenten som hjälper dig att hitta ditt drömboende.
Kontakta mäklaren om du behöver hjälp att ta fram en boendekalkyl.
När du köper din bostad genom Bjurfors kan du ansöka om bolån till en förmånlig ränta hos våra banksamarbetspartners Söderberg & Partners och SEB.
Extra kontaktperson