-
Köpa
Köpa -
Sälja
Sälja - Hitta bostad
- Skapa bevakning
- Hitta mäklare
Välplanerat hem i ett barnvänligt och populärt område.
Tuve, Göteborg
*Areauppgifter enligt taxeringsinformationen
På Förhand ligger bostäder som av olika anledningar inte är ute till försäljning just nu men som kan komma att säljas om förutsättningarna är rätt.
Naturskönt boende med närhet till service, skolor och kommunikationer
Med ett fantastisk läge högt uppe på berget med utsikt över delar av Tuve hittar du denna charmiga hus.
Omgivningen erbjuder något för hela familjen. Här bor ni med ett bekvämt promenadavstånd till skolor, förskolor, fina strövområden vid Hisingsparken samt områdets goda serviceutbud.
Bra kommunikationsmöjligheter både med bil och kollektivt.
Kontakta mäklaren för mer information.



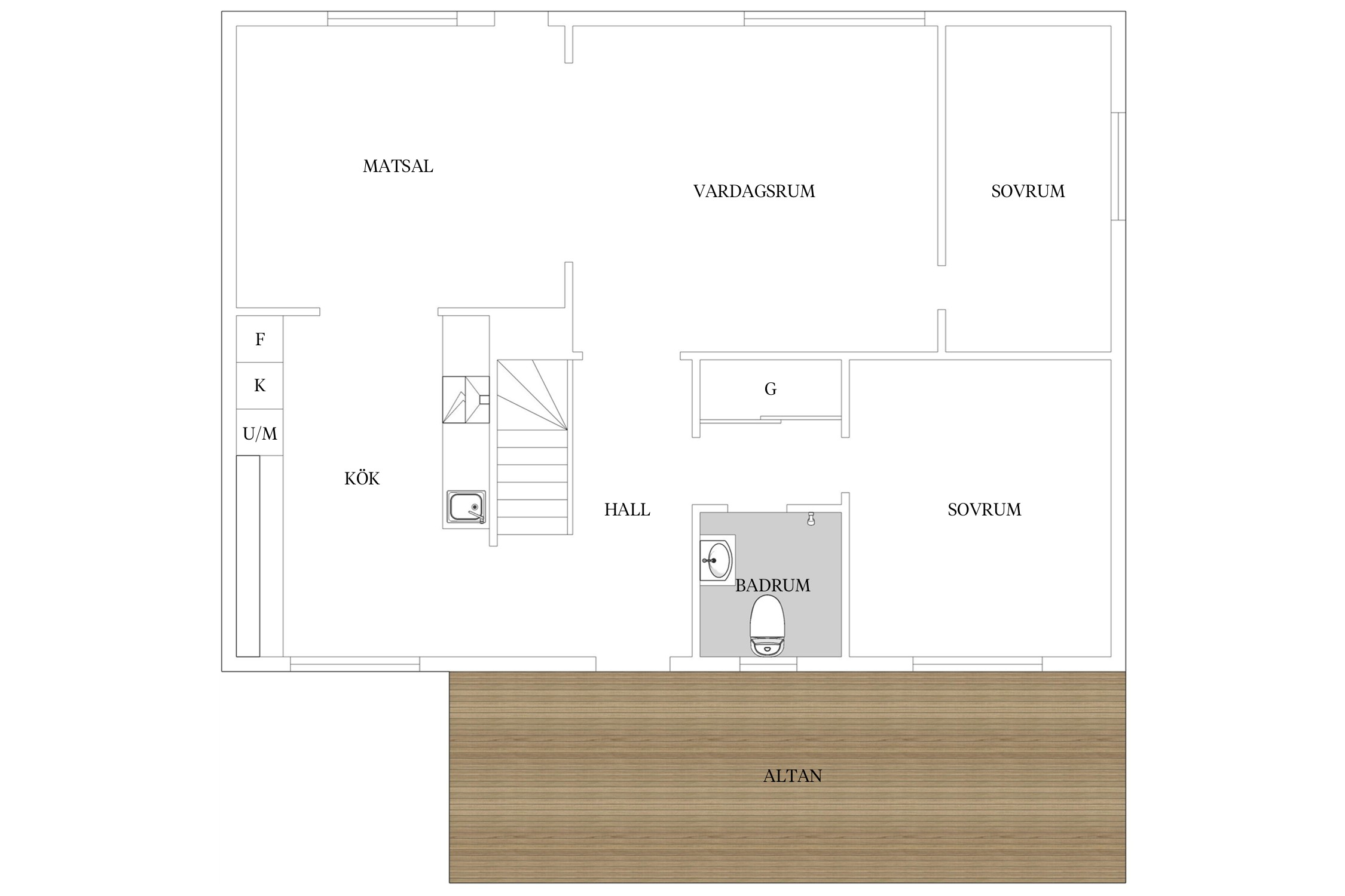
Övre plan
Entréplan
Tuve 10:37
*Areauppgifter enligt taxeringsinformationen
2021 - Värmeväxlare till varmvatten/fjärrvärme
2018 - Nytt kök
2014 - Pool med omgivande altan.
2013
- Tilläggsisolering hela huset samt ny fasad.
- Taket lades om med ny papp, läkt och betongpannor.
- Nya balkongdörrar (2008 och 2013).
2012
- Värmegolv och klinker i hall.
- Altan framsida.
- Våtrummet på entréplan/källare renoverades med kakel och klinkers samt golvvärme.
- Nya fönster källarplan.
2008
- Totalrenovering av källare (ej badrum) med nya golvytskikt, ändrad planlösning med nya innerväggar.
- Dränering runt hela huset.
- Duschrummet på övre plan renoverades med kakel och klinkers.
2007
-Fjärrvärme installerades samt nya radiatorer.
-Ny el i hela huset, ny elcentral med jordfelsbrytare.
Kommunalt vatten, Kommunalt avlopp.
Avstyckningsplan (1945-08-21)
Förmån: Officialservitut Avlopp, 14-TUV-359.3
Förmån: Officialservitut Väg, 14-TUV-359.1
Förmån: Officialservitut Väg, 14-TUV-359.2
Fiber
Uppvärmningskostnaden inkluderar även hushållsel och nätavgift.
Driftkostnaden kan variera beroende på avtal och personlig förbrukning.
Området är expansivt och erbjuder bra kommunikationsmöjligheter mot centrala Göteborg. Endast några minuters promenad till närmsta lokalbuss. Det finns även goda cykelvägar som tar er till centrala Göteborg och andra delar av Hisingen. Det är också nära till motionsspår och promenadstråk i den fantastiska Hisingsparken som också har trevliga lek- och grillplatser samt en bondgård med djur för de minsta.
Det finns 15 st pantbrev uttagna om sammanlagt 1 954 000 kr
Området Tuve-Säve omfattar Bäckedalen i söder till Kornhalls färja i norr. Tuve-Säve är till stor del en levande jordbruksbygd men även industriföretag som t.ex. Volvo Lastvagnar finns i området. Här har du möjlighet att bo lantligt med storstadens utbud inom räckhåll.
SERVICE OCH SKOLOR
Tuve och Säve har gott om förskolor, familjedaghem och skolor. En av grundskolorna har en montessori-inriktning. Torget i Tuve är livaktigt och populärt trots närheten till Backaplan och Wieselgrensplatsen. Livsmedelsaffärer, blomsterhandel, apotek m.m. ger en bra service till de boende.
FRITID
S:t Jörgens golfbana, inte långt ifrån Tuve och Säve, är en populär 18-hålsbana. I närheten finns också bangolfbana och tennishall med bl.a. tre fina inomhusbanor. Tuvevallen är stadsdelens stora gräsfotbollsplan. Kring vallen har det vuxit upp en ”idrottsby” med bollplaner, motionscentral, klubbstugor, ishall och motionsspår. I området finns det gott om privata ridanläggningar, för dem som vill rida. Säve Depå är ett militärområde med ett stort antal anläggningar, bl.a. skjutbanor, fotbollsplan, sporthall och samlingslokaler. Aeroseum är ett populärt utflyktsmål. Nere i en tidigare militär berganläggning finns flygupplevelser för alla åldrar. Här finns flera utställningar och flera riktiga flygplan såsom jaktplanen Draken och Viggen samt segelflygplan och helikoptrar.
NATUR
Hisingsparken strax söder om Tuve är en tillgång, med vackra naturpartier, vandringsstigar och Kättilsröd 4H-gård. Djupedal är östra och norra Hisingens stora friluftsområde. Nordre Älv är ett betydelsefullt vattendrag för fisk. Genom älven vandrar lax och öring till lekplatser högre upp i vattensystemet.
HISTORIA
Jordbruket har varit dominerande i Säve sedan urminnes tider. Många av markerna har brukats oavbrutet sedan järnåldern och än idag är det en typisk jordbruksbygd om än med vissa förortsinslag. Det finns väldigt många fornlämningar i området, främst i samhällena runt Säve.
KOMMUNIKATIONER
Flera busslinjer trafikerar området, bland annat stombusslinje 17 som går från Tuve till City och vidare till Östra Sjukhuset. Det går även buss till Volvo Torslanda och till Hjalmar Brantingsplatsen. Kornhalls färja går från Kornhall på Kungälvssidan över Nordre Älv till Brunstorpsnäs i Säve. Två linfärjor används på leden.
Köpa, sälja eller värdera bostad i Tuve? Kontakta våra Bjurfors mäklare på Hisingen! Passa också på att anmäla dig till vår kostnadsfria söktjänst Boagenten som hjälper dig att hitta ditt drömboende.
Kontakta mäklaren om du behöver hjälp att ta fram en boendekalkyl.
När du köper din bostad genom Bjurfors kan du ansöka om bolån till en förmånlig ränta hos våra banksamarbetspartners Söderberg & Partners och SEB.
Ansvarig mäklare