-
Köpa
Köpa -
Sälja
Sälja - Hitta bostad
- Skapa bevakning
- Hitta mäklare
Högst upp i huset med söderbalkong
Tuve, Göteborg
*I avgiften ingår värme.
**Areauppgifter enligt bostadsrättsföreningen.
På Förhand ligger bostäder som av olika anledningar inte är ute till försäljning just nu men som kan komma att säljas om förutsättningarna är rätt.
Modern och fin tvåa från 2021 på mitt i hjärtat av Tuve. Precis intill finns Tuve torg och 17-bussen som snabbt tar dig till stan.
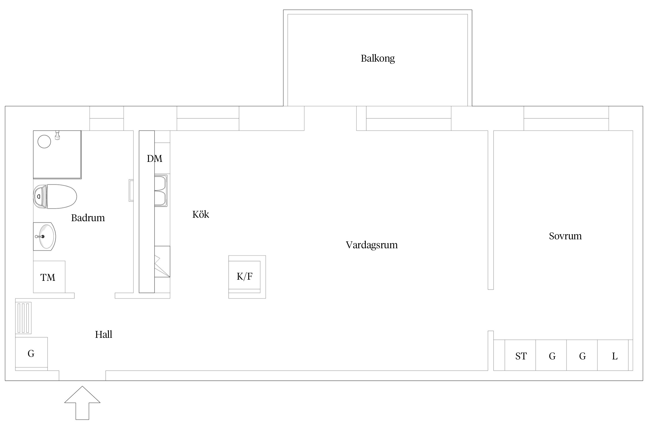
Nu finns möjlighet att förvärva denna fina bostad i populära Tuve. Bostaden ligger högst upp på våning 6/6 med balkong i söderläge. Öppen planlösning mellan kök och vardagsrum vilket ger härliga sällskapsytor. Genomgående parkettgolv och ljusa ytskikt. Här finner du även ett rofyllt sovrum, välutrustat och tidlöst kök samt ett helkaklat badrum med kombinerad tvättmaskin och torktumlare.
Här bor ni med närhet till all önskvärd service och allt Tuve Torg har att erbjuda. Dessutom går bussen precis utanför dörren och tar dig till de centrala delarna av Göteborg på bara 15 minuter.
Innanför entrén välkomnas du av hela bostadens öppna ytor. I hallen finns förvaringsmöjligheter och avhängning i garderob bakom spegelskjutdörrar.
Rakt fram ligger det rymliga och helkaklade badrummet. Fina väggar i vitt kakel matchas med ljust klinkergolv. Badrummet är utrustat med toalett, handfat med kommod, duschhörna med vikväggar i glas samt tvättmaskin och torktumlare. Här finns även ett praktiskt vädringsfönster.
Vidare in i bostaden nås vardagsrum och kök som ligger med öppen planlösning. Stora fönsterpartier släpper in rikligt med ljus. Vardagsrumsdelen rymmer gott och väl en soffgrupp med tillhörande möblemang samt matbord i anslutning till köksdelen. Här finns utgång till den trevliga och möblerbara balkongen med högt och fritt läge.
Köket är klassiskt och stilrent med vita skåpluckor och vitt kakel ovan en mörk bänkskiva. Utrustning i form av spis med ugn och fläkt, inbyggd mikro, diskmaskin samt kombinerad kyl och frys.
Med rofyllt läge längst in i bostaden ligger det rymliga sovrummet med garderober längs ena väggen och utrymme för dubbelsäng.



*Areauppgifter enligt bostadsrättsföreningen.
I avgiften ingår värme.
Nettoskuldsättningen är en uträkning baserad på information som föreningen har tillhandahållit. Den är eventuellt baserad på fel andelstal och kan därför vara felaktig
Detta är enbart riktvärden och kan variera beroende på avtal och förbrukning
*Betalas av köpare
Brf Tuvebo Smedja registrerades 2018 och består av flerbostadshus om 58 lägenheter samt 4 lokaler färdigställt under 2021 på adressen Tuve 134:3. Föreningen äger marken.
Uppvärmning: Fjärrvärme
Ventilation: Mekanisk från- och tilluft med värmeåtervinning (FTX)
Ekonomisk förvaltare: Nabo
Teknisk förvaltare: FR fastighetsservice
Avgiften höjdes med 5% 1/9-2023.
Avgiften höjdes med 3% den 1/4-2024.
Ingen planerad avgiftshöjning. (Uppgifter från styrelsen 2025-12-05)
Fastigheten är fullvärdeförsäkrad i Länsförsäkringar.
Inkl. i försäkringen är ansvarsförsäkring för styrelsen samt bostadstillägg för föreningens lägenheter.
Genomförda:
Då fastigheten är så pass nybyggd har föreningen inte gjort några renoveringar än.
Planerade:
Det pågår ett arbete för att utreda möjlighet till utökat bygglov kring inglasningar av balkonger (för de som vill).
Föreningen har en 50 årig underhållsplan.
Föreningen tillhandahåller 38 st parkeringsplatser i garage under huset., varav 5 st är utrustade med laddstolpe. 3 st platser finns utomhus varvav en är handikappanpassad. Kostnad är 800 kr/mån och 400 kr/mån för utomhusplats. Separat kö. MC-parkering tillgänglig för 400 kr/mån.
Besöksparkeringar finns på gatan utanför.
Internet/TV/Telefoni. Öppen fiber, leverantör Telenor.
Varje hushåll tecknar eget abonnemang.
Innergård med bokningsbart gårdshus.
Det finns barnvagns- och rullstolsförråd i anslutning till varje trapphus. Vidare finns ett tillhörande förråd, gemensam tvättstuga och cykelverkstad. Cykelparkering finns inomhus, en del i entré och en del i anslutning till garage. Källsortering finns i form av miljörum.
På taket finns två takterrasser som får disponeras av alla bostadsrättshavare.
Gårdshus på innegården som kan bokas till en kostnad. Går att hyra för fest/sammankomster för 300kr per dygn samt en gästlägenhet att hyra för 300kr per dygn som har både badrum & pentry.
Informationen är hämtad från hemsidan, årsredovisning och stadgar, vi ansvarar inte att uppgifterna är korrekta utan råder dig att kontrollera det som är av betydelse.
Området Tuve-Säve omfattar Bäckedalen i söder till Kornhalls färja i norr. Tuve-Säve är till stor del en levande jordbruksbygd men även industriföretag som t.ex. Volvo Lastvagnar finns i området. Här har du möjlighet att bo lantligt med storstadens utbud inom räckhåll.
SERVICE OCH SKOLOR
Tuve och Säve har gott om förskolor, familjedaghem och skolor. En av grundskolorna har en montessori-inriktning. Torget i Tuve är livaktigt och populärt trots närheten till Backaplan och Wieselgrensplatsen. Livsmedelsaffärer, blomsterhandel, apotek m.m. ger en bra service till de boende.
FRITID
S:t Jörgens golfbana, inte långt ifrån Tuve och Säve, är en populär 18-hålsbana. I närheten finns också bangolfbana och tennishall med bl.a. tre fina inomhusbanor. Tuvevallen är stadsdelens stora gräsfotbollsplan. Kring vallen har det vuxit upp en ”idrottsby” med bollplaner, motionscentral, klubbstugor, ishall och motionsspår. I området finns det gott om privata ridanläggningar, för dem som vill rida. Säve Depå är ett militärområde med ett stort antal anläggningar, bl.a. skjutbanor, fotbollsplan, sporthall och samlingslokaler. Aeroseum är ett populärt utflyktsmål. Nere i en tidigare militär berganläggning finns flygupplevelser för alla åldrar. Här finns flera utställningar och flera riktiga flygplan såsom jaktplanen Draken och Viggen samt segelflygplan och helikoptrar.
NATUR
Hisingsparken strax söder om Tuve är en tillgång, med vackra naturpartier, vandringsstigar och Kättilsröd 4H-gård. Djupedal är östra och norra Hisingens stora friluftsområde. Nordre Älv är ett betydelsefullt vattendrag för fisk. Genom älven vandrar lax och öring till lekplatser högre upp i vattensystemet.
HISTORIA
Jordbruket har varit dominerande i Säve sedan urminnes tider. Många av markerna har brukats oavbrutet sedan järnåldern och än idag är det en typisk jordbruksbygd om än med vissa förortsinslag. Det finns väldigt många fornlämningar i området, främst i samhällena runt Säve.
KOMMUNIKATIONER
Flera busslinjer trafikerar området, bland annat stombusslinje 17 som går från Tuve till City och vidare till Östra Sjukhuset. Det går även buss till Volvo Torslanda och till Hjalmar Brantingsplatsen. Kornhalls färja går från Kornhall på Kungälvssidan över Nordre Älv till Brunstorpsnäs i Säve. Två linfärjor används på leden.
Köpa, sälja eller värdera bostad i Tuve? Kontakta våra Bjurfors mäklare på Hisingen! Passa också på att anmäla dig till vår kostnadsfria söktjänst Boagenten som hjälper dig att hitta ditt drömboende.
Kontakta mäklaren om du behöver hjälp att ta fram en boendekalkyl.
När du köper din bostad genom Bjurfors kan du ansöka om bolån till en förmånlig ränta hos vår samarbetspartner SEB.
Ansvarig mäklare
Extra kontaktperson