-
Köpa
Köpa -
Sälja
Sälja - Hitta bostad
- Skapa bevakning
- Hitta mäklare
Högt upp i huset med balkong!
Vasastaden, Göteborg
*I avgiften ingår värme, vatten, TV och bredband.
**Enligt säljare och bostadsrättförening
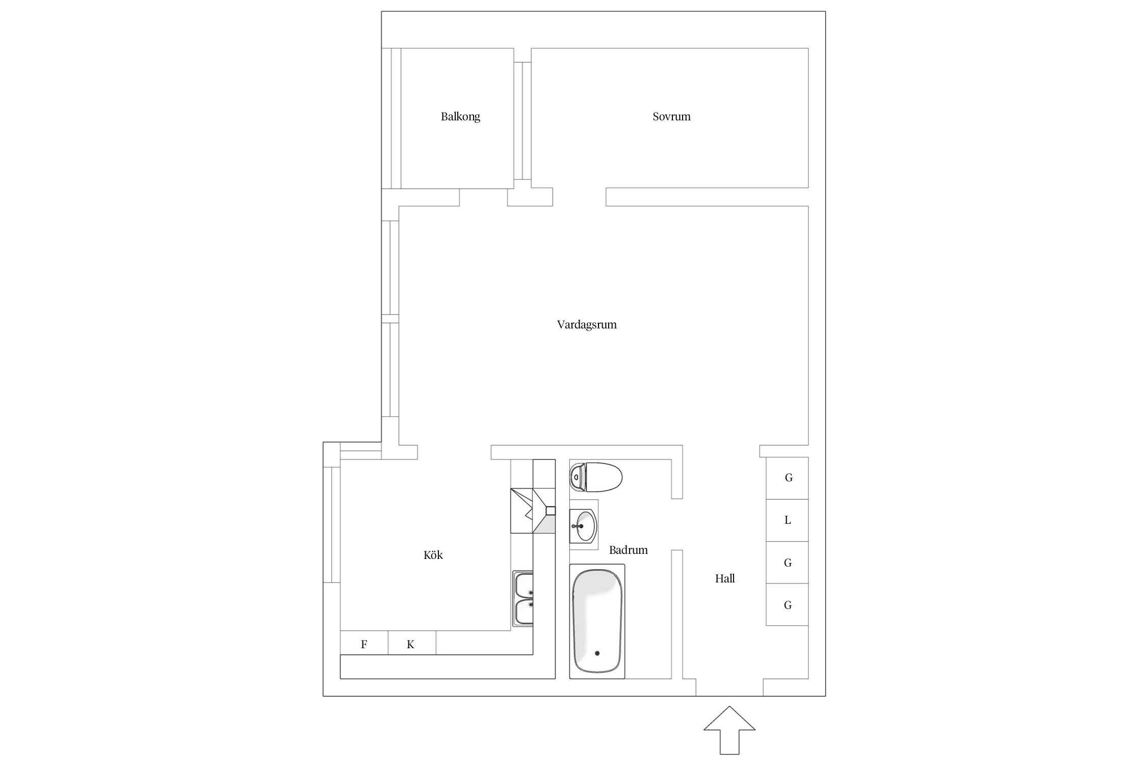
Lägenheten är registrerad som 1 rok i lägenhetsförteckningen, disponeras som 2 rok.
På Förhand ligger bostäder som av olika anledningar inte är ute till försäljning just nu men som kan komma att säljas om förutsättningarna är rätt.
Kvadratsmart bostad med balkong - högt upp i huset och bästa cityläge!
Välkommen hem till denna välplanerade bostad som idag disponeras som en tvårummare. Här bor du högt upp i huset, på våning 7 av 8, med ett härligt ljusinsläpp och ett svårslaget cityläge.
De 43 kvadratmetrarna är smart fördelade så att varje yta kommer till sin rätt. Det stilrena köket i klassiskt vitt erbjuder gott om förvaring och arbetsyta, och den öppna planlösningen mot vardagsrummet bjuder in till sociala stunder med familj och vänner. Härifrån nås även balkongen – en självklar favoritplats mot innergården där du kan njuta av solens strålar under årets varmare månader.
Sovrummet är rofyllt och välplanerat med plats för både dubbelsäng och förvaring, och helheten präglas av ljusa färger och en harmonisk känsla.
Brf Grimberget är en mycket omtyckt och välskött förening med god ekonomi och gemensamma faciliteter såsom bastu och övernattningsrum. Här bor du med promenadavstånd till Avenyn, Haga och Linnéstadens rika utbud av restauranger, caféer och butiker. Samtidigt finns grönområden som Vasaparken och Slottsskogen nära till hands, och utmärkta kommunikationer gör det enkelt att ta sig runt. Ett lugnt, tryggt och trivsamt hem - mitt i stadens puls.
Bostaden är registrerad som 1rok i bostadsrättsföreningen, disponeras idag som 2rok.
Varmt välkomna att kontakta ansvarig mäklare, Malin Wallén, för mer information!



*Enligt säljare och bostadsrättförening
Lägenheten är registrerad som 1 rok i lägenhetsförteckningen, disponeras som 2 rok.
I avgiften ingår värme, vatten, TV och bredband.
Parkeringsgarage i huset med 40 platser, alla platser har laddmöjligheter. Kostnad för att hyra en plats är 900kr/mån + kostnad för förbrukad el. Rekommendationen är att sätta upp sig i kö så snart man blivit godkänd medlem genom att kontakta styrelsen. Platserna hyrs endast ut till boende i föreningen.
Föreningen har ett gruppavtal med Sappa med grundutbud av digital-tv och bredband 50/500.
Bostadsrättens indirekta nettoskuldsättning baseras på föreningens skulder/lån minus föreningens räntebärande tillgångar och likvida medel. Beräkningen är gjord via förvaltaren. För mer information kontakta ansvarig fastighetsmäklare.
*Betalas av köpare
Brf Grimberget (769610-1919) förvärvade fastigheten Annedal 6:15 år 2005. Fastigheten består av fyra punkthus, omfattande 148 bostadsrätter samt 5 lokaler. Byggnadens totalyta uppgår till 9566 kvm.
Exempel på genomfört underhåll:
2010: Fasad, fönster och yttertak
2012: Underhåll av hissar
2015: Ventilation. Garantibesiktning av fasad, fönster och yttertak
2016: Byte till säkerhetsdörrar i trapphus, nytt passérsystem samt nytt bokningsystem för tvättstugan
2017: Två hyresrätter sålda som bostadsrätter, installation av ny värmestyrning för inomhusklimatet.
2018: Dränering
Övrigt: Upprustning av innergården med plattläggning och planteringar. Underhåll av frånluftsfläktarna för ventilation i samtliga fyra hus. Brandsläckare har installerats på vindar och i alla trappuppgångar.
2019: Energideklaration utförd.
2020-2021: Relining av stammar till alla lägenheter. Installation av laddstolpar för elbilar i garaget.
2022: Underhåll av stammar i bottenplattan (relining) och renovering av tvättstugorna.
2024: Fasadrenovering
Gemensamhetslokaler:
I föreningen finns två tvättstugor (källaren i 1A och 3A). Vidare finns också en föreningslokal att hyra med bastu och övernattningslägenhet.
Förvaltare:
Den tekniska förvaltningen sköts av HSB och den ekonomiska förvaltningen av NABO.
Föreningens hemsida:
För mer information gå in på www.brfgrimberget.se
Årsavgiften planeras att förändras 2026-04-01 med +4%.
Parkeringsgarage i huset med 40 platser, alla platser har laddmöjligheter. Kostnad för att hyra en plats är 900kr/mån + kostnad för förbrukad el. Till platserna är det ca 3-5 års kö. Rekommendationen är att sätta upp sig i kö så snart man blivit godkänd medlem genom att kontakta styrelsen. Platserna hyrs endast ut till boende i föreningen.
UPPLEVELSERNAS GÖTEBORG
Vasastaden är Göteborgs givna essens och ett koncentrat av det göteborgska storstadslivet. Här möter stenhusen från förra sekelskiftet och parkerna de trendiga kaféerna, barerna och stjärnkrogarna. Kombinationen som möter dig är en kosmopolitisk småstadscharm med konstgallerier och korvkiosker i en härlig och alldeles speciell blandning.
MED EN TOUCH AV PARIS
Utelivet i Vasastaden är någonting helt annat än i övriga delar av innerstaden och på Avenyn. Här går man ut för att uppleva smaker, mötas och umgås. Kanske avnjuta en välmixad fördrink eller perfekt skummad cortado innan kvällens middag. Det är inte för inte som stadsdelens restauranger stoltserar med flera av stadens Michelinstjärnor. Hela Vasastaden har en självklar internationell prägel, som inte känns påklistrad, utan helt naturlig.
Det var just med den avsikten stadsplanerarna och arkitekterna drog upp planerna för den nya stadsdelen när den skapades, runt 1860. Målet var att skapa ett göteborgskt Paris eller Wien med breda boulevarder och påkostade byggnader i nyrenässans- och jugendstil. Att göteborgarna månar om Vasastaden har faktiskt gjort den till en av Sveriges mest välbevarade stadsmiljöer från den här tiden. Överallt kryssar cyklar, spårvagnar och barnvagnar fram utan att det någonsin känns trångt eller bullrigt.
VASASTADENS KORV- OCH KONSTKLASSIKERMen en stadsdel blir inte levande bara för att man planerar den så. Den växer och spretar åt de håll den själv vill och det är självklart så att människorna som bor, arbetar och rör sig där sätter sin unika prägel. Därför har Vasastaden också sina anspråkslösa småbutiker, sköna fikahäng, prisvärda lunchhak och klassiska gatukök. Du kanske är en av är de göteborgare som någon gång snubblat in på Sjuans korvbar framåt småtimmarna efter en glad utekväll eller tentapluggat på något av kaféerna längs Vasagatan.
Kvarteren är inte bara hem för kulinariska upplevelser, utan är också ett mecka för konst, musik och allehanda annan kultur. Såväl Röhsska och HDK som Schillerska gymnasiets estetiska program sätter sin prägel på området och det finns hela 20 konstgallerier att välja mellan.
Bland stadsdelens mer framträdande arkitektoniska byggnadsverk märks universitetsbyggnaden vid Vasaparken som knyter ihop studentlivet med Handelshögskolan längst ner mot Haga, där även Universitetsbiblioteket ligger mitt emot. Så det är inte konstigt att Vasagatan är den av studenter på cykel hårdast trafikerade leden i Sverige.
Köpa, sälja eller värdera bostad i Vasastaden? Kontakta våra mäklare i Göteborg! Passa också på att anmäla dig till vår kostnadsfria söktjänst Boagenten som hjälper dig att hitta ditt drömboende.
Kontakta mäklaren om du behöver hjälp att ta fram en boendekalkyl.
När du köper din bostad genom Bjurfors kan du ansöka om bolån till en förmånlig ränta hos våra banksamarbetspartners Söderberg & Partners och SEB.
Ansvarig mäklare