-
Köpa
Köpa -
Sälja
Sälja - Hitta bostad
- Skapa bevakning
- Hitta mäklare
Ståtlig villa omgiven av natur i Landvetter
Landvetter, Härryda
*Areauppgifter enligt taxeringsinformationen
Inbäddad av grönska vilar denna väl tilltagna villa i ett högt och fritt läge med trivsamma uteplatser och närhet till Landvetter centrum och badsjö
Nu erbjuds chansen att förvärva en ståtlig villa på 210 kvm med hela 8 rum och generösa sällskapsytor. Villan är inbäddad i grönska, vilket ger en harmonisk känsla där arkitekturen smälter samman med naturen runtomkring. Denna bostad har genom åren varsamt renoverats och utvecklats för att matcha moderna krav på komfort utan att förlora sin unika karaktär.
Interiören är rymlig och flexibel och erbjuder den stora familjen gott om plats att trivas, leva och bo. Sällskapsytorna är välplanerade och inbjuder till gemenskap. Köket, som delar en delvis öppen planlösning med allrummet och middagsplatsen, är utrustat med moderna bekvämligheter samt en värmande braskamin som inte bara bidrar till husets charm utan också skapar en naturlig samlingspunkt under måltiderna. De sex sovrummen ger flexibilitet för såväl avkoppling och personligt utrymme. Varje detalj i renoveringen har utförts med omsorg för att bevara husets ursprungliga charm samtidigt som bekvämligheter uppdaterats. Ett fullt utrustat badrum, ett som behöver renoveras samt ett separat wc kompletterar bostadens praktiska aspekter.
Uteplatserna runt villan är omgivna av lummig skog som inte bara erbjuder en fantastisk vy utan också skapar en känsla av privat reträtt från vardagens stress. Höjden på tomten bidrar dessutom med en fantastisk vy över de närliggande omgivningarna där man kan se Landvettersjön skimra i horisonten.
Sluttningstomten med direkt närhet till skogen är rik på naturlig vegetation inklusive frodiga blåbärsbuskar som erbjuder möjligheter för avkopplande bärplockning under sommarmånaderna. Den generösa tomten smälter harmoniskt samman med den omgivande naturen och har goda möjligheter att utvecklas vidare vid önskemål och behov.
Närheten till Landvetter centrum innebär att alla tänkbara bekvämligheter finns inom räckhåll. Där finns butiker, restauranger och andra serviceinrättningar som gör livet enklare och mer njutbart. Gångavstånd till förskola och skola nås inom bekväma minuter på trygga gångstråk. För den som pendlar erbjuder området ypperliga kommunikationsmöjligheter till Göteborg. Från villan nås även Landvettersjön med en kort promenad, varifrån man även kan njuta glimtar av direkt från någon av husets flera uteplatser. Sjön har en populär badplats med bryggor och sandstrand men är också perfekt för rekreativa aktiviteter såsom fiske, paddling eller bara lugna promenader längs vattnet, vilket ytterligare höjer livskvaliteten för boende i denna villa. Fritidsanläggningen Sjöholmsparken belägen vid sjön erbjuder även trivsamma aktiviteter för hela familjen! Här finns äventyrsgolf, padel, tennis, pickleball, boule, samt en kiosk och café som är öppet under sommarhalvåret.
Denna villa representerar helt enkelt ett unikt tillfälle att äga ett hem där natur och bekvämlighet går hand i hand. Med sitt praktiska läge kombinerat med privat och naturnära boende erbjuder detta hem det bästa av två världar – perfekt för den aktiva familjen eller någon som söker ett lugnt men ändå centralt beläget boende.



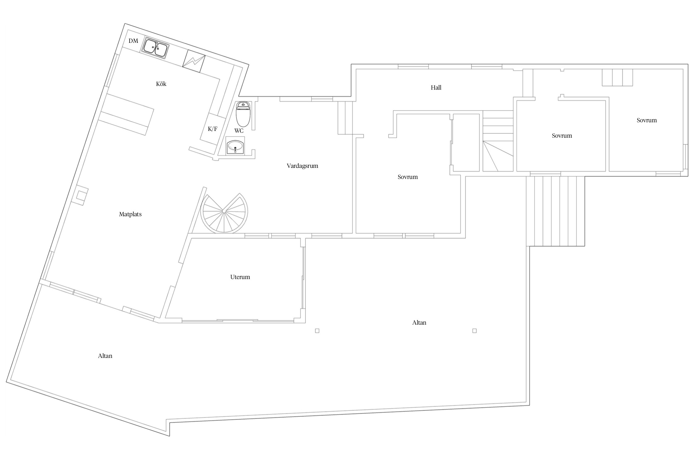
Planskiss, entréplan, sutterrängplan
Planskiss, våning 2
Planskiss, våning 3
Landvetter 2:12
*Areauppgifter enligt taxeringsinformationen
*Tillbyggt 1970 och 2021
Huset byggdes ut 1960 med det som idag är vardagsrum, kök, wc samt matplats med tillhörande suterrängkällare.
1970 byggdes huset ut med det som idag är del av passage, sovrum 1 och 2 på våning 2.
2021 byggdes den övre delen till som disponeras av vardagsrum, badrum, samt tre sovrum. Från det övre planet har det även byggts en balkong i ett högt och fritt läge med härlig vy.
2021 - Tillbyggt en våning
- Uterum/Inglasning
- Alla tak omlagda
- All fasad byttes ut, i samband med detta har nästintill alla
väggar tilläggsisolerats
2008 - Installation av luft/vattenvärmepump
2008 - Byte av enstaka fönster
2005 - Altan byggdes
2003 - Installation av kamin
2001 - Renovering av badrum på suterrängplanet (behöver göras
om)
2001 - Köket renoverades
2001 - Renovering av wc på entréplan
1970 - Utbyggnad av huset, del av passage, sovrum 1 och 2 tillkom
(våning 2)
1960 - Utbyggnad av huset, vardagsrum, kök, wc, matplats (våning
2), samt tillhörande suterrängkällare tillkom
Tillhörande fastigheten finns även en fristående carport med underhållsbehov, och förråd samt friggebod. Friggeboden är 12 kvm varav 8 kvm är varmförråd och 4 kvm kallförråd. El finns indraget.
Villan erbjuder i anslutning till huset tre trivsamma altandäck där många avkopplande stunder i lugn och ro kan avnjutas med en vy utöver det vanliga. Det största trädäcket ger plats för många olika sittgrupper och blir den naturliga platsen att umgås på med vänner och familj. I anslutning till den första uteplatsen finns även en inglasning som med fördel förlänger årstiderna och bidrar till ett trivsamt inslag även i villans arkitektur. Den övre uteplatsen, balkongen från tredje plan, ger plats för caféset eller mindre soffa. Här fångar man gärna kvällsolen bland trädkronorna som omger uteplatsen. Den tredje uteplatsen nås från villans allrum och infinner sig på villans baksida.
Även gäststugan har ett trivsamt trädäck.
Kommunalt vatten & avlopp.
Väl tilltagen sluttningstomt med skog och blåbärsbuskar inpå knuten. Här finns möjligheter att utveckla och planera trädgården utifrån önskemål och behov.
Parkera i villans carport, eller på den grusade uppfarten intill gäststugan. Sammantaget finns det med enkelhet plats för fyra bilar.
Vattenskyddsområde (2022-12-20)
Gemensamhetsanläggning: Härryda landvetter ga:10 ändamål: Vägar
Last: Avtalsservitut Väg mm, 14-IM1-84/5955.1
Tv via fiber
Bredband via fiber
Avtalsservitut Väg mm
Under posten uppvärmning ingår även kostnaden för hushålls-el.
Det finns 11 st pantbrev uttagna om sammanlagt 5 053 000 kr
BO I LANDVETTER MED SKOGEN SOM GRANNE
Med bara femton minuter från Göteborg bor du med naturens lugn inpå knuten. Här finns aktiviteter för alla, oavsett ålder. Välkommen till Landvetter och ett liv som är lätt att leva.
CENTRUM ELLER LANDET?
Expansiva Landvetter håller på att utvecklas till en småstad med centrumgator, parkstråk och torg. Här finner du många mysiga butiker, flera livsmedelsaffärer, frisörer, bagerier och restauranger. För dig som gillar att ta extra hand om ditt hem finns byggvaruhus och trädgårdshandel. I Landvetter ligger också all service du behöver i form av vårdcentral, tandläkare, och apotek. På kulturhuset finns bibliotek, kulturskola och en välbesökt scen.
Närheten till både storstaden och naturen har gjort Landvetter, liksom övriga tätorter i Härryda kommun, attraktivt att bo i. Många företag har valt att rota sig i kommunen på grund av det strategiska läget strax utanför Göteborg och de goda kommunikationerna från resecentrumet har ökat inflyttningen. Förutom bussförbindelser till Göteborg och ut i Sverige ligger här Landvetter Airport som tar dig vidare ut i Europa och världen.
Landvetter är uppdelat i två delar. Den norra delen har hittills expanderat mest och det är där du finner Landvetter centrum med bostäder i samlad bebyggelse som sträcker sig vidare upp till Önneröd för att avslutas i lantliga Tahult. I södra delen har du både flerfamiljshus och villor. I Backaområdet har infrastrukturen förbättrats, området förtätats och det har byggts en ny grundskola F-3.
HITTA DITT SMULTRONSTÄLLE
Var du än väljer att bosätta dig i Härryda kommun kommer skogen vara en av dina grannar. Landvetter erbjuder många vandringsleder och motionsspår i natursköna omgivningar. Gallhålans naturreservat är populärt bland löpare. För dig som väljer skidorna om vintern erbjuder Landehof elljusspår. Landvetterborna gillar ett aktiv liv. Är det inte i någon av skogarna så utövar man sin sport i någon av idrottshallarna. Populära sporter är fotboll, ishockey, konståkning, judo och ridning. Flera stora gymkedjor har etablerat sig i Landvetter med omnejd. För dig som gillar golf ligger Chalmers Golfklubb strax öster om Landvetter och erbjuder 18 vackra hål i parkmiljö.
Härryda bjuder på hundratals sjöar och du kommer med all säkerhet hitta ditt smultronställe för bad och fiske. På sommaren är Landvettersjön en populär badplats, och kanske är du en av dem som vågar sig på ett dopp under årets kalla månader?
Här finns många förskolor och flera grundskolor att välja på. Grundskolan arbetar tätt ihop med förskolan mot gemensamma mål. I Mölnlycke ligger Hulebäcksgymnasiet som har elever från hela kommunen.
Köpa, sälja eller värdera bostad i Landvetter? Kontakta våra mäklare i Härryda! Passa också på att anmäla dig till vår kostnadsfria söktjänst Boagenten som hjälper dig att hitta ditt drömboende.
Kontakta mäklaren om du behöver hjälp att ta fram en boendekalkyl.
När du köper din bostad genom Bjurfors kan du ansöka om bolån till en förmånlig ränta hos vår samarbetspartner SEB.