-
Köpa
Köpa -
Sälja
Sälja - Hitta bostad
- Skapa bevakning
- Hitta mäklare
Grönskande höjd, fantastisk utsikt.
Mölnlycke-Nysäter, Härryda
*Areauppgifter enligt taxeringsinformationen
Högt och inbäddad i grönska med en fantastisk utsikt ligger denna optimalt planerade villa om 101 kvm.
Ett hem att trivas i – för hela familjen
Välkommen till ett hem där vardagen blir lite enklare och livet lite vackrare. Med ett fantastiskt naturskönt läge och en rogivande utsikt ligger denna totalrenoverade villa om 101 kvm – modern, ljus och inbjudande från första steget in.
Den öppna planlösningen och de generösa fönsterpartierna släpper in ljuset från flera väderstreck och skapar en härlig känsla av rymd. Här finns tre sovrum – varav ett större föräldrasovrum med plats för dubbelsäng och gott om förvaring – perfekt för familjelivets behov. Det stilrena köket ligger i öppen anslutning till vardagsrummet, vilket gör det enkelt att laga middag medan barnen leker i närheten eller läxläsningen pågår vid matbordet.
Det helkaklade badrummet är rymligt och praktiskt, och hela huset är nymålat – redo för nästa familj att flytta rakt in.
Runt huset löper en generös altan på hela 105 kvm – här finns plats för både grillkvällar, lekytor, odlingar och lugna stunder i solen från morgon till kväll. Följ solen, flytta runt sittgrupperna och njut av naturen precis utanför.
Läget är idealiskt för barnfamiljen – lugnt, naturnära och med närhet till både skola, förskola och goda kommunikationer (X4). På kort promenadavstånd väntar fina strövområden, motionsslingor och inte minst två badsjöar – perfekta för sommarens äventyr eller en vinterpromenad.
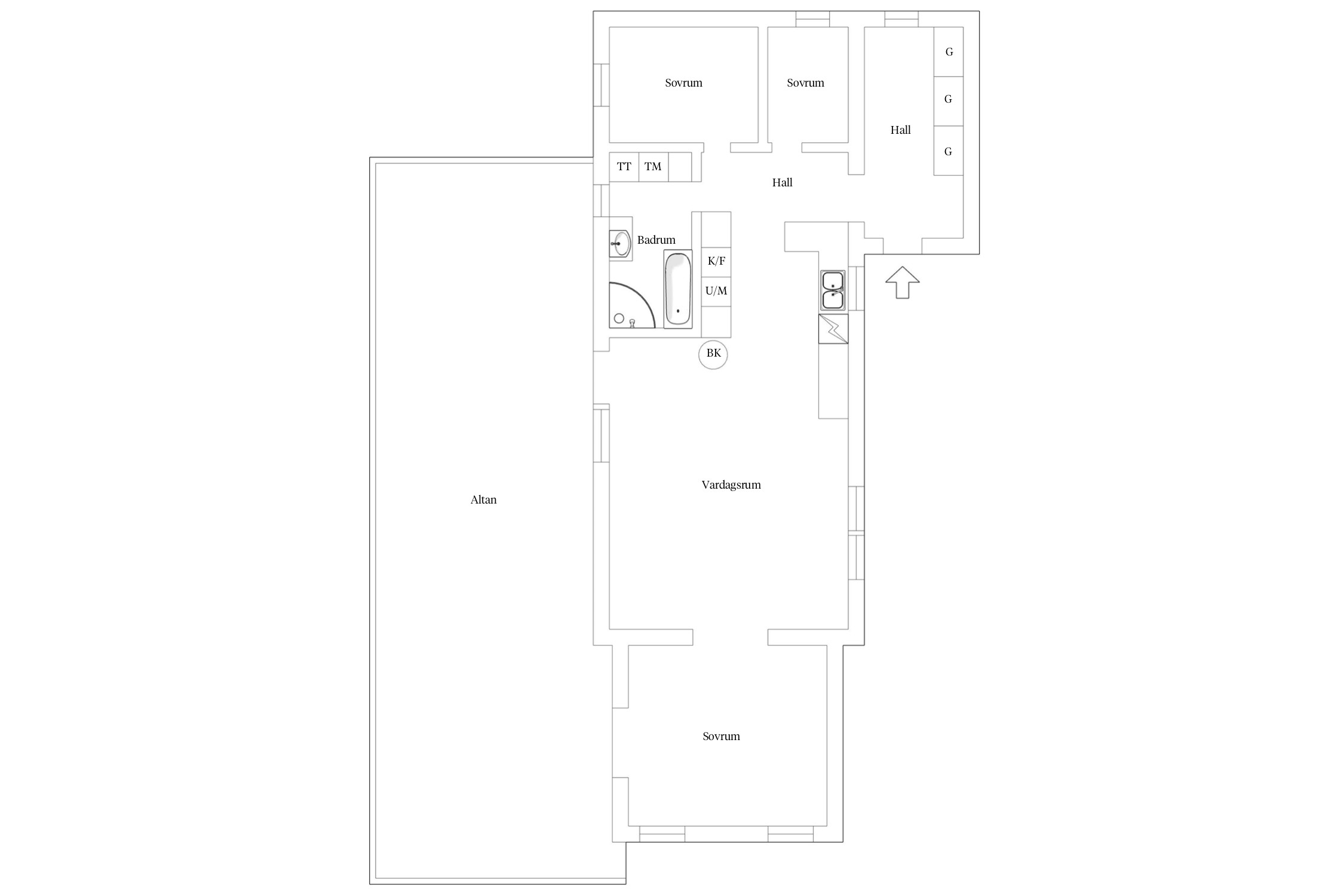
Entré
Välkomnande och rymlig hall med gott om plats för familjens ytterkläder, skor och förvaring.
Barnens sovrum
Till höger om den inre hallen ligger två mysiga sovrum vägg i vägg – idealiska som barnrum. Här finns gott om plats för säng, skrivbord och lekyta – en egen värld att växa i.
Badrum
Stort och helkaklat badrum med både dusch och badkar – perfekt för både snabba morgnar och mysiga kvällsbad. Här finns även wc, handfat, tvättmaskin och torktumlare – smidigt när tvättberget växer.
Kök
Praktiskt och familjevänligt kök med bra arbetsytor och förvaring. Här finns allt ni behöver: kyl, frys, inbyggd ugn, mikro, spishäll, fläkt och diskmaskin. Ett stilrent vitrinskåp ger extra charm och förvaring.
Vardagsrum
Köket och vardagsrummet har en öppen planlösning som bjuder in till gemenskap. Här finns gott om plats för både soffhörna och ett stort matsalsbord – perfekt för familjemiddagar och spelkvällar. Från vardagsrummet når ni en solig balkong i västerläge. Trappan leder vidare ner till trädgården – en härlig yta för barnens lek och det extra rummet i souterrängplanet.
Master bedroom
Föräldrasovrummet är en rofylld plats med egen walk-in-closet och lugna, harmoniska färger. Här finns även utgång till altanen – perfekt för en stunds avkoppling medan barnen leker i trädgården.



Åbydalen 1:31
*Areauppgifter enligt taxeringsinformationen
2020
Nytt kök.
Nytt badrum. Våtrumsintyg finns.
Nytt yttertak med bandfalsad plåt.
2022
Nya 3-glas isolerfönster monterades.
2023
Ny fasadpanel och tilläggsisolering.
2024
Vattenburen golvvärme installerades.
Luft/vattenvärmepump monterades.
Delvis omdränerad på framsidan.
2025
Källare renoverades.
Ny entrédörr kommer monteras inför försäljning.
Enskilt vatten (djupt borrad brunn), enskilt avlopp (sluten tank, 6kbm).
Tomtarea 1 362 m² (friköpt).
Vattenskyddsområde (2011-10-21)
Gemensamhetsanläggning: Härryda åbydalen ga:1 ändamål: Vägar
Förmån: Officialservitut Väg, 1481K-2533.1
Via G5
Driftkostnader och elförbrukning är inhämtade från säljaren och bör endast ses som en uppskattning. Kostnaden kan variera och baseras på förbrukning och avtal.
Det finns 15 st pantbrev uttagna om sammanlagt 5 027 000 kr
Mölnlycke är centralort i Härryda kommun. Många familjer väljer att bo i tätortens vackra bostadsområden, där naturen finns precis utanför dörren och storstaden bara en bit bort. De ypperliga kommunikationerna i kommunen gör det enkelt att ta sig till Göteborg eller vidare ut i Sverige och världen - Landvetters flygplats ligger endast 1,5 mil bort.
Härryda kommun består till hälften av skog och vildmark som kan erbjuda dig många vandringsleder och motionsspår i naturskön miljö. Det finns tre sporthallar i Mölnlycke och även tennishall. Flera olika föreningar erbjuder sportaktiviteter i form av bl.a. gymnastik, innebandy och ridning.
Rådasjön är en av många sjöar i Härryda kommun, och här finner man Säteribadet som är en mycket populär badplats. I Mölnlycke ligger också Wendelsbergsparken. Här finns nästan alla svenska löv- och barrträd representerade. Dessutom är parken magnifik med alla sina dammanläggningar.
Förskoleverksamheten i Härryda kommun bedrivs i form av förskola, familjedaghem och öppen förskola. Det finns totalt 19 grundskolar och man arbetar utifrån ett 0-16 årsperspektiv. Det innebär bl.a. att förskola och grundskola arbetar tätt ihop med gemensamma mål. Hulebäcksgymnasiet i Mölnlycke har elever från hela kommunen i sitt upptagningsområde.
Samhället Mölnlycke växte fram som bostäder för arbetare vid Mölnlycke fabriker. Fabrikerna grundades 1849 och här tillverkades textilier och diverse textilprodukter ända fram till slutet av 1990-talet. En stor del av produktionen gick på export och efterfrågan krävde en ny fabrik – Hulebäcksfabriken, som byggdes år 1875. 1995 invigdes Hulebäcksgymnasiet, som är byggt kring den gamla fabriksbyggnaden. Idag har området runt Mölnlycke fabriker renoverats och hyser restauranger och företag.
Råda Säteri i Mölnlycke är känt redan från 1300-talet. De byggnader vi ser idag är från 1700-talet och mycket välbevarade.
Det går snabbt att ta sig med bil eller kollektivtrafik till alla orter i kommunen. Bussar går till och från Göteborg och från Mölnlycke, Hindås och Rävlanda kan man åka tåg. Med bil når man Göteborgs centrum på ca 15 minuter och med buss tar det ca 20 minuter. Förutom buss- och tågförbindelser till Göteborg och ut i Sverige ligger även Landvetters flygplats mitt i kommunen med flyg vidare ut i Europa och världen.
Köpa, sälja eller värdera bostad i Mölnlycke? Kontakta våra mäklare i Härryda! Passa också på att anmäla dig till vår kostnadsfria söktjänst Boagenten som hjälper dig att hitta ditt drömboende.
Kontakta mäklaren om du behöver hjälp att ta fram en boendekalkyl.
När du köper din bostad genom Bjurfors kan du ansöka om bolån till en förmånlig ränta hos vår samarbetspartner SEB.