-
Köpa
Köpa -
Sälja
Sälja - Hitta bostad
- Skapa bevakning
- Hitta mäklare
Fin villa i centrala Diseröd!
Kungälv - Diseröd, Kungälv
*Areauppgifter enligt taxeringsinformationen
På Förhand ligger bostäder som av olika anledningar inte är ute till försäljning just nu men som kan komma att säljas om förutsättningarna är rätt.
Härlig villa i idylliska Diseröd med ljus, rymd och fantastiskt läge!
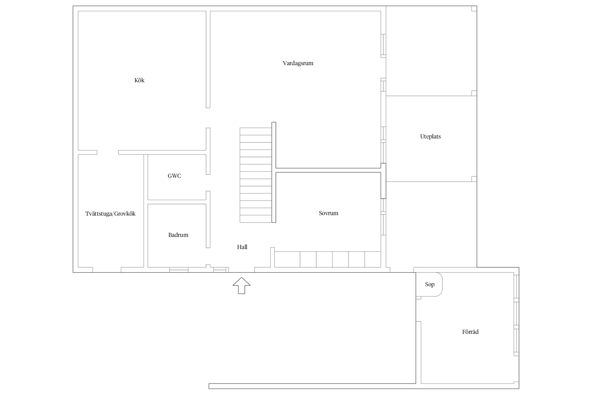
Välkommen till denna charmiga och välplanerade 1,5-plansvilla i eftertraktade Diseröd – ett hem som kombinerar stil, funktion och livskvalitet på bästa sätt!
Här möts du av en luftig och öppen planlösning på entréplanet där ljuset flödar in och skapar en inbjudande och harmonisk atmosfär.
Perfekt för både vardagsliv och sociala tillställningar! Den generösa tvättstugan/groventrén erbjuder praktiska och rymliga ytor som förenklar vardagen.
Från vardagsrummet når du den underbara altanen på baksidan – en perfekt plats för lata sommardagar, grillkvällar och avkoppling.
Härifrån breder en stor, grönskande trädgård ut sig, idealisk för både lek och odling.
Fastigheten är belägen på en eftertraktad hörntomt med ett öppet och fritt läge som ger en härlig känsla av rymd och fin utsikt.
Entréplanet erbjuder dessutom ett bekvämt sovrum, perfekt som gästrum eller för dig som önskar allt i ett plan.
På övre plan finns ytterligare två trivsamma sovrum samt ett rogivande kontor, vilket skapar flexibla möjligheter för familj, arbete och fritid.
Med lätta medel kan man ändra planlösningen för att få ett extra sovrum både på entréplan eller i barnrummet på övre plan.
Läget är svårslaget – med närhet till service, förskolor, skolor och omsorg har du allt du behöver inom räckhåll, samtidigt som du bor i ett lugnt och familjevänligt område.
Detta är ett hem att trivas i – varmt välkommen på visning!



Tyfter 1:38
*Areauppgifter enligt taxeringsinformationen
Kommunalt vatten, Kommunalt avlopp.
Byggnadsplan (1970-11-13)
Gemensamhetsanläggning: Kungälv diseröd ga:1 ändamål: Vägar
Det finns 9 st pantbrev uttagna om sammanlagt 1 285 000 kr
SMÅSTADSLIV OCH UNDERBAR NATUR
Kungälv är en blomstrande stad där dofter av blommor leder dig genom kullerstensgatorna. Här ligger också vackra Marstrand som bjuder på lugn på vintern och fylls av vimmel och event på sommaren. Välkommen till Kungälv, småstaden mellan hav och storstad.
MED NATUREN IN PÅ KNUTEN
Här bor du med småstadskänsla men med storstaden Göteborg bara två mil bort. Kungälv har det mesta, allt från charmiga gamla trähus till helt nybyggda områden. Staden har en dramatisk historia och dess vingslag känns än idag. Den har stått värd för ett nordiskt fredsavtal, bränts ner fyra gånger, länge tillhört Norge men sen mitten av 1600-talet är Kungälv svenskt.
Här bor du i den lilla staden med det stora utbudet. Du hittar också sköna naturupplevelser och havet ligger bara en liten bit bort. Den vackra landsbygden ger dig möjlighet till mysigt lantligt boende.
Ett populärt natur- och vildmarksområde är Svartedalens inre delar, beläget norr om Kungälv. Det är känt för storslagen natur, mäktiga skogar, trolska raviner, höga utsiktsberg, en rik flora och fauna samt många vackra sjöar. Bohusleden är en vandringsled som startar i Lindome strax söder om Göteborg och slingrar sig 37 mil till målet i Strömstad. Etapper genom Kungälv är Fontin-Grandalen och Grandalen-Bottenstugan. Marstrand är en otroligt vacker ö som är fylld av liv hela sommaren, den är något lugnare vintertid men är då en oas för själen. Ön är känd över hela världen för alla seglingsevent och sin skönhet.
Förutom fina vandringsleder och fiskesjöar erbjuder Kungälv många föreningsidrotter. För den golfintresserade har Kungälv hela sju golfbanor att välja mellan. Vid Fontins motionscentral finns naturlekplats, utegym, motionsspår, stigar och leder. Köpcenter Kongahälla Center erbjuder butiker, caféer, restauranger och hälsa i skön atmosfär.
NÄRHET TILL GÖTEBORG
I Kungälv finns ett stort utbud av förskolor och skolor. Det finns även flera KY-utbildningar med varierande inriktning. Byggnaden Mimers Hus är ett kulturhus och ett kunskapscentrum med gymnasieelever och personer som går vuxenutbildningar.
Närheten till Göteborg har gjort att kommunikationerna till och från Kungälv är mycket väl utbyggda. Det går expressbussar mellan Kungälv och Göteborg. Pendeltåg mellan Ytterby och Göteborg.
KONTAKT
Köpa, sälja eller värdera bostad i Kungälvs kommun? Kontakta våra mäklare i Kungälv! Passa också på att anmäla dig till vår kostnadsfria söktjänst Boagenten som hjälper dig att hitta ditt drömboende.
Kontakta mäklaren om du behöver hjälp att ta fram en boendekalkyl.
När du köper din bostad genom Bjurfors kan du ansöka om bolån till en förmånlig ränta hos våra banksamarbetspartners Söderberg & Partners och SEB.
Ansvarig mäklare