-
Köpa
Köpa -
Sälja
Sälja - Hitta bostad
- Skapa bevakning
- Hitta mäklare
Helt nya parhus i Stora Ryr - Lycke
Kungälv - Lycke, Kungälv
Ta chansen att förvärva ett helt nybyggt parhus i naturskönt område där du har möjligheten att påverka övervåningens lay-out till fullo.
Välkommen hem – drömboende i harmoni med naturen!
Drömmer du om ett modernt hem där naturens lugn möter bekvämt boende?
Nu finns möjligheten att förvärva något alldeles speciellt – två nyproducerade parhus som erbjuder allt du kan önska för ett harmoniskt och aktivt liv ska byggas i natursköna Lycke.
Parhusen köps med äganderätt, är friköpta.
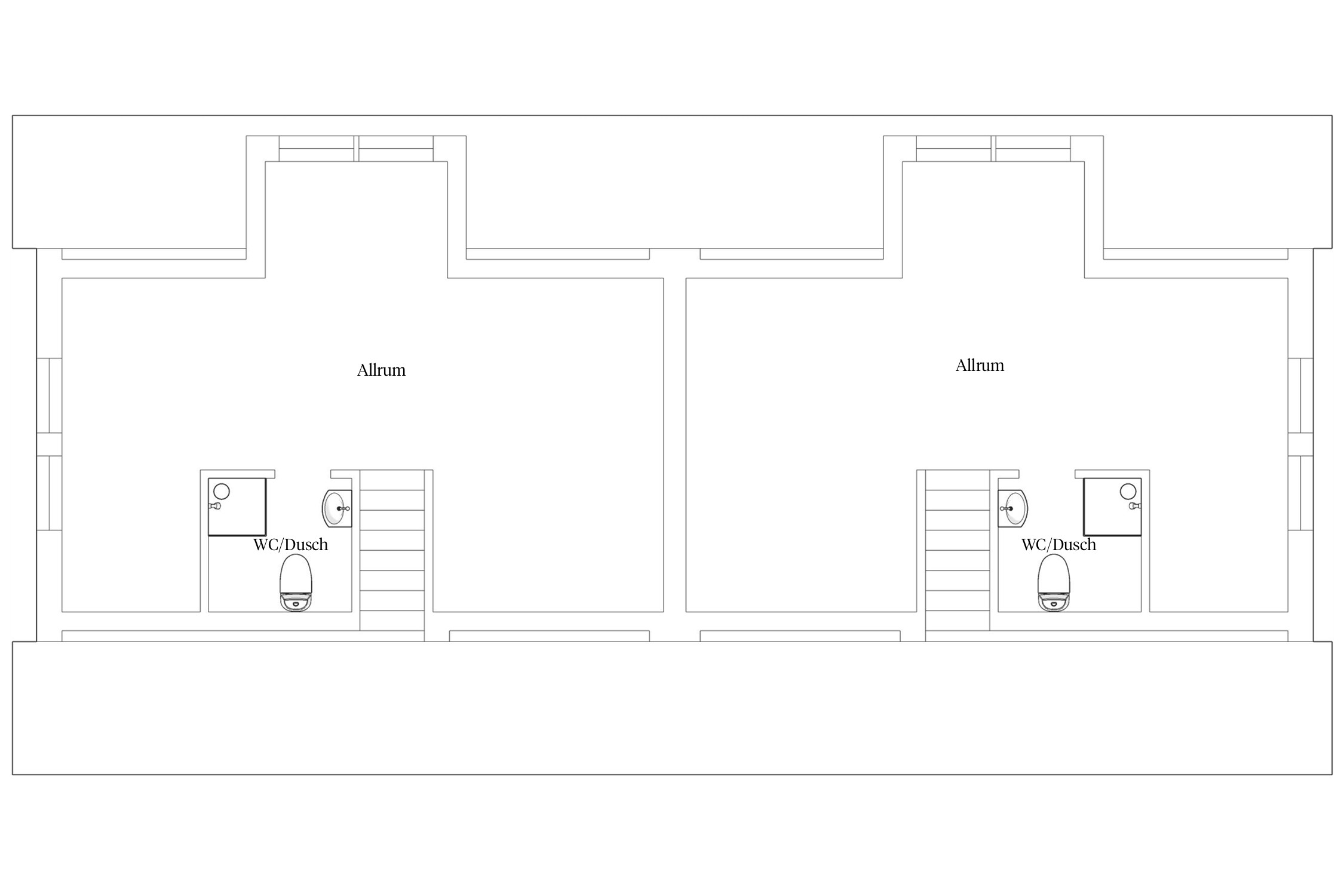
Parhusen är 1,5 plans och har en total boyta på 104 kvm, disponerat med 63 kvm på entréplan och 41kvm på övre plan som är oinredd vid köp.
Dessa parhus passar perfekt för både småbarnsfamiljer, par eller den som vill ha plats för hemmakontor.
- Entré plan: Luftigt kök och vardagsrum i öppen planlösning, perfekt för umgänge. Ett sovrum, badrum och förråd.
- Övre plan: Köps oinrett där man själv kan välja på 2-3 sovrum och gäst WC eller allrum och mindre sovrum.
De stora fönsterpartierna släpper in rikligt med ljus och skapar en härlig kontakt med den omgivande naturen.
Utomhusliv att längta till.
Varje parhus har sin egen privata del som ger plats för planteringar, lek och avkoppling.
Utöver detta erbjuds en gemensam yta som förstärker gemenskapen – perfekt för barnens lek, spontana fotbollsmatcher eller grillkvällar med grannarna.
Här bor du i ett naturskönt område som kombinerar lugnet med närheten till allt du behöver:
Cykla ner till havet för ett morgondopp eller en picknick vid solnedgången.
En oas för promenader, löpning eller skogsäventyr för de små samt närheten till Tofta med sin härliga herrgård, hästgård samt golfbana.
Trots det naturnära läget har du bara en kort bilresa till matbutiker, skolor och annan service.
Dessa 1,5-planshus byggs med tillvalet 34 graders taklutning med förhöjt väggliv vilket resulterar i att ytan på övervåningen blir rymligare, övervåningen står för 41kvm av de 104 kvadratmetrarna.
Det finns dessutom en valmöjlighet utifrån behov med att välja att inreda övervåningen eller ej.
Priset som visas i bostadsannonsen är exklusive inredd övervåning.
Till parhusen finns även carport med förråd.
Mer information finns att hitta på Älvsbyshus hemsida under modell Lasse.
En hel del andra tillval finns samt offert för inredd övervåning som delges vid intresse.
Parhusen ligger precis vid en busskur där du lätt kan ta bussen till Kungälv eller Göteborg



Entréplan
Alternativ planlösning Övre plan
Alternativ planlösning Övre plan
Lycke-ryr 2:12
Kommunalt
Gemensamhetsanläggning: Kungälv lycke-ryr ga:15
Gemensamhetsanläggning: Kungälv lycke-ryr ga:7 ändamål: Vattenförsörjning, Avloppsanläggning
Samfällighet: Kungälv lycke-ryr s:26
Last: Avtalsservitut Kraftledning, fiberoptisk ledning, kabelskåp, D202300073220:1.1
Last: Officialservitut Gångväg, 1482-2021/181.1
Last: Officialservitut Vatten- och avloppsledning, 1482-2021/181.4
Förmån: Officialservitut Vatten- och avloppsledning, 1482-2021/181.5
Fiber finns dragen vid tomtgräns
Avtalsservitut Fiberoptisk ledning
Det finns 1 st pantbrev uttaget om sammanlagt 1 564 000 kr
SMÅSTADSLIV OCH UNDERBAR NATUR
Kungälv är en blomstrande stad där dofter av blommor leder dig genom kullerstensgatorna. Här ligger också vackra Marstrand som bjuder på lugn på vintern och fylls av vimmel och event på sommaren. Välkommen till Kungälv, småstaden mellan hav och storstad.
MED NATUREN IN PÅ KNUTEN
Här bor du med småstadskänsla men med storstaden Göteborg bara två mil bort. Kungälv har det mesta, allt från charmiga gamla trähus till helt nybyggda områden. Staden har en dramatisk historia och dess vingslag känns än idag. Den har stått värd för ett nordiskt fredsavtal, bränts ner fyra gånger, länge tillhört Norge men sen mitten av 1600-talet är Kungälv svenskt.
Här bor du i den lilla staden med det stora utbudet. Du hittar också sköna naturupplevelser och havet ligger bara en liten bit bort. Den vackra landsbygden ger dig möjlighet till mysigt lantligt boende.
Ett populärt natur- och vildmarksområde är Svartedalens inre delar, beläget norr om Kungälv. Det är känt för storslagen natur, mäktiga skogar, trolska raviner, höga utsiktsberg, en rik flora och fauna samt många vackra sjöar. Bohusleden är en vandringsled som startar i Lindome strax söder om Göteborg och slingrar sig 37 mil till målet i Strömstad. Etapper genom Kungälv är Fontin-Grandalen och Grandalen-Bottenstugan. Marstrand är en otroligt vacker ö som är fylld av liv hela sommaren, den är något lugnare vintertid men är då en oas för själen. Ön är känd över hela världen för alla seglingsevent och sin skönhet.
Förutom fina vandringsleder och fiskesjöar erbjuder Kungälv många föreningsidrotter. För den golfintresserade har Kungälv hela sju golfbanor att välja mellan. Vid Fontins motionscentral finns naturlekplats, utegym, motionsspår, stigar och leder. Köpcenter Kongahälla Center erbjuder butiker, caféer, restauranger och hälsa i skön atmosfär.
NÄRHET TILL GÖTEBORG
I Kungälv finns ett stort utbud av förskolor och skolor. Det finns även flera KY-utbildningar med varierande inriktning. Byggnaden Mimers Hus är ett kulturhus och ett kunskapscentrum med gymnasieelever och personer som går vuxenutbildningar.
Närheten till Göteborg har gjort att kommunikationerna till och från Kungälv är mycket väl utbyggda. Det går expressbussar mellan Kungälv och Göteborg. Pendeltåg mellan Ytterby och Göteborg.
KONTAKT
Köpa, sälja eller värdera bostad i Kungälvs kommun? Kontakta våra mäklare i Kungälv! Passa också på att anmäla dig till vår kostnadsfria söktjänst Boagenten som hjälper dig att hitta ditt drömboende.
Kontakta mäklaren om du behöver hjälp att ta fram en boendekalkyl.
När du köper din bostad genom Bjurfors kan du ansöka om bolån till en förmånlig ränta hos vår samarbetspartner SEB.
Ansvarig mäklare