-
Köpa
Köpa -
Sälja
Sälja - Hitta bostad
- Skapa bevakning
- Hitta mäklare
Villa i familjevänliga Ullstorp!
Kungälv - Ullstorp, Kungälv
På Förhand ligger bostäder som av olika anledningar inte är ute till försäljning just nu men som kan komma att säljas om förutsättningarna är rätt.
Ett härligt hem med närhet till det mesta
Välkommen till Prejelvägen 102!
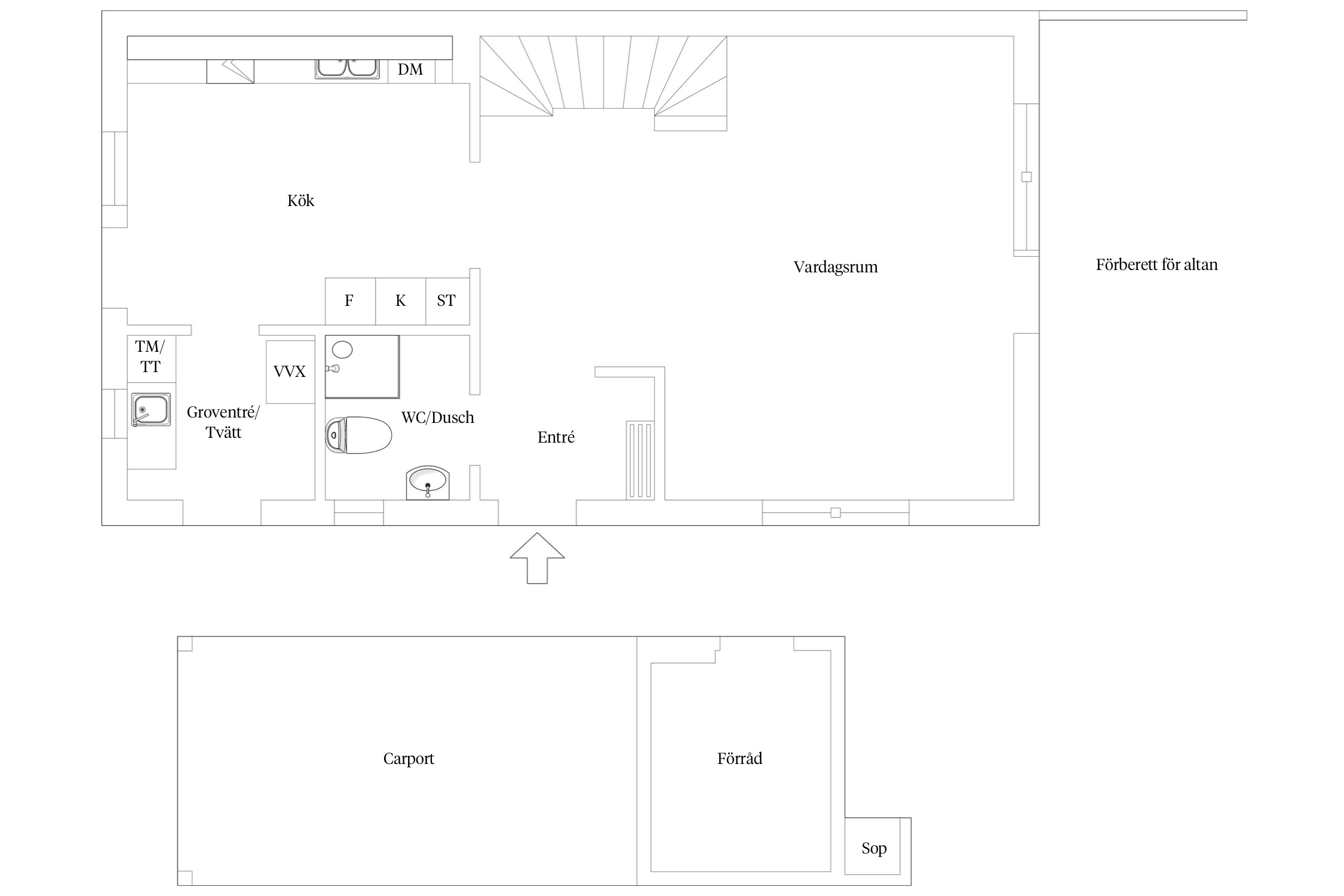
Denna villa är välplanerad för den större familjen.
På entréplan finns de sociala ytorna, kök som är stort och öppet mot vardagsrum/matsal. Här finns även dörren ut till en väl tilltagen altan.
Här finns gott om ytor att sällskapa under våren och sommarens grillkvällar.
På entréplan finns även gott om förvaring i hallen, en gäst-WC samt en grovingång med tvättstuga.
På övreplan finns det tre mindre sovrum samt ett stort sovrum men goda förvaringsmöjligheter.
Det finns även ett större badrum. På vinden finns ytterligare förvaringsmöjligheter då det lagts ut en del golv.
Området är väldigt barnvänligt och förskola ligger runt hörnet.



Brynosten 29
2020: Målat fasaden
2019: Badkar byttes ut mot duschkabin
Kommunalt
Detaljplan (2005-01-31)
Gemensamhetsanläggning: Kungälv brynosten ga:2 ändamål: Vägar, Avloppsanläggning, Elledning och/eller belysning, Grönområden, Övrigt
Gemensamhetsanläggning: Kungälv ullstorp ga:4 ändamål: Vägar, Avloppsanläggning, Grönområden, Kvartersanläggning
Samfällighet: Kungälv brynosten s:2
Last: Officialservitut Tillträde, 1482-1052.10
Förmån: Officialservitut Tillträde, 1482-1052.9
Fiber
Det finns 3 st pantbrev uttagna om sammanlagt 3 600 000 kr
SMÅSTADSLIV OCH UNDERBAR NATUR
Kungälv är en blomstrande stad där dofter av blommor leder dig genom kullerstensgatorna. Här ligger också vackra Marstrand som bjuder på lugn på vintern och fylls av vimmel och event på sommaren. Välkommen till Kungälv, småstaden mellan hav och storstad.
MED NATUREN IN PÅ KNUTEN
Här bor du med småstadskänsla men med storstaden Göteborg bara två mil bort. Kungälv har det mesta, allt från charmiga gamla trähus till helt nybyggda områden. Staden har en dramatisk historia och dess vingslag känns än idag. Den har stått värd för ett nordiskt fredsavtal, bränts ner fyra gånger, länge tillhört Norge men sen mitten av 1600-talet är Kungälv svenskt.
Här bor du i den lilla staden med det stora utbudet. Du hittar också sköna naturupplevelser och havet ligger bara en liten bit bort. Den vackra landsbygden ger dig möjlighet till mysigt lantligt boende.
Ett populärt natur- och vildmarksområde är Svartedalens inre delar, beläget norr om Kungälv. Det är känt för storslagen natur, mäktiga skogar, trolska raviner, höga utsiktsberg, en rik flora och fauna samt många vackra sjöar. Bohusleden är en vandringsled som startar i Lindome strax söder om Göteborg och slingrar sig 37 mil till målet i Strömstad. Etapper genom Kungälv är Fontin-Grandalen och Grandalen-Bottenstugan. Marstrand är en otroligt vacker ö som är fylld av liv hela sommaren, den är något lugnare vintertid men är då en oas för själen. Ön är känd över hela världen för alla seglingsevent och sin skönhet.
Förutom fina vandringsleder och fiskesjöar erbjuder Kungälv många föreningsidrotter. För den golfintresserade har Kungälv hela sju golfbanor att välja mellan. Vid Fontins motionscentral finns naturlekplats, utegym, motionsspår, stigar och leder. Köpcenter Kongahälla Center erbjuder butiker, caféer, restauranger och hälsa i skön atmosfär.
NÄRHET TILL GÖTEBORG
I Kungälv finns ett stort utbud av förskolor och skolor. Det finns även flera KY-utbildningar med varierande inriktning. Byggnaden Mimers Hus är ett kulturhus och ett kunskapscentrum med gymnasieelever och personer som går vuxenutbildningar.
Närheten till Göteborg har gjort att kommunikationerna till och från Kungälv är mycket väl utbyggda. Det går expressbussar mellan Kungälv och Göteborg. Pendeltåg mellan Ytterby och Göteborg.
KONTAKT
Köpa, sälja eller värdera bostad i Kungälvs kommun? Kontakta våra mäklare i Kungälv! Passa också på att anmäla dig till vår kostnadsfria söktjänst Boagenten som hjälper dig att hitta ditt drömboende.
Kontakta mäklaren om du behöver hjälp att ta fram en boendekalkyl.
När du köper din bostad genom Bjurfors kan du ansöka om bolån till en förmånlig ränta hos våra banksamarbetspartners Söderberg & Partners och SEB.
Ansvarig mäklare