-
Köpa
Köpa -
Sälja
Sälja - Hitta bostad
- Skapa bevakning
- Hitta mäklare
Med ett högt läge i populära Hallsås ligger det här mycket fina huset. Underbara sällskapsutrymmen.
Lerum - Hallsås, Lerum
*Areauppgifter enligt taxeringsinformationen
På Förhand ligger bostäder som av olika anledningar inte är ute till försäljning just nu men som kan komma att säljas om förutsättningarna är rätt.
Ett hus med en härlig balans mellan stora sällskapsutrymmen och möjlighet till många sovrum för den stora familjen. Värmepump samt vidbyggt garage.
Välkommen till Kroken 7, en fantastisk villa belägen på en insynsskyddad hörntomt med ett högt läge centralt i Lerum. Denna bostad erbjuder en perfekt kombination av elegans och funktionalitet, med en generös boyta på 175 kvm fördelat på nio rum. Här kan du njuta av en bekväm och lyxig livsstil med alla bekvämligheter du kan önska dig. När du anländer till fastigheten kan du parkera bilen bekvämt i det vidbyggda garaget eller framför det, vilket gör vardagen smidig och enkel.
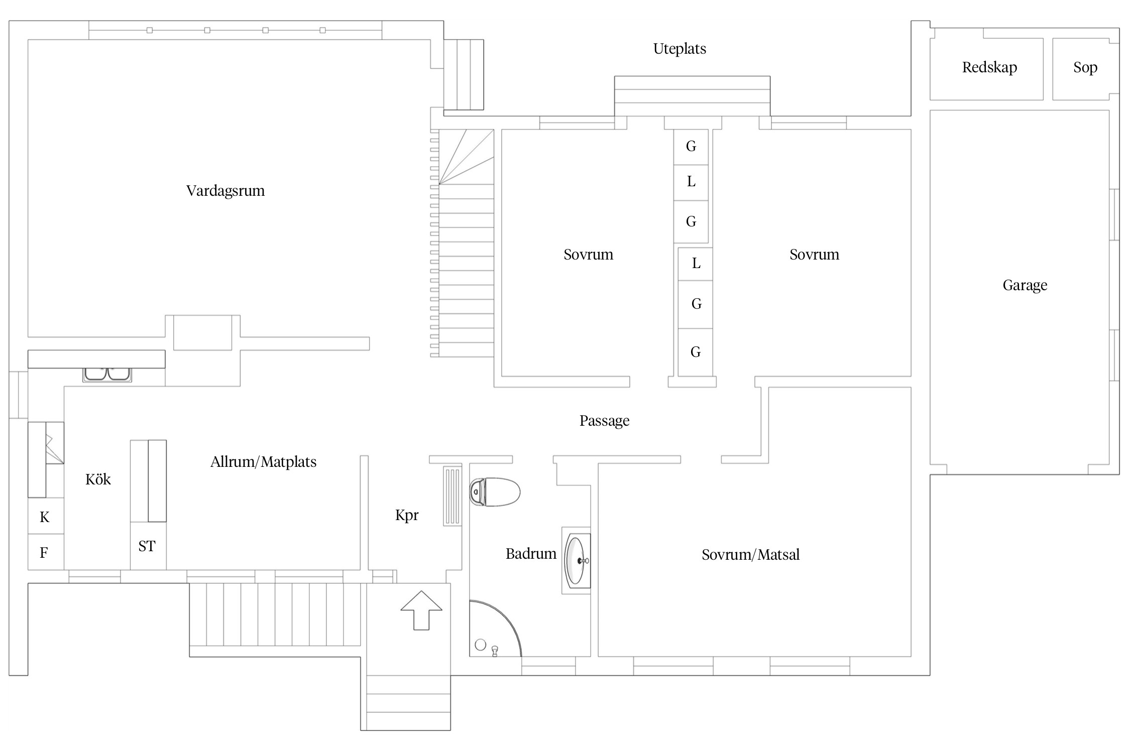
När du närmar dig husets entré möts du av en vacker kullersten-sättning som leder dig fram till dörren. Entréplanet är välplanerat och rymligt, med ett stort vardagsrum som har en altandörr ut mot husets trädgårdssida. Här kan du enkelt förlänga vardagsrummet utomhus under varma sommardagar. Köket är stort och inbjudande, med en arbetsdel som gör matlagningen till en fröjd och gott om plats för ett stort matbord där familj och vänner kan samlas. På detta plan finns även tre rymliga sovrum och ett badrum, vilket gör det idealiskt för familjeliv.
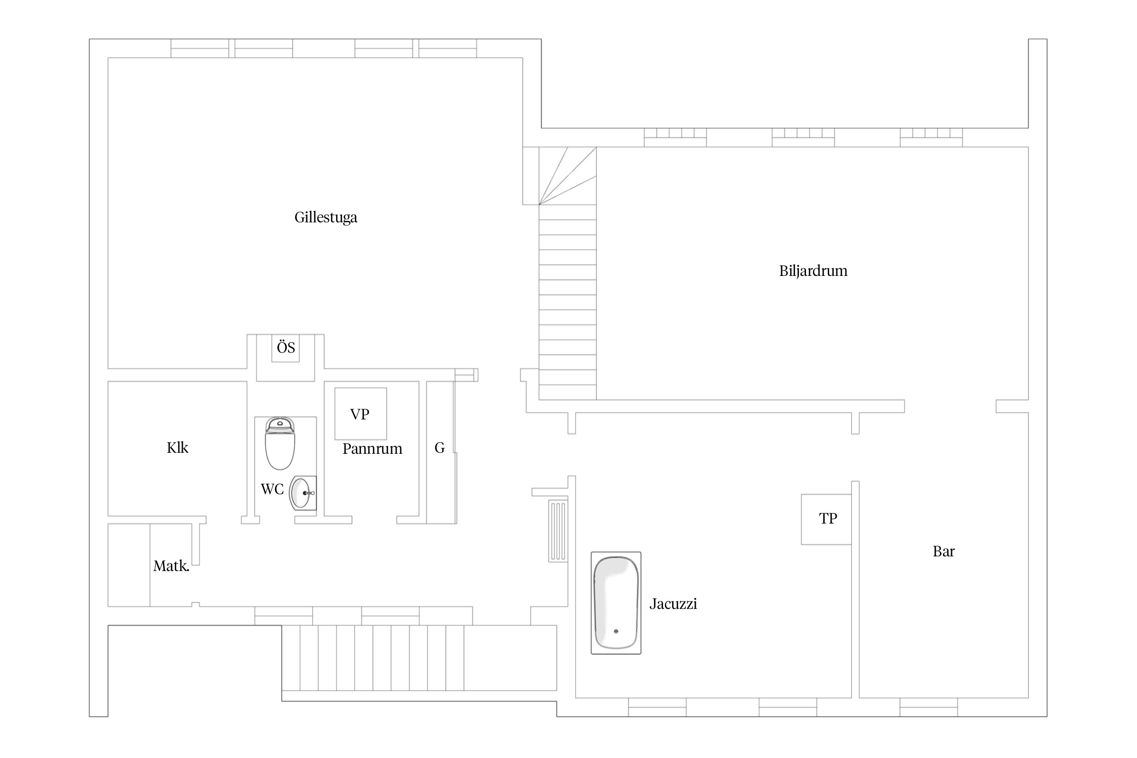
När du fortsätter nerför trappan till husets nedre plan möts du av ett stort sällskapsrum som är perfekt för stora sällskap. Här finns det plats för att umgås vid de stora bänkborden, och för den som gillar spel och underhållning finns ett biljardrum och en bar. Detta plan erbjuder även ett stort SPA-utrymme där du kan koppla av och njuta av en stunds avkoppling efter en lång dag. Denna våning är verkligen en oas för sociala tillställningar och avkoppling.
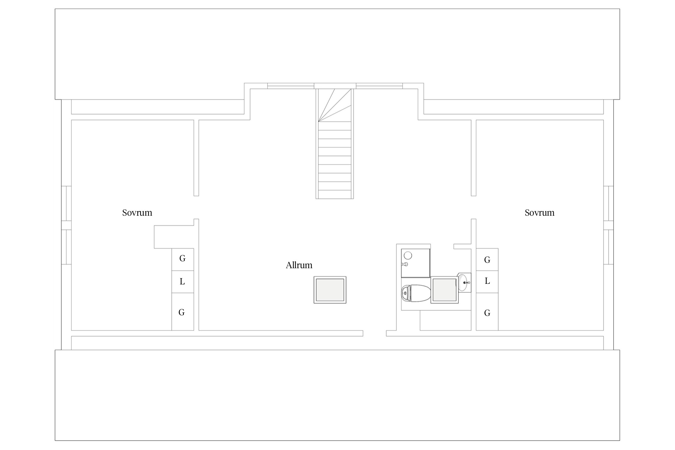
Trappan från vardagsrummet leder upp till husets övre plan, där du hittar ett stort allrum som kan användas som ett extra vardagsrum eller lekrum för barnen. Här finns även ett badrum för extra bekvämlighet. Vid vardera gavel av huset finns ytterligare sovrum, vilket ger gott om plats för en stor familj eller för att skapa hemmakontor och gästrum. Denna våning erbjuder flexibilitet och möjligheter att anpassa utrymmena efter dina behov.
Kroken 7 är verkligen ett underbart hus med stora möjligheter. Den genomtänkta planlösningen och de generösa ytorna gör det till en idealisk bostad för både familjeliv och sociala tillställningar. Den insynsskyddade hörntomten ger en känsla av avskildhet och lugn, samtidigt som du har närhet till allt som Lerum har att erbjuda. Här kan du njuta av det bästa av två världar – en fridfull och privat bostad med närhet till stadens bekvämligheter.
Lerum är en charmig och trivsam ort med ett brett utbud av service och fritidsaktiviteter. Här finns allt från skolor och förskolor till affärer, restauranger och caféer. För den som gillar friluftsliv finns det vackra naturområden och sjöar i närheten, där du kan njuta av promenader, cykelturer och bad. Kommunikationerna är utmärkta, med goda förbindelser till Göteborg och andra närliggande städer. Lerum erbjuder en perfekt balans mellan stadsliv och naturnära boende.
Välkommen att kontakta fastighetsmäklare Torbjörn Dahl på Bjurfors i Lerum för mer information.



Planlösning entréplan
Planlösning nedre plan
Planlösning övre plan
Hallsås 30:4
*Areauppgifter enligt taxeringsinformationen
1983 husets övre plan byggs till
1998 renovering källare med klinkergolv och golvvärme
1998 omdränering runt huset
1998 renovering av våtrum
1998 omläggning av tak
2023 ny fasad takkupa samt garage
Vidbyggt garage
Uteplats intill entrédörr samt uteplats som nås från vardagsrummet mot trädgården.
Kommunalt vatten, Kommunalt avlopp.
Entrésida med vackra stensättningar.
Trädgårdssida med gräsmatta, fruktträd och odlingspallar
Det finns plats för en bil i garaget.
Plats för ytterligare 1-2 bilar framför garaget.
Byggnadsplan (1963-11-01)
Last: Avtalsservitut Kraftledning Mm, 15-IM1-33/1652.1
Last: Avtalsservitut Kraftledning Mm, 15-IM1-52/879.1
Last: Avtalsservitut Kraftledning Mm, 15-IM1-60/3106.1
Last: Officialnyttjanderätt Tele, 15-IM1-47/858.1
Via fiber
Fiber finns installerat i huset
Avtalsservitut Kraftledning Mm(3 st)
Driftkostnader och elförbrukning är inhämtade från säljaren och bör endast ses som en uppskattning. Kostnaden kan variera och baseras på förbrukning och avtal.
Det finns 8 st pantbrev uttagna om sammanlagt 3 995 000 kr
Välkommen till Lerum, en stad på landet men med ett bekvämt avstånd till Göteborg. I och omkring Lerum hittar du underbar natur med djupa skogar och över 200 sjöar. I centrum finns dessutom restauranger, ett fullt serviceutbud och flera specialbutiker. Likaså erbjuder Lerum ett brett kulturliv med teater, historiska byggnader och museer.
OMRÅDET
Omgivningarna kring Lerum erbjuder många och vackra naturupplevelser. För den fiskeintresserade borgar fiskevårdsåtgärder för ett bra fiske året om. Härliga bad vid fina sandstränder i Stamsjön, Aspen, Mjörn, Lensjön för att nämna några.
FRITID
Lerums kommun erbjuder bra golfanläggningar. På t.ex. Öijared, Sveriges största anläggning med tre högklassiga 18-hålsbanor och en 9-håls pay-and-play-bana, slår du ut från taket på det prisbelönta klubbhuset. Vid sjön Aspen finns Lerums Segelsällskap, som är är en av Sveriges största jolleklubbar. För de hästintresserade erbjuder flera ridskolor möjlighet till undervisning för såväl nybörjare som riktigt erfarna ryttare. Vill man hålla sig inomhus är Vattenpalatset ett välbesökt utflyktsmål. I Stenkullen finns ett nav med idrottsanläggningar som ishall, friidrottsarena och handbollshall inklusive ett sportcentrum med gym. Fotboll, ishockey, innebandy, konståkning för att nämna några sporter som har bra förutsättningar inom kommunen.
UTBILDNING
I Lerums kommun finns både enskilda och kommunala förskolor och grundskolor inklusive särskolor. Den stora gymnasieskolan har många olika linjer att välja mellan. Trygghet, utveckling och inspiration ligger till grund för verksamheten inom kommunen och man lägger särskilt fokus på att förbereda eleverna för kommande studier och vuxenliv.
KULTUR OCH SERVICE
Vid stranden till sjön Sävelången ligger Nääs Fabriker. I historiska och vackra fabriksbyggnader samsas numera flera olika verksamheter i en kreativ miljö, det är ett brukssamhälle för 2000-talet. Här finns näringsliv med handel, hotell, restaurang, café och konferenslokaler. Nääs fabriker har ett strategiskt läge utefter E20. Nääs slott är med sin orörda 1800-tals interiör unikt för Skandinavien. Aspenäs herrgård, med anor från 1500-talet, är idag en konferensanläggning vid Aspens vattenbryn, en oas för möten och fester, med plats för flera hundra gäster. Kärleksfullt hemlagade mat och övernattningsmöjligheter.
KOMMUNIKATIONER
Pendeltåget mellan Göteborg och Alingsås stannar i Lerum, Stenkullen och Floda och erbjuder ett snabbt och smidigt färdsätt. Flera direktbussar går mellan Lerum och Göteborg. Det lokala bussnätet mellan de olika orterna i kommunen är också det väl utbyggt.
Köpa, sälja eller värdera bostad i Lerum? Kontakta våra mäklare i Lerum! Passa också på att anmäla dig till vår kostnadsfria söktjänst Boagenten som hjälper dig att hitta ditt drömboende.
Kontakta mäklaren om du behöver hjälp att ta fram en boendekalkyl.
När du köper din bostad genom Bjurfors kan du ansöka om bolån till en förmånlig ränta hos våra banksamarbetspartners Söderberg & Partners och SEB.
Ansvarig mäklare