-
Köpa
Köpa -
Sälja
Sälja - Hitta bostad
- Skapa bevakning
- Hitta mäklare
1,5-planshus i omtyckt och barnvändligt område
Lindome - Bräcka, Mölndal
*Areauppgifter enligt taxeringsinformationen
På Förhand ligger bostäder som av olika anledningar inte är ute till försäljning just nu men som kan komma att säljas om förutsättningarna är rätt.
Stor familjevilla med stora ytor, grönskande tomt och solceller
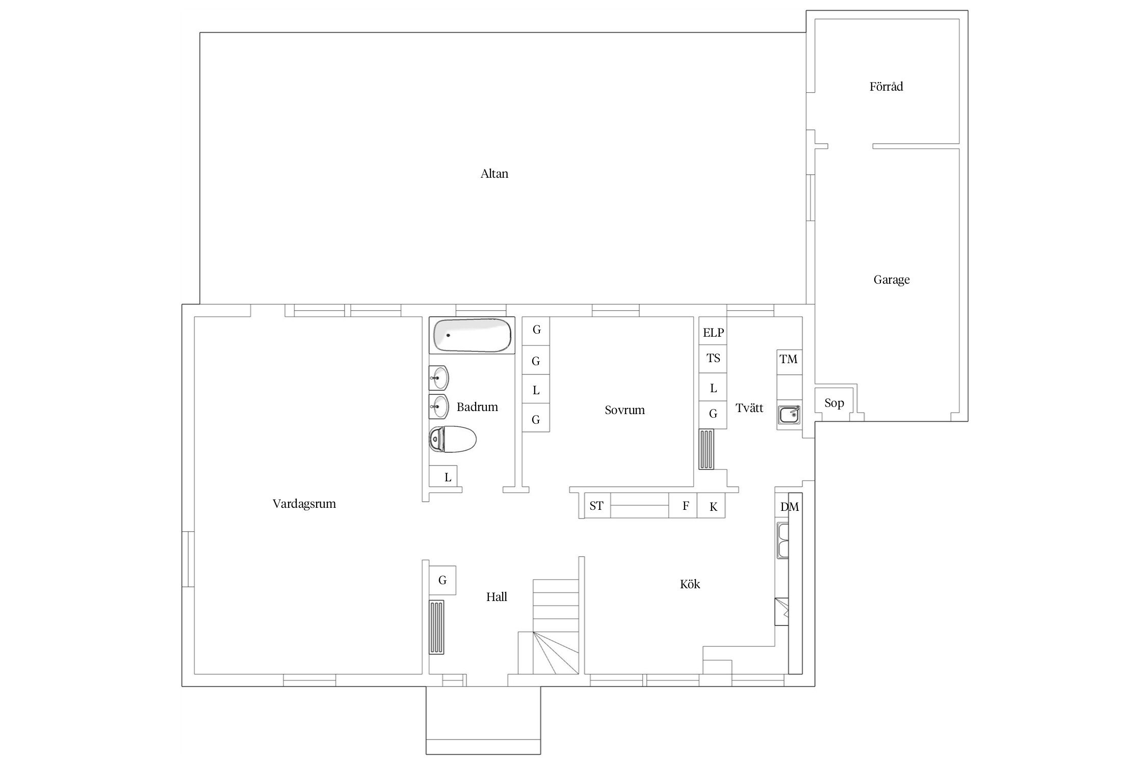
Välkommen till Bräckavägen 84 i Lindome – ett charmigt och välplanerat hem med gott om utrymme för familjen, trevlig trädgård och möjligheten att sätta sin egen prägel.
Redan vid första intrycket möts du av en klassisk röd fasad, stenlagd uppfart och en inbjudande känsla. Här finns garage och gott om plats för parkering, samtidigt som tomten ramas in av grönska och erbjuder en trivsam miljö för både avkoppling och lek. På baksidan väntar ett inglasat uterum – en perfekt plats att förlänga säsongen och njuta av både vårens första solstrålar och sensommarens sena kvällar.
Invändigt erbjuds en genomtänkt planlösning där entréplanet bjuder på generösa sällskapsytor. Vardagsrummet är rymligt och blir en naturlig samlingspunkt i hemmet, med direkt access till uteplatsen i kvällssol – en plats som snabbt blir en favorit för middagar och avkoppling. Köket är väl tilltaget med goda arbetsytor och plats för matbord. Vidare finns finns även ett sovrum samt ett helkaklat badrum. Den praktiska groventrén med tvättstuga underlättar vardagens logistik och håller ordning på familjelivet.
En trappa upp öppnar huset upp sig ytterligare med ett allrum som skapar en perfekt extra yta för umgänge. Här finns även en kamin (ej i bruk idag) som bidrar med charm och möjligheter för den som vill återställa den. På detta plan finns tre sovrum, där det större erbjuder gott om plats och egen klädkammare, medan de andra lämpar sig perfekt som barnrum. Här uppe finns alla möjligheter att skapa en egen avdelning för barn eller tonåringar – en plats att umgås, spela eller bara få vara för sig själva.
Huset är utrustat med solceller, vilket ger både lägre driftkostnader och ett mer hållbart boende – ett stort plus för framtiden.
Det här är ett hem med en stabil grund, en planlösning som verkligen fungerar och alla möjligheter att utveckla vidare efter egen smak. Ett perfekt tillfälle för dig som vill skapa något eget i ett redan trivsamt och familjevänligt läge.



Bräcka 1:147
*Areauppgifter enligt taxeringsinformationen
2002: Omdränering av grunden.
2004: Renovering badrum.
2013: Omläggning tak. Nya pannor och plåtar.
2014: Renovering kök.
2018: Ny elpanna.
2019: Installerat solceller. Installerat luft/luftvärmepump
2020: Byggnation av mur och stenläggning.
2024: Målning fasad.
Garage
Härlig uteplats med altan och gräsmatta i soligt läge.
Kommunalt vatten, Kommunalt avlopp.
Uppfart för flera bilar samt garage.
Stadsplan (1979-04-26)
Fastighetens årsförbrukning för VA är ca 103 m3 á 35 kr/m3.
Årsproduktion solceller 9350 kWh.
Kostnader skall ses som riktvärden.
Det finns 6 st pantbrev uttagna om sammanlagt 1 033 800 kr
Lindome är en tätort belägen i Mölndals kommun. Lindome med sin lantliga miljö har närhet och bra kommunikationer till både storstaden Göteborg och Kungsbacka. Om du bor i Lindome så bor du också i en dynamisk storstadsregion fast i en miljö där proportionerna är lagom och takten lite lugnare. Här finns många trivsamma och naturnära bostadsområden.
OMRÅDET
Lindome har en blandad miljö, Hällesåker med sitt vackra jordbrukslandskap och Fagered med sina väl bevarade järnåldermiljöer. För den naturintresserade går Bohusleden genom Bunketorp och det finns fina vandringsleder i Sandsjöbackas naturreservat som sträcker ut sig i Lindomes västra delar. Det finns tre badsjöar och för den som vill ha salta bad är Billdal inte långt bort.
SERVICE OCH UTBILDNING
Lindome har ett mindre centrum med butiker, bibliotek, apotek, bank, vårdcentral etc. Lindome är beläget i Mölndals kommun och inom kommunen finns ett stort utbud av förskolor och grundskolor.
SPORT OCH FRITID
För den som är sportintresserad finns ett stort utbud av klubbar som Lindome bågskytteklubb som har deltagit i OS, Mölndals golfklubb med sin 18-hålsbana, IK Uven med orientering, löpning och skidåkning, Lindome GIF för den fotbollsintresserade etc.
HISTORIA
Lindome ligger i Halland och var från början danskt. Lindome hade möbeltillverkning under 1800-talet och tidigt 1900-tal och är känt för Göteborgsstolen som även är kallad Lindomestolen. Spinneriet i lindome är en historisk byggnad med anor från tidigt 1800-tal som nu fått nytt liv och öppnat upp sina dörrar för allmänheten. Spinneriet är i dag en plats där kreativa och produktiva hyresgäster såsom fotografer, designers och inredare samlats under samma tak. Här finns även en musikstudio och en förskola. Flera hyresgäster driver butiker i huset, och nu har även Lilla Spinneriet öppnat – en restaurang som serverar gott fika och ekologisk, närproducerad mat.
KOMMUNIKATIONER
I Mölndals kommun bor drygt 60.000 personer och över 22.000 pendlar hit varje dag för att arbeta på någon av de många arbetsplatserna. Lindome har ett strategiskt läge i nära anslutning till de större kommunikationslederna E6, E20/Söderleden, västkustbanan samt kust till kustbanan. Pendeltåget mot Kungsbacka från Göteborg stannar i Lindome med anslutning till busshållplats.
Köpa, sälja eller värdera bostad i Lindome - Bräcka? Kontakta våra mäklare i Mölndal! Passa också på att anmäla dig till vår kostnadsfria söktjänst Boagenten som hjälper dig att hitta ditt drömboende.
Kontakta mäklaren om du behöver hjälp att ta fram en boendekalkyl.
När du köper din bostad genom Bjurfors kan du ansöka om bolån till en förmånlig ränta hos våra banksamarbetspartners Söderberg & Partners och SEB.
Ansvarig mäklare