-
Köpa
Köpa -
Sälja
Sälja - Hitta bostad
- Skapa bevakning
- Hitta mäklare
Sneak peak - kommande försäljning
Hälleviksstrand, Orust
*Utöver månadsavgift tillkommer kostnader för egen förbrukning såsom el/värme, försäkringar och andra löpande kostnader.
**Bostadsrättsföreningens information
Säljarens samt uppgifter från BRF
På Förhand ligger bostäder som av olika anledningar inte är ute till försäljning just nu men som kan komma att säljas om förutsättningarna är rätt.
Drömläge i Bohuslän - med havet som närmsta granne där båtarna blir din vardagsvy.
Välkommen till Sollidshamn på Orust – ett boende där havet alltid är nära och livskvaliteten påtaglig. Här erbjuds ett charmigt och välplanerat hus med generösa sociala ytor, två våningar, stora uteplatser och egen brygga för dig och båten. Perfekt för dig som söker ett hem med semesterkänsla året runt.
Kontakta mäklaren för mer information, förhandsvisning möjligt - kontakta mäklaren.
En pärla i Bohuslän – bo vid havet med egen brygga
Närhet till havsliv, restauranger, nöjen och naturen. På kort gångavstånd ligger Hotell Strana och Bassotto Pizzeria, där du kan njuta av god mat när matlagningslusten inte är på topp. Varför inte ta båten för en utflykt till Käringön eller Gullholmen och runda av dagen med en bit mat på någon av de lokala restaurangerna där?
Padelbanorna "runt hörnet" av hotellet gör det enkelt att få till en match i solen, och den som föredrar löpning eller promenader kommer uppskatta alla de natursköna stigar som slingrar sig i området.
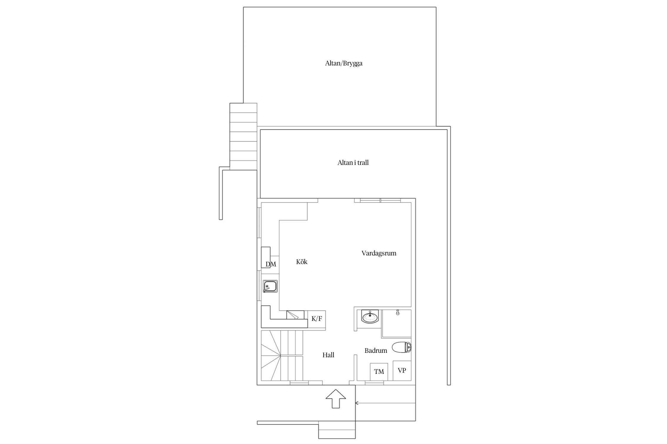
Entréplan – öppna ytor och utgång mot havet
På entréplanet möts du av en välkomnande hall och ett helkaklat badrum med värmepanna och tvättmaskin. Vidare öppnar huset upp sig i en social och luftig planlösning där kök, matplats och allrum flyter samman. De stora altandörrarna leder rakt ut till den rymliga uteplatsen där du kan njuta av sol, havsbris och utsikt över din egen brygga. Kvällssolen här är magisk – kanske lockar den till ett kvällsdopp i havet?
Övre plan – avskildhet och trivsel
På övre plan finns tre sovrum, med sovplatser för 4 - 6st. Stora sovrummet har egen balkong, perfekt för morgonkaffet eller en stunds stillhet efter en dag fylld av havsliv och aktiviteter.
Altan om ca: 22kvm
"Bryggvinge" om ca: 30kvm
Balkong om ca: 4kvm



Entréplan
Övre plan
HÄLLEVIK 2:233
*Bostadsrättsföreningens information
Säljarens samt uppgifter från BRF
Utöver månadsavgift tillkommer kostnader för egen förbrukning såsom el/värme, försäkringar och andra löpande kostnader.
Löpande förbättringar in- utvändigt sedan ägarens övertagande.
Målad fasad 2024
Altan 2019
Förråd för utemöbler och "vattenleksaker" under altanen.
Altan, balkong och altan på bryggan
Parkering ca: 20m från entré, möjlighet till i och urlastning vid entré.
Installation av fiber optisk kabel påbörjad
Bostadsrättens indirekta nettoskuldsättning baseras på föreningens skulder/lån minus föreningens räntebärande tillgångar och likvida medel. Beräkningen är gjord och baseras enbart på den senaste tillgängliga årsredovisningen. För mer information kontakta ansvarig fastighetsmäklare - se separat dokument.
Sophämtning, v/a och parkering ingår i månadsavgiften
*Betalas av säljare
Ordf. är Jan Magnusson - tel: 0709495686
IF Skadeförsäkringar
Parkeringsplats för personbil är i anslutning till arrendestället och ingår i månadsavgift, i och urlastning får ske vid respektive entré och därefter parkeras fordon vid avsedd parkeringsplats.
Fiber
Nyttjanderätt på brygga, altan och balkong samt alla till gångar i trä runt bostadsrätterna.
Överlåtelseavgift betalas av köpare fn 1 470 kr, pantsättningsavgift betalas av pantsättare fn 588kr.
Orust är västkustens största och Sveriges tredje största ö med 15 300 bofasta personer. Under sommarhalvåret dubblas siffran genom fritidsboende och turister. Till Orust hör en levande skärgård med vackra och populära öar som Gullholmen, Käringön, Malö och Flatön.
Du ges möjlighet till ett tryggt boende nära skolor och samhällsservice omgiven av ett storslaget natur- och kulturlandskap. På Orust harmonierar landsbygd med tätorter och charmfulla fiskesamhällen. Du hittar höga berg, nakna klippor, lummiga skogar och sandstränder. Du kan med lätthet vara bofast på Orust och pendla till arbete på annan ort genom väl utvecklade kommunikationer både norr- och söderöver.
Bo på Orust
Det är populärt att bo på Orust. Var du än befinner dig är havet inte långt borta och Orust har dessutom en levande landsbygd med kött- och mjölkproducerande bönder. Du kan välja att bo i eget hus i något av de små samhällena eller på landsbygden eller i bostads- och hyresrätter nära samhällskärnorna. Orust kommun har en aktiv samhällsplanering. Bebyggelsen ökar, dock alltid med hänsyn till kulturlandskapet och byggnadstraditionen såväl som miljön, naturliga kretslopp samt resurs- och energihushållning.
Samhällsservice
Samhällsservice finns inom räckhåll för alla. I kommunhuset i Henån får du hjälp med information kring det mesta som rör kommunen. I Henån, som är kommunens centralort, finns också bl.a. vårdcentral och apotek. Orust har också arbetsförmedling, försäkringskassa, postcentral, banker och butiker. Här finns flertalet förskolor, grundskolor och gymnasium. För äldre Orustbor finns äldreboenden med hög standard samt flera trivsamma områden med pensionärslägenheter.
Kultur och nöjen
Utbudet av kultur och nöjen är rikligt. Restauranger, caféer, campingar, museer, gallerier och många andra ställen finns runtom på ön. Flertalet trevliga och välbesökta arrangemang ordnas, bl.a. Taubespelen på Ängön och musikkvällar på Slussens pensionat som varje år gästas av rikskända artister.
Du kan också spela golf på Orust. Det finns två artonhåls golfbanor, Morlanda i väster och Allmag i öster.
Billigt och bra handlar du på Orust egna Ullared – Göksäter.
Köpa, sälja eller värdera bostad i Orust kommun? Kontakta våra mäklare i Bohuslän! Passa också på att anmäla dig till vår kostnadsfria söktjänst Boagenten som hjälper dig att hitta ditt drömboende.
Kontakta mäklaren om du behöver hjälp att ta fram en boendekalkyl.
När du köper din bostad genom Bjurfors kan du ansöka om bolån till en förmånlig ränta hos vår samarbetspartner SEB.
Ansvarig mäklare
Extra kontaktperson