Hoppa till innehåll

Rymlig familjevilla med centralt och bra läge, som ger närhet till allt, på stor och solig tomt.

  • Besiktigad
  • På förhand
  • 101 + 53 kvm
  • 6 rum

Kållekärr, Tjörn

Svenborgsvägen 3

Antal rum:
6
Boarea / Biarea:
101 kvm / 53 kvm*
Tomtarea:
900 kvm
Typ:
Friliggande villa

*Areauppgifter enligt taxeringsinformationen

Vill du veta mer om bostaden?

På Förhand – Vad är det?

På Förhand ligger bostäder som av olika anledningar inte är ute till försäljning just nu men som kan komma att säljas om förutsättningarna är rätt.

Läs mer om På Förhand

Ansvarig mäklare

Anette Grunditz Erixon

Fastighetsmäklare

Bjurfors Bohuslän
Anette Grunditz Erixon

BOKA EN KOSTNADSFRI VÄRDERING

Rymlig familjevilla med centralt och bra läge, som ger närhet till allt, på stor och solig tomt.

Trivsam bostad på en trivsam tomt. Här bor du både kostnadseffektivt och får en lättskött vardag. Snyggt och välordnat såväl utom- som inomhus.

Beskrivning

Med plats för den stora familjen. Hemtrevlig och kvadratsmart villa i naturnära och omtyckt område i centrala Kållekärr 'mitt på Tjörn'. Praktiskt och lättskött boende med trivsam rumsdisposition och rejäl tomt med plats för både flera bilar och medf god förvaring i rymlig förrådsbyggnad som kan förlängas med ex. carport. På entréplanet finns trivsamt och fullutrustat kök med matplats invid fönster mot entrésidan. Tre sovrum, god förvaring och stort hygienutrymme samt rejäl tvättstuga med groventré för god klädvård. Stort allrum i överplan med fint ljusinsläpp och access till både rymligt badrum och sovrum - en övervåning som borgar för ex. generationsboende. Bra tomt med insynsskyddad och privat sfär samt stora altandäck i två väderstreck för avkopplande stunder passande såväl soldyrkare som skuggsökare. Huset bjuder på fina detaljer, såväl exteriört som interiört. Ljusinsläpp och ljusspeglingar i god balans, imaginära rum i trädgården för allehanda tillfällen och bra fördelning mellan sociala- och privata ytor. En fantastisk villa för dig som söker ett välplanerat och lättskött boende, med centralt läge och plats för både familj och vänner.

Det centrala läget ger ett par minuters promenad till Kållekärrs skola åk 0-5 samt förskola och fritids, allehanda service vid Kållekärrs centrum, busstation för smidig pendling, fotbollsplaner, motionsspår, golfbana och levande landsbyggd med bad och båtliv inom räckhål. Bra bussförbindelser till Stenungsund och vidare mot Göteborg, som utöver buss även nås med pendeltåg med täta avgångar.

Interiör

ENTRÉPLAN

Entréhall:
Rymlig hall med plats för uppställning av skor och upphängning av ytterplagg. Klinker på golv, praktiskt och lättskött vid väta. Direktaccess till uteplats, vid husets entrésida, i skönt och soligt läge.

Kök:
Fullutrustat kök med ljusa luckor och bänkskiva laminat. Bra beredningsytor och god logistik. Plats för matgrupp invid fönster. Ljust och rymligt. Vitvaror är samtliga av fabrikat Husqvarna samt fläkt från Electrolux [2018]. Här finns fullhöjd kyl och frys. Spis med induktionshäll och ugn, diskmaskin och fläkt.

Vardagsrum:
I snygg integration med kök och matplats ligger mysigt och rofyllt vardagsrum. Härifrån nås altan och trädgård med privat sfär. Fönsterpartierna ger ett härligt ljusinsläpp

Sovrum 1 - 2 - 3:
Tre sovrum, samtliga med plats för god förvaring och sovmöjligheter. Ett av sovrummen är något större.

Hygienrum:
Badrum med WC, tvättkomod och duschhörna.

Tvättstuga/pannrum:
Tvättstuga med tvättmaskin och samt tvättho/utslagsvask. Väl tilltagen bänkskiva för lätthanterlig klädvård. Detta rum nås från köket men även via egen entré från gaveln av huset. Värmepannan, Nibe Fighter 310 P, står i detta rum - lättåtkomlig.

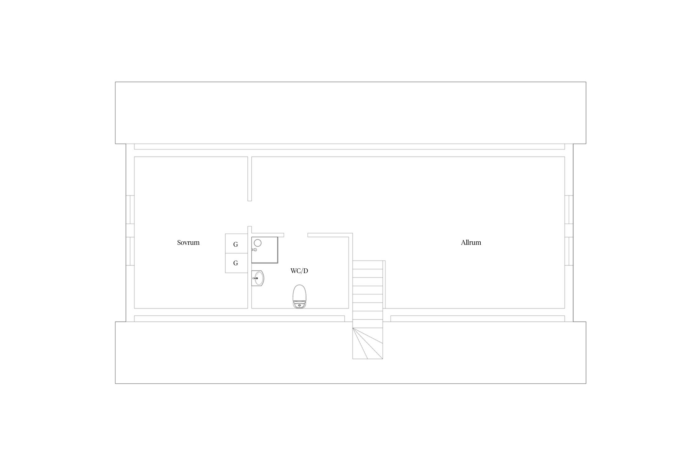
ÖVERPLAN
Rymligt överplan med ett stort härligt allrum, rejält sovrum och trevligt badrum med duschhörna, wc, tvättkommod.

Planritning

Planlösning
Planlösning

Fakta om bostaden

Fastighetsbeteckning

Kållekärr 1:57

Information

Typ
Friliggande villa
Upplåtelseform
Friköpt
Rum
6
Antal sovrum
4
Max antal sovrum
5
Boarea
101 kvm*
Biarea
53 kvm
Tomtarea
900 kvm
Trädgård
Ja

*Areauppgifter enligt taxeringsinformationen

Byggnadssätt

Byggnadstyp
1 ½ plan
Byggår
2009
Fasad
Stående träpanel med lockbrädor
Grund
Krypgrund
Stomme
Regelstomme av trä
Bjälklag
Trä
Uppvärmning
Frånluftsvärmepump med vattenburen värme via radiatorer
Takbeklädnad
Betongpannor
Ventilation
Mekanisk frånluftsventilation
Utvändigt plåtarbete
Plåtisol
Fönster
Isolerglasfönster
Grundmur
Prefabricerade betongelement

Ombyggnad, Renoveringar

2022/2023:
Exteriör/fasadmålning.

2020:
Värmepumpens förångare och kompressor byttes

2015:
Badrum övre plan

2011:
Övre plan inreddes för bostad
Renovering/justering badrum entréplan

Övriga byggnader/utrymmen

Förrådsbyggnad

Besiktning

Besiktigad
Ja

Vatten/Avlopp

Kommunalt vatten, Kommunalt avlopp.

Planbestämmelser

Detaljplan (2004-05-13)

Rättigheter/gemensamhetsanläggningar

Gemensamhetsanläggning: Tjörn Kållekärr GA:1 ändamål: Vägar

TV/bredband

via fiber

Ekonomi

Taxeringsvärde
2 189 000 kr
Byggnadsvärde
1 606 000 kr
Fastställt
2021
Kod
220, Småhusenhet, bebyggd
Fastighetsskatt/Avgift
10 425 kr

Energideklaration

Utförd
Ja
Energiklass
D
Energideklarationsdatum
2026-03-04

Pantbrev

Det finns 3 st pantbrev uttagna om sammanlagt 1 450 000 kr

Om Tjörn

Att bo i Tjörns kommun

I södra Bohuslän ligger Tjörn som du bl a når från Stenungsund via den karaktäristiska Tjörnbron. Ön är Sveriges sjätte största ö och har en befolkningsmängd om nära 16 000 personer. Sommartid dubblas siffran av fritidsboende och turister.

På Tjörn har du möjlighet till ett tryggt boende nära skolor och samhällsservice omgiven av ett storslaget natur- och kulturlandskap. Här finns en levande landsbygd i samklang med tätorter och charmiga fiskesamhällen där fiskebåtarna fortfarande lämnar hamn i ottan. Här hittar du höga berg, nakna klippor, lummiga skogar och sandstränder.

Är du entreprenör ges du möjlighet att kunna växa i ett inspirerande och nytänkande företagsklimat. Tjörn är en företagstät kommun. Sjöfrakt, fiske och tursistrelaterade näringar såsom handel och service är de största branscherna på ön.
Du kan också välja att pendla till arbete på annan ort genom väl utvecklade kommunikationer både norr- och söderöver.

Bo på Tjörn
På Tjörn väljer du att bo i eget hus i något av de små samhällena eller på landsbygden alternativt bostads- och hyresrättslägenheter nära samhällskärnorna. Söker du renodlat fritidsboende finns många trevliga och havsnära områden. Tjörns kommun har en aktiv samhällsplanering. Bebyggelsen ökar, dock alltid med hänsyn till kulturlandskapet och byggnadstraditionen såväl som miljön, naturliga kretslopp samt resurs- och energihushållning.

Samhällsservice
Samhällsservice finns inom räckhåll för alla. I kommunhuset i Skärhamn finns Medborgarkontoret som hjälper dig med information om allehanda ting. I Kållekärr, mitt på ön, finns vårdcentral och apotek. På Tjörn finns också flera banker och butiker. Här finns även förskolor och grundskolor. Tjörn har äldreboenden med hög standard samt moderna, särskilda boenden för funktionshindrade.

Kultur och nöjen
Kulturintresset på Tjörn är stort och i Skärhamn ligger det internationellt kända Nordiska Akvarellmuseet som varje år har mellan 100 000-200 000 besökare. Här finns också åretruntöppna gallerier, restauranger och caféer och bibliotek. Skulptur i Pilane är ytterligare en mycket populär kulturyttring, under bar himmel i en kulturhistoriskt intressant nejd anordnas varje år skulpturpark.

Köpa, sälja eller värdera bostad i Tjörns kommun? Kontakta våra mäklare i Bohuslän! Passa också på att anmäla dig till vår kostnadsfria söktjänst Boagenten som hjälper dig att hitta ditt drömboende.

Karta

Svenborgsvägen 3

Svenborgsvägen 3

47194 Kållekärr

Visa i Google Maps (öppnas i nytt fönster)

Boendekalkyl

Kontakta mäklaren om du behöver hjälp att ta fram en boendekalkyl.

När du köper din bostad genom Bjurfors kan du ansöka om bolån till en förmånlig ränta hos våra banksamarbetspartners Söderberg & Partners och SEB.

Ansök om lånelöfte hos Söderberg & Partners

Ansök om lånelöfte hos SEB

Håll koll på detta objekt

Vill du veta mer om bostaden?

Kampanjbild Boneo