-
Köpa
Köpa -
Sälja
Sälja - Hitta bostad
- Skapa bevakning
- Hitta mäklare
Ombonat hus i Röreviken med egen båtplats
Röreviken, Tjörn
*Areauppgifter enligt taxeringsinformationen
Kontakta mäklaren för mer information gällande budgivningen.
Skärgårdslivet året runt eller en fridfull tillflyktsort under delar av året.
Välkommen till denna charmiga pärla i natursköna Röreviken på Tjörn!
Detta hem erbjuder en perfekt balans mellan bekvämlighet och naturnära liv.
Med en egen båtplats kan du enkelt ge dig ut på havet och utforska skärgården, medan den skyddade altanen ger dig en privat oas för avkoppling och sociala stunder.
Här bor du vid havet och med naturen runt hörnet, samtidigt som du har bekväm närhet till service och kommunikationer.
Röreviken är en eftertraktad del av Tjörn med bara 3min promenad till de salta baden – ett paradis för både den som älskar skärgårdslivet eller den som bara vill koppla av i en vacker och rofylld miljö.
Ett ombonat och lättskött hem om tre rum och kök med låga driftkostnader. Huset är tilläggsisolerat på vinden, fönster är utbytta till 3-glas isolerfönster på entréplan och en luftvärmepump värmer huset tillsammans med den centralt placerade kaminen.
Huset är perfekt för dig som vill njuta av lugnet, naturen och närheten till havet - perfekt för dig som vill njuta av skärgårdslivet året runt eller ha en fridfull tillflyktsort under delar av året.
En härlig insynsskyddad altan och uteplatser där du njuter av sol och lugn. Gillar du att "påta i trädgården" har du möjlighet att skapa din egna dröm trädgård där naturen och havet gör sig påmind.
Med en egen båtplats, en insynsskyddad altan och låg driftkostnad är detta ett riktigt guldkorn för både permanentboende och fritidsdrömmen.
Kanske är det här ditt nästa hem vid havet - välkommen att uppleva ditt framtida drömboende.
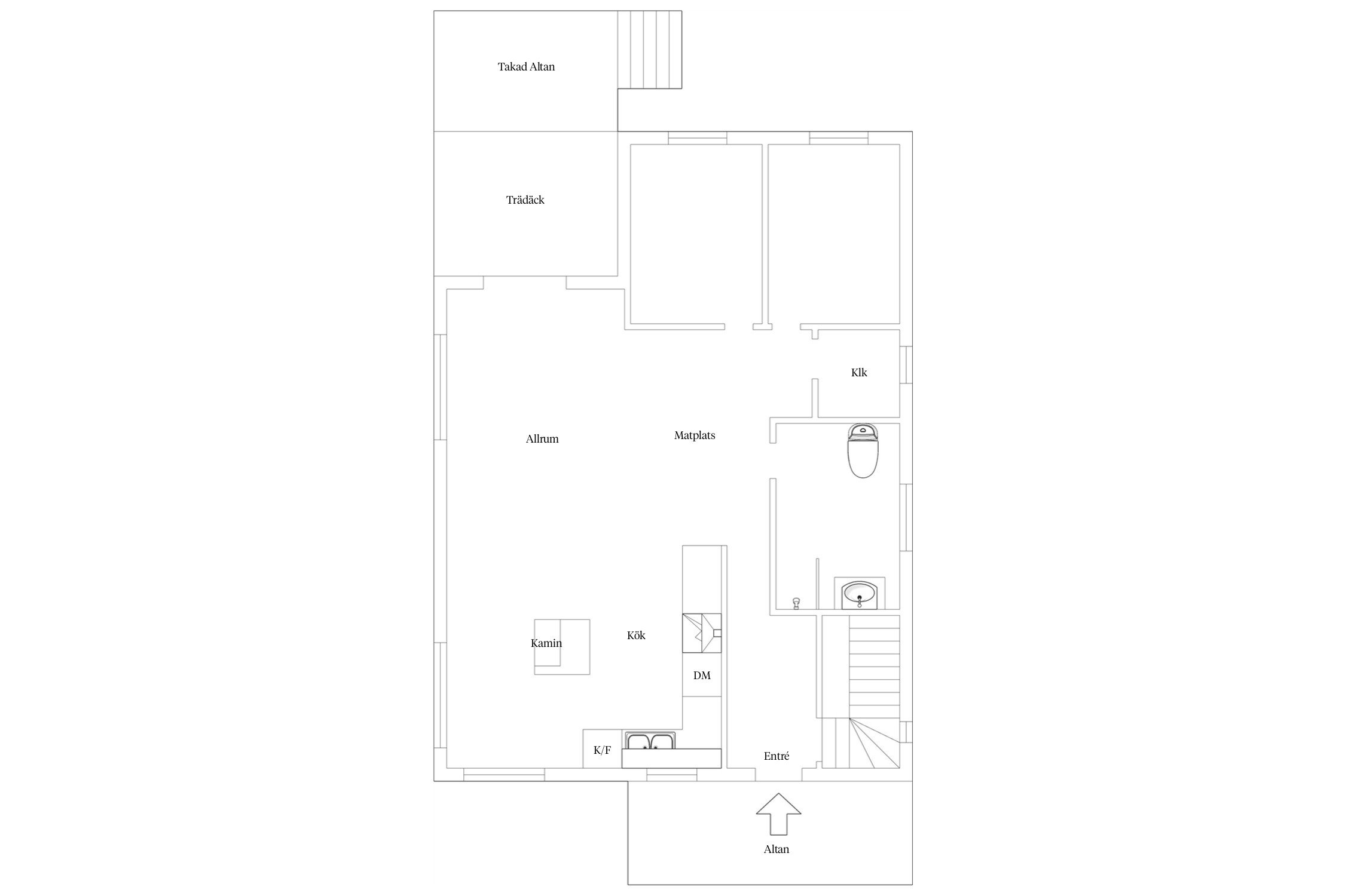
Hall med öppna ytor mot kök och vardagsrum, köket i öppen planlösning mot vardagsrummet och kaminen.
Två sovrum som vetter mot sydväst och ett kaklat badrum med dusch.
En trappa ner hittar du goda utrymmen för förvaring, arbetsbänk och tvättstuga med utgång till trädgården.



Entréplan
Källarplan
Häggvall 3:31
*Areauppgifter enligt taxeringsinformationen
FÖREGÅENDE ÄGARE
2013: Ny fasad, dränering av 3 sidor (ej öst), byggnation av altan, nya vatten/avloppsrör i fastigheten, ny el-dragning i fastigheten, nya ytskikt på entréplan, renovering av kök, renovering av badrum.
NUVARANDE ÄGARE
2016: Installation av luft/luftvärmepump, tilläggsisolering med lösull på nockvind.
2017: Rensat organiskt material i källarvåning.
2017: Anslutning till kommunalt vatten/avlopp, installation av fiber.
2021: Målning av fasad.
2022: Renovering av entréplan med nya innertak, nya innerväggar i sovrum samt målning/tapetsering och nya golv.
Se punkten övrigt för mer information.
För morgonsoldyrkare i öster, dag- och kvällssol i söder- och sydväst
Kommunalt V/A
Trädgårdstom och naturtom
Carport och parkeringyta.
Byggnadsplan (1960-08-10)
Gemensamhetsanläggning: Tjörn Myggenäs GA:1 ändamål: Bad och/eller båtanläggning, Gemensamhetsanläggning: Tjörn Myggenäs GA:3 ändamål: Vägar
Via fiber
Fiber
Kostnad för el avser husets totala elförbrukning(inkl. värme) och är beräknad på en förbrukning om 5 400 kWh (beräknad på snittpris 918öre/kWh), ägaren eldar med ved(ca: 4 kubikmeter) - kontakta mäklaren för mer information. Kostnaden kan vara föränderlig, såväl uppåt som nedåt, beroende på vilket elavtal en väljer och har.
2026-04-24
Det finns 9 st pantbrev uttagna om sammanlagt 2 000 000 kr
I södra Bohuslän ligger Tjörn som du bl a når från Stenungsund via den karaktäristiska Tjörnbron. Ön är Sveriges sjätte största ö och har en befolkningsmängd om nära 16 000 personer. Sommartid dubblas siffran av fritidsboende och turister.
På Tjörn har du möjlighet till ett tryggt boende nära skolor och samhällsservice omgiven av ett storslaget natur- och kulturlandskap. Här finns en levande landsbygd i samklang med tätorter och charmiga fiskesamhällen där fiskebåtarna fortfarande lämnar hamn i ottan. Här hittar du höga berg, nakna klippor, lummiga skogar och sandstränder.
Är du entreprenör ges du möjlighet att kunna växa i ett inspirerande och nytänkande företagsklimat. Tjörn är en företagstät kommun. Sjöfrakt, fiske och tursistrelaterade näringar såsom handel och service är de största branscherna på ön.
Du kan också välja att pendla till arbete på annan ort genom väl utvecklade kommunikationer både norr- och söderöver.
Bo på Tjörn
På Tjörn väljer du att bo i eget hus i något av de små samhällena eller på landsbygden alternativt bostads- och hyresrättslägenheter nära samhällskärnorna. Söker du renodlat fritidsboende finns många trevliga och havsnära områden. Tjörns kommun har en aktiv samhällsplanering. Bebyggelsen ökar, dock alltid med hänsyn till kulturlandskapet och byggnadstraditionen såväl som miljön, naturliga kretslopp samt resurs- och energihushållning.
Samhällsservice
Samhällsservice finns inom räckhåll för alla. I kommunhuset i Skärhamn finns Medborgarkontoret som hjälper dig med information om allehanda ting. I Kållekärr, mitt på ön, finns vårdcentral och apotek. På Tjörn finns också flera banker och butiker. Här finns även förskolor och grundskolor. Tjörn har äldreboenden med hög standard samt moderna, särskilda boenden för funktionshindrade.
Kultur och nöjen
Kulturintresset på Tjörn är stort och i Skärhamn ligger det internationellt kända Nordiska Akvarellmuseet som varje år har mellan 100 000-200 000 besökare. Här finns också åretruntöppna gallerier, restauranger och caféer och bibliotek. Skulptur i Pilane är ytterligare en mycket populär kulturyttring, under bar himmel i en kulturhistoriskt intressant nejd anordnas varje år skulpturpark.
Köpa, sälja eller värdera bostad i Tjörns kommun? Kontakta våra mäklare i Bohuslän! Passa också på att anmäla dig till vår kostnadsfria söktjänst Boagenten som hjälper dig att hitta ditt drömboende.
Kontakta mäklaren om du behöver hjälp att ta fram en boendekalkyl.
När du köper din bostad genom Bjurfors kan du ansöka om bolån till en förmånlig ränta hos våra banksamarbetspartners Söderberg & Partners och SEB.
Ansvarig mäklare