-
Köpa
Köpa -
Sälja
Sälja - Hitta bostad
- Skapa bevakning
- Hitta mäklare
Vacker historisk villa med tilltalande ytor!
Vargön, Vänersborg
*Areauppgifter enligt taxeringsinformationen
På Förhand ligger bostäder som av olika anledningar inte är ute till försäljning just nu men som kan komma att säljas om förutsättningarna är rätt.
Enastående bostad från 1864 på en plats med historia. Drygt 300 kvm bostad i exemplariskt skick. Skyddad tomt, stort garage, solpaneler, bergvärme.
Välkommen till Repelycke där jordeböckerna vittnar om gårdens ursprung från så tidigt som 1500-talet. Nuvarande bostadshus stod färdigt 1864 och blev under många efterföljande år navet för omfattande odling och förädling av fruktträd med framförallt äpplen i fokus. 1949 köpte Wargöns Aktiebolag fastigheten för att bli tjänstebostad efter en större renovering.
Nuvarande ägare har i sin tur förvaltat fastigheten med stor omsorg under de senaste 30 åren. Entréplanet har återskapats för att bli mer tidsenligt med sitt ursprung där stora rumsvolymer ligger i fil med en rundgående planlösning och ett tilltalande ljusinsläpp med dess bevarade och åtråvärda munblåsta fönsterglas. Här har det mesta setts över såväl ute som inne. Allt från yttertak, fönster, fasader, bergvärme och murstock till kök och badrum samt såväl el som vvs-installationer. Det stora fristående garaget om nästan 60 kvm erbjuder inte bara vatten och avlopp med toalett utan även smörjgrop, laddbox och 7 kW solpaneler på taket.
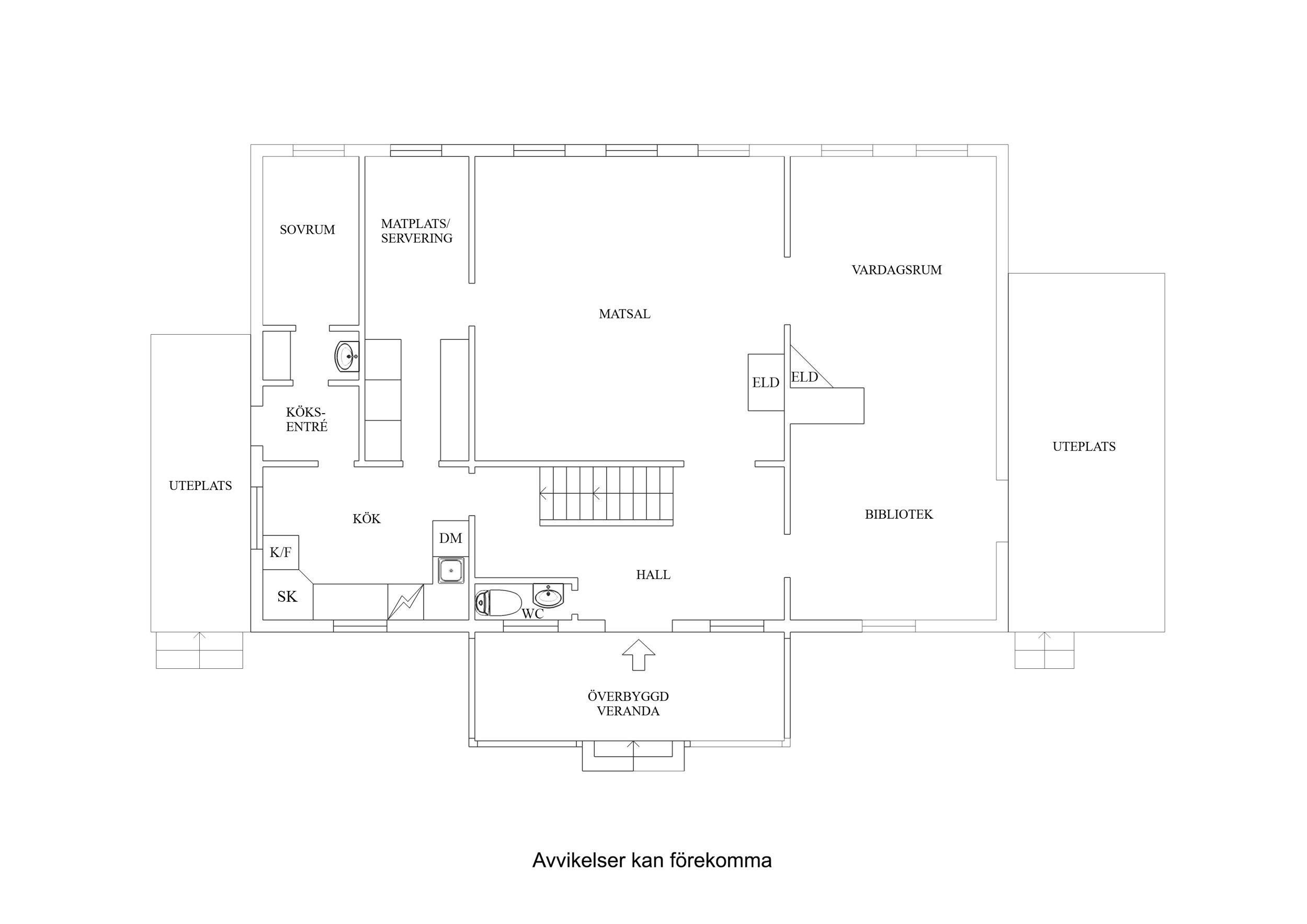
Närmare 320 kvm bostad inkl. källarvåningen som ligger i suterräng och skyddas av stabila granitmurar. Entréplan utgör en öppen och social planlösning med två eldstäder, kök, serveringsgång med matplats, stor matsal, vardagsrum och bibliotek, köksentré, toalett och pigkammare. På övre plan väntar tre stora sovrum, rymligt allrum med eldstad och alkov, ett komplett badrum, en extra toalett och imponerande förvaring. I källaren finns en rymlig tvättstuga, bastu med dusch, matkällare, förrådsutrymmen och ett ungdomsrum eller liknande.
Tomtens knappa 4 000 kvm är närmaste parkliknande med sin välkomnande infart och rundel framför huset. Här finns det gott om plats för odlingsmöjligheter med öppna och plana gräsytor. Bärbuskar och äppelträd samsas med syrenberså och en vacker blodbok. Allt omgärdas av gärdsgårdsstaket och blommande buskar av olika slag för att ge flera insynsskyddade ytor med solmöjligheter från tidig morgon till kväll.
På Sandbergs väg bor man med närhet till såväl bad på Nordkroken som skogsliv på Halleberg, samtidigt som Vargöns utbud och omsorg samt smidig åtkomst till både Trollhättan och Vänersborg väntar nära.
Välkommen att kontakta fastighetsmäklare Robin Bergendahl, 0766-478 910 för intresseanmälan och mer information!



Entréplan
Övre plan
Källarplan
Ribbstolen 5
*Areauppgifter enligt taxeringsinformationen
- Vattenburen golvvärme i badrum på övre plan.
- Solpaneler på garagetak om 7 kW.
- Borrhål bergvärme 200 m djupt.
- Alla tre eldstäder i bruk och sotas enligt plan.
1996
Renovering av elsystem med ny central och ledningar överallt.
Nya arbetsbänkar och serveringsgång.
Nya innerdörrar och snickerier entréplan.
Installation av kakelugn (kronspis) samt renovering av skorsten.
Renovering och förbättring invändig VVS.
1997
Invändigt trappräcke och golv i hall.
Klinkergolv köksingång.
Ytterdörrar båda källaringångarna.
Separering av dag- och spillvatten med nya rör från både hus och garage till kommunens kopplingspunkt. Nya invändiga avloppsledningar från badrum, kök och halltoalett.
1998
Ombyggnad fasad och takkupa.
Renovering av eldstad i vardagsrum.
1999
Nya golv i kök, sovrum entréplan och serveringsgång.
2000
Badrumsinredning.
2004
Installation bergvärme.
2008
Renovering källare samt klinkergolv.
Renovering och fogning mursockel.
2009
Renovering av platsbyggda skåp och nya luckor i kök samt serveringsgång.
2010
Badrum med golvvärme samt dusch och badkar.
Renovering toalett övre plan.
2011
Yttertak garage (underlag och pannor).
2014
Kyl och frys.
2016
Installation fiber.
2018
Yttertak bostadshus (underlag och pannor).
2020
Renovering källardörr.
2022
Element garage.
Badkar.
Fasadbyte sydvästra gaveln.
Ny altandörr samt fönster i takkupa och alkov övre plan.
2023
Solpaneler garage.
Laddbox.
Installation vattenfelsbrytare.
2025
Fasadbyte sydöstra långsidan.
Fristående garage ca 58 kvm med betongplatta på mark. Isolerat med vatten och avlopp samt installerad toalett. Två portar. Smörjgrop. Laddbox.
Uteplats, läge sydväst.
Uteplats vid köksentrén, läge sydost.
Överbyggd veranda vid entrén, läge nordväst.
Kommunalt vatten och avlopp.
Parkliknande trädgård med egen infart och stor gräsmatta. Bärbuskar, hallonland och äppelträd med Aromaäpplen. Stor blodbok.
Grusad gårdsplan.
Garage med två portar och plats för flera bilar.
Stadsplan (1975-10-24)
Last: Avtalsservitut Ledning, 15-IM5-79/501.1
Fiber
Avtalsservitut Ledning
Uppvärmning avser total elkostnad inkl. fasta avgifter. Av producerad el 7 000 kWh/år förbrukas 3 000 kWh för egen räkning samt resterande 4 000 kWh säljs vidare.
Det finns 4 st pantbrev uttagna om sammanlagt 1 257 000 kr
Vill du köpa, sälja eller värdera bostad i Västra Götaland? Kontakta våra mäklare i Göteborg! Passa också på att anmäla dig till vår kostnadsfria söktjänst Boagenten som hjälper dig att hitta ditt drömboende.
Kontakta mäklaren om du behöver hjälp att ta fram en boendekalkyl.
När du köper din bostad genom Bjurfors kan du ansöka om bolån till en förmånlig ränta hos vår samarbetspartner SEB.
Ansvarig mäklare