-
Köpa
Köpa -
Sälja
Sälja - Hitta bostad
- Skapa bevakning
- Hitta mäklare
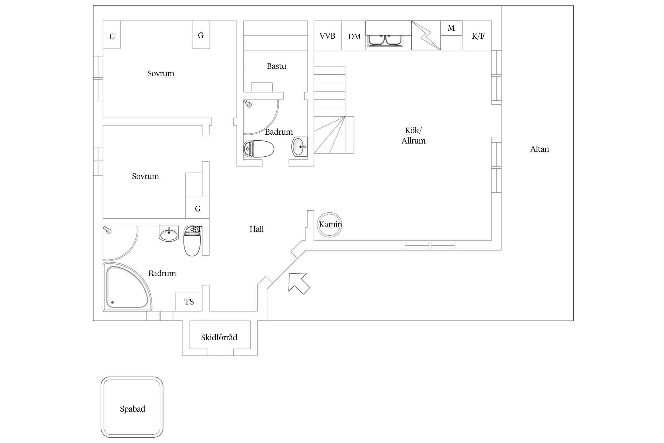
Välplanerat boende i Mitt i Pisten, Kläppen med altan, kamin, bastu och spabad
Kläppen, Malung-Sälen
*I månadsavgiften ingår VA, sophantering, fiber, kabel-tv, snöröjning, parkering, samfällighetsavgift, sotning, yttre underhåll, ränta/amortering, ekonomisk förvaltning och försäkring för föreningen.
**Uppgifter enligt säljaren
Arean är fördelad på 62kvm boarea + 19kvm biarea enligt mäklarbild. Total uppvärmd yta = 81kvm
Fyll i formuläret nedan så hjälper vi dig!



Vill du köpa, sälja eller värdera bostad i Dalarna? Kontakta våra mäklare! Passa också på att anmäla dig till vår kostnadsfria söktjänst Boagenten som hjälper dig att hitta ditt drömboende.
Här hittar du samtliga kommuner i Dalarna där Bjurfors har bostäder till salu just nu!
Extra kontaktperson