-
Köpa
Köpa -
Sälja
Sälja - Hitta bostad
- Skapa bevakning
- Hitta mäklare
Lägenhet med villakänsla och stor uteplats i attraktiva Särö
Särö, Kungsbacka
*I avgiften ingår vatten och två parkeringsplatser. Sophämtning ingår även i månadsavgiften. Varje lägenhet har egen värmepanna, vilket innebär att driftskostnaden för uppvärmning är individuell beroende på familjesammansättning, avtal och vanor.
**Uppgiften om lägenhetensyta från föreningen
Bokade visningar. Vänligen kontakta mäklaren för att boka tid.
Bokade visningar. Vänligen kontakta mäklaren för att boka tid.
Nu har du möjlighet att förvärva en trevlig stor lägenhet i attraktiva Särö. Stor insynsskyddad altan i söderläge.
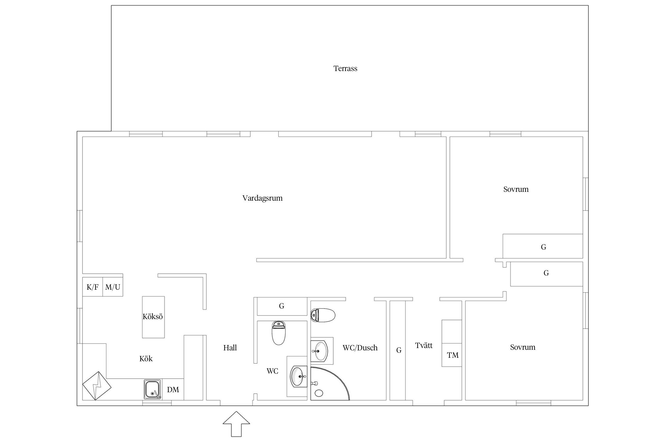
Med toppenläge i attraktiva Särö, nära naturområden och salta bad, finner ni denna charmiga bostadsrätt i markplan med stor inhängnad egen uteplats samt egen entré. Perfekt för dig som vill åt huskänslan men med alla de fördelar i en stabil bostadsrättsförening kan erbjuda. Ett väldisponerat boende med social planlösning. Här finns ett rymligt vardagsrum som badar i naturligt ljus från de stora fönsterpartierna. Vidare finns två gedigna sovrum, ett badrum och en gästtoalett samt ett ljust, tidlöst kök med alla bekvämligheter man kan önska sig. Möjlighet att dela av vardagsrummet till ytterligare ett sovrum om behov finns. Utanför bostaden sträcker sig altanen, den är vetter mot söder och blir en härlig plats under stora delar av året. Även på framsidan och vid entré kan man möblera med en liten sittmöbel för morgonkaffet.
Till lägenheten tillhör ett stort förråd och två stycken parkeringsplatser som ingår i avgiften. Välskött förening med god ekonomi och trevliga omgivningar.
Särö med den omtyckta restaurang Blomstermåla är välkänt för de flesta. Särö var badort och sommarresidens för många göteborgska familjer. Flera av de imponerande sommarvillorna finns bevarade och har varsamt restaurerats för att passa för åretruntboende. Golf, tennis, bad och båtliv kännetecknar Särö, som också har orörda naturområden med promenadstigar längs med havet. Utmed kusten kan man idag cykla på den gamla, nedlagda, Säröbanan, som tidigare transporterade ut göteborgarna till sina sommarvillor i Askim, Hovås, Brottkärr med Amundön, Billdal, Kullavik, Malevik och med Särö som ändstation.
Här bor du insynsskyddat med en stor altan mot Söder, sol större delen av dagen. Bostaden är ursprungligen en 4:a där man nu disponerar den som en 3:a. Möjlighet finns att sätta upp vägg för ytterligare ett sovrum och dela av allrummet.
I bostaden välkomnas du av en rymlig hall, till höger har du goda förvaringsmöjligheter i form av garderober för att kunna stuva undan ytterkläder och skor.
Till vänster, från hallen sett, finner du det moderna och ljusa köket med all maskinell utrusning du kan önska dig. Köket består av kyl & frys, diskmaskin, spishäll, ugn samt mikrovågsugn. I finns också en mobil köksö.
Direkt in från kök och hall kommer man in i det stora allrummet. Som tidigare nämns så går detta av dela av till ytterligare ett sovrum. Rummet badar i naturligt ljus från de stora fönsterpartierna i två väderstreck. Här har du plats för att möblera både med ett kompletterande matsalsbord samt soffgrupp med tillhörande möblemang.
Vidare in i bostaden når du en mindre hall som förbinder resterande rum.
I båda sovrum har du goda förvaringsmöjligheter i form av garderober. Det finns plats för både större säng och tillhörande möblemang.
Badrummet helkaklat med vitt kakel på väggarna och klinker längs golvet. Det är väl tilltaget i storlek och är utrustat med wc, kommod, duschhörna, handduktstork samt golvvärme för de kallare årstiderna. Det finns även en gäst-wc till höger i hallen, även den i stilrent utförande med kakel och klinker.
Det finns också en praktisk groventré och tvättstuga. Den är utrustad med tvättmaskin och garderober för förvaring.
Varmt välkommen på visning!



*Uppgiften om lägenhetensyta från föreningen
I avgiften ingår vatten och två parkeringsplatser. Sophämtning ingår även i månadsavgiften.
Varje lägenhet har egen värmepanna, vilket innebär att driftskostnaden för uppvärmning är individuell beroende på familjesammansättning, avtal och vanor.
Ingår två parkeringsplatser i avgiften.
Trådlös router, varje bostadsrättsinnehavare väljer själv vilket paket man önskar teckna.
Bostadsrättens indirekta nettoskuldsättning baseras på föreningens skulder/lån minus föreningens räntebärande tillgångar och likvida medel. Beräkningen är gjord och baseras enbart på den senaste tillgängliga årsredovisningen. För mer information kontakta ansvarig fastighetsmäklare. Uträkningen är eventuellt baserad på fel andelstal och kan därför vara felaktig.
Brf Hvilan 1 består av 5 st fastigheter om totalt 12 lägenheter med tillhörande trädgårdar.
Lägenheterna varierar mellan 74-112 m2 och samtliga har uteplats eller balkong.
Fastigheterna byggdes mellan 1993-96 och var hyresrätter fram till 2008 då Brf Hvilan 1 bildades.
Fastigheterna ligger havsnära med fina bad och flera båtbryggor. SLTK:s utebanor och Särö Golfbana ligger i närheten.
BO I ETT SEMESTERPARADIS ÅRET OM
Här bor du ljuvligt med rogivande naturområden, karga klippor, salta bad och mjuka sandstränder. Helt enkelt en västkustpärla som bjuder på liv och rörelse, men också ett lugn.
VID SKOG OCH KUST
På Särö, Kungsbackas eget lilla paradis bara tre mil från Göteborg, hittar du en halvö som till stora delar består av vidsträckta naturområden och här kan du ströva genom orörda landskap. Västerskog och Nordanskog är två bergshöjder med varierande natur och lövskogar. I öster ligger Sandsjöbacka Naturreservat med vandringsleder och badsjöar. Utmed Särös kustlinje hittar du lätt dina egna favoritstränder eller klippor för ett morgon- eller kvällsdopp – båda självklara ritualer för en säröbo. Kanske vågar du dig också på att vinterbada under årets kalla månader?
ETT AKTIVT LIV
När badanläggningen uppfördes 1839 etablerades Särö som en av de första bad- och kurorterna i Sverige. Sommargästerna anlände då med ångfartyg till ångbåtsbryggan, och så småningom med tåg från Göteborg, via Säröbanan som hade slutstation Särö Västerskog. Idag har tågbanan blivit en cykelväg som löper plant, rakt och naturskönt hela vägen till centrala Göteborg. Kanske blir du en av dem som cykelpendlar in till jobbet i stan?
Det gamla stationshuset vid kajkanten hyser idag en omtyckt restaurangen. Det sägs att det var på Särö som de första tennismatcherna spelades i Sverige. Särö Lawn Tennisklubb kom till när societeten tillbringade somrarna här, däribland tenniskungen Gustaf V som gärna svingade sin racket här. Idag är vardagen på Särö betydligt mer avslappnade och präglas ofta av mycket idrott och aktiviteter. Läget gör att möjligheterna till golf, tennis, bad, båtliv och hästsport är nästintill oändliga. Vi får anta att det var ett gott liv de första sommargästerna levde här och det är kanske inte så konstigt att de valde just Särö. För här är det verkligen lätt att njuta av livet - unik arkitektur, trevliga restauranger där ni kan umgås över en bit god mat och dryck. Och alltid tillgång till rekreation utanför knuten och inte minst – svensk natur när den är som vackrast.
I området har du flera förskolor och en grundskola. I Särö centrum hittar du allt du behöver - mataffär, vårdcentral, apotek, ditt lokala café och bageri samt gym.
Köpa, sälja eller värdera bostad på Särö? Kontakta våra mäklare i Kungsbacka! Passa också på att anmäla dig till vår kostnadsfria söktjänst Boagenten som hjälper dig att hitta ditt drömboende.
Kontakta mäklaren om du behöver hjälp att ta fram en boendekalkyl.
När du köper din bostad genom Bjurfors kan du ansöka om bolån till en förmånlig ränta hos våra banksamarbetspartners Söderberg & Partners och SEB.
Bokade visningar. Vänligen kontakta mäklaren för att boka tid.
Bokade visningar. Vänligen kontakta mäklaren för att boka tid.
Ansvarig mäklare