-
Köpa
Köpa -
Sälja
Sälja - Hitta bostad
- Skapa bevakning
- Hitta mäklare
Villa med plats för livet
Träslöv, Varberg
*Areauppgifter enligt taxeringsinformationen
På Förhand ligger bostäder som av olika anledningar inte är ute till försäljning just nu men som kan komma att säljas om förutsättningarna är rätt.
Rymlig villa med gäststuga, trädgårdens skördar och cykelavstånd till hav och centrum.
Naturen inpå knuten, havet inom cykelavstånd och en trädgård som bjuder på äpplen, hallon och bär genom hela säsongen. Det är vardagen i denna välplanerade villa med källare och vidbyggt garage.
Stora fönsterpartier bjuder in ljuset och skapar en naturlig koppling mellan huset och trädgårdslivet utanför. Köket är separat och utrustat med en praktisk köksö – perfekt för snabba måltider eller morgonkaffet. I det angränsande vardagsrummet finns plats för både soffgrupp och matbord. På entréplan finns även tre rymliga sovrum med goda förvaringsmöjligheter och ett helkaklat badrum – en lugn och avskild sovdel från husets sociala ytor.
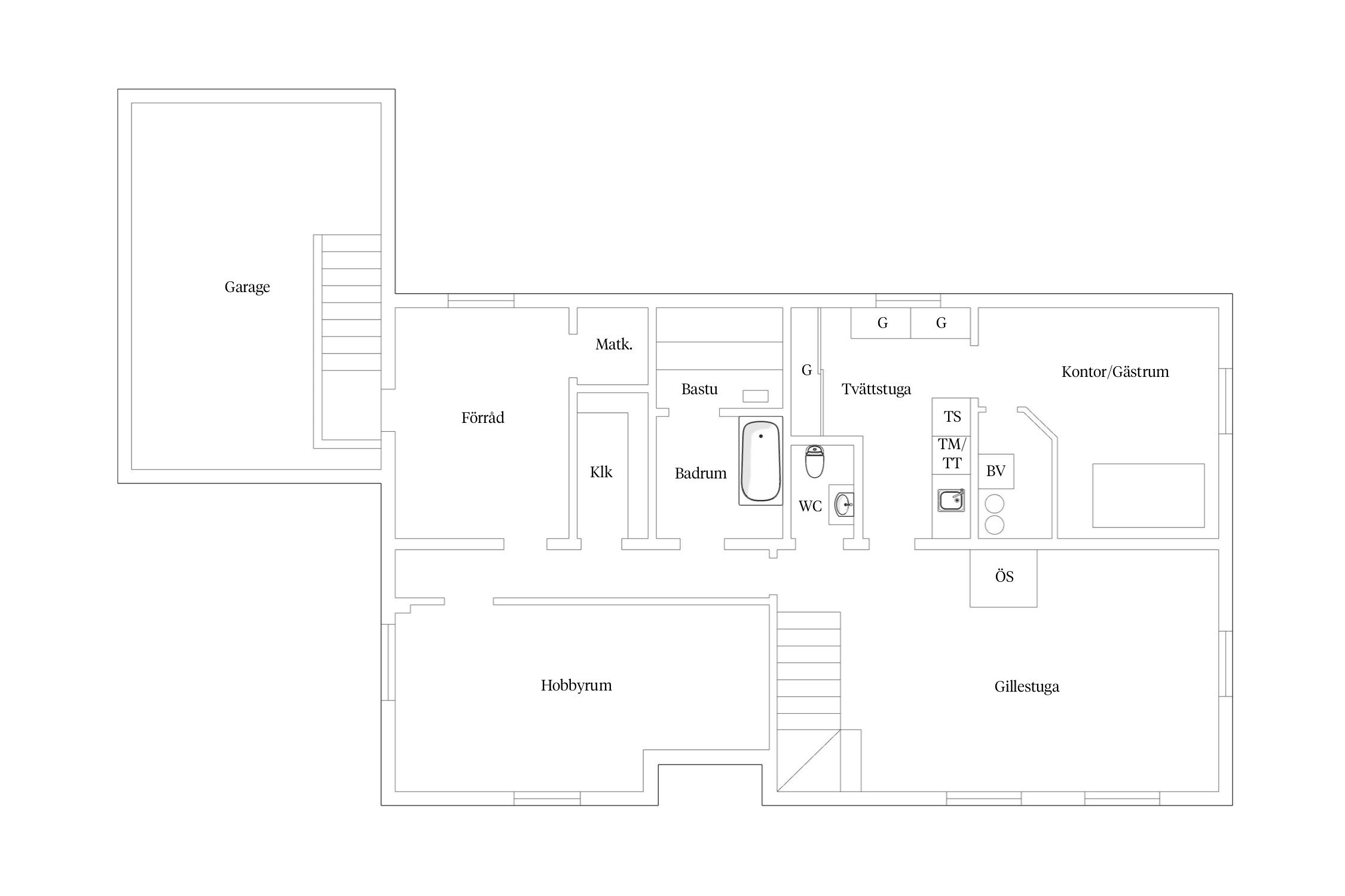
Källarplanet tillför huset en extra dimension med flexibla ytor som passar hela familjens behov. Här finns ett stort allrum med braskamin som passar lika bra som familjebiosalong som lekrum. Vidare finns ett gästrum som även fungerar som kontor samt ett hobbyrum för träning och sportutrustning. Här finns också generösa förvaringsutrymmen, duschrum med badkar och bastu samt en välutrustad tvättstuga.
Trädgården bjuder på en stor gräsmatta, uppvuxna träd och buskar som ger naturligt insynsskydd när säsongen är i full blom. Altanen i söderläge med spabad och utekök är husets naturliga samlingspunkt – gjord för långsamma helger och sällskapliga middagar. Längst in på tomten ligger en gäststuga perfekt som hemmakontor eller för övernattande gäster. Garaget och den asfalterade uppfarten ger gott om parkeringsmöjligheter och elbilsladdare finns installerad. Taket är nyligen bytt vilket ger trygghet under lång tid framöver.
Läget är lugnt och familjevänligt med närhet till skolor, förskolor och service. Välskötta cykelvägar tar dig smidigt till både centrum och havet, och området erbjuder goda möjligheter till ett aktivt liv året runt.
Entréhall
Välkomnande entréhall med plats för ytterkläder och skor bakom garderobens skjutdörrar.
Kök
Stort kök med grå köksluckor från Sentens, renoverades 2017. Full maskinell utrustning från Electrolux med integrerad diskmaskin, kyl med friskt kolsyrat vatten och frys med integrerad ismaskin. Här finns även en inbyggd ugn och kombiugn samt bred induktionshäll och fläkt från Franke. Funktionella ytor för umgänge erbjuds runt köksön som även rymmer praktisk förvaring genom lådor på andra sidan.
Vardagsrum
Ljust och trevligt vardagsrum med stora fönster mot trädgården. Här finns gott om plats för soffgrupp och matsalsmöbler. Från vardagsrummet nås uteplatsen och trädgården.
Sovrum
Stort sovrum med plats för dubbelsäng. Väggarna är målade i en vilsam grön färg. Längs ena väggen finns garderober med skjutdörrar för kläder och andra personliga tillhörigheter.
Sovrum
Längst in i hallen finns ett sovrum med plats för både säng och skrivbord. Väggarna är målade i en behaglig beige färg.
Badrum
Helkaklat badrum med elektrisk golvvärme. Badrummet är utrustat med WC, handfat ovan kommod, högskåp, inbyggd garderob, handdukstork samt dusch med glasväggar.
Sovrum
Mysigt barnrum med gott om plats att växa i. Längs ena väggen finns fem garderober.
Allrum källare
Ett trivsamt allrum i källarplan med tegelvägg och braskamin som skapar en varm och ombonad känsla. Rummet fungerar som en naturlig samlingsplats för både lek, umgänge och avkoppling, med plats för soffhörna, spel och läxläsning.
Toalett
Toalett med klinker på golvet, WC, handfat med vit kommod.
Tvättstuga
Praktisk tvättstuga med gott om förvaring i skåp och garderober. Tvättavdelning med tvättmaskin, torktumlare, torkskåp och vask.
Gästrum/kontor
Innanför tvättstugan ligger ett rum perfekt som hemmakontor eller sovplats för övernattande gäster. Väggarna är målade i en grå ton.
Duschrum med bastu
Helkaklat duschrum med badkar och bastu.
Hobbyrum
Flexibelt rum perfekt för den aktiva familjen, med plats för både bollekar och hemmagym. Målat med vita väggar och en fondvägg i en ljusblå nyans.
Förråd
Stort förråd med matkällare innanför. Från förrådet leder trappan upp till garaget.



Entréplan
Källarplan
Krokodilen 4
*Areauppgifter enligt taxeringsinformationen
Följande information har hämtats från ett tidigare besiktningsprotokoll utfört 2021:
2012 installerades 3-glas isolerfönstren.
2013 installerades bergvärmepumpen.
2014 renoverades entréplanets dusch/toalett med kakel, klinker och elektrisk golvvärme av fackman.
2015 sanerades vinden och en värmekabel samt en hygrostatstyrd fläkt monterades.
Kvalitetsdokument för renovering av entréplanets dusch/wc finns.
Nedanstående uppgifter lämnades av nuvarande fastighetsägare:
Fastigheten förvärvades 2024.
2025 utfördes följande:
* Installation av luftvärmepump.
* Installation av braskamin med tillhörande rökrör i skorstenen.
* Omläggning av yttertak med ny underlagspapp, läkt och betongpannor.
* Byte av hängrännor, stuprör och huvar.
* Avloppsluftning drogs om så det avslutas ovan yttertaket.
* Demontering av fasadens träpanel samt borttagning av asfaboard.
* Montering av vindsduk och ny fasadpanel.
* Byte av plåtdetaljer kring fönster.
* Rivning av det ursprungliga uterummet.
* Byte av alla källarfönster utom två stycken.
Alla arbeten utfördes av fackman.
Det finns enligt elektriker framdragna jordade elkablar i källarplanet.
Vidbyggt garage
Isolerad gäststuga med golvvärme och fiber indraget.
Kommunalt vatten, Kommunalt avlopp.
Stadsplan (1975-07-11)
Fiber
I kostnaden för uppvärmning ingår även kostnaden för hushållsel samt uppvärmning av spabadet.
Det finns 7 st pantbrev uttagna om sammanlagt 4 181 100 kr
Träslöv är ett populärt och barnvänligt bostadsområde strax utanför stadskärnan öster om Varbergs stad. Området innefattar stadsdelarna Karlberg, Nedregården, Borgasgården, Erlandsgården, Nygrannes, Träslövs Trädgårdsstad, Prästakullen, Vallinsområdet samt Lilla Träslöv. Det finns fina cykelvägar ner till centrum eller varför inte ta en skön promenad? Möjligheterna är många och det finns givetvis även goda bussförbindelser in till centrum.
Från Träslöv ner till centrum är bussförbindelserna frekventa. Tågstation, med fina pendlingsmöjligheter norr och söderut, ligger mitt i stan. Från Träslöv är det enkelt att ta sig till motorvägspåfarten, du når Göteborg i norr på ca 45 minuter, via motorvägen söder över når du Halmstad. I Träslöv finns det både förskolor samt F-3 och 4-9 skola inom bekvämt avstånd. Här finns även närheten till sjukhuset, apotek och mataffär.
För dig som tycker om att motionera finns åtskilliga möjligheter i närområdet. Det finns bland annat en motionsslinga i Furubergsskogen för promenader och löpträning. Här finns även fina cykelområden, fotbollsanläggningar och simhall. Vill du hellre träna inomhus finns det ett stort utbud av träningsanläggningar, både för gym-och idrottsaktiviteter.
Köpa, sälja eller värdera bostad i Träslöv? Kontakta våra mäklare i Varberg. Passa också på att anmäla dig till vår kostnadsfria söktjänst Boagenten som hjälper dig att hitta ditt drömboende.
Kontakta mäklaren om du behöver hjälp att ta fram en boendekalkyl.
När du köper din bostad genom Bjurfors kan du ansöka om bolån till en förmånlig ränta hos våra banksamarbetspartners Söderberg & Partners och SEB.
Ansvarig mäklare